
城市,象征对生活的踏实理想,海洋,激发对未知的好奇探索,就如对安稳与自由的两种希冀,深植于人们脑海,长久的拿捏平衡,而这种平衡却在青岛这座海滨城市,恰如其分的融合并存,呈现独特的城市面貌。
青岛市市北区连云港路66号国际航运中心项目,位于青岛市市北区的CBD商务区,在四周林立的超高层建筑中,本项目以249米的高度,傲居摩天之势。本项目按三星级绿色建筑标准设计,并获得美国LEED金奖绿色认证和中国三星级绿色建筑设计标识。

“城市界面的丰富度”
青岛国际航运中心项目所在CBD核心区正在实施着都市发展计划。基于CBD核心区规划,设计全面整合建筑功能、交通、日照、通风、景观、视线、用地价值等多方面因素,合理确定建筑空间尺度与造型,充分演绎对现代生活的释义与畅想。

通过对有限的用地范围进行细致的规划,控制整体的空间关系。圆弧状三角形塔楼占据靠近城市环形广场的位置,与卓越二期的高塔形成CBD门户,完成广场的环形建筑序列。塔楼的一角指向圆心,三个边对应街道,建筑外部空间成全开放型。圆润的体形和丰富的立面与周边建筑形成鲜明对比,在减小高密度社区邻里的对立感的同时,形成友好界面和独特的个性。

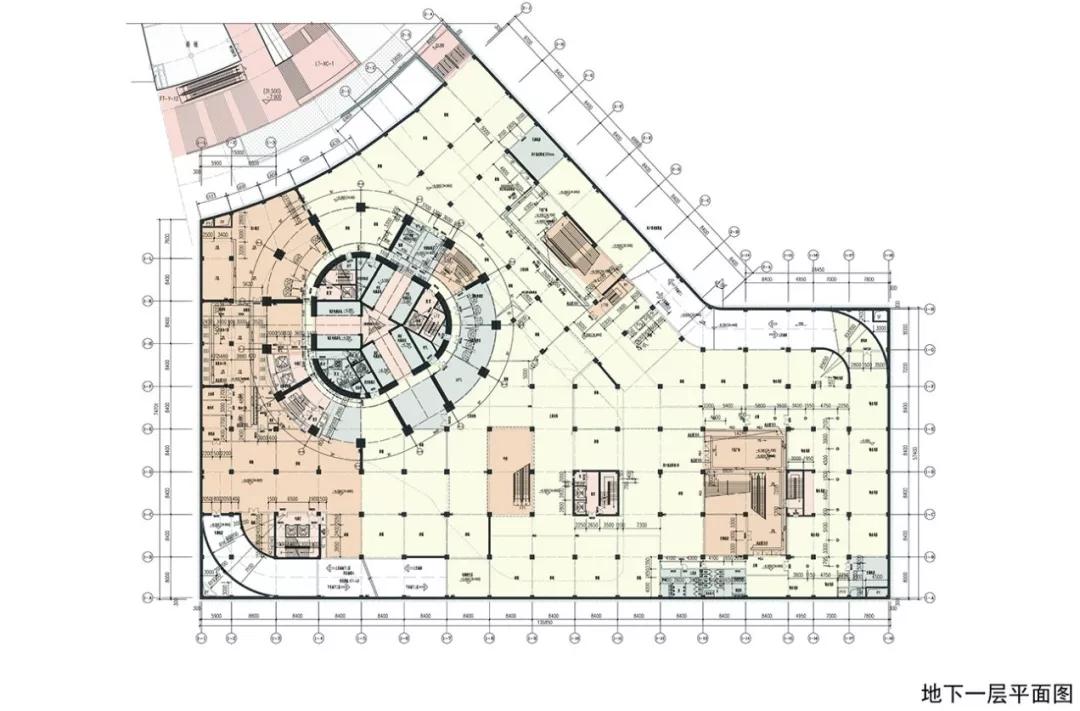
“空间构想与交通组织”
梳理周边交通的状况,以安全便捷、顺畅有序为原则,合理布置出入口及车行、人行流线。办公主入口位于裙房首层南侧的两层高交通大堂,面向南偏西30度;次入口位于塔楼的北侧,面向城市环形广场。沿规划16号路的商业裙房在南侧和东侧设出入口,步行广场设两个下沉广场,作为地下商业街的主要出入口。

车行出入口布置在规划16号路和连云港路,人行入口在北侧、东侧步行街和南侧裙房。消防通道沿建筑周边形成环路。地下车库出入口在用地的西南角部和东侧。


“矩阵式复合系统组织”
青岛国际航运中心项目自身内部的城市性主要体现在矩阵式组织的“空中花园”系统与内部复合功能系统方面。

大厦门厅都是两层高空间,六层以上为标准层。第10、26、42层为避难层,兼作设备层。塔楼的平面形状为圆角三角形, “Y”字形电梯井道,其它楼梯、货梯、消防和专用电梯布置在核心筒内,通过竖向交通分析设置18部高速客用电梯分为三组,使塔楼整体在造型和经济性之间达到均衡。在塔楼8,24,40,54层布置空中挑高“空中花园”,提高室内环境品质。


“定海神针造型与幕墙设计”
大厦昵称“定海神针”,源于对航运业几个元素的提炼运用。


饱满的体量,展现地标建筑所具有的强烈的视觉震撼;柔和圆润的形体与周边高层建筑形成对比,凸显独特的风格;纯净的体块和流畅的建筑表皮,给人一气呵成的整体感。玻璃幕墙为灰色基调中带蓝色调,灰色将带来稳重、高雅的整体效果。蓝色调与青岛环境相一致,天蓝、海蓝相接为一体。玻璃幕墙在阳光下宛若波光粼粼的海面。


“绿色理念与前沿性技术”
1、采用冰蓄冷空调系统。2、地下车库设置CO探头。3、设置排风热回收装置。4、生活热水制备采用电辅助加热太阳能制取生活热水。5、制冷机组、冷却塔、风机、通风设备、水泵及用水设备均采用高效、节能型产品。6、设置智能型变配电监控系统;7、变压器选用低能耗高效H 级绝缘干式变压器;8、低压配电系统无功补偿装置采用动态无功发生器;9、变配电室设在负荷中心,降低线路损耗;10、采用智能照明控制系统;11、采用高效荧光灯、LED筒灯等高效节能灯具;12、采用建筑设备管理系统。
结构专业采用钢管混凝土框架-钢筋混凝土核心筒混合结构,钢梁-压型钢板混凝土组合楼盖。工程存在多项不规则超限内容,设计采用多种软件进行了多遇地震弹性、弹塑性时程分析和重要构件的抗震性能化设计。针对超高层结构非线性荷载效应,补充了徐变、收缩计算分析,并进行了风洞试验、组合楼盖、钢管混凝土柱、型钢梁的耐火试验研究;型钢混凝土、钢管混凝土典型节点受力分析;大体积、超长混凝土温度应力分析;滑模施工及钢管混凝土柱浇筑方案研究等一系列课题。

“结语”
建筑设计通过合理的城市空间分析和功能布局,探索地域、文化、环境、生态与建筑的有机结合;创造出符合国际航运中心鲜明特性的造型设计,展现时代气息,外形隽永大方、文化意涵丰富、人文色彩浓厚、布局合理的建筑形象,体现现代、简洁、典雅、富有亲和力的建筑特色。


图纸信息













项目信息
项目名称:青岛市市北区连云港路66号国际航运中心项目
项目类型:办公、商业
项目规模:用地面积11966.3m2,总建筑面积160057.13m2
设计起止时间:2012年3月-12月
设计单位:同圆设计集团有限公司
建设单位:山东海洋发展有限公司
团队成员:段林、陈岚、陈晖、王希建、刘硕、毛勤、刘菲、禹志伟、周艳、闫晓静、衣光照