浦发仁恒珊瑚世纪 和 中建壹府澜庭 是周康板块的热门项目,这两个项目位置相邻,产品相似,入市节点也相近,那购房者该如何选择呢?今天想叔将从 城市界面、交通、配套、社区规划、户型 这四大维度,对这两个项目进行比较。
城市界面
两个项目同在周康板块,相距甚近,直线距离大约800米。虽然都在城乡结合部,但两者的城市界面有些许差别。
仁恒珊瑚世纪附近是阳光城丽景湾、中骏柏景湾、世贸云图、保利颂等次新房,界面很新,道路平整,品质居住区的雏形已现。

浦发仁恒珊瑚世纪周边街景
壹府澜庭的城市界面则尚在发展阶段,周边次新房较少,有很多工地还在施工,人行道上也坑坑洼洼,缺少一丝都市氛围。但等这些在建和待建的项目竣工后,城市界面会有所改善。

壹府澜庭周边地块现状
小结:城市界面对比 ,现在来看确实是 仁恒珊瑚世纪更好 ,但壹府澜庭未来不会差,随着周围的工地竣工,它的城市界面会有很大改善。
交通出行
地铁方面 ,壹府澜庭位于康梧路与上南路的路口,距离18号线周浦站约1.4公里 ,步行需要 15分钟 左右。

壹府澜庭至地铁站步行路线
浦发仁恒珊瑚世 纪位于康涵路与渡桥路路口,距离 周浦站约 2.8公里 ,骑自行车、坐公交前往比较适合。

自驾方面 ,两个项目周边路网相似,周边有 “三横” (中环、外环、申嘉湖高速)、 “三纵” (浦星公路、林海公路、沪南公路)的交通网络,自驾出行还是比较便捷的。


浦发仁恒珊瑚世纪交通路网
小结:交通方面 , 中建壹府澜庭>浦发仁恒珊瑚世纪 。两个项目均临近18号线周浦站,周边道路网络也很相似。但从距离地铁站的远近来看,1.4公里和2.8公里的差别很大,一个步行即可到,一个步行基本是不可能的,所以壹府澜庭优势更明显。
生活配套
两个项目在同一板块,相邻很近,周边配套是共用的,接下来就看谁离配套更近。
商业配套: 两个项目周边的商业配套有 周浦万达广场、永乐广场、新田360广场、红星美凯龙, 另外 上海第二家costco 也择址于此,可以预见整个板块未来的生活氛围会越来越浓厚,购物、娱乐、餐饮都很便利。

但 壹府澜庭与永乐广场仅一街之隔 , 距离周浦万达广场也只需步行1.4公里 ,所以非常方便。而浦发仁恒珊瑚世纪则距离大型商业中心较远,最近的商业配套就是社区附近的沿街底商,可满足基本的日常所需,但满足不了高品质、丰富的消费体验。
教育配套: 目前两个项目周边已有的学校有周浦幼儿园景康部、康桥实验小学明珠分校、康桥小学、吴迅中学、华东师范大学附属周浦中学等教育资源,完全覆盖全龄教育需求。

此外,两个项目附近还有一所公办小学正在建设当中。
医疗配套: 两个项目附近的配备了基础医疗资源,可解决平常的头疼脑热, 3公里 范围有社区医疗中心、上海康沈医院、上海国龙医院等。而要享受更好的医疗资源,则要向外延伸,有周浦医院、东方医院南院、曙光医院东院、上海市第一妇婴保健院等。
除了共有的配套之外,两个项目在社区内也规划了自己的配套。 壹府澜庭 项目东北角 规划了菜场, 售楼处在以后会改为约 1.2万㎡的商业体 。浦发仁恒珊瑚世纪社区内则是 自带约4000㎡商业体 ,同样是售楼处改建的,预计将建成一个集生鲜超市、咖啡吧、市集于一体的社区商业中心;售楼处南侧还规划了 社区医疗中心和综合体育馆 ,体育馆预计有足球场、室内篮球场、游泳馆和羽毛球场等设施。

浦发仁恒珊瑚世纪社区商业效果图
小结:配套对比, 中建壹府澜庭>仁恒珊瑚世纪。 两个项目相隔不远,生活配套共用,相差无几。但壹府澜庭胜在自带菜场和1.2万方的商业体,并且一街之隔就是永乐广场,距离万达广场也更近。仁恒珊瑚世纪也有优势,社区内不仅自带商业、沿街商业,还有医疗中心和体育馆,业主在家门口即可满足日常生活需求。
社区规划
仁恒珊瑚世纪 整个社区由高层、洋房、别墅以及商业等配套组成, 容积率1.7 ,共720套可售房源。

浦发仁恒珊瑚世纪社区规划图
社区内部规划了一个 全龄化的生活活动区 ,林荫大道、市*运民**动广场、社区活力街、儿童泡泡乐园等休闲场所错落分布在社区中,丰富了社区休闲生活。

浦发仁恒珊瑚世纪社区效果图
关于外立面 ,仁恒珊瑚世纪是目前板块内唯一采用Super Flat超扁平极简光幕立,部分业态呈现超高窗墙比,现代感十足,外墙材质为石材+铝板。

浦发仁恒珊瑚世纪建筑效果图
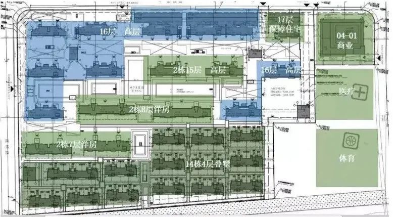
中建壹府澜庭 整个社区由高层、别墅以及商业等配套组成, 容积率2.0 ,共796套可售房源。

壹府澜庭社区规划图
社区内打造了约3.6万㎡都市花园,规划一环、两轴、六重心境花园,设有儿童游乐区、健身跑道、休闲绿地等活动区,营造精致的社区生活环境。

壹府澜庭效果图
项目外立面为新古典风格,材质为石材+真石漆(1-2F石材,其他楼层真石漆),颜色明亮。

壹府澜庭效果图
小结: 两个项目均采用高低配的规划设计,均打造了风格不同、品质不俗的社区景观,社区活动区域规划也很合理, 二者之间的差异之处在于容积率。 浦发仁恒珊瑚世纪容积率为 1.7 ,壹府澜庭容积率为 2.0 ,同是高低配,但低容积率,使得楼栋之间的排布空间更从容,采光和视野好,居住舒适度更好。
所以综合来看,浦发仁恒珊瑚世纪在社区规划上略胜一筹,同时它在产品类型上更为丰富,选择性更大。
户型
浦发仁恒珊瑚世纪二期推出的户型为建面约100㎡3房高层、建面约130㎡洋房、建面约170-190㎡叠墅。三期户型和二期基本一致。

浦发仁恒珊瑚世纪
壹府澜庭首开推出的是高层建面约87㎡3房、约98㎡3房、约113㎡3房的户型,叠墅户型为建面约121㎡上叠、约132㎡中叠、约133㎡下叠。二期户型和一期相同。

中建壹府澜庭
先来看两个项目相近面积段的同类产品进行对比: 浦发仁恒珊瑚世纪 100㎡3房2厅2卫 与壹府澜庭98㎡3房2厅2卫。

两个户型的 结构布局基本类似 ,有以下 相同之处 :户型方正,三开间朝南;主卧套房设计,带有独立的衣帽间及卫生间;动静切割分明,动区南北不通透。
不同之处是壹府澜庭客厅的阳台与南向次卧的阳台连通了 ,形成了大面积的南向景观阳台,增加了室内的采光面,提高通风效果,在居住的体验感上更好,这种设计在刚需房中很少见。浦发仁恒珊瑚世纪的阳台设计在市面上很常见,旁边的次卧是南向飘窗,增加空间使用率,室内采光也不错。
再来看两个项目面积段相近的不同类产品对比: 仁恒珊瑚世纪 130㎡洋房与壹府澜庭132㎡中叠的对比。

两个户型的 结构布局依旧很相似 ,均是三开间朝南,南向客厅带阳台,卧室全飘窗设计,主卧套房设计,带有独立的衣帽间及卫生间。
但都是 130㎡ 左右的面积,仁恒珊瑚世纪做成了三房,壹府澜庭则做了四房 ,空间略显紧凑,但从 功能性和成长性来说 , 壹府澜庭的中叠户型是更好的 ,可以满足家庭不同阶段的空间需求。从 舒适度来说的话 ,则是 仁恒珊瑚世纪的更佳 ,它客餐厅、卧室、卫生间的空间都很从容,居住体验好。
由于两个项目的叠墅面积段差异较大,所以两个项目的叠墅户型不做比较。
小结: 两个项目的高层户型基本类似,但 壹府澜庭在南向阳台上更具特色 ,改善了南北不通透的缺憾,提高了采光和视野。
从产品类型上看, 浦发仁恒珊瑚世纪是偏改善的项目 ,多了一个洋房产品可选择,叠墅的面积段更大, 置业门槛相比壹府澜庭更高 ;而 壹府澜庭则是偏刚需 ,面积段主要在87-133㎡, 置业门槛相对较低。
最后总结
浦发仁恒珊瑚世纪和壹府澜庭是目前周康板块人气旺盛的两个标杆项目, 两个项目都各有优势。
浦发仁恒珊瑚世纪 社区自带商业体,产品类型多样,户型面积段偏大,居住氛围更舒适,但距离地铁站和其他配套相对远一些,此外它的置业门槛相对高。
壹府澜庭 社区自带商业和菜场,同时距离地铁站和周边商业配套距离都比较近,出行购物都更加便利。在产品上,与珊瑚世纪的叠墅户型相比,壹府澜庭空间虽紧凑,但性价比更高。