踩盘者说
宝安老城区新安街道,又一新盘——联建君钰府,刚刚拿到预售许可证,目前正在接受认筹,明天开卖!

1、楼盘567套房,会全部拿出来卖吗?
2、听群友吐槽,每平米强加4500元装修费,是真的吗?
3、户型怎样,周边配套如何,对应什么学区?
4、约6.3万/㎡的均价,对比周边二手房,是否划算?
贰哥火速赶往联建君钰府楼盘,实地探盘!
贰哥探盘
联建君钰府

联建君钰府位于宝安新安街道,前进1路沃尔玛旁边。目前附近没有地铁通达,距离5号线灵芝地铁站,约2公里的距离,有点远。目前公共交通,主要靠公交出行。
未来,项目500米处,有规划中的地铁12号线上川站,开通后,项目公共交通将得到改善。

目测,施工进入褪绿网阶段,高层玻璃、石材等外立面都已经建设完成。
据贰哥了解,去年,联建君钰府就已经封顶,符合预售条件,但是因为备案价高,迟迟拿不到预售许可证。

在项目展示中心旁边,一块广告牌上,醒目地写着:将于5月20号开盘,优惠申请中。

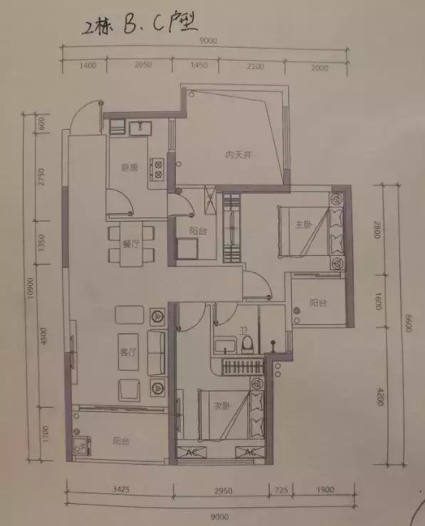
联建君钰府整个地块不大,总占地9194.30㎡,根据销售人员介绍,楼盘由三栋楼组成,其中1栋、2栋为住宅,3栋为保障房+商务公寓。
1栋、2栋均由A、B两座组成,其中1栋为两梯三户、2栋为两梯四户。

强加4500元/㎡装修费
20号开盘只卖1A、2A
贰哥从新房预售备案系统查到,本次联建君钰府三栋包括底商、商务公寓、商务办公、住宅共计567套,全部拿到了预售许可证。

不过,根据销售人员介绍,5月20号开盘,只卖其中1栋A座、2栋A座的住宅。
销售时,每平米要加4500元的产品升级费,其实就是所谓装修费。销售人员解释,目前正在认筹,可以交5万元认筹金,就可以享受每平米只加3000元装修费的优惠。而下一批开盘的1栋B座、2栋B座,则要每平米加收4500元的装修费。
贰哥询问,可否不要装修,销售人员表示,不能!必须要加装修销售!

销售人员表示,这笔装修费将单独签订合同,不会显示在购房合同中。
可以分期支付,以90㎡计算,共需要额外交27万的装修费,开盘时,支付一半,也就是13.5万,半年后,再支付20%,也就是5.4万,一年后,支付最后的30%,8.1万。
单价5.7万/㎡起
户型以90㎡2+1房为主
这是部分价格表信息:

(点击可查看大图)

(点击可查看大图)
联建君钰府住宅为约 84㎡-120㎡户型,商务公寓为48㎡-69㎡户型,商业为24-122㎡户型。
贰哥梳理了联建君钰府的预售备案价格,住宅 最便宜的一套为1栋A座2楼90.84㎡户型,价格为5.7万元/㎡。

住宅最贵的一套为1栋B座33楼顶楼的86.31㎡户型,价格为约6.69万/㎡。

商务公寓价格大都在6万/㎡以内,商铺的价格统一为15.89万/㎡。

贰哥跟随销售去看了下样板间,由于不让拍照,只能结合户型图介绍了!
联建君钰府住宅主力户型为84㎡、86㎡、87㎡、89㎡、108㎡的2+1户型。两个标准卧室、另一个则由多出来的一个阳台改造而成。开发商交房时,保持阳台原样结构,后期需要购房者自行改建为卧室。
部分主力户型图展示:

89.53㎡(1栋A座A户型)

86.47㎡(1栋C户型)

84.43㎡(2栋B、C户型)

87.2㎡(2栋D户型)
贰哥计算了一下,84-89㎡的主力2+1房户型,总价在518-577万之间。
1栋A座、2栋A座算上每平米3000元的额外装修费,总价要再加27万左右。1栋B座、2栋B座算上每平米4500元的额外装修费,总价要再加40.5万左右。
周边商业配套齐全
名校资源匮乏

项目效果图
联建君钰府整体地块较小,三栋楼合围的小区,可供业主活动的空间不大,不过一公里范围内,分布着上合社区公园、流塘公园、宝安公园等,可供业主休闲活动。

上合公园实景
其中,上合社区公园虽然小,但就在联建君钰府旁边,步行5分钟可达。公园内还有篮球场和足球场。

上合公园实景
联建君钰府周边,安华工业区,房屋较为老旧,街道也比较狭窄,置业顾问表示,安华工业区已经纳入旧改范围。

安华工业区 实景

安华工业区 实景
商业方面,门口就是沃尔玛,路对面是天虹商场,能满足基本的购物、娱乐需求。5公里内,还有中洲华府配套的约8万㎡集中商业。

具体到购房者最关心的学校问题,联建君钰府所属的小学学区为上合小学和孝德学校。

其中,孝德学校去年9月才刚刚开始招生,旁边的上合小学教学质量一般。不过距离最近,百度测距,不到500米距离。

初中学区,则被划分进了文汇学校的学区范围。

贰哥查询了2016年文汇学校的中考成绩,文汇中学八大录取比例14%,十大录取16.%,排名宝安区第5名,全市第48名。成绩并不算很差,但跟隔壁学区的宝安中学,差距较大。


(点击可查看大图)
周边二手房3.8万/㎡
隔壁宝中学区新房6.1万/㎡起

(点击可查看大图)
联建君钰府处宝安老城区,周边二手房,大多是较老的楼梯房小区,均价在4万/㎡左右,旁边的次新房小区,价格也大都在6万/㎡以内。
联建君钰府,预售备案均价为6.3万/㎡左右,但是强加了装修费后,以3000/4500元/㎡算,真实的销售均价达到了6.6-6.75万/㎡。

百度测距,距离玖悦雅轩1.5公里
百度测距,距离联建君钰府1.5公里,有一个位于宝安中学学区范围内的新盘——玖悦雅轩。
玖悦雅轩的预售备案价,最低6.1万/㎡起,均价为6.8万/㎡。并且,玖悦雅轩,位于灵芝地铁口旁边。

玖悦雅轩 实景
踩盘总结
贰哥认为:
1、联建君钰府这种强加装修费的行为是否合规先不论,叠加装修费后的价格,无论是相比片区内二手房,还是隔壁宝中学区新房,都不是很有竞争力。
2、联建君钰府户型大都是2+1户型,并不是标准意义上的3房户型。改建阳台为卧室,严格来说属于改变房屋使用结构,存在违建的风险。
3、联建君钰府整体小区较小,虽然小区外有公园弥补,但家里有孩子、老人的朋友应该很清楚,小区园林、绿化、休闲设施、乃至标配的游泳池,对于生活舒适度来讲还是很重要的。
4、贰哥认为,投资宝安老城区,主要看这几个价值点——宝安中学学区范围内的房子、已开通或 规划地铁密集的区域、旧改密集的片区。联建君钰府三条只能算占了1.5,就目前强加装修费后的价格来看,投资价值并不突出,可替代的选择还有很多。