大连万科翡翠都会 | 日清设计

大连万科翡翠都会
Vanke Emerald Metropolis
中国,大连
Dalian, China
项目背景
_
大连万科翡翠都会是体育中心南侧片区的首开项目,这无疑成为了大家南侧片区的预期的缩影,因此在设计中除了满足展示的基本功能要求外,还植入了与片区名片“运动”相融合的主题,比如室外设置了小型足球场,室内新增了一个特殊功能空间:足球文化馆,使得接待中心成为了片区新增的热点名片。


◎建筑与景观的呼应
大连万科翡翠都会位于大连市体育新城片区,以大连体育中心为依托,以体育公园为中心,是一个高层加洋房附带商业的复合型社区,建筑的功能初期为整个项目的接待中心,后期则在不大拆改的前提下作为商业配套使用。







滑动查看更多内容
场所精神
_
在方案设计中,我们首先考虑的是整个翡翠都会与大连体育中心的关系,以及在这个大的体育文化背景下建筑以及建筑所延伸的场所对“运动”这个主题应作出什么样的呼应,同时又体现自身应有的让人印象深刻的独立形象。


体育中心是一个城市级别的超大体量的建筑群,它的形态及表皮都以弧线为主,建筑立面延续到了屋顶。以此为出发点,方案通过建筑形式的呼应以及空间内容的呼应来塑造独立的场所精神。

设计理念
_
考虑到以后作为商业配套使用的合理性,整个建筑呈沿街L型,在此基础上通过形体60度的扭转以转角平行六边形大空间为中心组织体量关系,再通过折叠获得了一个立面延续到屋面的丰富的建筑形态,同时将铝板幕墙的立面的划分做小,并且在每一个铝板划分单元做端部做三角形内凹处理,结合星星点点的灯光设计,以及景观对建筑元素的扩展,使得建筑呈现出相比体育中心更小而美却又不输气势的形象,这就是“折叠星空”。

◎体块分析图


◎立面与屋面关系
展示流线
_
翡翠都会的流线组织采用了洄游双流线的形式,这一点首先体现在室外流线,客户到达接待中心东北角位置丁字路口,如果是乘坐出租车过来,则可以直接在路口下车通过人行台阶走到接待门厅,如果是开车过来则可以到达停车场后穿过体验区到达接待门厅,同时体验区也是双流线,包括室外儿童活动场地和迷你足球场。

在室内的流线组织上,客户如果是第一次来到达门厅以后可以通过品牌区选择体验影音区再到模型区,然后去到内院看样板间再回来到洽谈区,而第二次来也可以直接从品牌区到洽谈区。

空间节奏
_
整个翡翠都会有着1.5m的高差,在室内通过三个标高关系来解决,整个空间节奏灵活多变却又工整有序,这归结于接待门厅串联了雨棚和内院的对景仪式感以及模型区串联了东北角欢迎水景和内院的对景仪式感,这两重仪式感决定了整个建筑的空间脉络。

◎建筑与东北角欢迎水面
雨棚作为室内外空间衔接的功能,是接待中心最能体现礼仪感的地方,方案中一个长达27m的大尺度雨棚与建筑呈120度的关系延伸出来,形成很强的庇护感,雨棚下方一道实墙把柱子隐藏起来,并整个空间更加稳定,而另一侧则采用v型柱式,使得整个雨棚空间更通透轻盈。

◎入口空间

◎雨棚空间

◎室内外空间衔接
从雨棚往内是接待门厅,接待门厅可以看到内院的跌水景观,接待门厅转过去是连接着品牌区的长廊,长廊一侧是通透的玻璃面,可以全景感受到东侧的大片景观水面,长廊另一侧是影音室,再往前走廊的尽端左转则是整个接待中心最主要的空间:两层通高的沙盘区。沙盘区可以透过落地玻璃幕墙感受到东北角的欢迎水面。

沙盘区再往下是一个过厅,这个过厅把沙盘区、室外样板房区、洽谈区以及客户参观结束离开的过廊串了起来。样板房的排布也采用了分散式的布局,与整个接待中心围合出一个稳定而静谧的内院空间。


◎内院空间
材料节点
_
为了呼应体育中心,接待中心的材料以银白色铝板和超白玻璃为主,玻璃采用高反射玻璃,在雨棚的吊顶则采用了透光的弧形亚克力,灯光透过亚克力与景墙使用的发泡铝板使得整个雨棚空间的氛围更加细腻。

◎亚克力板与发泡铝板
在幕墙的设计中铝板的节点处理稍显特殊,铝板有两种处理方式,都采用开放式,不同的是立面采用5mm的密缝,屋顶考虑到排水采用12mm的宽缝,这样雨水可以透过拼缝流入基层屋面再汇集到幕墙内侧檐沟有组织地排水。


◎铝板与弧形玻璃面
结语故事
_
翡翠都会是一个有关挖掘城市文化和场所精神的故事,当它在大连这座海边城市完全呈现的时候,与整个城市和所在片区是融合的,它有着体育中心延续过来的恢宏气场,更有着大连海风拂来的细腻和浪漫,仿佛将大连的星空折叠。

◎翡翠都会与大连体育中心遥相呼应
技术图纸
_

◎一层平面图

◎二层平面图





◎立面图

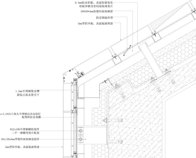
◎铝合金屋面转角节点

◎弧形璃幕墙节点

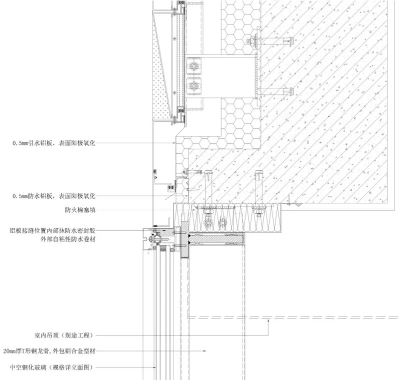
◎铝板与玻璃幕墙交接节点
工程档案
项目名称丨大连万科翡翠都会
业主单位丨大连万科置业有限公司
项目位置丨大连市甘井子区南关岭街道云岭街西
建筑设计丨上海日清建筑设计有限公司
设计总负责丨任治国
设计团队丨黄筛华 卢冉冉
甲方设计团队总负责丨赵欢
甲方设计团队丨侯清扬 高韦 徐安彤 龚俊 宋学洋
用地面积丨14831㎡
建筑面积丨1743㎡
景观设计丨PDS 派澜设计
室内设计丨于舍 YU STUDIO
设计时间丨2018.10-2018.12
竣工时间丨2019.5
建筑摄影丨行知影像
内容转自:梅吟雪飞凤
©版权声明:平台尊重作品版权,精选作品均已注明作者和来源,网友分享作品属于原作者所有。
若涉及版权问题,请及时联系我们删除或修改。如需转载、链接、转贴或以其它方式使用本稿,须注明来源作者。