
太湖新城一号地块A地块(商业二期)
开发建设项目规划设计方案批前公示
(华润&新鸿基-万象城2期) 项目概况
太湖新城一号地块A地块位于无锡经开区万顺路东侧、金石路北侧,建设单位为华润新鸿基房地产(无锡)有限公司。A地块可建设用地面积约236052.5平方米,本次为商业二期,主要建筑功能为商业、办公等,总建筑面积约10.21万平方米,其中地上约7.12万平方米,地下约3.09万平方米,各项指标符合规划设计条件要求 (详见附图)。



无锡派克新材料科技股份有限公司研发中心
建设项目规划(建筑)设计方案批前公示
项目概况
该项目位于滨湖区胡埭镇联合路30-1号,建设单位为无锡派克新材料科技股份有限公司。用地范围东至联合路,南至华星电力,西至直湖港,北至派克特钢,可建设用地面积约55568平方米,用地性质为工业用地。本次报审方案,总建筑面积约11835平方米(含地下建筑面积),容积率、建筑密度、绿地率等相关指标符合规划要求。


无锡市中心城区控制性详细规划
城中-北塘-惠山-盛岸管理单元动态更新批前公示
规划简介
1、规划范围
城中-北塘-惠山-盛岸(CZ-BT-HS-SA)管理单元:西至规划广惠路-盛岸路-惠峰路,南至锡惠山,东、北至京杭大运河,总面积约4.19平方公里。
2、更新内容及理由
(1)优化体育设施布局。将凤翔路以西、盛岸路以南的小学用地(A33a)和零售商业用地(B11)调整为体育场馆用地(A41)。
(2)优化教育设施布局。将凤翔路与运河西路交叉口西南侧商住混合用地(RB)和体育用地(A4)调整为小学用地(A33a)和街旁绿地(G1c),并相应调整路网。
(3)优化教育设施布局。将通惠西路与运河西路交叉口西南侧商住混合用地(RB)调整为幼托用地(Rax)。
(4)维护现状市政设施。按现状维护盛岸路北侧供电用地(U12)。

无锡市中心城区控制性详细规划
城中-崇安-崇三-上马墩管理单元动态更新批前公示
规划简介
1、规划范围
城中—崇安—崇三—上马墩(CZ-CA-CS-SMD)管理单元:东至江海东路、南至太湖大道、西至兴源路、北至锡沪路,总面积约3.03平方公里。
2、更新内容及理由
(1)优化主干路沿线用地,将兴昌路东侧局部二类住宅用地(R21)调整为商业用地(B1)和沿路绿地。
(2)优化教育布局,调整锡沪路以南商办混合用地/商住混合用地(BB/BR)的用地布局,并将原规划小学用地(A33a)调整为初中用地(A33b)。
(3)优化用地布局,将塔影路以南、长江路以东部分幼托用地(Rax)调整为二类住宅用地(R21)。
(4)优化教育布局,将塔影路以南、长江路以西部分二类住宅用地(R21)调整为幼托用地(Rax)。
(5)优化交通组织,调整部分道路线形。


无锡市中心城区控制性详细规划
城中-南长-清名桥-清扬管理单元动态更新批前公示
1、规划范围
城中-南长-清名桥-清扬(CZ-NC-QMQ-QY)管理单元:北至太湖大道,南至金城路,西至清扬路,东至古运河,总面积约1.6平方公里。
2、更新内容及理由
(1)提升片区文化功能。将金沟桥路以南、塘泾路以西部分住宅用地(R21)调整为文化设施用地(A2)。
(2)调整道路线形。调整沁扬路(金钩桥路-南长街)道路红线宽度,同时将跨河桥调整为人行桥。


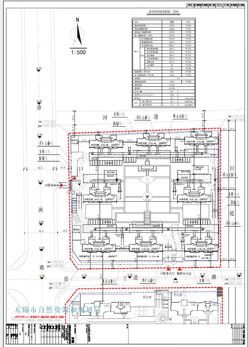
榭丽花园E区地块安置房(保障性用房)项目
规划设计方案审查批前公示
项目概况
该项目位于城铁惠山站区,建设单位为城际铁路惠山站区管理委员会,用地位于洛洲路与前进路交叉口东北侧。规划用地性质为居住用地,地块可建设用地面积30594平方米,本次报审方案总建筑面积约14.02万平方米,主要设计内容为8栋高层住宅、2栋配套用房及地下室等。



洛社片区社区服务用房新建工程(一期)
规划设计方案审查批前公示
项目概况
该项目位于惠山区洛社镇新兴东路北侧,建设单位为无锡市惠山区洛社镇人民政府,用地性质为公共管理与公共服务用地。该项目总可建设用地面积约0.74万平方米,分两期开发建设,本次报审方案为一期,主要内容包括一栋社区服务用房及一个栋机械车库,总建筑面积约0.77万平方米。


