业主小夫妻新买了一个二手房,采光不错,房型中规中矩,空间布局也“非常”合理,可这些都不是小夫妻想要的。
她们希望中规中矩的正气版两室一厅,变成创意版的新家,并且希望有开放式厨房、衣帽间、超大会客空间······总之,彻底颠覆现有的保守就对了!
案例信息
- 坐标:大上海国际花园
- 面积:90㎡(建筑面积)
- 户型:两室一厅
- 居住:小夫妻
- 硬装:12万
- 设计师:王今
- 装修公司:朗域装饰
原始房型图
很多人会觉得这个房子没问题啊,工工整整的两室一厅,可小夫妻恰恰不喜欢这份“工整”,她们说住在太过保守的房子里,自己都僵化了,所以对设计师的要求就是有创意、够新颖。

平面设计图
除了需要不一样的房型之外,小夫妻还希望能够增加衣帽间,毕竟她们是每年双11、6.18的“维纳斯”,有太多的衣物要收置。另外,需要开放式空间,厨房、客厅,要够大够通透,互动顺畅才是符合她们生活习惯的家。

在跟小夫妻的反复沟通中,得知两个人的预算不多,又对品质有着很高的要求,喜欢热闹的空间配色,结合以上信息,设计师王今给自己和施工小伙伴提出了新的要求:
1、 重细节:预算不多,细节取胜;
2、 抠施工:精益求精的施工,呈现完美效果;
3、 配色彩:分色设计划分空间,性价比高
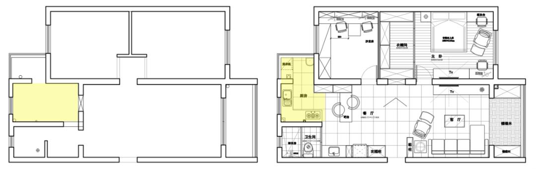
开放式厨房

▲ 改变厨房走向,将设备间扩进厨房,增加开放式厨房使用空间。

原本厨房的动线非常不合理,要经过卫生间才能进入厨房。改造后狭长的横向厨房,改成纵向L型厨房,增加了空间使用效率。

厨房细节:小厨房的材料与配色,会直接影响视觉大小的感受,避免厨房过于压抑,尽量选择明度高+冷色调材质。同时,瓷砖的材质和花纹不能过于复杂。

小夫妻心心念念的吧台终于实现了,吧台既是用餐区域,又是厨房与客厅的隔断,平时两个人在这里吃饭足够了,如果来朋友小聚,可以利用起吧台外侧的空间。
干湿分离卫生间

▲ 卫生间改成干湿分离,洗手盆挪到了外面,兼顾厨房空间。

卫生间细节:将洗手台外置,释放了马桶和淋浴的空间。同时,洗手盆还能够辐射到厨房、餐厅空间,洗手便捷。
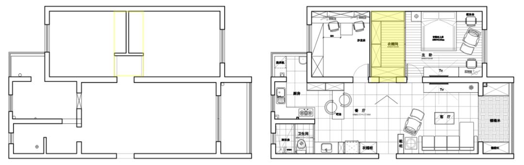
卧室增加衣帽间

▲ 把卧室相邻隔断敲掉,占用了一点次卧的面积,原本背靠背的衣柜变成大衣帽间。

改造衣帽间之后,也解决了进户门正对卧室门缺少隐私的问题。在进户门两侧设置鞋柜和镜柜,收纳的同时也方便使用。

卫生间细节:朱砂红背景墙,是故宫宫墙的颜色,热烈、大胆。很多人用色比较拘谨,怕热闹的颜色会让小空间更小更拥挤,总以为大白墙、没吊顶是最显大的。其实,小户型按照基础色70%、主配色25%、点缀色5%的法则适当增加颜色,通常情况不会出错只会出彩。

小房子间暂时是书房,以后加个床就是儿童房。预留空间细节:电源已经预留出来了,床放在空出来的一侧,正好有电源可以使用。
阳台变成榻榻米


问过小夫妻,为什么一定要将阳台改成榻榻米,小夫妻说:好玩!嗯,这个理由很充分,榻榻米兼顾了收纳和居住的功能,很多大件物品都可以放在这里,家里偶尔来亲戚小住也可以。

客厅细节:客厅灯光色温大概在4000K左右是舒适的,为了让每个角落都能有充足的光线,可以用几种灯具搭配使用。这个客厅采用的是直接外装在顶上的射灯,不需要吊顶。射灯间的距离在1.5-2m左右,如果做主要光源,距离可以近些;如果是辅助光源,可以远些。

进入卧室的门将客厅拆分的不完整,隐形门就很好的解决了这个问题,与整面墙的收纳柜融为一体,空间平缓,没有普通门框的凹陷,不会形成视觉落差,客厅显得很宽敞。
你有装修梦想,我有《最家计划》!欢迎关注我们的微信公众号“最家计划”,快速获取更多更丰富的家装信息及服务哦!
点击下方立即关注↓↓↓