

中华门前,明长城下,秦淮河畔
在南京越城天地
每一刻都是收藏文化的开始
“接手项目时,香港置地设计管理团队早已用若干平面图细思「居」的可能形态。如何创新升级以助去化?或许我应以「艺」切入。”


一面是垂杨拂袅散不开的壮志绵延,一面是碧波万顷洗不尽的浓酒笙歌。一条秦淮河,连着厚重与轻盈、豪爽与旖旎,淌过兴衰胜败,抒写南京的一体两面。万事俱湮灭,传统再好,如今也仅余形式。


品红评绿,是秦淮的风雅;纳古集今,是金陵的襟怀。我们以当代艺术着手,取源项目的文化与自然背景,将越城天地打造为一场私人Show。花木繁茂、公园林立的环境条件为这场Show确立第一主题。室内空间则以「隐」为语言,即,把建筑的存在感降低,让草木自然得到显露。

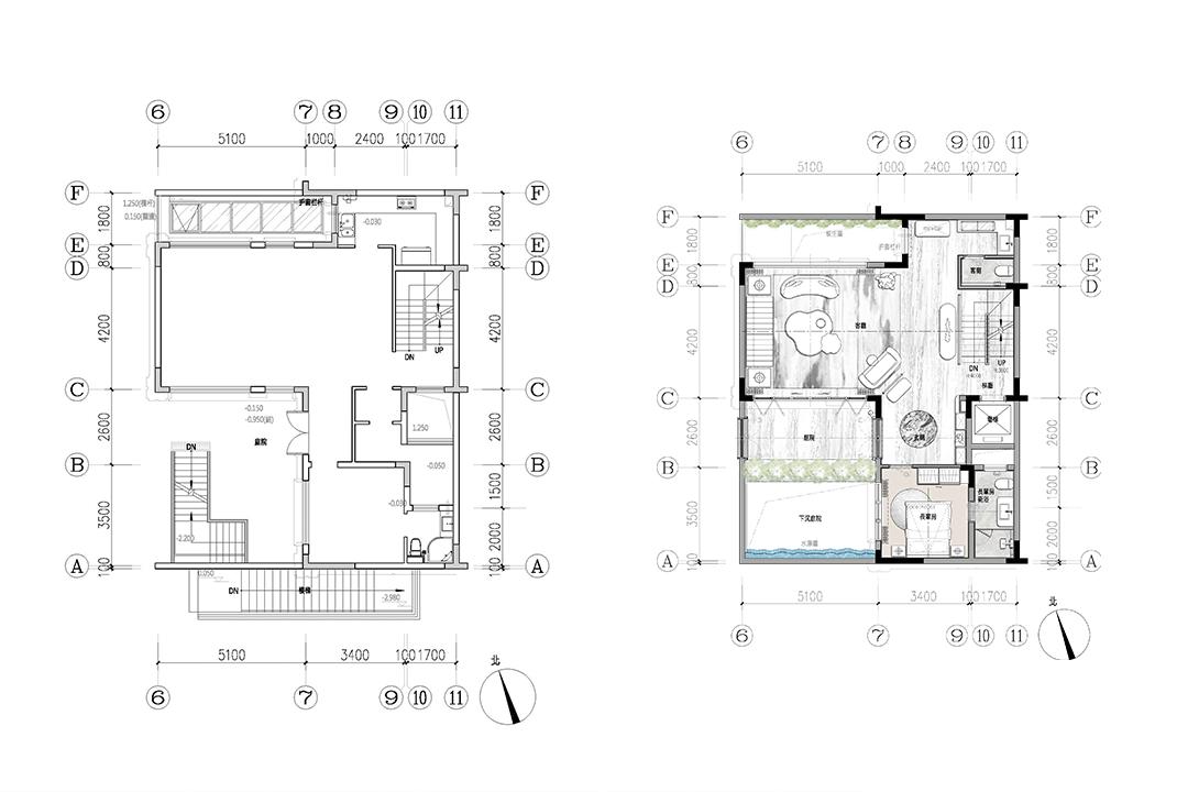
图注
上图:首层平面 调整前后对照。项目前期,我们曾尝试圆形楼梯作为空间的视线焦点,或二层挑空,增加客厅的气度,最终因结构调整成本放弃
下图:B2F-1F剖面图,背倚丛林,坐望瀑布

原始平面中通向地下的楼梯被拆除,扩出一方庭院,为地下空间带入光与景。首层空间,一条中轴线连通院门、户门至玄关,重塑归家的礼序。入户廊道一侧与客厅相连,另一侧隔植载俯瞰下沉庭院,进入家宅前便已身临「人与自然的关系场」。客厅与廊道相连处,可完全打开的折叠门取代了原有的窗,造一间「半榭」,纳一院清阴。


一面植生墙自上而下贯穿1F至B2F,以饱满纯粹的绿意作背景,为空间增加了时间的妙趣:晴窗坐对,眼目增明;隆冬风厉,百草零落;四时佳兴,皆与人同。客厅成为「雅集」之地、展览之所:艺廊式的射灯描摹着天花的弧度,有的放矢地照亮客厅中的艺术品与艺术家。屋主可凭自身喜好、随草木兴荣,更迭室内陈设艺术、调整射灯的方向,应时而赏。

巴洛克式圆形天花、Pop Medusa 休闲椅和联名款的茶几,宣告着对纯粹东方的「背叛」;Versace 的熊猫白岩板、林学明的画作、T.K Home 水云系列地毯,则以「当代水墨」描摹自然,求证一个万物被接纳且彼此相通的「公式」。一切器物皆非「孤岛」,而是融成一整片「陆地」,古今东西往来唱合。



绿在这片「陆地」蓬勃,既成为空间中的主角,亦在制造景观和艺术的过程中埋没了自己的角色,甚至为留白让道。正如它在自然界中那般,「谦让于花朵,亦谦让于自身以外的颜色」。而红,作为花的指代、秦淮楼阁的隐喻,亦在空间蔓延开来……

窗内的装饰与窗外的风景产生连接,红融于绿,人文归于自然。行至建筑的最深处,向外的张望逐渐转为内在的自省:草木与我并生,万物与我为一。


探访雅士宅邸,书房总藏于庭园深处。围植碧草、引水成池,它早已超脱藏书和书写的基础功能,成为园主的「达摩洞」和「会客厅」。至静至美,以止修禅;至亲至密,以友辅仁。


我们将这种「书房综合体」纳入越城天地,打造一处以男主人为主体,兼具工作室、收藏室、陈列室、茶室、酒窖、沙龙区等功能的生活及私密会客场所,并将车库转化为展示和改*爱造**车的Show room。植物的幽幽香气,与茶的清淡或酒醇厚相融,机械摩擦的声响与水声和鸣,原单一乏味的地下空间彻底被重塑。

图注
上图:B2层,平面调整前后对照
下图:B2层全景,车库顶部天窗与上方水院相连

自地下至上,主要的台面及地面材质大多以水为纹,雕塑、家具及装饰则以水为形或着水色。碧蓝如黛或澄明如镜,湍急激疾或潺湲流连,「水」作为秦淮河的本体,在撞击和拥抱中生成新的渐变。一个圆形天窗设于 Show room 顶部,让地下二层与上方的庭院达成连接。享受下午茶的女主人、改装汽车的男主人,透过一道光,男女相对、阴阳相合、琴瑟和鸣。

而水,亦从元素切换为实体:一道两层高的水幕墙与植生墙相对而立,将瀑布微缩于方寸之地。溅玉抛珠般的水花又凝结为室内的装饰(吧台及餐厅主灯、窗边艺术装置等),为地面、桌面纹理所绘的「静止之水」增添生趣。地下一层的平面调整同步于整体空间,取消楼梯、打除楼板、开设天窗之余,整个空间容纳着与宴饮有关的多重场景:正餐、下午茶、西餐酒会、棋牌等,随时供主人与朋友或家人围酒食而坐,啖景寻味。


一尊名为《循环》的雕塑立于首层客厅(兼展厅),它形似水带缠绕「源点」,亦道出越城天地整体艺术思考的「原点」:在典籍或史书所勾勒的历史之外,还存在一种无形流动的世界,它以艺术为形态,为所有记忆找到「原点」。





屏,在东方文化中是一个颇具艺术性的字眼。「闲倚画屏」、「歌舞屏风花障上」,屏是存在于遮、显之外的「第三态」,作为一种建筑元件和艺术形态,为空间增加朦胧的闲趣。


事实上,我们所设计的户型面积并不大,单层空间不过100平米左右,过多隔墙让有限的空间更显局促,屏便成为一种非常行之有效的空间语言。透明的水纹玻璃屏风取代楼梯间的隔墙,在满足必要的安全性前提下留出适当的空隙。光线自由在空间中流动,让建筑上下都被照亮。而光,始终是追求「天人合一」的重要媒介。

林立的隔屏成为大幅「灯罩」,成为光的容器和载体。朝晖的金灿、晚霞的橙红、灯光的温黄、白昼的清廊、往返的人影……皆呈于其上。于是,隔屏成为画屏,空间成为光的秀场。「画」中之物轮廓模糊、随时而变,引人遥想庄子的「梦幻」。立足当下回望东方美,本就应求之骊黄牝牡之外。


屏者,障也。除通透性之外,隔屏亦成为分隔和规划空间的重要道具。首层玄关处,一扇斜向的隔屏打破了中轴对称的乏味,将红色的Versace单椅和T.K Home微笑系列单人沙发隔开,亦成为玄关与客厅功能转换的标志点。



进入卧室,屏风不见踪迹,而是藏身于弧形的背板向内的环抱姿态中,床头翘脚的「顿挫」形态中,以及洄游于居室时现时隐的风景中。功能与美学之外,屏还是「藏与 Show 制衡」的实物化身。





在以「藏」(或言内观)主导的金陵文化核心地,我们让空间消隐,主导一场Show,任光、自然以及未来的生活轮番上场。面对流行潜入传统、中西相互渗透的当下,或许「与艺术共栖」不再是一种文化身份的静态象征,而是一场场随时更迭的Show,一种向外沟通的媒介……

项目信息
ABOUT THE PROJECT
项目名称 | 南京越城天地
主创人员 | 邱德光 、江晋栩、陈惠君
设计团队 | 林唯欣、张宥钧、蔡昕妤、白澍云、杜佩儒、刘谨莹、林晏辰
项目管理: | 朱晓东、何天瑶
空间摄影师 | 朱迪Zhu Di@SHADØO PLAY 无镜
撰文及排版 | Susanna Bai
空间性质 | 样板房
坐落位置 | 南京市秦淮区
主要材料 | 岩板、石材、石材马赛克、艺术涂料、木饰面、烤漆、特殊墙纸、不锈钢
家具品牌 | T.K Home德光居、Versace
饰品品牌 | Versace、Egizia、Tom Dixon、Gardeco、Aesop、Made Goods Objects
面积 | 498㎡
设计时间 | 2021年05月 至 2021年08月
施工时间 | 2021年08月 至 2021年12月


邱德光,设计师、艺术家,邱德光设计创始人暨总设计师,被誉为新装饰主义大师,中国设计界的领军人物。
邱德光四十余年来致力于两岸的尖端室內设计,以丰富的经验与深厚的素养,将装饰元素结合当代设计,开创了新装饰主义NEO-ART DECO东方美学风格,熟悉运用東方华丽、艺术、时尚元素、将生活形态和美学意识转化为尊贵身份,赋予新奢华生活新内涵,成功塑造当代东方都会美学与21世纪时尚多元的生活型态。
本案由邱德光设计提供,为授权稿件
未经授权,请勿转载