1、

广东佛山苏家自宅项目
建设地点
广东佛山
尺 寸
面宽26.0米 进深17.0米
建筑面积
363.0㎡
项目概况
业主比较欣赏传统文化,对我们之前的中式建筑也比较认可,在前期沟通中我们根据业主的喜好以及建筑所在的地域特色,推荐业主选用比较传统的徽派建筑风格,或者简洁的新中式风格,在考虑实用性和建筑施工难度等因素后,最终我们确定了简洁的新中式风格。

△总平面示意图
项目场地的南侧,西侧都有邻居,北侧为空地,东侧为村落内的道路,考虑到这个因素,我们将主要的采光朝向选在南侧,并在基地南侧让出庭院,保证房屋采光不受邻居影响,而东西两侧也相应退让了一定距离,保证两侧附属用房的基本采光需求。
图纸设计
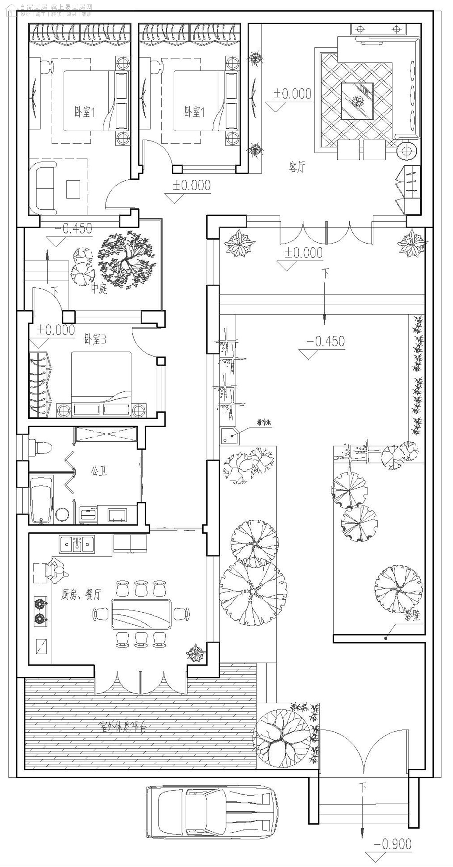
院落的入口我们设在院落东侧的南端,这样入口与前庭院有较好的结合。为了方便业主的起居,我们在院落大门与建筑入口之间设置了长廊。整体建筑采用了类似“U”字型的布局,增加了50%的南向采光面。

△一层平面图
我们为一层的老人房,两张床的亲子房和客厅布置了南向采光。餐厅与客厅相隔离,避免了就餐的油烟对客厅环境的影响。餐厅与厨房结合紧密,双扇推拉门使厨房异常通透,“U”字型的橱柜布置型式使用率较高。就餐桌东侧正对内庭院,有着良好的就餐环境。通往二层的楼梯我们设计为“L”型,是最节省空间的楼梯型式。

△二层平面图
二层的布局与一层基本一致,墙体的对位会使得结构成本大幅下降,我们将客厅对位的空间设计为二层露台,不仅使用起来交通方便,也避免了对一二层亲子房南向采光的过多干扰。餐厅对位的空间我们设计为二层的起居室,位置居于房间中心,与半开敞的书房空间相互渗透,形成一个舒适的阅读起居区域,门厅对位的空间我们设计为一间独立的棋牌室,尺寸面积恰当,不受外界干扰。
造型设计
根据业主所在区域以及业主自身的喜好,我们为其推荐了徽派建筑风格和新中式的建筑风格,最终在权衡利弊后选用了有造价优势和更加现代的新中式风格。

△鸟瞰图
立面材质上我们选用了白色的真石漆为主,辅以灰瓦,在窗户和其他细节上多选用木制材料作为装饰。

△鸟瞰图
整个庭院被分为南北两个主要的部分,南侧的庭院较大,设计有休憩的阳光房。北侧的庭院更加独立,是三面建筑环抱的内庭院,更易于打理出良好的景观环境而不受外界环境的干扰。

△鸟瞰图

△鸟瞰图
由于西侧的采光环境并不理想,所以我们将卫生间,餐厅,楼梯等采光需求较低的空间布置在西侧。

△入口效果图
围墙和入口我们延续了建筑白色主基调,灰色的檐口彰显的中式建筑的稳重清雅,木门和竹子等细节的搭配保证了建筑的高品位格调。

△庭院效果图

△庭院阳光房效果图

△庭院效果图
为了保证采光环境和隐私环境,我们南侧都是落地大窗的设计,而东西侧都采用高窗的设计。

△庭院效果图

△庭院东侧效果图
门窗的型式上我们也设计了花格等,凸显中式建筑特色。

△内庭院效果图
2、

北京通州姜家新中式别墅
建设地点
北京通州
尺 寸
面宽12.0米 进深20.0米
建筑面积
167.0㎡
项目概况

△总平面示意图
项目位于北京,基地东、西两侧与邻居家住宅紧邻,南侧为村内道路,北侧是一片空地。
业主对图纸编号567的项目极为喜欢,根据基地情况,建筑最终选择新中式风格。
图纸设计

△一层平面图
平面分为正房和厢房两个部分,两者通过廊道连接。正房客厅位于东侧,面积较大,与庭院正对保证了室内景观极佳。两间卧室相邻,与厢房间隔一个中庭。
西厢房南侧厨房和餐厅的空间相对开放,可与室外平台直接连通。天气较好的时光或用餐人数较多时,可将此处空间利用。
公卫十分豪华,采用干湿分离、洁污分离的设计,方便日常打理。同时廊道连接使得夜里使用也较为方便。
造型设计

△鸟瞰图
建筑整体为新中式风格,配色以及建材选择上都较为传统,白墙灰瓦的搭配将淡雅和简约的效果放大,使得建筑整体更为协调。

△鸟瞰图
西厢房采用平屋顶,与正房双坡屋顶存在形式和高度上的差异。同时厢房屋顶可作为晾晒谷物的场所,增加庭院使用面积。

△鸟瞰图
院门采用门楼形式增加威严和气势,门前台阶配合大气门楼,在入院位置就抬高了建筑,使得建筑在外看来更具气势。为了保护隐私性,院门后方影壁采用实体样式,“福”气入门即得。

△庭院鸟瞰图

△庭院效果图
庭院内高大树木较少,以低矮灌木为主。客厅与庭院相接平台上方增加玻璃雨棚,既不会影响采光,也能与木质平台形成呼应。

△庭院效果图

△阳光房鸟瞰图
厨房和餐厅相接的室外平台选择阳光房形式,大方通透的造型让建筑和院墙之间有所缓冲,也为业主提供了更多的使用功能。

△平台效果图

△东立面图

△西立面图

△南立面图

△北立面图
3、

北京平谷刘家新中式别墅
建设地点
北京平谷
尺 寸
面宽13.0米 进深19.2米
建筑面积
185.0㎡
项目概况

△现场照片
项目位于北京平谷,业主是位追求细节品质的人,成长生活环境使得业主对于北京四合院形式的住宅十分偏爱。整体设计时方案添加北京当地的建筑特色和业主的喜好,运用中式元素形成最终整体建筑。

△现场照片

△现场照片
基地西、北两侧与道路相邻,东、南两侧与邻居家住宅相邻。周边没有太过复杂的环境对建筑造成影响。因庭院东北角的古树业主要求保留,设计时需要解决布局问题。

△总平面示意图
图纸设计
平面布局分为前、后两部分,庭院位于基地中间位置。设计上丰富的流线将室内空间自然分割。东南角通过对景增加入院处视觉效果,竹子的节节分明也带来了吉祥寓意。餐厅与东南角休闲平台连通,丰富的路径选择方便了业主的日常使用。

△一层平面图
入户客厅正对圆窗,通透的视野带进庭院内景色,大面积开窗让室内的通风和采光能力较为突出。前院主要作为公共和辅助空间使用。
庭院部分东侧均为开放式空间,直接连通前、后院,水景等景观设计在西侧。
后院部分布置有三间卧室,主要用作起居空间使用。因为东北角古树无法移动,后院设计一个小型庭院,增加了整体的景观面积让后院卧室享受更加良好的视野。
造型设计

△鸟瞰图
业主对于北京传统四合院极为喜爱,立面设计基调由此确定。建筑采用合院元素,配合粉墙黛瓦的淡雅,将中式韵味在基地范围内散发。

△鸟瞰图
前院平顶空间利用起来设计为儿童使用的足球场,建筑提供的丰富使用功能,提高了业主整体生活品质。闲暇时与孩子在此处运动一下,流汗的同时享受亲情带来的愉悦。

△鸟瞰图

△通廊效果图
庭院水景紧邻通廊和楼梯,相对私密的空间让幽静的感觉自然产生。鲜花与奇石的点缀减弱水景处的人工痕迹,自然的感觉弥漫在庭院水景处。

△东南角休息平台效果图
院门正对的东南角休闲平台通过月亮门形成幽静空间,搭配的石凳石椅与景观竹打造静谧氛围。形如满月的门洞中透出的诗意韵味传递到入院路径中,打造景色精致的空间。

△楼梯效果图

△通廊效果图
前、后院之间通过钢结构通廊相连,南、北向全部采用玻璃门以增加庭院通透感。通廊与室内窗户相对,视线的宽广和大面积开窗让室内空间感得以扩大,良好的视野景色与光线让空间充满阳光感。房屋的居住体验更佳。

△通廊效果图

△北侧庭院效果图
院门采用深褐色木材,搭配简约的装饰打造深邃庄重的入院氛围。院门被青砖包裹,北京传统建筑带有的历史文化厚重感也被表现得淋漓尽致。

△院门效果图

△东立面图

△西立面图