视频加载中...
业主 ▶
文艺女青年+足球达人+4岁哥哥+1岁弟弟,幸福的四口之家。
女主负责管理家庭(小事自己定夺,大事商量决定),男主负责支持与执行,这次新家的工作分配也是如此。
设计师 ▶
薛东,同事眼中的“薛老师”,朋友眼中的“东哥”,平静的外面下有一颗追求完美的心,他常说:“真相只有一个,心中的理想家也只有一个,不是你不知道,只是你没有察觉而已。”他认为设计师应该协助业主完成打造“理想家“的通关,真正的“设计师”是业主自己。
设计沟通 ▶
经朋友介绍,业主对DE有一定的了解。对于新家的风格没有具体要求,经过与设计师的深入沟通,最终确定为以功能为首要考虑的现代北欧风格。第一次与设计师沟通时,便与设计师达成了共识:在合理运用空间的同时,把室内空间成长的可能性考虑进去。
户 型 改 造
本套案例本身户型方正,但房屋功能分区需要重新布置,所以设计师对空间进行了重新规划:

一层原始结构图

一层平面布置图
一层为公共区域,满足了客厅、餐厅、厨房、卫生间等基本设置之后,还留出了多功能房:
● (绿色)拆除客厅靠卧室的隔墙,形成宽敞的客厅空间;调整厨房动线关系,厨房形成最实用的U字形布置;门厅形成独立空间,兼具储物功能。
● (橙色)孩子的成长活动空间尤其重要,因此设计了独立的玩耍阅读区。

二层原始结构图

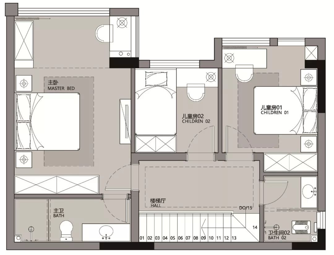
二层平面布置图
二层客厅与阳台的挑空区域全部现浇出来,拆除二楼除卫生间以外的所有墙体,重新布置空间,形成三个卧室,两个卫生间:
● (蓝色)主卧与阳台联通,保证充分的阳光与通风,靠近窗户的区域为休闲区,随着业主的需求变化可以在这里实现多种功能的变化。
● (黄色)中间卧室预留给弟弟使用,空间虽然不大,但使用功能齐全。
● (紫色)最右侧为哥哥的卧室,拆除飘窗与空调机位,既扩大了空间,也在卧室内形成一个独立的学习区域。
● (红色)扩宽楼梯间空间,既让空间变得宽敞,也形成一个小公区,可以根据需求调整与变换。
楼下公区、楼上私人空间的布置,满足了业主现在需求的同时,也兼顾到了以后需求变化的可能性。
色 彩 搭 配

客 厅

木色饰面板作为沙发背景墙,让客厅显得温暖而宁静,搭配灰色布艺沙发,再挂上一幅抽象梦幻的装饰画,点亮整个空间。简单而不失格调的设计,凸显出现代北欧风的魅力。

整个客厅舒适而休闲,与浅灰色墙面呼应的楼梯地砖,增加了空间的层次感,楼梯下方利用起来作为储物,美观和实用兼具。

玄关与客厅衔接处的绿植,彰显空间的生机与活力

落地灯与窗帘营造浪漫温馨之感
餐 厨

餐厅与客厅只隔着矮柜,横厅的格局让空间显得宽敞明亮。客厅与餐厅之间的自然过渡,最大程度上释放出现代北欧的柔美和静谧。


在处理厨房和餐厅的关系时,业主提出既想要开敞厨房的感觉,也想要封闭厨房的实用,设计师采用隐藏式暗滑门的方法满足了业主的要求。
儿 童 玩 耍 区

儿童玩耍区未作过多的处理,在保证现阶段孩子们休闲娱乐活动的同时,尽量让空间显得开敞,后期业主可以根据自己的需求,让空间合理的成长起来。
主 卧


简雅色调的卧室,沉稳的深木色木饰面给人品质感,再搭配上柔软的棉花糖色内饰和银色家居,点缀上金属色泽装饰品,让空间简约舒适而又沉稳大气。

卧室的临窗区域设计了阅读休闲区,一本书、一杯茶,也是平淡生活中意想不到的乐趣。
儿 童 房

弟弟的房间


哥哥的房间
弟弟的房间相对较小,但收纳也不能少,和哥哥的房间一样,设置了专属衣柜,男孩们的衣物完全足够存放。两个儿童房均设置了遨游太空的卡通场景,寄托着屋主对孩子们美好未来的期望。
卫 浴 空 间


浅灰色石材纹理的瓷砖,或金色线条、或大面积木色的洗面台柜体,与整个空间的木色相呼应,形成别致的视觉感受。
项目丨Location:巴南珠江城
面积丨Square meters:130㎡
户型丨House type:跃层
风格丨style:现代北欧风
硬装设计丨Structure:DE设计事务所-薛东
软装设计丨Decoration:D.ART软装服务中心-杨迎
施工团队丨Project:DE工程中心