第4章 防雷接地工程图
目录
4.1 防雷与接地工程概述
4.2 建筑防雷与接地工程图
4.3 变电所接地工程图
4.4 接地装置安装与调试
学习要求:清楚雷电的产生与危害、防雷接地的措施及组成;能够熟练阅读建筑防雷接地工程图、变电所及设备接地工程图,熟悉接地装置的安装与调试的内容与措施。
4.1 防雷与接地工程概述
一、雷电对建筑物及构筑物的危害
雷电对建筑物的危害:雷电是常见的一种自然现象,即天空云层间一种放电现象,雷击时释放可观的能量,从而使受雷击的物体遭到严重损害,具体表现在以下几个方面:
①雷电对地面产生的直接雷击;
②感应雷击;
③雷击产生机械力;
④雷击产生跨步电压跨步电压。
建筑物易受雷击部位:建筑物的性质、结构及所处的位置等决定受雷击的程度。如:屋面、屋脊及突出高的建筑物等。

二、建筑物的防雷措施
建筑物的防雷措施是根据工程性质和发生雷击部位后所产生的后果来分类。
民用建筑:是依据建筑物、构筑物的重要程度和建筑物、构筑物的高度不同划分为一级 、二级、三级三类。并分别采用一级 、二级、三级防雷建筑物的保护措施。
工业建筑:是依据生产特点和发生雷击部位后可能产生的后果划分为一类 、二类、三类。并分别采用一类 、二类、三类工业建筑物和构筑物的防雷措施。
防雷设施:用来消除雷击和雷电产生的过电压对建筑物和变电所及设备绝缘的危害所采取的保护设施,即接闪器和避雷器(经过引下线与接地体可靠的连接)。
防雷措施:
①建筑物的防雷;
②变电所的防雷;
③高压电动机的防雷;
④架空线路的防雷;
⑤消雷器。

二、建筑物的防雷措施
建筑物防雷的主要措施:
①装设独立避雷针,通过引下线接地。
②装设避雷网、避雷带,通过引下线接地。
③利用建筑物的结构组成避雷网及引下线。
④利用电缆进线以防雷电波的侵入。
防雷装置的组成:由接闪器、引下线、接地体三部分。
①接闪器:避雷针、避雷网、避雷带及均压环;
②引下线:引下线及保护管、断接卡、接线板、支架;
③接地体:接地母线、接地支线、接地极、接地板。





三、建筑物防雷平面图
避雷针保护范围图:
① 折线法表示避雷针保护范围;
② 滚球法表示避雷针保护范围。
按建筑物类别布置接闪器及滚球半径
| 建筑物的防雷类别 | 避雷网网格尺寸(m×m) | 滚球半径hr (m) |
| 第一类防雷建筑 | ≤5 × 5或≤6 ×4 | 30 |
| 第二类防雷建筑 | ≤10 × 10或≤12 ×8 | 45 |
| 第三类防雷建筑 | ≤20 × 20或≤24 ×16 | 60 |
避雷针保护范围图的阅读
避雷带或避雷网平面布置图



四、建筑物接地平面图
接地装置的构成:
①人工接地体:一般是将型钢或钢管打入地下,形成有效接地,常用的一般有钢管接地极和角钢接地极;钢管接地极一般用2.5m长φ40~50壁厚不小于4mm的钢管,顶部打入地下深度不小于0.7m,形成接地极,角钢接地极一般用L50×5角钢,顶部打入地下不小于0.7m,形成接地极。钢管、角钢接地极一般成组敷设。单根接地极间用-40×4镀锌扁钢接地母线连接形成一组。具体根数由计算确定,每组中接地极间距应为2~3倍的接地极长度,一般为5m。
②自然接地体:利用建筑物的结构作为接地体。经常作为接地体的建筑物的结构有钢结构、钢筋混凝土结构、钢筋混凝土基础、钢轨、金属管道等埋入地中的金属构件,这些构件只要安装正确,都是很好的接地体。
③接地母线、跨接线:接地母线一般采用-40×4镀锌扁钢或φ8镀锌圆钢制成。接地母线遇有障碍时,须跨越而相连接头。跨接一般会出现在建筑物的变形缝处,钢轨作为接地体时每节钢轨相连处,通风管道法兰盘连接处等。



4.2 建筑防雷与接地工程图
一、建筑防雷与接地工程概况
建筑物防雷与接地工程图:一般包括防雷工程图和接地工程图。它主要由建筑防雷平面图、立面图和接地平面图表示。
例:P158-160 图6-2和图6-3
工程概况:该建筑避雷带沿屋面女儿墙敷设,支持卡子间距1m,东西两面墙设2根引下线,距地面2m设断接卡子,引下线固定支架间距1.5m。接地体沿建筑物基础四周埋设,埋设深度0.68m,距基础中心距离为0.65m。


二、避雷带与引下线的敷设


三、接地装置的安装

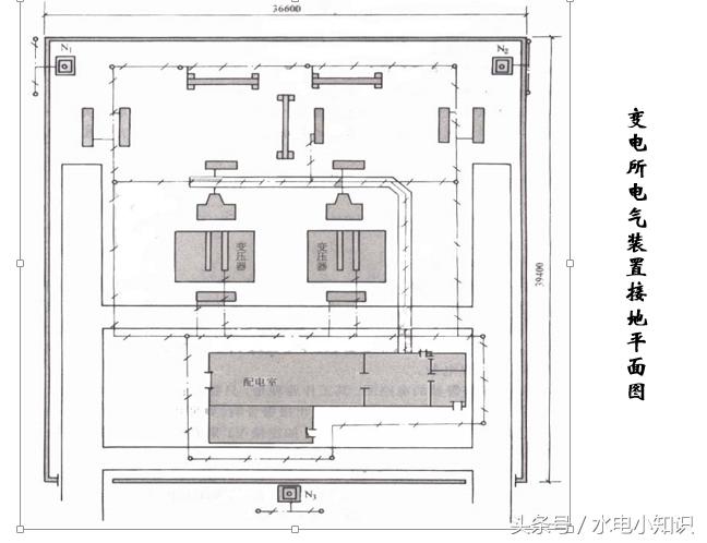
4.3 变电所接地工程图
一、变电所防雷、接地工程概况
P162图6-7表示变电所的4个独立的防雷接地装置。3支避雷针的接地装置是防雷接地用,一个有11根接地体构成的接地装置是变电所保护装置所用。
避雷针装置:用镀锌扁钢作为接地母线,连接避雷针与两根钢管(接地极),要求接地电阻≤25Ω。
保护接地装置:用镀锌扁钢作为接地干线和支线,连接镀锌钢管(接地极),要求接地电阻≤4Ω。
为了防止防雷接地装置的雷电高压反击到设备外壳,所以设计要求保护接地装置与防雷接地装置分开布置,且两者之间最小距离不得小5M。


二、变电所的防雷
装设避雷针装置,保护变电所及设备免遭雷击。
高压侧装设阀式避雷器,主要用来保护变压器,以免雷电冲击波沿高压线路侵入变电所,避雷器应尽量靠近变压器安装,接地线、变压器低压中性点、金属外壳连在一起接地。
低压侧装设阀式避雷器和保护间隙,防止多雷区雷电波沿低压线路侵入而击穿变压器的绝缘。

三、接地系统
接地装置由接地体、接地干线、接地支线组成,并和自然接地体连成一个整体。
接地装置埋入土中的深度为0.8M,与设备基础的距离大于1M。
接地装置接地电阻按电气规范规定不得大于4Ω,若实测大于4Ω ,则需另外处理。

四、接地装置的安装

4.4 接地装置安装与调试
接地装置的安装:
①金属构件支架的接地极;(人工接地)
②利用建筑物结构作接地极。(自然接地)
接地装置的调试:
①建筑物防雷接地电阻≤10Ω;
②变电所保护接地电阻≤4Ω;
③独立避雷针接地电阻≤25Ω。
接地电阻的检测方法是:用摇表检测 。
接地装置的安装:
①金属构件支架的接地极;(人工接地)
②利用建筑物结构作接地极。(自然接地)
接地装置的调试:
①建筑物防雷接地电阻≤10Ω;
②变电所保护接地电阻≤4Ω;
③独立避雷针接地电阻≤25Ω。
接地电阻的检测方法是:用摇表检测 。
降低接地体电阻的方法:
①外引式接地;(增加人工接地极根数)。
② 接地体深埋; (把接地体埋入更深的较湿土层中)。
③换土;(把电阻率高的土壤换掉)。
④增加化学降阻剂(在接地极附近土层浇氯化钠溶液等等)。
猜你喜欢
新手学习——电气图基本知识与图形、文字符号
新手学习——变配电工程系统图识读课件