项目标签
名称:深圳坪山高中园项目
位置:广东省深圳市
类型:学校建筑,钢混组合结构
标签:山水聚落,共享,运动,模数,灵活分隔。

2020年2月,中建科技中标深圳坪山高中园项目(设计)。
项目位于深圳坪山区碧岭街道沙湖社区,北至规划夹圳岭南路,东至规划复兴南路,南至振碧路,西临坪山河,占地面积约20.2万平方米,是深圳市首个共享型高中园。
设计立足于场地周边的自然和人文文脉,规划了“山水聚落”的高中园区。

本次规划一共有三所高中,除了教学部分独立管理外,其他功能实现共享,成为一座共享校园。

校园利用周边道路10米左右的高差,形成双层设计,为同学们提供了充足的活动场地。提供1 个国际标准泳池、3 个体育馆、3 个400 米标准跑道、1 个300 米跑道、1 个自由慢跑道、1 个标准田径+足球场、18 个篮球场、9 个排球场兼羽毛球场、13.5万平方米自由露天活动场地、4.5万平方米架空自由活动场地,2.2万平方米运动场地,总活动面积20.2万平方米,做到活动场地100% 覆盖

双层校园设计

运动空间规划

标准体育场

带400米跑道的运动空间

带400米跑道的运动空间
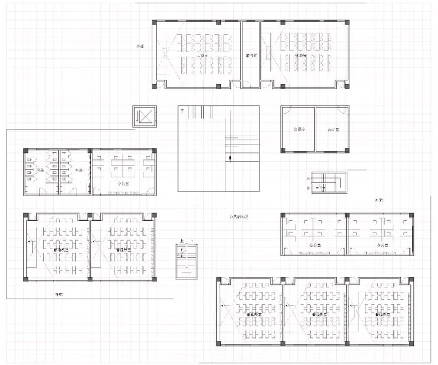
教学空间围绕公共阅览空间展开,南向布置为教室、北向为实验室,教师办公室分散在各层中,利于课间师生交流。首层布置专项教室和其他活动空间。
每组教室预留灵活分隔条件,未来可以适应教学课程改革的需要,灵活分隔成40、60、80、100、120平方米等不同的教室。
本项目采用模数化标准设计,采用9000mm 柱网,并形成600mm的二级网格,控制建筑构件尺寸。

阶梯屋顶

阅览中庭

模数网格平面

普通教室模式

大选修课模式

小选修课模式

模数控制下的立面构件

项目总平面图
设计团队
方案设计:徐牧野 杨曦 王硕 谭学莹 朱晓亮 郑盼盼 郭红艳 刘裕盈 李赛 王阳
方案配合:
结构:王浩(大)
给排水:王海卿
暖通:吕学勇
电气:李善玉
景观:赵渝宁
绿建:石卉
(图文源:中建科技官方公众号)