
文丨子木团队
前段时间,我写过两篇文章,《北京限竞房购房报告》和《500万在京购房策略》,想让大家对北京房地产格局,有一个宏观层面的了解。
然而从后台留言来看,显然是低估了。
因为大家早已步入了「中阶」领域,对购房最大的疑问,早已不是地段方向上,而是聚焦在具体楼盘上。例如:
“子木老师,你认为XX楼盘怎么样?“
“XX和XX比,哪个更好一些?”
“我就这点儿钱,买XX的性价比如何?”
当然,涉及到楼盘的评测,其优劣点,性价比,升值潜力等,必须要经过线下实地踩盘才能得知。
所以这次我选了北京朝阳望京三家即将开盘的项目(丽都悦府,华樾北京和中海望京府)做分析标的,结合实操经验,分享在下面的踩盘日记中。
1
准备工作
当然踩盘也是一门艺术,你得会看、会问、会谈判,还得将《演员的自我修养》,了然于胸。这里具体不展开,可以看我之前的文章《售楼处的猫腻》。小白客户可以做到以下几点准备。
1.时间。这次选择周一下午出来踩盘,有一个好处:容易根据楼盘内的人流判断其销售预期。因为周末是热点时间段,人多难以分辨,有的新开楼盘还会花钱雇演员。第二个是,周一售楼处经纪人时间充裕,不偏客,能实实在在回答你的问题。
2.时间段。对于时间段的选择,最好选在下午2点到5点30之间。因为售楼处上午多半在开会,中午是休息时间段,5:30之后又是经纪人下班疲倦期。
3.在看盘之前一定要通过网络渠道对所在楼盘有一个基础性了解,例如它的位置,周边有什么东西,产权年限,开发商是谁等等。有的网站上还有对楼盘的相关评价,尤其是不好的评价,一定要记录下来,到时候去问经纪人。
2
丽都悦府
选择丽都悦府,是因为它的位置的确很好。位于北京东四环丽都商圈的核心区,紧挨着四元桥。因为从2017年开始,北京4环内不再批地,这让四环新房屈指可数,这个项目的整体价值就凸显了出来。

当然北京四环,各项配套设施都已成熟,尤其丽都悦府所在的商圈,属于涉外生活圈。在北京,涉外生活圈的生活配套一定要优于非外涉,原因你懂的。
交通上四环很便利,开车三环四环五环,机场高速,京承高速多条交通要道。缺点是离地铁比较远,售楼处给的距离是800m,但实际上是1.1公里。1.1公里的地铁很鸡肋,属于步行很累,打车还贵。步行到地铁起码得15分钟,而打车如果遇到高峰期,很误事儿。

涉外生活区其他配套都没问题。上学有两所国际幼儿园,450m外还有清华大学附属中学,当然这个中学虽然挂着清华头衔,实则内部教育质量分化较大,生源质量一般。
购物不用多说。亮点在于小区旁边紧挨着两个公园,四得公园和丽都公园。其中隔条马路,75%绿化率的四得公园很出名,茶余饭后来跑个步,生活品质显然提高了。而且也会直接影响到房价。在北京,同类型公园房要比非公园房每平米成交均价要高出1000块左右,这个大家要注意。
说完好的,咱们来挖掘它的缺点。
说实话网上的信息大部分都是对项目的修饰,都是开发商想让我们看到的一面。然而楼盘和人一样,都有优劣两面,和人无完人一个道理。一开始在网上查不到关于丽都悦府的项目信息,例如产权、拿地时间、建成时间、甚至户型这些,让我很疑惑。
所以到了售楼处我直接跑到项目信息公告栏寻找答案。不出所料,的确有隐藏。
丽都悦府是塔楼结构。塔楼是北京十几年前开发商最喜欢做的产品,因为空间利用率高,一层多户,可以多卖钱。缺点很明显:牺牲了户型。
我们来分析一下丽都悦府的户型。

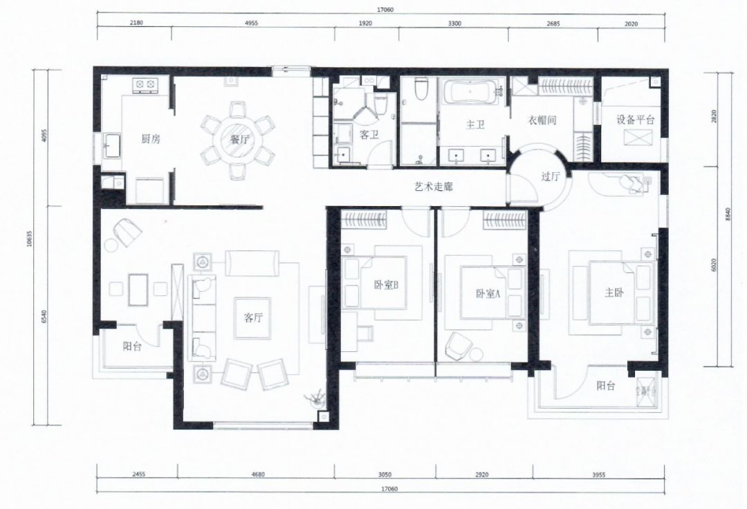
丽都悦府215㎡(3室2厅2卫)户型图(左上方为正北)

丽都悦府187㎡(3室2厅2卫)户型图(左上方为正北)
拿上面187㎡的户型举例,明显看到,房子南北不通透,且北开南闭,意味着什么?全天没有阳光,很可能阴暗潮湿。开发商给的宣传语,“Top级观景视野,270度观景窗”也无法覆盖这一缺陷。
而且处在朝南的房子,户型面宽也较窄,进深较长,不利于阳光进入,且家具的摆放也会很纠结,远不如方正户型。即使是215㎡最优户型,也是单通透,这会让如此大平米的房子住着很压抑。
不过换句话说,虽然这个户型对于当下板楼时代,不具备优势,但对于过去也算是半个精品。之所以塔楼建成十几年,现在才开盘,也是有原因的。打听了几个业内朋友,有的说是产权问题,有说是外挂墙质量出现问题,一直整改到现在。
丽都悦府楼盘开盘时间受“大庆”影响,还没有具体时间,但开盘价格已确定,8万~12万/㎡,而且都是大平米,160-220㎡的大平层和260-290㎡、340-360㎡的复式。那么折合总价,最低为1280万。
建议:户型不好,阳光差,如果不是对位置有特别要求的,不建议入手,而且房子是十几年前的设计风格,外观有点老旧,影响未来换手率。
3
华樾北京
丽都悦府之后,马上驱车赶往北面的华樾北京。位置在北5环外的广顺桥出口处。
这个盘的售楼处藏的很深,开车转了半大天才找到。原来是把售楼处和样板房开在了项目旁边的写字楼里。据经纪人说,每年光租金就1500万。

惊叹现在的开发商赚钱真容易,房子打个地基,建一个售楼处和样板房,就能对外宣传认筹了。这里要注意,期房目前还是市场绝对的主流,大家在买房时一定要查清楚开发商的背景,以免买到烂尾。当然华樾北京不用担忧,因为是首开和金地联合开发的高端产品,而且首开是老国企背景,资金链稳的狠。
来之前,华樾北京在网上的热度是很高的,探盘下来,结果名副其实。

第一个亮点在交通,华樾北京项目门口紧挨着善各庄地铁站,可以算得上是0距离出行,标准的地铁房,14号线可以覆盖三大商圈:望京商圈,将台商圈和南面的国贸商圈。这些地方的购房者均可以上车。
第二个亮点在环境配套。华樾是标准的公园房,北京小区以北,过条马路就是20万平方的宏昌竣体育公园,篮球、羽毛球、网球、卡丁车场馆先已对外开放。这个比四得公园显然要大一些,体育休闲项目也要多一些。
第三个亮点,也是华樾北京最大的价值点——距离阿里总部800米。
影响房价的因素有很多,最大的可能就是产业了。北京西二旗,上地,西北旺,望京,国贸……这些都是典型的因高新产业入驻而崛起的地段。未来阿里北京总部落成,也意味着即将会有上万名高新员工入驻此地。而阿里入驻之后,又会有一大批阿里的合作企业相继跟进入驻附近的写字楼,又是一个庞大的人才进量。

那么按照就近置业原理,望京最后一个住宅项目华樾北京,大概率会成为阿里人的首要置业标的,房价潜力的预期可以说是非常稳定。
华樾北京属于限竞房,目前报价在7.8万/㎡左右,2022年12月30日前交房。近期开盘对外预售的有89㎡的3室2厅,和140㎡的3室2厅2卫,总价约700万起步,首付300万,月供25000,能买到89平米的房子。
至于华樾北京的缺点,也有。
1、89㎡产品的户型。89㎡做三居,的确是紧凑了点儿。华樾北京的三居小户型设计就让人看着很尴尬。
华樾北京89㎡(3室2厅1卫)户型图
一是进深太长,光照距离有限,中间的位置不讨好。二是进门正对厕所走风水,虽然有玄关格挡,但是卫生间和主卧之间夹了厨房和客厅,没有动静分离。三是书房很鸡肋,面积太小而且是和儿童房搭配。所以这个把书房作为一居还不如打通了格局,和卫生间搭配,做个大次卧。不过140㎡的户型还是过的去的。

华樾北京140㎡(4室2厅3卫)户型图

华樾北京140㎡客厅实景
2.简装交付。一开始从网上了解到是精装,但问到这一步时,经纪人对这方面描述模棱两可。可以确定的是,华樾北京是按照简装标准交房,基本上是“四白落地”,如果有装修需求,还需要支付一个精装包的钱。说是出于限价把利润打没了,开发商无法做到赠送精装。
3.商业配套。项目离大型商超较远,基本是和南面的望京商圈享有一套商业,例如四环外的宜家、华彩中心、凯德Mall、新荟城、望京新世界等等。但这也不算大问题,按照规划,小区自带商业,还有两栋写字楼,写字楼底带有商铺,将来入驻的小型时尚商超可以解决日常生活。不过商业配套可能不再是主流影响因素,因为现在吃的喝的,网上都买了,谁还会花时间去逛大商超。
这可能是我找到此项目盘仅有的缺点了。虽然是周一,但华樾北京售楼处的人流不少,经纪人也很实诚。此行收获不少。
对于此项目盘建议,望京区域的工薪年轻人着实可以考虑,尤其是未来在阿里北京新总部附近上班的,有条件的要尽快下手。
3
中海望京府
接下来最后一个盘,选在了中海望京府。
中海望京府也属于近期网红盘。位置在朝阳区观唐东路中段,也是中央别墅区的核心。

说起别墅居住区,基本上有几个特点:
1.安静。别墅区容积率低,绿化高,人车分流,种种设计都在给业主营造静谧安适的居住体验。而且周边居住人群的素质相对较高,彬礼尔雅,也是安静的一种。
2.配套高端。别墅人群对教育配套尤为重视,周边的学校基本国际化。例如中海望京府旁边有京西学校,法国国际学校,蒙台梭利国际学校等等。其次是高端休闲项目,例如高尔夫球场,马术俱乐部,高端休闲会所等,一应俱全。
3.地面交通发达。别墅一般都在郊外,且乘车出行便利,与市区路程时间较短。但离地铁较远,所以项目推广一般不拿地铁做文章。
有了这些基础认知,对中央别墅区的房子就不再陌生了,而且在此买房的人也要定位自身财富与生活成本的匹配程度,这点很重要。我有一个朋友非常喜欢别墅,可以说得上是痴迷,前几年开厂子赚了点儿小钱,就东借西凑买了套别墅。
但是后来厂子遇到瓶颈,盈利下降,现金流开始窘迫。而这时候他孩子已经上了旁边的国际学校,家里还请的保姆,还有天价物业费、取暖费,老婆还跟周边的邻居比东比西,一年下来房子带来的环境作用都快把他压垮了。
到达中海望京府已经是下午5点多了,售楼处的经纪人看着很松怠。不过有意思的是,中海望京府售楼处开在了幼儿园里。细一打听,原来这个幼儿园也是项目配套的组成部分,现在用它做售楼处,可以省下一大笔开销。
中海望京府第二期即将开盘,目前处于排卡阶段。据售楼处经纪人说,上一期总共释放了200套房源,共1000人抢房,这一期释放280套,目前排卡已经达到717组,其中171组准备全款购房,这也意味着接下来如果有人想买这里的房子,是否能买到,买到是否能*款贷**都是未知数,总之一个字,火。

那么为什么这么火呢?可以归结为两点。
1.对周边房价的相对利差。中海望京府也属于限竞房,按照目前主推的产品,139㎡平层总价在1050万左右,折合均价为7.5万/㎡左右,而且还是精装房,基本除了家具家电,软装配饰灯具窗帘,其他都有。而隔壁的小区,观唐房价为10.9万/㎡,香江花园为9.5万/㎡。存在天然利差。买到即赚到刺激了购房者的投机心理。

2.品质。在京城,中海建筑是排得上名次的。无论是科技人居,绿化景观,还是社区自有配套设计,都可圈可点。说几个亮点。一是中海望京府小区地面上不走车,所有车进门直接走地下,保证了小区的安全和静谧。二是小区自带幼儿园和大型养老院,全龄一站式配套。三是户型很强大。
中海的户型,是京城公认的第一。

中海望京府139㎡客厅实景图

中海望京府139㎡(4室2厅3卫)户型图
例如139㎡的户型。全南朝向,全通透,明厨明卫,动静分离,主卧放在最深处,配豪华卫生间,私密性强,老人房旁边还有洗物间,无论居住管理还是人居体验,都是非常合理的。
此次开盘项目主推联排小洋房,户型全部一致,共4层。顶层售价1080万,中间2-3层售价1050万,首层售价950万。首层比较有意思,下跃式户型,1层80㎡,下跃110㎡,送-2层储物间,还带花园,经纪人所言,总共300㎡的使用面积,相当于一个小叠拼。
不过作为看盘这么多年的选手,经纪人哪些是真话哪些是假话还是能看得出来的。例如跟我说得房率高达93%,这个有出入,根据面积可以计算差不多是80%以上,93%有些过分。第二是关于排卡,717组,171组全款,而且声称手上的客户在排队抢房。
如果房源如此紧缺,那估计连带我看样板房的动力都没有。事实上,加了微信后,这几天一直在问我考虑的怎么样。除此之外,中海望京府还需要注意几个问题。
1.装修风格和户型比较有局限性。因为是精装修样板交房,基本统一,几乎没有可选择性,对装修有需求的还需要进行大改造。
2.地铁距离很鸡肋。和丽都悦府一样,中海望京府距离最近的马家营地铁站大约1公里,步行15分钟,不开车出门不方便,对于上班一族很麻烦。
3.中海望京府以国际教育资源为主,公立中学只有温榆80中,质量一般。对教育资源有要求的慎购,如果想选择公立学校,这里就不合适。
最后关于此次看盘,再总结一下。
朝阳望京新房高端化,这是土地稀缺影响下的必然趋势。基本楼盘品质都不会太差,主要还是看钱包的厚度。三个待售盘中,其中丽都悦府因为开发年限较长,户型和楼品一般,但位置好,适合附近上班的人群,房价增值潜力一定。
华樾北京的价值,会随着阿里落地和周边配套设施的成熟,与日攀升,是这三个盘里房价潜力最大的,非常适合周边上班的年轻人。
中海望京府的话,对于有条件的购房者也是不错的选择,高档人群中,显得自己格调也高了,而且全龄配套设施,三代共住会让性价比更高一些。但前提是你有1000万的现金,否则还是别去凑热闹了。
除了这三个盘,朝阳即将开盘的还有富兴首府,泰禾北京公馆,江南府,这些盘抽空我还会去看看。
以上是我的踩盘报告,大家可以在下方留言,对哪些盘感兴趣,下一期我们继续给大家奉上北京其他楼盘的深度评测。