奢华的家要有安静的感觉,触动心灵深处。
——安藤忠雄
想学习室内的,可以关注我 私信获取室内设计,效果图学习,施工图深化视频一套哟

搜模型
在这个钢筋混泥土的现代都市中,家成了最温暖的港湾,而人们对于生活的居所,总追求着一种不刻意的奢华, 聆听“推开门外是人间烟火,关上门后是遗世独立”的生活诉求,设计师感知空间所赋予的美,演绎出现代都市美学与生活意境的居所。

金属质感与柔和灯光,石材与木材的天然纹路,这些阳刚与阴柔的元素融合在一起,营造出一个动静相间,富有活力的空间。

客厅与餐厅呈开放式的格局,一气呵成。设计师运用胡桃木贯穿整个空间,细腻缜密的木与金属提升空间的整体气质,暖一分则俗,冷一分则素,别具心匠的运用大理石作为大面积的铺垫,其天然的不规则线型延展出不同层次的空间视觉,暗生波澜。

设计师怀着对生活的由衷热爱,对精英阶层家居情景的思考,将灰色作为整套样板房的主色调,以橙色点缀其间,像沉稳的思想者,内心总有一股正气与热血。线,面,色彩,交织,成就皮具的经典之作,装饰画所呈现的这些元素,将稳重深沉的理性之美渗透于细部,呈现了经岁月积淀的睿智优雅。


想学习室内的,可以关注我 私信获取室内设计,效果图学习,施工图深化视频一套哟

想学习室内的,可以关注我 私信获取室内设计,效果图学习,施工图深化视频一套哟


主卧以灰色贯穿,而白色是安静的主旋律,素白的空间和极其简单的装饰线条,背景墙内嵌的灯带发出隐约微妙的灯光,为空间增添细腻灵动的情调,瞥见卧室的另一角,极简的线条与素白色调的家具,没有多余繁杂的装饰,交汇出优雅且富有生命力的空间。






男孩天性好动,男孩房选用活泼明快的绿色作为主色调,营造出绿草葱郁的景象,以足球明星作为背景墙,并在其中点缀几处足球元素,舒适而富有活力,体现了主人在培养孩子爱好的同时注入了对孩子无限的关怀。



老人房有着东方韵味的素雅与庄重,沉静儒雅的床品,背景墙上的金属装饰物,将老人晚年颐养天年的生活气息烘托而出,营造出朴实的氛围,给人一种气定神闲的感觉。设想在月色溶溶的晚上,两位老人坐在窗台对月谈心,耳边似有流水水无声,两人心下一片沉静,“经不住似水流年,逃不过此间少年”,不言不语中,现世安稳,彼此懂得。

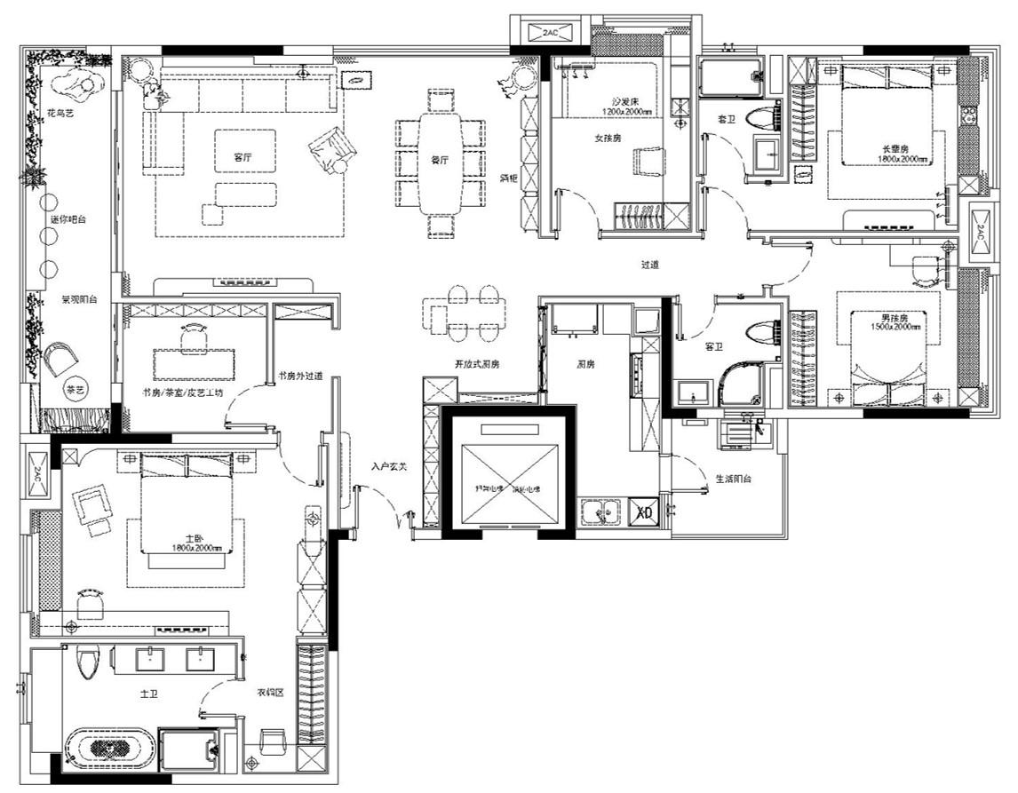
▼平面图
