大家好,我是一休,北京地产行业的一名深耕者,擅长多盘硬杠+深度测评+硬核爆料,坚持原创输出,只想说点实话。
本文首发于【一休侃房】公众号。
8大问题,灵魂拷问
1.地铁交通,咋样?
绿城的宣传:“三轨三高一枢纽”。

3条轨道交通分别是亦庄线、17号线(在建)、S6号线(也叫21号线,规划中)。
3条高速分别是京哈、京津、京沪,都算是南北的主干路。除此之外嘉创路也能快速到达5环,正在施工南延。
距离通马路也很近,这是副中心通州和经济新中心亦庄两大最具潜力版块的主干路,马上也会扩宽升级。
一枢纽,指的是什么呢?
亦庄火车站呗,可以在这里坐高铁去天津。这里也是亦庄线和21号线的交汇站。
科普一下21号线,这是贯穿东部和南部的大线。可以到顺义机场和大兴机场,而明月听蘭项目距离亦庄火车站这个大枢纽实际距离1.1km就能到,出差商旅人士,住这很适合。

大实话:
其实对于区域价值来说,提升最大的、最具看点的还得是17号线。
一休的接触的群体中,买了台湖和路东的,一大半其实还是冲着国贸上班方便,毕竟7站8站能到国贸,这句话本身的冲击力还是很大的。
到亦庄核心板块的话,直接坐亦庄线就很方便了。而且亦庄特有的电车路网也在完善,未来可期啊。

再来硬碰硬,相比台湖北侧的首开万科城市之光、泰禾一号街区、台湖银河湾等项目,明月听蘭的交通优势体现在哪呢?
一休认为是更加便捷的轨道交通,而且是优势巨大。
那几个盘走到地铁站的话,最近的只能是次渠北坐17号线,而且依靠双腿走过去挺艰难。这种距离走一次两次完全没问题,但要是上班族每天必经之路的话,真的是要吓退一定的潜在接盘者。而且又坐不上亦庄线,两方面都是要输的。
而明月听蘭呢?
开发商资料说是700米,但靠谱一休建议大家实际距离按800算吧,这距离其实也还是很舒服的。而且次渠站可是*轨双**换乘啊,朋友们。
次渠站和项目之间可以直接走东小路,就沿着地铁站往北这条路,在修。
综上,一休认为明月听兰不仅掌握了轨道交通的现在,还拥有未来。路网其实也很完善,还能依靠轨道交通快速到达两个机场,也算是很不错了。
2.区域地段,咋样?
首先,大家应该明白一个概念:准确来说,明月听蘭属于通州台湖镇。
但自从亦庄新城扩容之后,这里属于“共管地带”,亦庄开发区主导经济管理和建设,其他社会管理事务还是通州负责。

因此,大家分析区域板块的话,还是得着重看亦庄。
亦庄对于这个位置的定位是:高端总部基地、科创CBD。是亦庄新城布局
“一廊一带三中心”中的科技金融创新中心。

其中最核心的板块还是要属两站一街板块,规划面积1677公顷。定位起点较高,注重“职住平衡”和“生态宜居”,因此在南北两侧有数千亩的湿地公园。
新项目就位于两站一街板块的核心位置,地段潜力无疑是相当足够。
大实话:
潜力十足,往往也和欠发展相伴而生的。
目前项目周围的路已经很有眉目了,够宽敞。不过,还是给大多数人“略显荒凉”的感觉,尤其是项目和次渠地铁站中间的这部分次渠二村还没*迁拆**完,破败杂乱确实是事实。
但各位一定要明白,这些都是暂时的。

项目四至,不利因素的角度来说。其实较少,高压线没有,高速路也没有。选房方面,注意项目西侧会是幼儿园和学校,矮楼层可能会有点吵闹。项目东侧临近的是主路,相对也会有吵闹的可能。楼盘北侧,目前依然是规划的绿地,无其他用途,南侧是住宅用地。

一休在上文提到了,购买人群中大部分还是冲着去国贸上班的。但一休也要提醒各位,业主们完全有可能在亦庄解决就业,不到30年的时间里,已经有2万家企业落户亦庄了,世界500强超过80家。
按照亦庄最新的新城规划来看,到2035年,亦庄人口要增加4倍,达到近90万人,其中就业人口65万人,预计两站一街等规划地段也会解决大量需求,对待亦庄,一定要用发展的眼光看。

3.价格,值吗?
商品房,准确的说是2017年以来,通州成交的第二块纯商品房用地,很难得,不用考虑5年限售,这是绝对的优势。
开盘开发商对外报价表价:均价在53000-59000元。
98户型均价53000-55000
120户型均价55000-57000
138户型均价57000-59000
周围的项目中,同属于台湖版块的就是城市之光东望和台湖金茂悦,均价51585元/㎡。亦庄版次渠南站旁的经开汀塘和禧瑞天著也要在5.1W-5.2W。

相邻最近的新盘,要属商品房台湖银河湾,明月听蘭北侧400米,均价近70000。仅剩大户型尾房,最差的也要900万起。将近三分之一的房源都是一居,拉低了门槛,而且是毛坯交付,小区内还有大量公租房。比较而言,你很难把银河湾说是纯改善盘。

二手房来说,整体参考价值不大。
一休细细地分析两句:
城市之光,绿中介单价显示3.7,点开就会发现这里面基本都是商住的房源,城市之光商住现在也有新房,就是3万多一点。里面的住宅二手房不考虑税费和中介费,也最起码要4.8万。
(城市之光是2017年开售的,2019年已经交房,首开和万科联合打造的85万㎡的大型综合体项目,配套了商业和商住办公楼。和东望是两个不同的项目)
泰禾一号街区也一样,基本都是商住的二手房。银河湾里面有一套虚假房源严重拉低了均价。
综上,考虑到税费、中介费,去除商住房源,附近二手均价最起码也要5.2-5.4万。

大实话:
目前的定价,一休认为完全合理,甚至可以说性价比很高。
更靠近轨道交通、改善盘、前10开发商、顶尖物业服务、精装交付,即使咱们不说虚的,单说这几项就是肉眼可见的优势了。
话说回来,前段时间,确实有传言说预计售价会在5.2-5.4,当时一休就表示诧异。
和周围的新盘以及二手房相比,性价比依然高,但和之前的定价相比,为啥又贵了呢?
一方面,不排除是营销团队吸引眼球的一种噱头,另一方面,可能市场反馈实在是好,开发商自然有了些底气。
说句容易引起误解的话:真正的购房者,应该为现在的定价高兴。有时候,太便宜,匪夷所思的划算,那真是不踏实啊。
虽然有的朋友会感觉“你站着说话不腰疼”,但这真是我心里话,还有一个重要原因,后文再说。

4.生活配套,方便吗?
先说商业:最近的就是城市之光的商业街区了,已经建成,在建的购物中心城乡广场也在这个位置。其余现有的就是要往亦庄路东方向走了,比如百发隆购物中心、物美超市、家和新天地、新城商厦,但还都是小型的。
大规模的就要去亦庄成熟版块了,比如城乡世纪广场、大族广场、亦庄创意生活广场。

医疗方面:现有最近的三甲就是同仁医院(亦庄院区),其余近一点的就得去通州了,东直门医院(通州院区)和潞河医院,车程大概13公里。
通州还有友谊医院和安贞医院的规划,台湖南侧也还有一个三甲医院用地,只不过没确认具体哪一家,这将是最近的大医院。
通州第三医院虽然更近,只有几百米,但一休认为不值一提,那前身就是通州区次渠卫生院。

说说教育:现有周围学校倒是很多,月河学校、次渠中学、台湖镇中心小学、还有银河湾小学,都算步行范围内吧。从这个角度说,与现有大部分5环以外的新房,并没有拉开差距,保持同一水平吧。
但关键人家通州和亦庄可都是大力引进名校呢,建华实验亦庄学校、景山学校通州校区都已经落地了,今年开始招生了。
大实话:
现有配套其实还主要指着亦庄那边呢,亦庄台湖还不够成熟,而旁边的通州台湖其实也缺乏拿得出手的配套,一个万亩游憩园就占了一半的面积了。
讲真,明月听蘭的公园配套很亮眼。东石公园、风韵阡陌公园、金福湿地公园、万亩游憩园、站前湿地公园、通明湖公园,而且全是在直线距离3.5公里以内,小区北侧也是一片绿地,相当于家门口。
台湖在建设之初,就注重生态环境,湿地多,能提高宜居属性。
北侧的银河湾小学,据说也在接触引入西城的一线名校。楼盘西侧,马路之隔就是3200㎡的在建公立幼儿园和公立学校规划。一休判断,引入名校概率较高,具体原因我在[实景谍照]那篇写过。
但坦诚的讲,建华实验我认为几乎是确定上不了的,一方面是距离和划片,另一方面那属于亦庄引进的。景山学校的话,还是有一定概率的。首先这是通州引入的,其次虽然次渠的大量老东城的安置户,相当于定向锁定了这个学校,但好在学校规模较大,108个班,建筑面积10万平米呢,辐射面较广,依然存在理论上的可能。

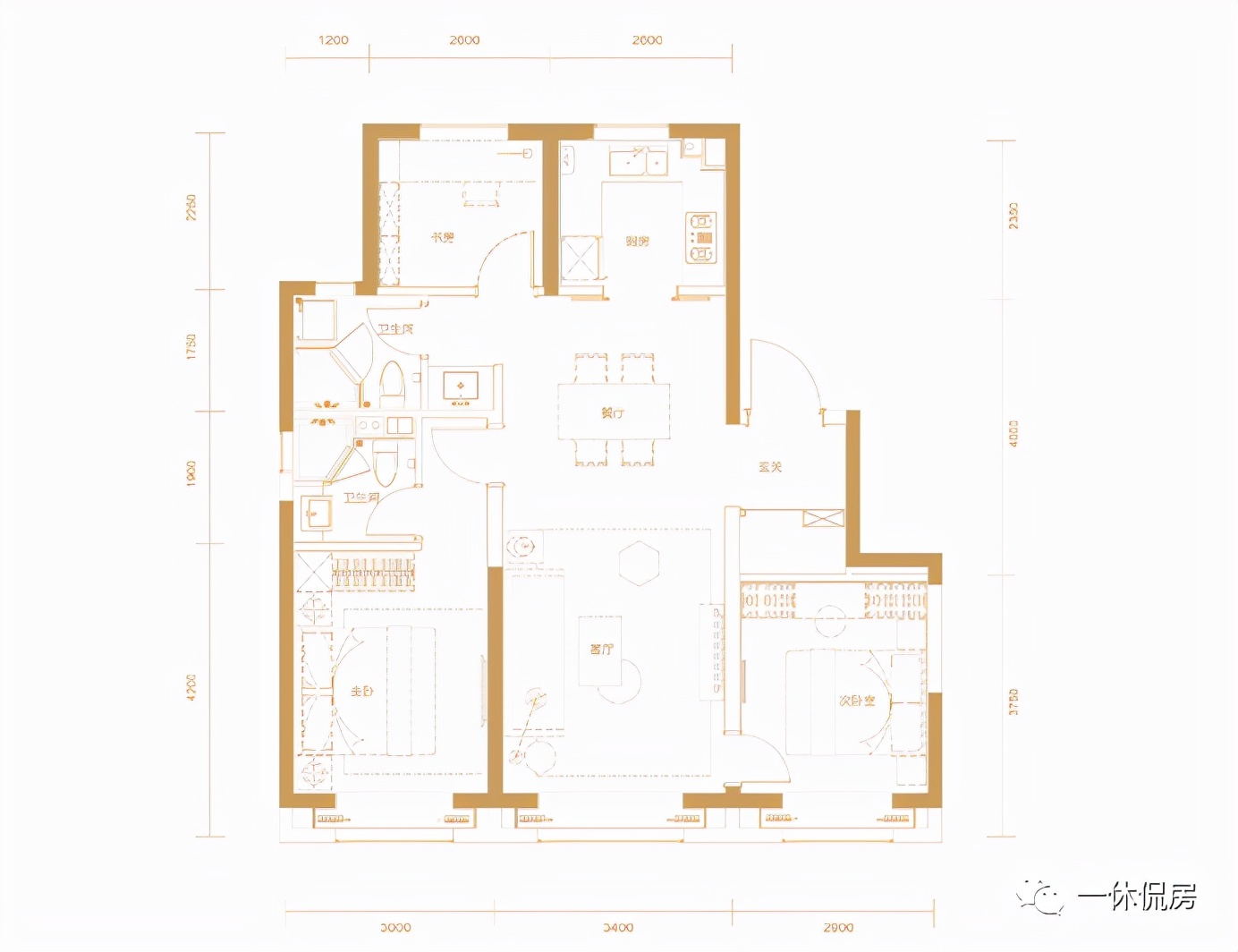
5.户型,好吗?
3种户型,简单干脆,很清爽。
起始户型面积大,相对同区域限竞房来说买房门槛高不少,从财力的角度,做到了筛选。

96㎡三室两厅两卫,南向三面宽9.3米,双卧室朝南,送3个飘窗。入户玄关那个位置还可以做一个家政间使用,层高2.95米。缺点就是餐厅和两个卫生间对着,有点尴尬。
分布在#1、#3、#5和#7号楼的1单元,一共224户,占总房源57%。

120㎡四居两厅两卫,南向三面宽10.6米。户型结构相当于三居基础上北侧加了一间卧室,但餐厅客厅厨房就不在一条线了,直接导致通透性不如三居的那个。
适合家庭常住人口较多的家庭,毕竟算是四居了,功能性很好,彼此都有空间,客厅也宽敞了一些,挑高3米。
分布在#4号楼和#6号楼,一共110套,占总房源29%。

138㎡三室两厅两卫,3.15米层高。两梯两户,全部面宽13.5米,大客厅的面宽就有6.9米,几乎是赶上主流两居的整个面宽了。主卧大套房设计,带化妆台的衣帽间。通透性极强,明厨明卫,U形厨房,动线合理,动静分离。
缺点的话,很多人也吐槽了,我在之前文章也说了,此处不赘述。
只有#2号楼有这个房源,一共56户,占总房源14%。

大实话:
纯南北社区,而且限高45米,13-15层的住宅小高层,加之50m-85m的楼间距表现,以及很具备优势的挑高,一休判断:通风和采光会比市面上80%项目强。
精装交付其实现在也不算是很大优势了,但绿城的精装,多少还是会让人感觉放心靠谱一些。
智能新风系统、直饮水系统、智能安防系统、智能马桶盖、厨房凉霸、一键报警、弱电插座、家装品牌使用国际品牌如西门子、摩恩和恩仕等。
户型其实不仅这3种,还有小户型,不过不卖。这个有部分房源是开发商自持的,他们不能卖,就是#7号楼的大部分房源,这栋的也确实不太好,不管咱是科学的考虑还是风水学分析,都是如此。

2号楼是标准楼王地段,南侧是看社区园林大花园的,北侧还是绿地,房源也足够稀缺性。虽然138㎡的户型设计很有争议,但坦诚的讲,一休本人是喜欢这户型的,而且也看好这户型未来的价格走势。
奢华大三居,满足了更高阶的生活追求,而不是简单的“多一个房间,多住1-2个人”,这种理念也是超前的,这是符合潜在年轻接盘侠的消费趋势的。
6.楼盘设计,合理吗?
明月听蘭一共7栋楼,但实际上只有6栋可售。
总房源390套左右,车位配比1:1.2,人车分流。
现代简约风格,容积率2.0,建筑密度仅为17%,实际的绿化率能达到45%。
占地面积:23000平米,建筑面积:47000平米。

绿城本年度三盘齐发,重回北京市场。明月听蘭项目也是继10年前的京杭广场后重回北京东部板块,产品还是很有诚意的。
合作了国内最具实力的民营设计机构之一的GOA大象设计,采用了一环一轴三庭院的形式。

一环指的是380米社区环道,一轴是140米景观轴,三庭院事3600㎡共享交融会客厅、1400颐养空间,1600活力空间。

在绿城内部,明月听蘭算是二代高层的代表作。蘭园系产品是绿城的城市标杆代表作之一。“蘭”字是创始人宋卫平先生取自“蘭亭集序”而来。明月听蘭依然延续对颜值的高标准追求,人文美宅。

绿城的很多项目都是先做外立面,再做户型,比较独特,注重整体的审美。这次明月听蘭的外立面依旧出彩,有沉稳、大气的感觉。
大实话:
绿城在业内号称“园林大师”,一休认为绿城也是“品质痴汉”,这都和创始人宋卫平先生有这千丝万缕的关系。
但绿城现在确实被央企中交入主了,核心管理层换了不少,曾经的特长生走上了德智体全面发展的道路。
因此有些人担心,绿城还是那个绿城吗?
一休认为,还算值得期待的。
原因:绿城目前发展的速度是可控的,节奏还不错,多家机构给出的2020销售排名中,都进了前10,主流市场还是相对看好的。其次,绿城积攒这么多年的形象、口碑,换作任何接手的新主,都是要仔细保全的,品牌形象IP不能浪费。
说说物业方面吧,绿城在这个环节依旧很稳,秒杀95%的物业丝毫不为过,全国顶尖,这是未来保值增值的关键细节!
冲着绿城的26年口碑和物业服务而购房的人,还真不在少数。
一休认为:北京市场其实需要来自南方的优秀“搅局者”,这样也能促进北京整体物业水平的提高,对消费者是好事。

7.五年后回看,价格会怎么样?
一休比较看好,保守点来说,至少比市面上70%的限竞房要稳不少。
首先,抛开区域规划潜力这些,现有的市场价格体系中,定价并不算高。
相比其他品质开发商,多年未在北京深耕的绿城口碑延续肯定不理想、老客户偏少,毕竟没项目。所以他们刚刚回归,是不敢有太多所谓的“品牌溢价”的,况且台湖和路东竞品也好几个呢,本就要杀出重围,打响头一炮,“快”是最重要的。
其次,周围规划实在是太多,而且还都真够得着的,都能辐射得到,况且本身还处在两站一街的核心地带,不发展是不可能的。但我认为5年顶多能开花,要结果的话可能要10年,咱保守估计。
现在的很多分析,其实都是在期房基础上,5年后都现房了,那时候交房品质大家亲眼看的见了,对绿城会更有利。历久弥新,方能雄霸一方。

8.还有啥毛病?
毛病总归是有的,接上文,我为啥说区域价值要10年才能释放呢?
因为一休认为,台湖的发展不能说是慢,相比北京某些规划,还算是靠谱一点的。但涉及到比较,咱就得有一个参照物,相比预期的政府规划,确实是慢了。
要致富,先修路,这句话大家都懂。根据我这两年的实地调研,其实台湖高端总部基地以及两站一街,还处于路网的建设和丰富当中呢。

但杠精可能会问,北侧的这一大片街区不也都起来了吗?一切也看得见摸得着了呀?
出了一些成绩,这不假,高楼大厦也起来不少,咱不否认。但各位一定要记得,要明白这些事情到底是谁干的!
北面这一大片实际上还是几个房企做的为主,再大一点层面的话,比如云创天地是首开集团和万科携手搞的。
也就是说其实政府层面还并未发力呢,什么时候民营名企+政府官方齐头并进的造城,什么时候才是真正上了快车道。
因此,要短期想投资,捞快钱的,一休并不建议。

这块地皮在土拍的时候真的很抢手,17家房企竞争,北京市场这几年也非常少见的局面。
要说一两家开发商眼光不行,说得过去,要说17家房企都押错了宝,这也不太科学。
从这个角度来说,土地价值是非常高的。但缺点呢?
就因为抢手,都想要,就看谁出钱多呗,市场经济。
因此溢价就有点高了,达到了49.78%,这也是我前文说的,高溢价如果还特别便宜的卖,那真就有点不放心了。而且最后还是通过竞自持的方式,一休印象中上一次竞自持还是2018年11月住总在大兴的采育地块,而且那块地是竞到2%就收手了,但这次竞到了7%。
而且据说各路参与的房企10分钟就触了上限价格,可见其中大部分都不是去看热闹的,都是势在必得的开发商。
最后再说说,近期一些观望客户,都听到了亦庄循环经济产业园的问题,网上信息也吓坏了很多人。
一休认为,与其关注这个产业园,您都不如去考虑一下北神树填埋场和董村综合处理厂来的实际,这两个距离更近。
说真的,大部分人压根都没搞清楚关键,很少有人问到我对于以上两个不利因素怎么看,这种状态去买房,买对了也是靠运气。
对于亦庄循环经济产业园,首先我想问问住在朝阳的朋友们,尤其是住常营和草房附近的,你们知道朝阳循环经济产业园就在你们周围吗?其实大部分人都不知道。其次,北京的这种涉及到垃圾处理的地方多得是,每个区都有好几个呢,咱老百姓不知道罢了。最后,如果真是会带来巨大影响的一个项目,政府不太可能放在北京东南部的风口之上吧?这是要亲手毁掉苦心经营20多年的亦庄吗?捎带手给环球影城也蒙上一层灰?如果真有网上传的这么大的影响,那国贸都跑不了。
况且,大家稍安勿躁,假设真的有些影响,明月听兰距离也5公里呢。官方也表态过,一切也都没定呢,而且这个没有任何焚烧,排放标准也是全国最高的技术工艺。
这东西仁者见仁吧,我不绑架别人的想法,只说我的观点,也欢迎讨论。反正我自己也买了亦庄的房子,这是我的实际行动。

终极问题,我会买吗?
如果我稳定在亦庄工作,年纪30出头,两口子收入预期理想,想满足改善需求,学校这块佛系,那我会入手明月听兰,这就是目前亦庄版块非常理想的改善盘了。
如果我非常在意开发商交房品质和兑现水平,近乎于挑刺,其他的不考虑,那我会有点纠结犹豫。楼盘拿地价格高,一般情况下,肯定不是好事,发生维权的概率加大,我也不想有这种人生体验。但不幸中的万幸是这块地其实起始价挺低,最后成交楼面价也不过 26825元/㎡,其实仔细一想,开发商也有足够的盈利空间了。而且这不是限竞房,这是纯商品房,绿城没必要去侵损消费者的利益,开发商有定价权,问题不大。犹豫的结果:我会在亦庄壹号和本盘二选一。
如果我首套首贷,兜里大几百的*弹子**,品质控,在王府井、金融街、丽泽附近上班,那我会更关注绿城的和锦诚园,那个盘的门槛更高,而且通勤更便利。
如果我资金库存只有100多一点,但是未来收入预期也还行,也就是说我要去借100左右才能勉强上车。那我不会选择明月听兰,适当有压力是可以的,但不能太大。周围的东望、臻珑府明显更加经济实惠,更适合我,而且开发商各方面也都挺理想的了,先搞一个89三居得了。
由于本文写于开盘之际,现仅有大户型可以选择。
还是那句话:买房是大事,每家情况不同,同一个楼盘适配性也差异很大。一休不想随便敷衍两句,不做批量化生产,想深入聊聊的,可加关注后点私信提问。