1 背景
城市被定义为是非农人口和非农产业的聚集地,从骨子里就与农业格格不入,但城市居民与一日三餐的生产隔绝造成了社会 公平、生态环境甚至经济发展多方面的不良后果, 21 世纪初, 城市农业运动异军突起, 在发达国家城市中迅速蔓延。城市农业(Urban Agriculture)的实践就是在这一背景下逐渐成为西方社会的热点。虽然城市农业现象在现代社会中一直饱受争议,但是随着时代 的发展,城市中的农业行为已经慢慢融入城市居民的生活中;同时,作为可持续发展研究的新领域,城市农业为城市带来的多重 效益也得到了多方的认可。
城市农业的形式多种多样, 既包括了市民自发的社区农园、阳台农业等街头常见的农业形式, 也有垂直农场、植物工厂等“高 大上”的专业种植场所。本文所要介绍的荷兰海牙“德施尔德”项目(UF002 De Schilde)就是一个重新利用城市旧建筑屋顶, 采用鱼菜共生技术、产销一体的屋顶温室农场典型案例。
荷兰素以现代化的温室栽培技术而闻名世界,也是世界农产品的重要出口国。国土和资源的短缺使得荷兰人对循环经济和可 持续发展有着天然的使命感,因而城市农业在荷兰有着较高的接受度和参与度。德施尔德农场由 2011 年成立于瑞士的“城市农 夫”(UrbanFarmers)公司建造并运营。这家公司专注于在城市中建立商业化食物生产链,其建造的第一个商业化屋顶农场名为 UF001 LokDepot,位于瑞士的巴塞尔。德施尔德农场是“城市农夫”打造的第二个商业屋顶农场。从建筑设计的角度来看,这也 是一个旧建筑改建和闲置空间激活的生动案例(图 1、 图 2) 。

图 1- 德施尔德农场外观图 图 2- 屋顶农场近景
2 项目概况
1)项目背景
作为荷兰的第三大城市,海牙政府非常重视城市生态与可持续发展,并设立了 2040 年实现气候中立的目标。据了解, 海牙有大约 25% 的工业建筑处于废弃状态,人们希望通过运用技术和设计手段将这些建筑进行再利用。德施尔德农场所在 的飞利浦电信大楼就在改造之列,这座七层高的工业建筑由现代主义建筑师德克 ·罗森堡(Dirk Roosenburg)在 1950 年 代设计,总建筑面积 12400m2 。作为高层建筑设计的早期作品,这座大楼在荷兰地区拥有着特殊的地位(图 3) 。

图 3- 飞利浦电信大楼原貌
然而由于受到经济危机和生产规模缩减的影响,当时楼内大部分空间处于闲置状态。为了激活这座历史建筑,同时促 进城市农业的发展, 海牙市政府有意将这座有代表和象征意义的建筑作为活化对象, 通过设计和改造使之成为城市农业空间。 他们认为,利用城市农业技术改造历史建筑并将其带向未来,形成一个有助于可持续发展的农业生产场所,可以为周围社区 带来生态、经济及社会等多重价值。
为此,海牙市政府在 2013 年举办了一项名为斯塔德兰布乌计划(Stadslandbouw Initiative) 的设计竞赛, 邀请设 计师对当地可持续发展出谋划策, “城市农夫”公司以其先进的理念和技术从 70 多家竞争者中脱颖而出,成为这一计划的优胜者之一。在获得 UrbanFarmers AG 的投资和海牙政府住宅开发基金的补贴后,他们邀请荷兰的“空间事务” (Space&matter)进行了飞利浦电信大楼屋顶的空间改造设计(图 4) 。

图 4- 改造后的飞利浦电信大楼
2)设计与建设
德施尔德屋顶农场总投资约为 270 万欧元,项目建设从 2015 年 11 月开始,历时半年建成。农场拥有一个面积约为 1200m2 的屋顶温室和 370m2 的室内养鱼场,每年可生产约 50t蔬菜和 20t罗非鱼,据称是欧洲最大的城市屋顶农场。从外观看,建筑立面由米黄色砖墙与大片玻璃幕墙组成,其楼顶的温室农场独具特色,尽管大楼本身部分空间还处于闲置状态, 但是农场的存在为其带来了新的生机与活力(图 5、 图 6) 。

图 5-UF002 德施尔德屋顶农场夜景 图 6-UF002 德施尔德农场现场建造图
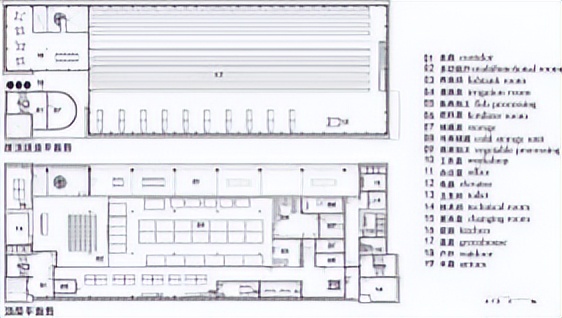
德施尔德农场因地处海牙市中心黄金地段, 被誉为“城市农业时代广场”(Times Square of Urban Farming), 吸引四面八方的游客前来参观游览。因此,除了温室和养鱼场等生产空间,农场还配备接待区,以及两个面积分别为 120m2 和270m2 的屋顶平台供游客眺望海牙市区,目前农场已经成为城市中的独特景点。德施尔德农场由两层构成,分别是利用屋顶构建的 温室和利用原建筑顶层空间改造而成的室内养鱼场。(图 7、 图 8)

图 7- 农场内部空间示意图

图 8- 农场平面图
推开农场入口处的大门,映入眼帘的是充满简约工业风的办公室,随之可见的是视野开阔的阳台,游客可以在此休憩。位于底 层的综合大厅设有一个带移动厨房和玻璃幕墙的游客及会议中心,在此还可观察到另一侧的养鱼场。经过一条带有蔬果加工区的带 型走廊,即可到达农场的养鱼场,这里分布着很多不同品种的鱼池,避免了大鱼吃小鱼的现象。仔细观察整个养鱼场,会发现养鱼 场的一侧通过玻璃窗来保留人们视线上的穿透性及交流性,从窗户向外望去,还可以看到建筑入口处的办公区(图 9、 图 10) 。

图 9- 德施尔德农场入口空间 图 10 - 德施尔德农场的鱼池
从底层经过螺旋楼梯上楼之后会先到一个铺着木地板的小型中庭,可以用来举办开幕式、音乐会等小型活动。随之进入农场的 种植区,顶层的温室采用单元式玻璃温室结构,以玻璃帷幕作为空间分隔。温室内是大面积的种植区域,根据作物不同分为不同的 区域,便于根据作物不同需求维持不同的温度和湿度(图 11、 图 12) 。

图 11- 农场内部公共空间

图 12- 农场内部种植空间
“城市农夫”认为,透明度对于人们来说极为重要,也是这座建筑的价值所在,他们“希望人们知道食物的来源,这正是城市 农夫项目背后的基本原则”。农场生产的蔬菜和鱼类产品在收获后可以立即送达当地超市、餐馆和消费者,人们可以自行购买食物 或者去当地的餐馆享受新鲜食材制作的美食。就消费者而言,透过玻璃便能亲眼看到他们所消费食物的生长环境与生长过程是一件 极其令人满足的事,也使得他们在购买食物时更加放心。
德施尔德农场基于原有的建筑结构,严格适配建筑本身的框架体系。为此设计师采用了专门设计的结构体系,温室主体采用了 7.5×7.5m 的钢框架。立面上玻璃窗格由两层构成, 包括外部 4mm 厚的保护层和内部 16mm 厚的钢化玻璃, 以此来增加立面玻璃 的安全性。单元式的温室框架采用双坡屋顶,排水檐沟采用 U 型钢加固来增强屋顶的稳定性。通过新的构造设计,使得加建的温室 部分与原有建筑协调统一,旧工厂大楼在保留原有形态的情况下得到了新生(图 13) 。

图 13- 农场结构框架
3 农场技术理念
德施尔德农场在设计中将水产养殖(Aquaculture)和水耕法(Hydroponics)两种方式结合起来。灌溉用水皆是从楼下养鱼场过 滤之后输送过来的,利用鱼粪当中的养分作为植物生长的肥料来源。在这个循环系统中,鱼粪被细菌分解成硝酸盐和亚硝酸盐,作为蔬 菜生长的必需养分以营养液的方式输送到蔬菜培养容器中。而蔬菜在吸收养分的同时也会帮助净化水质,将干净的水返回到鱼池,形成 一个“鱼菜共生”的良性循环,动物、植物以及微生物之间达到一种和谐共生的关系,通过这种方式减少碳的排放量,形成可持续的生 产模式。
污水处理设备是鱼菜共生系统中的重要一环,也是整个系统循环起来的关键所在。首先,污水处理器将各个鱼池的废水收集起来, 通过化学试剂使得较大的杂质沉淀后,再经过几个过滤槽,经过包含大量中空小塑料颗粒的过滤层,过滤掉残渣并保留植物所需要的各 类养分,然后再将水输送到蔬菜种植区。
充分利用现有资源是德施尔德农场的基本原则。例如,由于采用鱼菜共生系统循环利用养分和水分,温室种植能够节省 90%的水资源, 还能避免病虫害通过水源相互传播。此外, 德施尔德农场不使用杀虫剂、除草剂或抗生素。所有产品均不含任何化学作物保护剂或抗生素, 给予高质量的饲料并以动物友好的方式进行饲养。相对于一般养殖和种植方式,无土溶液水产养殖不仅可以节省水资源、减少水污染, 更促进了资源的循环利用。
4 分析与启示
德施尔德屋顶农场是一个典型的兼农建筑的案例,屋顶的农业空间与建筑内部空间共存共生但互不干扰,提供了分别适应人类生活 和动植物生长的空间环境。农场通过采用无土溶液水产养殖系统,将鱼类和蔬菜的生产相结合,得到一个互利互惠的生存环境,使得两 者形成一个闭环循环系统,这不仅节约了自然资源,也使得城市的生态环境得到提升。
德施尔德屋顶农场为我国城市发展带来了许多有益启示。根据孟建民院士的统计,我国现有屋顶面积约 1095 万亩,绝大部分处于 未开发状态。如果将这些闲置的屋顶加以农业化改造利用,将是一个创新而且有效的可持续对策,在提高经济效益的同时,还将有效地 改善城市生态。除了对环境可持续发展的研究, 海牙政府对于旧建筑改造的做法也令人钦佩。德施尔德屋顶农场尊重旧建筑原有的风格, 通过新增温室农场,不但改善了建筑的功能组成,还为老建筑带来新的活力,成为城市中的一景,这同样值得我们在城市更新和建筑改 造中加以借鉴。
建筑师手记 Architect's Note
城市旧建筑屋顶的重生 ※
——荷兰海牙德施尔德鱼菜共生农场
The Revival of the Urban Old Buildings’Rooftop —— Aquaponics Farm at Hague , Netherlands
赵雅宁 宋开鹏 刘长安 Zhao Yaning Song Kaipeng Liu Chang’an
作者简介:赵雅宁(1995-) ,女,山东德州人, 山东建筑大学建筑城规学院硕士研究生;宋开鹏(1993-) ,男,山东日照人, 山东建筑大学建筑城规学院硕士研究生; 刘长安(1978-),男,山东建筑大学建筑城规学院副教授。
※ 本文受国家自然科学基金(项目批准号:51778349,51608307)资助,特此致谢。