买鸿荣源珈誉府就能上深外吗 (买房子为了孩子上学)

现在深圳还有对刚需客户这么友好的楼盘太少了,一直想给孩子找个好学校,不是价格高就是位置偏,前几天看了宝安沙井的鸿荣源珈誉府,又是鸿荣源大品牌,配套又齐全,马上就爱了!!!学校根据2022年的学区划分是深圳外国语宝安分校。户型竟然是76的三房,85的三房,95的三房,还是11号线塘尾站地铁口物业,走路约4分钟左右就到,不管是去宝中还是前海就几个站,太方便了。并且门口就是一个大型的城市综合体叫湾区壹方,比宝中的壹方城还要大1.5倍。确实是我心目中的理想之家!!!

光明VS沙井

供应井喷,抢跑制胜

光明和沙井,相亲相爱又相杀!

2023年5月开始到年底,光明还有13个新盘,预计超8000套住宅待入市,沙井也有9个新盘,超7000套住宅待入市,光明沙井累计有1.5万套住宅供应。

虽然说可能部分楼盘不一定在2023年入市,但考虑到还有其他旧改、历史遗留现楼等等情况,对于5万均价的刚需市场,1.5万套这个数,还是相对保守的。

对于今年志在上车的朋友来说,一定要擦亮眼,多看多比多走,少冲动,谨慎择优出手。

您是喜欢吃乳鸽还是生蚝呢?最强盘点来了。

买房子是为了孩子的教育吗,沙井鸿荣源哪个学区

光明沙井打新交流群,欢迎扫码入群!

买房子是为了孩子的教育吗,沙井鸿荣源哪个学区

沙井片区-待入市新盘盘点

1

鸿荣源珈誉府

项目整体:项目整体规划相对较好,包括了吃喝玩乐购等消费需求,所在位置相对不错,邻近地铁站,且位于深圳外国语学校(集团)宝安学校的招生范围内,关注度还是相对较高的,可参考万丰海岸城的热度。

但项目北侧、南侧、东侧分布着较多的工业园区和农民房,短时间内会影响整体面貌,而周边的旧改项目还未开始相关施工建设,后期需要较长的时间去兑现,短时间内或面临施工所产生的影响。

交通地铁:项目位于11号线塘尾站东侧,属于地铁盘,邻近宝安大道,可自驾前往深圳各区,无论是乘坐地铁还是自驾车辆,还是相对便利快捷。

教育资源:根据相关规划,项目配建有一所63班九年一贯制学校,目前根据深圳外国语学校(集团)宝安学校的招生范围,项目位于该校的学区范围内。

商业配套:项目周边商业配套相对缺乏 ,并无大型商业,但该项目将为鸿荣源在沙井打造成的首个奥特莱斯,也是对于片区商业生态的又一补充,北侧的万丰海岸城也是商业一体的综合体,后期所在片区的商业体积还是相对较多的。

周边配套:项目周边配套相对缺乏,目前只有立新湖公园,直线距离约一公里左右.价格参考:作为沙井片区最热的莫不过于是万丰海岸城,其最近一次入市是在去年十月,共推售1025套房源,备案均价5.75万/㎡(精装),户型面积82-136㎡,最低入围积分59.1分,冻资入围共2760批,开盘售罄。

周边价格:项目一路之隔的华强城市花园一期二手房指导价5.27万/㎡,为2012年小区。

买房子是为了孩子的教育吗,沙井鸿荣源哪个学区

买房子是为了孩子的教育吗,沙井鸿荣源哪个学区

买房子是为了孩子的教育吗,沙井鸿荣源哪个学区

买房子是为了孩子的教育吗,沙井鸿荣源哪个学区

买房子是为了孩子的教育吗,沙井鸿荣源哪个学区

买房子是为了孩子的教育吗,沙井鸿荣源哪个学区

买房子是为了孩子的教育吗,沙井鸿荣源哪个学区

买房子是为了孩子的教育吗,沙井鸿荣源哪个学区

买房子是为了孩子的教育吗,沙井鸿荣源哪个学区

买房子是为了孩子的教育吗,沙井鸿荣源哪个学区

买房子是为了孩子的教育吗,沙井鸿荣源哪个学区

2

特建发云海臻府

云海臻府地块位于宝安区沙井街道展景路一侧,邻近建设中的 12 号线海上田园南站。与海上田园南站直线距离约250米(根据百度地图测量,仅供参考)。

未来将可以通过12号线方便通达宝安西乡、南山传统中心区、蛇口自贸区等区域。处片区为大空港集中开发区域,区域内新建项目较多,有会展湾中港、会展湾水岸、会展湾东城、商品房社区氛围目前一般,寄望未来迎来统筹规划。

项目自带幼儿园,目前周边教育资源相对缺乏,目前最近为翻身实验学校西校区,不过项目周边有3快教育规划用地,目前还没目前明确那个学校进驻。

商业配套:项目自带商业,目前周边暂无大型商场,未来或将依赖融创冰雪文旅城和会展湾的相关商业配套。

参考价格:项目为限价地,毛坯限价4.61万,精装加3000元/㎡约4.91万,预计项目大概也在这个范围。

买房子是为了孩子的教育吗,沙井鸿荣源哪个学区

买房子是为了孩子的教育吗,沙井鸿荣源哪个学区

买房子是为了孩子的教育吗,沙井鸿荣源哪个学区

买房子是为了孩子的教育吗,沙井鸿荣源哪个学区

买房子是为了孩子的教育吗,沙井鸿荣源哪个学区

3

华润云上润府

云上润府西侧为云上府、深圳第十六高级中学和足球体育公园,北侧为安居福汇阁人才房和福海小学,南侧为鸿桥世纪名园的在建项目和鸿德园一期。

地铁方面,距离11号线桥头约1公里、在建12号线桥头西1.4公里。

周边配套较为欠缺,没有大型的商超,后期项目自身和周边项目的底商,可以满足日常生活。没有大型的商超,

轨道交通方面,距离地铁桥头站大概为1公里左右,步行时间上需要14分钟左右,不过项目好在开车到前海,宝安中心等中心区车程较短。

买房子是为了孩子的教育吗,沙井鸿荣源哪个学区

买房子是为了孩子的教育吗,沙井鸿荣源哪个学区

买房子是为了孩子的教育吗,沙井鸿荣源哪个学区

买房子是为了孩子的教育吗,沙井鸿荣源哪个学区

买房子是为了孩子的教育吗,沙井鸿荣源哪个学区

4

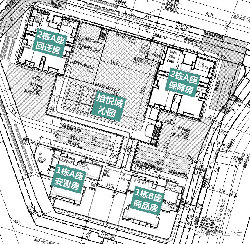
拾悦城二期

项目位于宝安区沙井片区,分为楠园、沁园两个地块,可售房源约1300套,户型面积段为87-140㎡ 3-5房,沙井拾悦城二期预计6-7月开盘入市。

拾悦城二期占地约3.54万㎡,总建面约17万㎡,共规划了14栋30-48层超高层住宅、4栋26-33F高端写字楼及部分商业配套组成,还规划了一所36班九年一贯制学校、一所18班幼儿园。

交通地铁:通勤距离相对较远,虽然说临近11号线沙井站约650米左右,但前往南山、宝中、福田等区域距离相对较远,通勤所需时间相对较长,乘坐地铁到南山科技园要1小时左右,自驾距离南山科技园约28公里,走宝安大道、广深公路或京港澳高速,大约50分钟左右,距离宝安中心区,走107国道,不塞车的情况下大约40来分钟车程。

教育资源:项目自带一所18班幼儿园,据悉,项目规划的九年一贯制学校教育用地将引进宝中集团俩办分校,周边学校有壆岗小学、拾悦小学、万丰小学,但整体教育质量相对一般。

商业配套:项目自带部分商业,只能满足日常购物需求,周边商业配套有百佳华MAX CITY(沙井店)、百佳华奥特莱斯、华润万家、西荟城购物广场,直线距离均在一公里范围内。

文娱配套:项目一公里范围有万丰羽毛球馆、大钟山公园、定岗湖公园、新桥中心公园、新桥市民广场,这些可以作为日常休闲的地方。

价格参考:拾悦城一路之隔的招商雍和府在6月份开盘,推售175套房源,户型面积75-120㎡,备案均价5.2万/㎡(精装),价格区间4.8万-5.3万/㎡之间。

买房子是为了孩子的教育吗,沙井鸿荣源哪个学区

买房子是为了孩子的教育吗,沙井鸿荣源哪个学区

买房子是为了孩子的教育吗,沙井鸿荣源哪个学区

5

璟荟名庭

宝安松岗的璟荟名庭户型图出炉,主推建面约66-88-116平2-4房,共计862套,预计本月开盘。目前样板房已开放。

璟荟名庭位于宝安区楼岗大道楼岗公园旁,展厅位于西荟城购物广场一楼。项目由6栋高层住宅楼(26-32层)组成。

交通方面,距离地铁6号线松岗公园站约1.5公里,距离薯田埔站约2公里;近107国道,周边有广深高速、外环高速、南光高速等,自驾方便。

教育方面,近松岗第二小学、东方小学,松岗中学等。具体划片学区及入学条件请以教育局官方信息为准。

商业方面,自带首层特色商业街区,周边有东方PARK、松岗天虹、兆禾里购物中心、杉杉奥特莱斯广场等成熟商圈。

小户型,刚需上车盘,建面约66-88平2-3房仅有270套,应该卖得快。距离地铁远是硬伤,目前来看,周边配套仅一般。周边价格约4.6万/平。

买房子是为了孩子的教育吗,沙井鸿荣源哪个学区

买房子是为了孩子的教育吗,沙井鸿荣源哪个学区

买房子是为了孩子的教育吗,沙井鸿荣源哪个学区

买房子是为了孩子的教育吗,沙井鸿荣源哪个学区

买房子是为了孩子的教育吗,沙井鸿荣源哪个学区

买房子是为了孩子的教育吗,沙井鸿荣源哪个学区

买房子是为了孩子的教育吗,沙井鸿荣源哪个学区

买房子是为了孩子的教育吗,沙井鸿荣源哪个学区

买房子是为了孩子的教育吗,沙井鸿荣源哪个学区

买房子是为了孩子的教育吗,沙井鸿荣源哪个学区

买房子是为了孩子的教育吗,沙井鸿荣源哪个学区

买房子是为了孩子的教育吗,沙井鸿荣源哪个学区

买房子是为了孩子的教育吗,沙井鸿荣源哪个学区

买房子是为了孩子的教育吗,沙井鸿荣源哪个学区

买房子是为了孩子的教育吗,沙井鸿荣源哪个学区

买房子是为了孩子的教育吗,沙井鸿荣源哪个学区

买房子是为了孩子的教育吗,沙井鸿荣源哪个学区

买房子是为了孩子的教育吗,沙井鸿荣源哪个学区

6

会展湾雍境二期

会展湾雍境于3月底正式首开,当时共推出380套住宅,开盘当天就拿下了首开劲销7成的优秀成绩,位于展城路与沙井南环路交汇处东南侧,建设用地面积约3.8万㎡,规划总建面约22.2万㎡,容积率4.08。

项目分为一二期开发,其中一期由1/2/3/4/5栋组成,1栋为公租房,2栋为自持租赁住房,3-5栋均为商品房,共1263户(含保障房712户);二期均为商品房,由6/7/8/9栋组成,共780户,一二期呈围合式共有小区花园。

交通配套:会展湾雍境属于12号线地铁口物业,12号线起于南山区左炮台东站,止于宝安区海上田园东站;经12号线一站可换乘地铁20号线,可达深圳机场及换乘地铁11号线,快速通达宝安中心、前海、福田等区域。

此外,临近还有远期规划的地铁18号线、30号线。其中,铁18号线一期从沙井至白花,未来或将西延至本区域,并与地铁12号线交汇于海上田园东站。

商业配套:项目周边目前在建有融创冰雪文旅城,未来可提升整个片区商业配套。一站之隔还有建面约32万㎡会展商业综合体。此外沙井片区已有约18万平京基百纳、约10万平新沙天虹。距离项目直线距离约5公里左右,海岸城及鸿荣的奥特莱斯大型商业在建。

教育配套:项目周边规划有三宗教育用地,这其中包含两宗九年义务教育用地,但目前尚未动工,预计得周边楼盘建成后才会正式落地。

文娱配套:从项目步行距离或地铁一站开外拥有海上田园、深圳冰雪文旅城(在建),以及32万平会展公园主题商业。

买房子是为了孩子的教育吗,沙井鸿荣源哪个学区

买房子是为了孩子的教育吗,沙井鸿荣源哪个学区

买房子是为了孩子的教育吗,沙井鸿荣源哪个学区

买房子是为了孩子的教育吗,沙井鸿荣源哪个学区

买房子是为了孩子的教育吗,沙井鸿荣源哪个学区

买房子是为了孩子的教育吗,沙井鸿荣源哪个学区

7

鸿桥世纪名园

宝安福海,鸿桥世纪名园计划3季度入市,总共785套房源,网传有70-186㎡共5种户型,主力户型是89㎡的3房2卫,据说是回迁房之后再看推出来多少套房源,目前还在基桩阶段,营销中心暂未开放。

鸿桥世纪名园,位于宝安区福海街道桥头社区富桥大道与桥塘路交汇处,项目东侧是大片城中村,西侧是一期鸿德园,北侧是云上润府,西北侧是2022年入市的润峯云上府,11号地铁线“桥头站”距离约600米。

占地面积约2.4万㎡,总建筑面积约18万㎡,计容建筑面积约11.8万㎡,容积率4.93,绿化率30%,共由1栋9个单元住宅组成,全部为23-24层高,总规划785户,停车位1389个(占比1:1.77)。

交通地铁:鸿德园二期最近地铁为11号线桥头站,步行前往11号线桥头站约1.1公里左右,步行时间需要15分钟左右;步行前往12号线福海西站步行距离约1.6公里左右,步行时间约25分钟左右,周边道路有宝安大道,自驾出行前往南山、宝中等区域相对便捷。

周边学校:项目周边学校有桥头学校、南科大附中、福海中学,其中桥头学校为九年一贯制学校,步行距离约1.3公里左右。

商业配套:项目自带部分商业,加上在建的云上府和周边社区都带有部分商业,基本可以满足日常需求,日常购物可以前往周边社区,不过片区内缺乏大型商业,有待完善。

周边配套:项目周边配套并不多,整体面貌一般,多为待开发荒地,后期随着周边项目的逐渐开发,配套和整体面貌会有进一步改善,远一点有立新湖,不过有一定的距离,直线距离立新湖约1.2公里左右。

周边房价:该片区有2个新盘入市,分别是2022年6月已经入市的华润润峯云上府,98-130㎡住宅,备案均价4.86万/㎡(带精装),目前已经售罄;华润云上润府,是去年由华润拍下的A208-0991限价宗地,98-135㎡住宅,毛坯限价4.79万/㎡,计划5月份入市。

买房子是为了孩子的教育吗,沙井鸿荣源哪个学区

买房子是为了孩子的教育吗,沙井鸿荣源哪个学区

买房子是为了孩子的教育吗,沙井鸿荣源哪个学区

8

悦章凤凰里

大悦城悦章凤凰里项目占地3.26万㎡,总建面21.2万㎡,共规划有7栋住宅,4栋商品房、3栋保障房,33-34层。总户数1426户,其中可售商品房758套、保障房668套,车位1564个,容积率4.98。自带一所12班幼儿园和一所36班九年制学校及公交首末站3200㎡。

交通:项目距离11号线桥头站D2出口约600米,属于地铁盘,邻近宝安大道与广深公路,可自驾前往深圳各区,无论是乘坐轨道出现还是自驾,出行都相对便利;

教育:根据相关规划,项目配建有一所12班幼儿园和一所36班九年一贯制学校,周边有桥头学校,立新湖外国语学校,南方科技大学附属中学等;

商业:项目会有部分底商,后期大规划会有商业。北侧有鸿荣源奥特莱斯商业(在建),万丰海岸城商圈,立新湖南侧即是福永商业中心;文娱:立新湖公园,万丰湖湿地公园,凤凰山公园,网红打卡点智美park等。

买房子是为了孩子的教育吗,沙井鸿荣源哪个学区

买房子是为了孩子的教育吗,沙井鸿荣源哪个学区

9

深铁铭著坊

宝安松岗深铁铭著坊计划入市,将推出462套住宅房源!面积66-84㎡户型,该项目原是去年深铁集团在深圳第3轮集中供地拍卖中竞得的AA407-1020地块,商品房毛坯限价4.45万/㎡,目前营销中心暂未开放。

深铁铭著坊,由深铁集团开发,位于宝安区松岗街道沙江路与沙浦围工业大道交汇处西北侧,项目北侧还是以大片农民房及工业区为主,西侧及南侧都是居民住宅小区,整面面貌可观,6/11/12号地铁线枢纽“松岗站”距离约300米。

占地面积约2.55万㎡,总建筑面积约23.4万㎡,计容建筑面积约18.6万㎡,容积率7.28,绿化率30%,共由3栋住宅+1栋酒店办公组成,分2期开发,其中一期1栋1/2单元住宅46F,1栋单元住宅29F,2栋是幼儿园,二期3栋酒店办公52F,旁边规划1所18班小学。总规划651户(其中商品房462户,保障房189户),停车位1124个。

地铁配套:6/11/12号地铁线枢纽“松岗站”距离约300米,交通便捷,可快速通往光明,宝中,南山,龙华各大区域。

教育配套:项目自带幼儿园,旁边规划1所18班小学,根据2022年宝安教育局学区划分分,小中学区划分在松岗实验学校,该校是1所九年制54班公办学校。

商业配套:项目周边底商可满足日常生活,周边还有沃尔玛购物中心,松岗天虹商场等商业体。

周边价格:项目周边二手房楼盘,松和瑞园,中海西岸华府,政府指导价在4.36-4.65万/㎡,真实挂盘均价在4.7-5.6万/㎡,新房方面可以参考2020年12月入市的新世界松风明月,88-125㎡住宅,备案均价5万/㎡。

买房子是为了孩子的教育吗,沙井鸿荣源哪个学区

买房子是为了孩子的教育吗,沙井鸿荣源哪个学区

买房子是为了孩子的教育吗,沙井鸿荣源哪个学区

光明区-待入市新盘盘点

买房子是为了孩子的教育吗,沙井鸿荣源哪个学区

买房子是为了孩子的教育吗,沙井鸿荣源哪个学区

1

中海时光境花园

基本信息:

「中海时光境」项目隶属凤凰城板块。从区位上看,凤凰城区位优势明显,区域占光明 GDP的70-80%,是光明科学城的产业聚集高地。项目毗邻南山科技园,享受“陆、轨、铁”三维一体的交通体系。

项目户型:面积段约为:82㎡ 三房一卫,89㎡ 三房两卫,110㎡ 四房两卫户型,为3梯6设计,共计约1543套住宅,由南北两地块组成,规划4栋150米超高层住宅,层数约49-50层,毛坯限价4.89万/㎡。

买房子是为了孩子的教育吗,沙井鸿荣源哪个学区

2

深房光明里

基本信息:

户型建面:81-118㎡3-4房(已开展厅)

毛坯限价:约4.46万/㎡

深房光明里位于光明街道明政路与德雅路交汇处东南角,西侧紧靠明心园,弥补了社区绿化、空间不足的问题,北侧是光明行政服务大厅的市政广场,西侧是片区高端生活社区光明大第和深房传麒山小区,南侧安居萃云阁也带有大型商业,东南侧则是南科大附属光明学校(原光明凤凰学校)。

深房光明里占地面积约1.07万㎡,规划建面约5.36万㎡,其中包含其中:住宅36105㎡(包含安居房4800㎡);商业15000㎡;公共配套设施2500㎡。深房光明里规定容积率≤5.0,机动停车位约702个,建筑高度限高100米。

项目规划3栋塔楼高层裙楼带商业,地下室3层,商业为3-4层,规划405套住房(含67套安居房),其中可售普通商品住房338套,预计2024年底精装交付。

目前项目户型图已经出炉,主推81-92㎡户型。

买房子是为了孩子的教育吗,沙井鸿荣源哪个学区

◭拓展阅读-点击图片

3

金地峰境誉府3期

基本信息:

户型建面:93-136㎡3-4房

吹风价:约5.2万/㎡

金地峰境誉府位于光侨路西侧、规划碧竹二路北侧,占地面积1.5万㎡,建筑面积约7.9万㎡,规划为4栋高层共500户,停车位610辆。

金地峰境誉府目前户型面积段尚未公示,价格可参考电建洺悦鹏著约5.1万/㎡或者金地峰境瑞府的5.14万/㎡,具体以备案价为准。

买房子是为了孩子的教育吗,沙井鸿荣源哪个学区

◭拓展阅读-点击图片

4

宏发悦见公园里

基本信息:

宏发悦见公园里位于松白路与红花中路交汇处北侧,临近地铁6号线公明广场站。

项目原为宏发达叁城市更新,项目分2个地块开发规划建设2栋高达46层的150米、2栋36层的120米的商住楼,将建设一个幼儿园和18班小学,东北角还将建设一个7192.4㎡的市政公园,目前公示信息较少,预计2023年下半年入市。

买房子是为了孩子的教育吗,沙井鸿荣源哪个学区

5

深铁睿著广场

基本信息:

光明中心4.53万限价盘——「深铁新湖」项目,作为光明中心板块最后一块地块,位置非常核心,北侧享受科学公园的永久景观。

深铁新湖项目,邻居是大名鼎鼎的满京华「狮山旧改」,使得深铁新湖项目,人气甚至不输于凤凰片区的深房「光明里」,光明明年的王炸项目之一,值得全城关注。

「深铁新湖」用地面积约15964.35㎡,总建筑面积约10万㎡,规划1栋25层写字楼和2栋住宅分别为25、26层,总户数300户,可售约246套,车位753个,产品建面约71-81-98-111㎡2-4房。

买房子是为了孩子的教育吗,沙井鸿荣源哪个学区

◭拓展阅读-点击图片

6

满京华狮山旧改

基本信息:

光明「满京华旧改」狮山利益统筹项目,目前7个地块已动工,预计明年中就可以入市,建面约88-98-118-135㎡2+1和3+1房。

沿光辉大道从西设计,范围涵盖10块用地,总用地109398㎡,总建筑面积约32.38万㎡,其中项目用地7块,返还用地1块,公共绿化用地2块。占地27万多平,总建面约80万平,计划打造集商业、生态居住、办公、产业一体化的功能复合社区。

靠近地铁29号线(规划)楼村东站,6号线“科学公园站”项目距大科学装置区--科学家谷仅一路之隔,同时邻近中山大学深圳校区等,未来作为片区内唯一的住宅开发区。

买房子是为了孩子的教育吗,沙井鸿荣源哪个学区

◭拓展阅读-点击图片

7

天泽玉河府

基本信息:

位于光明的天泽玉河府目前正在建设中,已出地面,预计2023年下半年入市,推售产品为建面约80-143㎡的2-4房。此项目规划容积约9.2万平,是集高品质住宅、办公、商业及酒店于一体的精品综合体。

根据规划显示,项目开发建设用地面积约1.6万㎡,规划容积约9.2万㎡,规划容积率5.8。其中,住宅建筑面积约6.2万㎡(含保障性住房4350㎡),商业、办公及旅馆业建筑面积约2.1万㎡。

买房子是为了孩子的教育吗,沙井鸿荣源哪个学区

8

特发学府朗园

基本信息:

毛坯均价≤4.72万/㎡,目前正建设中。

特发·学府朗园作为超大型宜居宜业社区的首发项目,规定建筑面积105190㎡,规划住宅95300㎡,商业3000㎡,由4栋高层住宅围合式组成,配建一所6班幼儿园以及社区菜市场、公交首末站等市政配套。

项目是在建中的地铁13号线二期(北延)公明北站。预计2025年6月建设完成,是深圳西部片区南北向的市域快线,线路起于深圳湾口岸站,终于公明北站。

买房子是为了孩子的教育吗,沙井鸿荣源哪个学区

9

星辉兰玉庭

远期有规划18号线玉塘站暂定名,学校:距离西南侧华中师范大学附属光明勤诚达学校约1.5公里,商业:自带底商,距离勤诚达沃尔玛商业约1.8公里项目地块是去年深圳第二次集中供地时,由星辉/森业创达以竞配建3500㎡+10.62亿竞得。

该地块位于玉塘街道,光侨路与规划通兴路交汇处西南侧,紧邻玉律学校。项目占地约1.15万㎡,建面约5.8万㎡,其中住宅约4.9万㎡,商业约2000㎡,容积率约为5.0,车位约750个。项目周边以工业园区和城中村为主,片区无住宅小区,附近有深物业御棠上府项目在建,距离勤诚达正大城约1.8公里,未来也主要依赖该社区的商业配套资源,靠近南光高速、外环高速,周边暂无地铁。

买房子是为了孩子的教育吗,沙井鸿荣源哪个学区

10

深物业御棠上府

位于光明玉塘街道的深物业御棠上府户型图已出炉,预计年中入市。项目面积段分别为:82-93-94-115㎡3-4房,但目前仅曝光了82-93-94㎡的3房户型,115㎡的4房暂未公布。项目毛坯限价4.34万/㎡,这个价格可以说是光明地板价,因为光明其他项目的限售价格基本都比御棠上府高不少!

买房子是为了孩子的教育吗,沙井鸿荣源哪个学区

11

深铁瑞城二期

基本信息:

深铁瑞城二期预计约有1446套商品房,户型面积100-120㎡3-4房,限价4.75万/㎡,预计在二季度左右入市。项目占地19万㎡,建筑面积63万㎡,容积率仅有2.97!

深铁瑞城项目位于广深港澳科技创新走廊重要节点的光明区,是深铁集团在光明区的首个轨道综合开发项目,占地19万平米,总建筑面积65万平米,包含保障及人才房、商业、住宅、幼儿园等业态。深铁瑞城项目建成后将提供10万平米、2000余套保障及人才房。

深铁瑞城项目前身为光明A608-0173宗地!是6号线长圳站地铁上盖,卫星图,就在长圳保障房边上。

买房子是为了孩子的教育吗,沙井鸿荣源哪个学区

12

伟城贤德瑞府

基本信息:

伟城贤德瑞府项目占地约1.4万㎡,总建面约12万㎡,规划4栋45层超高层住宅,建成后可提供近千套住宅,其中可售商品房约225套,保障性住房约700余套,另配建部分商业和一所18班幼儿园(配幼童托育中心)等7项公共配套设施。

项目目前处于桩基基础工,预计年内入市,2025年交付。伟城·贤德瑞府原为鸿大新城城市更新单元,项目位于光明区公明街道李松朗社区富力路与大园路交汇处,紧邻13号线公明北地铁站。

买房子是为了孩子的教育吗,沙井鸿荣源哪个学区