家里进行旧房改造,为了节省预算,决定在原有的基础上进行改造。今天就给大家晒晒我家番禺华景新城的一套房屋,花10万改造104平米三居室旧房,选择了装修十大风格里的现代风格,装修效果图太漂亮,邻居以为走错门了。大家来看看我家的装修怎么样吧。
现代简约风格比较注重空间的使用功能,废弃繁琐的装饰,室内布置也会按功能区分的原则进行,家居色彩造型比较简约时尚,以个性化、简单化装修方式打造舒适家居。
不管你的个性或者审美如何特别,除非你平时没有什么亲友来往,否则你必须确保客厅风格被大众所接受。而且,客厅装修中必须确保所采用的装修材质,适用于大多数人。

注重家居风格的实用性能,像餐桌、沙发等家具均摒弃了繁复的装饰

时尚的同时与完美的软装结合,给人全新的体验。

家具强调功能性,简单流畅的线条,前卫时尚。
卧室是家居生活环境中,不可缺少的重要空间。卧室的装修好坏,直接影响我们睡眠质量的好坏。有一个温馨舒适的卧室是每个人的追求,这可使我们劳累一天的身体和心灵得到休息。

清新、艳丽的明朗色来进行点缀修饰,可以让整个家居环境富有层次感。
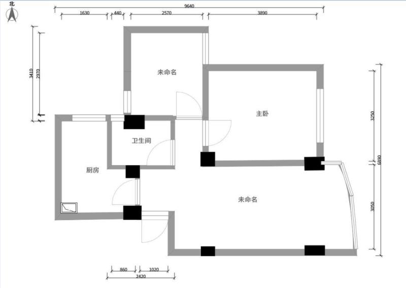
以下就是本套番禺华景新城小区104平米三居室房子的户型图。

该户型原始结构户型图
关于家中现代风格的104平米的三居室房屋装修设计,小编就为大家详细的介绍到这里了,如果您也正在为家里的装修问题困扰,希望小编分享的这套案例能为您带去帮助,这些装修小窍门一定能帮助你装好自己的房子。