
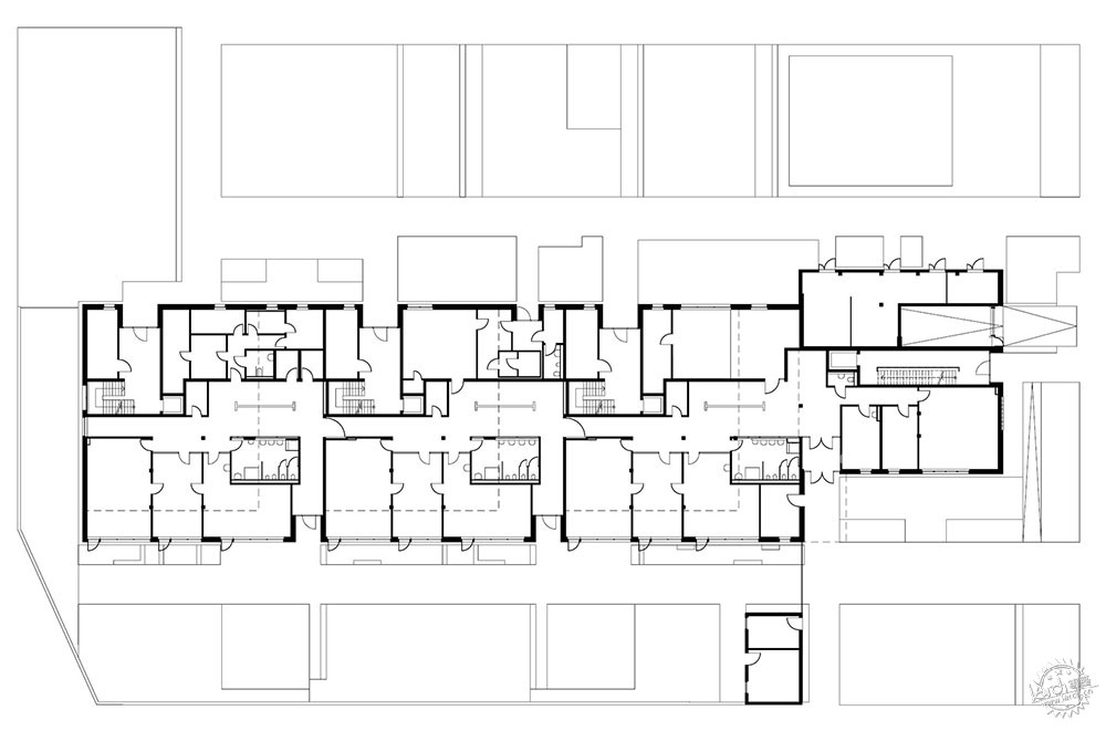
Prinz-Eugen-Park Residential Complex / Rapp Architekten 由专筑网邢子,小R编译 来自建筑事务所的描述:位于Jörg-Hube-Strasse的新建筑是拥有57套公寓的空间,其中45套是社会补贴公寓,还有一栋为儿童设计的6班幼儿园。 Text description provided by the architects. The new building on Jörg-Hube-Strasse creates space for 57 apartments of which 45 are socially subsidized apartments and one house for children with six kindergarten groups.


儿童之家整合在建筑的底部,位于一层,其特点是在西面有着突出的区域,所有集体房间都朝向西面的花园。后勤和侧室位于东面,与生活区隔离。内部走廊和检查室等空间通过天窗获得日光,并有多个景观出口通往花园。 The children's house will be integrated on the ground floor of the building on one level and will be characterized by a protruding base area in the west. All group rooms are oriented towards the garden area, which is located to the west. The staff rooms and side rooms are located to the east and serve as a separation to the living area. The interior corridors and checkroom areas receive daylight through skylights and have multiple views and exits to the garden.

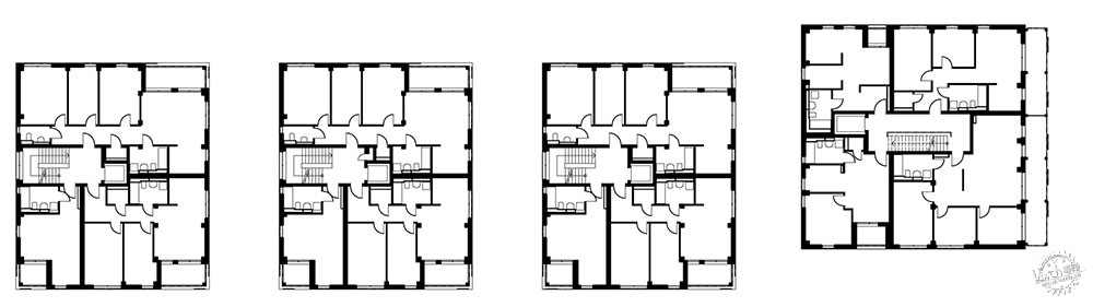
公寓位于四个四到六层的紧凑体量中,所有的屋顶区域都被设计成绿色屋顶。四个体量的分割创造了易于管理的社区,同时最大限度地利用了可穿过公寓和幼儿园的日光,所有的公寓都至少有两个朝向。通往公寓和儿童房的入口在空间上是分开的,公寓从东面或南面进入,儿童之家从西面进入。 The apartments are placed in four four- to six-story compact volumes above the groundfloor volume. All roof areas are designed as extensive green roofs. The segmentation into four volumes creates manageable neighborhoods and at the same maximizes the use of daylight in the apartments and the kindergarten. All apartments are oriented in at least two cardinal points. The entrances to the apartments and the house for children are separated geographically. The apartments are accessed from the east or south, the house for children from the west.


建筑师在住宅庭院中规划了一系列不同用途的房间,游戏区、休息区、城市园艺区、邻里区,这些空间可用于打球、聚会等。在建筑入口前有自行车架和长椅,与装饰性绿化融为一体。 A sequence of differently usable rooms is planned for the residential courtyard: Play areas, lounge/seating areas, urban gardening, neighborhood area for playing boules, parties, etc. In front of the building entrances there are bicycle stands and benches, integrated into a decorative grass band.

幼儿园的室外区域也是一系列多样化的、有地形情境的游戏区域,在这些空间周围,定位了露台区和一条供滑板车或小汽车行驶的环形道路,北面的捉迷藏区域、果园与游戏区相得益彰。 The outdoor area of the kindergarten is also a series of diverse, topographically modeled play situations, around which terrace areas and a circular path for scooter/bobby car driving are positioned. To the north, a hiding place and berry garden will complement the play area.

幼儿园室外区域南侧的工具存放区形成了小广场的背面,这是儿童之家的过渡空间,目的是连接本区与南侧公共绿地。 The tool storage box at the southern edge of the kindergarden outdoor area forms the back of a small square, which is the prelude to the house for children and is intended to function as a link between the quarter and the public green space in the south.

建筑和材料: 地下室和地面层到地面层以上的楼层上沿,以及楼梯和电梯井到屋顶都由钢筋混凝土建造。 Construction and materials:The basement and the ground floor up to the upper edge of the floor above the ground floor, as well as the staircases and elevator shafts up to the roof skin are constructed in reinforced concrete.

从地下一层以上的天花板上沿开始,4个建筑部分全部采用木材与混凝土的混合结构,天花板采用全表面无空隙的木材与混凝土复合材料天花板,并在复合材料梁和支柱上设置木质壁板。 From the upper edge of the ceiling above the ground floor, all 4 building parts are constructed in wood-concrete-hybrid construction. The ceilings will be erected as full-surface, void-free wood-concrete-composite ceilings with visible wooden soffit on linear wood-concrete-composite girders and the vertical support of the concrete development core.

木材与混凝土复合材料梁的垂直荷载通过内部可见的木质支撑逐层传递,水平刚度是通过混合天花板的连续混凝土圆盘完成的,圆盘与楼梯核心连接。支撑的内墙由石膏板封装的交叉层压木建造,交叉层压木墙的双壳被用作公寓隔墙,非承重内墙采用传统的干式结构体系墙体。 The vertical loads from the wood-concrete-composite girders are transferred floor by floor via internal, visible wooden supports. The horizontal stiffening is done through a continuous concrete disk of the hybrid ceiling-slabs, which are connected to the staircase core. Supporting interior walls are constructed from cross laminated timber encapsulated with plasterboard, a double-shell version of the cross laminated timber wall is used as an apartment partition wall. Non-load-bearing interior walls are constructed from conventional dry construction system walls.

外墙由非承重、隔热和逐层预制的木质框架组件组成。预制部分包括建筑构件、窗户和遮阳板,以及完整的木质外墙覆层。一层以上的外墙有垂直排列的、预制的、倒置 的板 ,这些板逐层改变其倒置方向。在楼层过渡处,木质外立面被一体化的、水平连续的防火带阻隔,底层的外墙采用阻燃材料的板式外墙。 The exterior walls consist of non-load-bearing, thermally insulated and floor-by-floor prefabricated timber frame components. The prefabrication includes the construction, windows and sun protection, as well as the complete wooden facade cladding. The facade from the 1st floor upwards will have vertically arranged, pre-grayed and inverted board sheds, which change their inverted direction floor by floor. At the floor transitions, the wooden facade is interrupted by an integrated, horizontally continuous fire protection bar. The facade on the ground floor is made of flame-retardant materials as a panel facade.

可再生原材料的比例: 可再生材料以部分可见的木质构件形式安装在一楼以上的承重结构、外墙结构以及一楼的外墙镶板和内墙板上。 Proportion of renewable raw materials:Renewable materials will be installed in the form of partially visible wooden components of the load-bearing construction from the 1st floor onwards, the outer wall construction, as well as the facade panelling and the interior panels on the first floor.











建筑设计:Rapp Architekten类型:可持续设计/居住建筑面积:8960 m2项目时间:2019年摄影:Conné van d′Grachten制造商: GRAPHISOFT, Parador, RenzBriefkästen, Binderholz Bausysteme, GerflorMipolam, JetTageslicht&RWA, KnaufAMF, KnaufBauprodukte, WAREMA Renkhoff SE Sonnenschutz主创设计师:Daniel Maier设计团队:Philipp Rudischhauser, Wolfram Böttiger, Robin Merz, Juan Carlos Daza Penuela客户:müllerblaustein, Blaustein as a general contractor for GWG München, München工程:tragwerke+, Reutlingen; IB Scherraus, Ulm; IB Puscher, Schelklingen, müllerblaustein景观:silands, Ulm; Jühling & partner, München工程管理:a2 freising, Freising城市:慕尼黑国家:德国