想要在浦东置业(除了临港)的朋友今年的心情可谓是起起伏伏:
一批次5个新盘质、量均非常在线,但积分要求都不低;
二批次外环内0供应,外郊环也仅有3盘;
三批次浦东供应5盘,其中仅有1盘位于内环内,周康绿宝园入围积分高达92.1分;
四批次浦东公示了8个新盘,中、外、郊环均有新盘,总价段跨越550万-2000万之间,产品有高层、叠墅、合院多种,类型极为丰富。
五批次仅有外高桥尼德兰星屿一盘,94套房源,能满足的购买人群地域性限制本来就有限,量还少。
不难发现, 在浦东买房,不仅需要等,而且好盘的竞争也非常激烈。 无论是预算还是分数,门槛都相当高!
但随着新供地的出让和以往供地建造节奏的加快,浦东的新房是越来越多了,而且以往供应中少有的市区别墅、洋房,还有断供多年板块突然“蹦”出来的新盘,也越来越多了。
为此,我们特意梳理了浦东接下来有机会入市的新盘/地块,一共35盘!
大家先来看看都在哪里?
01
预计30+楼盘等待入市
金桥、森兰、三林、外高桥······
按照预测,浦东接下来有至少25+新盘等待入市:

总的来看,接下来浦东的供应亮点非常多:
首先是地段,在“僧多肉少”的金桥、世博、三林、张江、森兰均有全新供应, 而且大部分工程进度已经具备入市条件,预计时间上会非常快。
其次是产品,除了常规的高层产品,浦东此次多个核心区域金桥宝地东郊四季、张江浦开江南里、世博雪野家园、北蔡仁恒有园等都是高品质、高预算和高积分的别墅项目,稀缺指数极高。
还有价格,除了惠南、航头、新场几个板块的预算在300万左右起步,其他像唐镇、森兰、外高桥等多个板块预计总价会在600万左右,别墅产品更是达到1000万+,浦东的入手门槛其实并不低。
除了已有的新盘,其实在今年三个批次的供地中,浦东每一轮也都有新的优质地块生成:

像唐镇此次的新地块,就位于2号线唐镇地铁站周边,步行可达,单论位置其实还要优于唐镇三兄弟,而张江、杨思近两年几乎没有住宅地块出让,今年新出的供地也可以说是万众期待!
下面我们盘点一下浦东接下来的新盘的亮点部分!
02
核心区纯别墅项目进场
当下浦东供应的地域特征其实很清晰,外环内大多都是适合改善/刚需家庭的高层&小高层住宅,而外环外除了高层,还会有部分洋房和别墅,特别是崇明,大多数产品都会做成高低配小区,不间断供应一些别墅产品。
但在接下来, 浦东中环即将有大批量终极改善型别墅产品进场,借助金色中环发展带,属于浦东新晋烫金地段,积分、预算要求都比较高,需要把握机会。
——大金桥
在浦东,说起近两年热度高的区域,一定会有人说唐镇、森兰,但其实大金桥的热度丝毫不输前者,主要原因还是在于金桥的新房供应真的太稀缺了,在去年一整年的供应中:
一批次金桥仅供应2盘;四批次金桥仅供应1盘;

而今年一批次金桥也仅有2新盘,三、四批次1新盘加推两次;
可以看出来大金桥历史供应中稀缺指数极高,而其实接下来,大金桥的供应其实相当给力:
——宝地东郊四季
项目所在的东郊位于浦东陆家嘴和张江高科之间,也就是张家浜楔形绿地附近,是浦东公认的价值高地,这里有成片的低密别墅区。
宝地东郊四季是浦东内中环东郊别墅区难得的纯别墅低密住区,首批房源预计很快入市,售楼处即将开放!


根据用地规划,项目是纯住宅用地,分为四个地块,容积率仅有0.67,主力产品有联排和叠加别墅,包括建面约169-202㎡联排和约144-190㎡叠加别墅。
——浦开东郊壹号院
浦开东郊壹号院其实是属于张家浜楔形绿地的一部分,根据目前已有公示和效果图来看,这个项目的容积率低至1.0,而且两地块总投资额高达40.9亿元,应该是个纯别墅项目。

在前段时间,项目网传部分效果图&户型图也得以流出:



但浦开东郊壹号院应该是目前金桥所有项目中进展最为缓慢的新盘之一,预计最早明年才能入市!
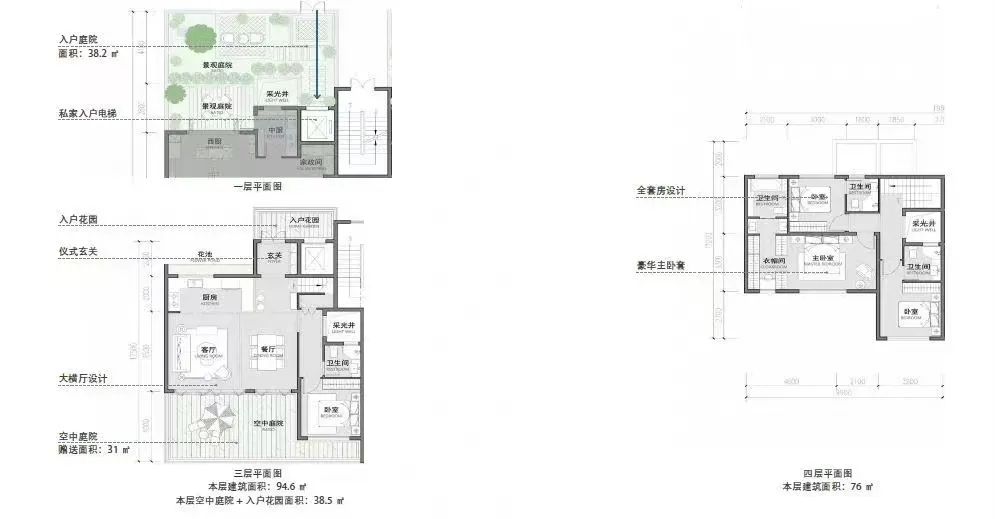
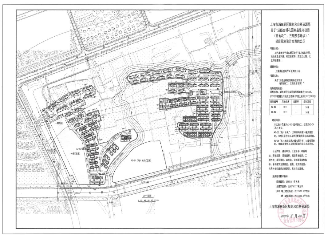
——汤臣金桥花园
汤臣金桥花园在去年年中就发布了规划设计方案,项目南侧就是大家所熟知的 张家浜,东郊宾馆、合生东郊别墅、东郊壹号、华洲君庭、在建的浦开江南里都在这里。西南方向则是汤臣上海浦东高尔夫球场。
而汤臣金桥花园新一期项目分为两个地块开发:

根据规划图,项目西侧的地块可售住宅有14幢多层住宅、10幢低层住宅,东侧地块是6-8层的洋房还有联排或者叠加别墅。
总的来说,项目中环内的区位,毗邻金桥、张江,别墅以及别墅区的洋房,产品形态非常稀缺,值得期待。
——浦开云璟
浦开云璟其实在今年四批次中就传出来入市的消息,但至今到了第五批次依旧没有迎来入市,许多人依旧在等。

而之所以该盘能有如此之高的热度,是位于浦东张家浜楔形绿地之中,这里可是被称之为浦东碧云2.0版本。
张家浜楔形绿地总规划达到了1456.4公顷,生态优势非常高,规划等级高,而且项目地段又好,地处中环附近,周边又有两条地铁浦东足球场站(14号线和在建的21号线),地段优势也非常明显。
——浦发上城
浦发上城在金桥所有项目中应该算是交通优势最为明显的项目之一了。
按照此前爆出的项目规划,此项目地块总占地面积约42万平方米,处于地铁9号线、12号线金海路站、14号线桂桥路站、9号线、14号线金桥停车场上盖。

项目虽然暂时还没有过多信息披露,但距离较近的浦开仁恒·金桥世纪此前的入市积分已经高达78.06分,入手难度已然不低!

03
森兰、张江、北蔡、三林遍地开花
除了森兰近两年偶有供应之外,张江、北蔡、三林的新房是肉眼可见的稀缺。
但就单拎出来,其实每一个板块不管从规划还是现状来看,宜居指数都非常高:
张江作为全市少有的近几年一直没有新房托底的地段,其标杆小区近几年涨幅一直都非常喜人。
代表性小区张江汤臣豪园、万科翡翠公园最高成交单价早已突破14万+/㎡,而张江科学城还在不断的外延、拓展其版图,影响范围早已超出张江本区域。
而北蔡地理位置上正好是浦东核心区与南浦东的连接点,四周是前滩、世博后滩、张江科学城、花木,且与这几个板块都有地铁联通,站点均匀分布,乘车十分便捷,因此也是浦东受众非常广、最受欢迎的居住区之一。
还有三林 ,在近几年风生水起的前滩总价早已远超千万,积分动辄90+现下,并不是大部分老百姓能考虑得起的;而且价格合适的房子前滩可选择的房源并不多,因此,大多数购房者其实可以选择买在前滩的隔壁——三林板块。
而接下来,这几个板块供应的新房其实成色会相当好:
——森兰壹公馆
森兰凭借着浦东北部优越的地理站位,依外高桥、傍金桥;又有着较为出色的生态绿地资源,近年来一跃成为中高端品质住区!
像去年的森兰星河湾,推出285套房源,套均总价1200万+,最终触发积分,入围分82.42分,已经是相当之高!森兰板块,已经成了无数中产家庭买房的优先项。
如今,森兰又有「森兰壹公馆」将推出建面约71-106㎡1-2房,此次将推出项目剩余3栋住宅(此前曾对外出租运营)。

——招商璀璨公馆
其实说到招商璀璨公馆很多人也已经很熟悉了,在首开的336套房源中,在认购入围比为2的情况下,依旧取得了65.16的入围积分!
森兰国际住区的居住环境,再加上六师附小和森兰进才教育资源和供应上的稀缺,共同促成了这个高分盘。

但其实在随着浦东后续的加量,招商璀璨公馆其实多了一些变量:
首先,在总价600-800万这个区间内,浦东就有浦发唐城、融创未来金融城、横沔玖境、金桥的浦发上城、浦发云锦、外高桥的尼德兰星屿、金雅苑等, 选择面其实非常大。
再说倒挂,唐镇的浦发唐城和融创未来金融城离唐镇三兄弟其实相距并不算远,而后者早就有9万/㎡的成交先例,璀璨公馆不见得是唯一的选择。
——中企云萃森林&中企云萃江岸
这两个项目位于真正的前滩南,三林滨江南片区,官方规划中称之为东岸。
在真正的前滩住宅用地已经屈指可数的当下,浦东中环开*轮发**动中的下一轮理所应当的成为了三林滨江,目前来看,规划起点、站位也非常高!

但同时滨江南也存在其局限,因为是一个新开发的片区,所以板块内几乎所有配套都需要从零开始,目前需要借助临近板块配套。
而根据最新消息,中企云萃江岸&中企云萃森林双子星项目产品为建面约90-175㎡2-4房,约1023套房源,预计最快年底前入市!
——浦开江南里
「浦开江南里」是浦东集团+绿城的联袂合作,为新中式低密度别墅区。
绿城集团早期的代表作是欧洲古典建筑风格,从桂花城系列到法式宅院、平层官邸、二代高层、地中海系列,绿城打造的住宅引领了国内高端住宅的一个重要方向。

根据规划方案公示,项目将建成多栋中式别墅,总建筑面积约15.7万㎡,容积率0.7。
在上海1.0以上宅基地供应被叫停以后,这样低密度的社区新盘已属罕见。
总的来说。
在浦东接下来的供应中,地段跨越中、外、郊环,产品类型丰富,涉及到市区别墅,大平层,洋房高层多种类型产品,选择性丰富。
但由于不同项目、不同开发商的工程进度、价格预期不一样,再叠加上些许外部因素,很多新盘/地块的入市节奏仍有待观察。
但接下来的六批次浦东的入市情况预计会相对理想, 想要置业浦东你的伙伴可以提前做好准备哦!