三明经济开发区体育公园项目的招标公告近日发布。

区位图
据公告,三明经济开发区体育公园项目位于 三元区岩前镇吉口村 , 总用地面积约26.27万平方米 。总建筑面积约2万平方米,建设 篮球场、羽毛球场、足球场、气排球、健身广场、跑步道、登山步道以及配套儿童活动设施、生态停车场、公共厕所 等公共服务设施。
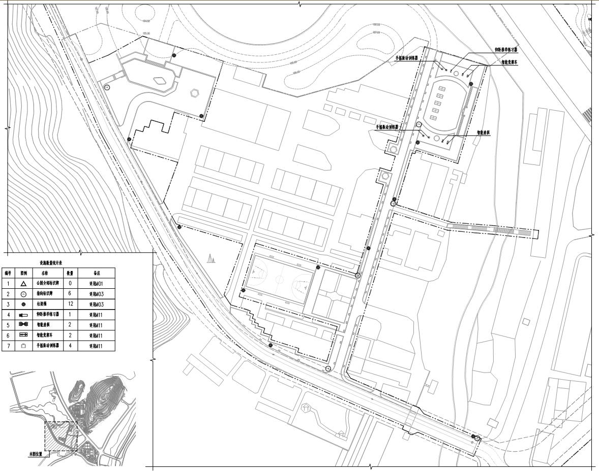
其中A地块设有智能竞赛车、智能浪板、仰卧推举训练器、手撼振动训练器等

A地块设施布置平面图

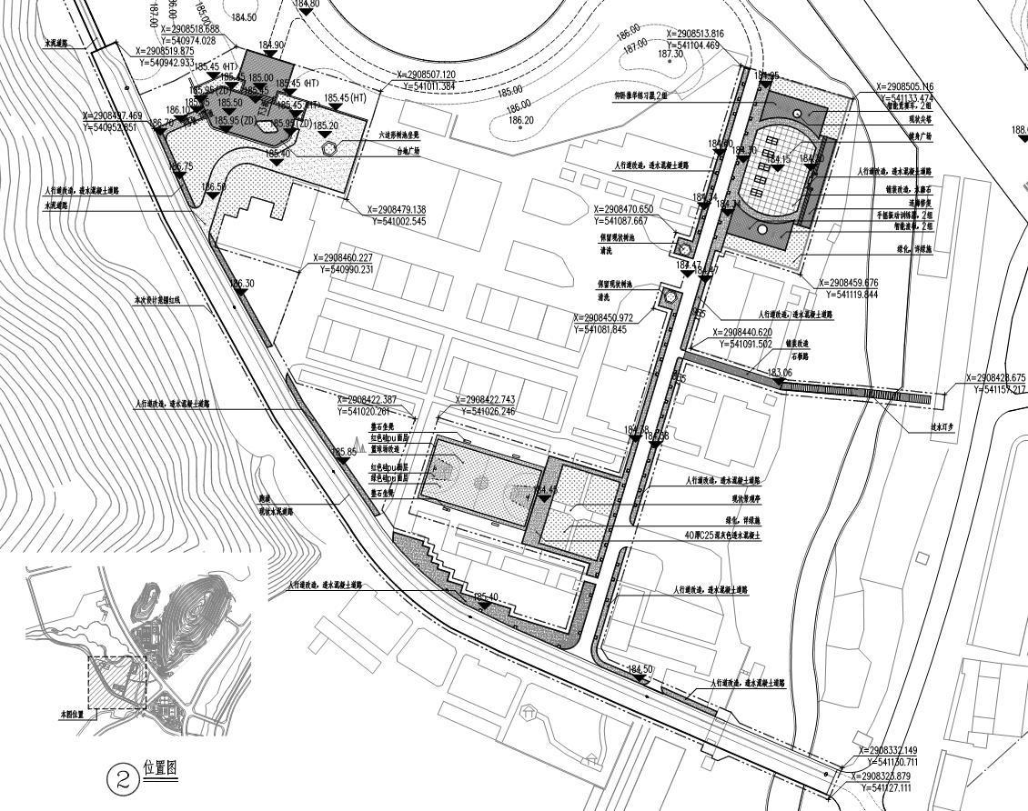
A地块景观平面图

B地块景观平面图
B地块设有网球场、足球场、智能健身休闲驿站等

B地块设施布置平面图

B地块景观平面图
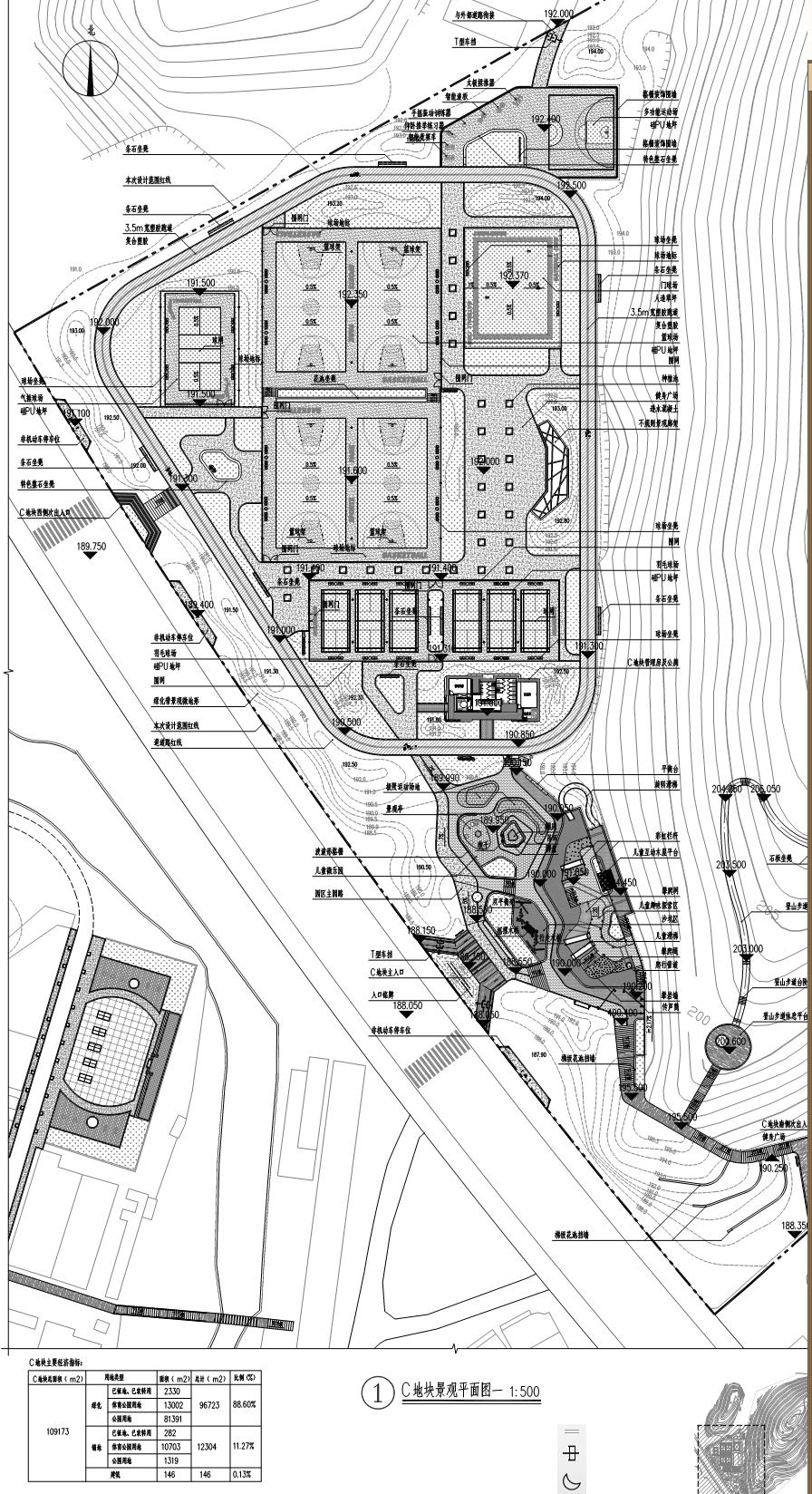
c地块设有儿童微乐园、健身运动区、羽毛球场、篮球场、门球场、气排球场、智能平衡板等。

C地块设施布置平面图

C地块景观平面图
招标公告详情请点击三明市公共资源交易网