项目标签
设计公司:Waechter Architecture
位置: 美国
类型: 建筑
材料: 木材 锈蚀(耐候)钢 钢 玻璃
标签: 俄勒冈州 室内设计 小而美的住宅 尤金
分类: 住宅室内设计 住宅建筑 独栋住宅
#一起上头条##抄书打卡##头条创作挑战赛##在头条看见彼此##别墅##建筑##美丽乡村##经常安慰自己的一句话是什么##中国古建筑摄影联盟##爆料#
草地住宅(Meadow House)是一个全新的占地2000平方英尺的私人住宅,位于尤金市的学院山地区,位于俄勒冈大学西南几英里。房子的名字来自于Madison Meadow,这是一个位于社区中心的景观保护区和社区公园,该社区主要由平凡的独栋住宅组成。
▼远眺建筑

这个家庭想要在草地附近建造一座住宅,并尊重草地的特征,以及它能为整个社区带来的更大价值。同时,他们希望自己的生活方式能够更紧密地接触社区和它标志性的景观。
▼住宅入口


草地中的草地
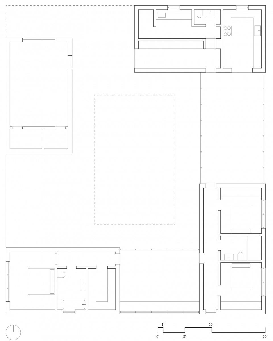
从空中俯瞰看,房子就像一系列的框:住宅区的轮廓,草地的边界,盘踞在场地东北角的房屋直线式外形,以及让人联想到保护区的内部中庭。这个中庭保留了与周围景观相同的自然特征和植被,并组织了住宅内部的各种功能和起居空间。
▼概念图

▼俯瞰建筑

单层的房屋被分成四个体块。一个独立的车库兼工作坊的体量固定在西北角,一个厨房体量位于东北临街。南部一个卧室套间及主要套房位于中庭和开阔草地的中间。共有四个阳台,两个敞开,两个覆以玻璃幕墙,它们容纳了房子的主要生活区域,一年四季与景观接触。
▼从入口看向中庭

▼入口走廊

基本形式与构造
草地住宅的四个体块的墙壁、坡屋顶和深深的檐口完全由防腐钢板包覆,无需额外涂料或或表面处理就能自然防雨。这座房屋被视为一个整体,在其上做减法形成从而带屋顶的露台、中庭和主要生活空间。这种策略也极大地减少了对额外材料和未来维护的需求。其强大的抗腐蚀和雨水破坏的能力,使得内倾的屋顶可以直接将雨水收集进中庭花园。总的来说,每一个设计决定和材料选择都是着眼于经济、耐用和防护。
▼中庭花园概览

▼从中庭花园看向带顶的露台

▼深檐下空间

活力与连接
房子的简单形式和色调衬托出草地的野生活力和四季的变化,定义了空间的主要体验。
▼室内概览


▼厨房

▼卫生间

就像草地为行迹和卧憩提供安身之地,房子也寻求类似的连接,不是模仿,而是作为一个中介,让住户深刻了解和敬畏房屋所提供的一切。
▼从室内看向庭院

我们希望Meadow House既属于附近的街道房屋网络,也同样属于草地本身,它将成为一个*会集**场所,帮助建立更强大的社区,并管理好这个宝贵的财富和不可替代的资源。
▼住宅夜景

▼总平面图

▼平面图

▼屋顶平面图

▼立面图

▼剖面图

Location: Eugene, OregonWaechter Architecture Design Team:Ben Waechter, FAIA, Principal Architect Lisa Kuhnhausen, Project ArchitectArchitecture and Interiors: Waechter ArchitectureContractor: Chalus Construction Co. Structural Engineer: Grummel Engineering Doors and Windows: Sierra PacificPhotography: Lara Swimmer