
△ 图书馆主入口 摄影:吴嗣铭
设计单位 WAU建筑事务所
项目地点 山西兴县
建成时间 2021年
建筑面积 8690平方米
本文文字由设计单位提供。
项目位于离山西兴县120师学校大约一公里的友兰中学内,场地南北高差约6米,立于教学区与生活区之间的校园中轴线上,包含图书馆及专业课室。场地周边依山而建的村落给我们留下难忘的体验,我们希望建筑能形成一个村落意象,意在营造多层次的游走空间体验及一个可穿越的多孔性场所,与原有刻板的教学楼形成对比。

△ 概念草图 ©WAU建筑事务所

△ 校园鸟瞰 摄影:吴嗣铭
我们将折叠的墙体依地势顺延,图书馆、美术、音乐地理等专业课室及展厅分别置于墙体之间,形成一个建筑与庭院相间的布局形式。建筑室内外相互交融,为师生提供多样的交流空间,东侧结合体育场地成为看台或者午后阴影下的体育活动场所,西侧面对宿舍区分别形成图书馆及艺术楼的入口广场。连续曲折的墙体把室内视线导向不同景色,人们在场地内很难一览建筑全貌——犹如村落的空间体验,步移景换,画卷被层层打开。

△ 图艺楼之间的通道 摄影:吴嗣铭


△ 下沉庭院—户外剧场 摄影:吴嗣铭

△ 图书馆的穿越性 摄影:吴嗣铭
天窗顺应混凝土折墙开设,为室内提供静谧的阅览空间及光线稳定的作品展示空间,同时可减少墙体开窗面积,较好地适应当地严寒的气候特点。高低错落、粗粝木纹质感的混凝土折墙,与周边雄伟的山脉取得谐调。

△ 东侧看台空间(图书馆部分)摄影:吴嗣铭

△ 空间的穿越性 摄影:吴嗣铭

△ 图书馆的高差 摄影:吴嗣铭

△ 室内外高差创造出空间的体验 摄影:吴嗣铭

△ 立面的多层渗透 摄影:吴嗣铭

位于场地北侧,由老师阅览室及学生阅览室两部分组成。低架书库保证了室内的视线通透,阅览区则设在明亮的外侧。跟北工大图书馆设计一样,我们强调图书馆应该“从单一的人与书本的关系,到人与人的知识交换的具有社交属性的学习空间”。我们利用家具布置划分了可单独发呆、可高效小组讨论、可自修阅读等不同形式的空间,以对应不同的诉求。

△ 天窗 摄影:吴嗣铭

△ 楼梯 摄影:吴嗣铭

△ 阅览室 摄影:吴嗣铭

△ 台阶阅读区 摄影:吴嗣铭
折墙的窗洞因与室内外高差变化而让空间产生微妙变化,让人在空间游历过程中有着不同的情绪体验。例如从图书馆负一层的期刊阅览到一层的读者沙龙空间,墙体上的开口随着高差上升,让空间产生从仰视的敬畏感到平视的亲切感,再到二楼借阅区由天光带来的静谧感等丰富变化。

△ 外部的窥视 摄影:吴嗣铭

△ 内部的仰视 摄影:吴嗣铭

△ 内部的平视 摄影:吴嗣铭


△ 二层的静谧氛围 摄影:吴嗣铭

布局呈“品”字形,由室外的下沉庭院——露天小剧场来组织起艺术楼的各楼层交通,首层展厅串联起各专业课室,同时把远山,操场及西面的小花园等不同景色编织起来。户外的楼梯设置提示着建筑物的可穿越性,我们设置了可以在美术、舞蹈、音乐及戏剧等不同空间穿行的路径,从而希望激发学生间的交流及互动。

△ 艺术楼入口广场 摄影:吴嗣铭

△ 艺术楼展厅前广场 摄影:吴嗣铭


△ 展厅 摄影:吴嗣铭

△ 外置楼梯 摄影:吴嗣铭

地面及台阶全为芝麻灰花岗岩铺装,摒弃灌木草皮,只在必要位置种上国槐树。我们希望外墙及地面呈现同一色调,建筑像从地面长起来的石头村落,或者像山顶的殿堂。
设计完成于9年前,当我们重新审视当初的概念说明,发现唠唠叨叨的说教确实令人讨厌,但单刀直入的场地回应策略却不会过时。

△ 东侧看台空间(艺术楼部分)摄影:吴嗣铭

△ 单一的景观材料 摄影:吴嗣铭

△ 山顶的“殿堂” 摄影:吴嗣铭
设计图纸 ▽

△ 总平面图 ©WAU建筑事务所

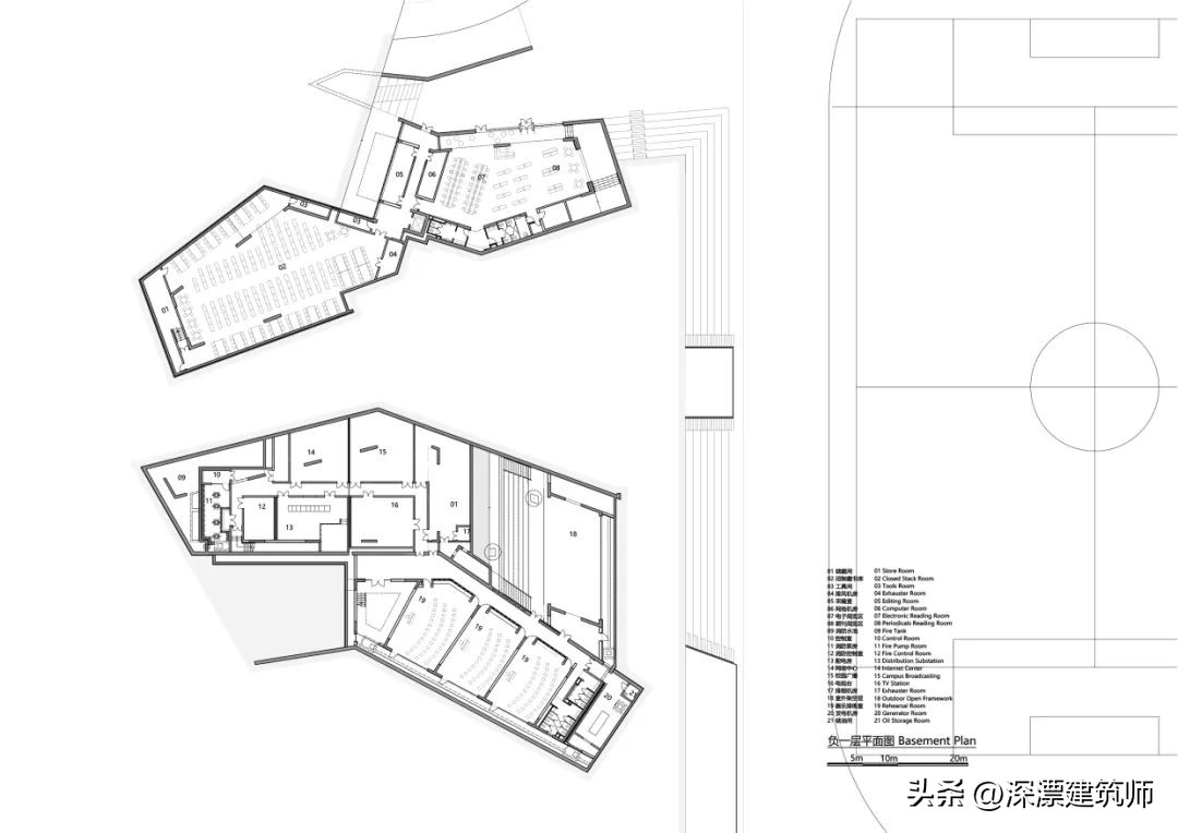
△ 负一层平面图 ©WAU建筑事务所

△ 一层平面图 ©WAU建筑事务所

△ 二层平面图 ©WAU建筑事务所

△ 三层平面图 ©WAU建筑事务所

△ 立、剖面图 ©WAU建筑事务所
完整项目信息
项目名称:友兰中学图艺综合楼
项目类型:建筑、室内、景观
项目地点:山西兴县
设计单位:WAU建筑事务所
主创建筑师:吴林寿、赵向莹
设计团队完整名单:李景洲、林光福、张仕浩、詹捷欣、曾镇浩、周英丽、郑亚龙、师丝雨、Valentina Lupo、Alexandre Midou
业主:友兰中学
造价:4000万
设计时间:2013年—2014年
建设时间:2018年—2021年
用地面积:9360平方米
建筑面积:8690平方米
合作单位
建筑、结构、机电:深圳市清华苑建筑与规划设计研究有限公司
摄影:吴嗣铭