高向宇 周锋 陈传勇 梁凯 王光辉 罗华
中交一公局第八工程有限公司 湖南理工学院
摘 要: 龙溪嘉陵江特大桥主桥为(108+200+108)m预应力混凝土连续刚构桥。该桥8#、9#墩为主墩,其中,8#主墩桩基采用19根直径2.8m、长度35m的钻孔灌注桩基础。承台采用双壁钢套箱钢围堰(尺寸为47.8m×17.8m,高25m)施工。钢围堰竖向分为4节,自下向上分块高为7.5m+6m+6m+5.5m,每节侧板平面分8块。底节钢围堰采用原位拼装,并利用2800t提升下放系统将围堰下沉到位;钢围堰吸泥下沉到设计标高后,采用垂直导管“减球法”进行封底施工,并利用现场边角料在钢围堰内侧焊接加强角钢,以提高封底混凝土握裹力;围堰下放到设计标高后,安装度洪装置系统,保证围堰的整体稳定性。8#主墩钢围堰封底后,检查未发现漏水现象,施工质量达到设计要求。
关键词: 双壁钢套箱钢围堰;吸泥下沉;封底;度洪;施工技术;
基金: 国家自然科学基金(51708209);湖南省教育厅科研项目(19A208,18B360);
1 工程概况
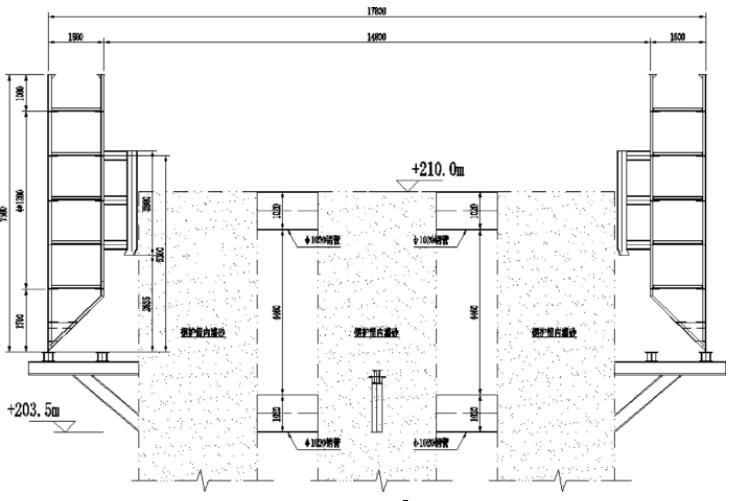
龙溪嘉陵江特大桥是重庆三环高速公路合川至长寿段的控制性工程,大桥全长1053m,主桥为(108+200+108)m预应力混凝土连续刚构桥(如图1所示)。该桥8#、9#桥墩为主墩。其中8#主墩采用整体基础,承台为圆端形,平面尺寸44.5m×14.5m×5m,承台厚5m,基础采用19根直径2.8m、长度35m的钻孔灌注桩基础。8#桥墩承台采用双壁钢套箱钢围堰施工,钢围堰结构及细部构造如图2所示。钢围堰平面为圆端形,平面尺寸(47.8×17.8)m,壁厚1.5m,钢围堰高25m,竖向分为4节,自下向上分块高为7.5m+6m+6m+5.5m,每节侧板平面分8块。钢围堰设防水位为+203.0m,钢围堰封底厚度为3.5m。

图1 龙溪嘉陵江特大桥主桥桥型布置图 *载下**原图
桥位位于嘉陵江与涪江汇合口下游约10.8km处,具有典型的山区河流特征,洪水主要由暴雨形成,洪峰流量变幅大。据访问调查及现场洪痕,桥位水位平均保持在+202m~+203m。嘉陵江上游涪江50年一遇洪峰流量为35000m/s,河流断面最大水流速为3.5m/s。8号主墩位于嘉陵江河床主河道合川侧,河床砂卵石覆盖层约4~7m,在承台中部隆起,承台两侧河床地势较低,承台范围内最大高差约为4.15m,卵石覆盖层地基承载力为400kPa。

图2 围堰布置示意图 *载下**原图
2 围堰施工总体方案
综合考虑施工条件、材料用量、安全风险、水流条件等各种因素,参考类似基础施工方案,8#桥塔墩基础采用双壁钢套箱围堰施工,采用“先桩后围堰”的施工方案,先搭设钢栈桥和钻孔平台进行钻孔桩施工,并同步进行双壁钢围堰的加工,桩基础施工完成后,利用原桩基钢护筒作为支撑,搭建临时拼装平台,进行钢围堰的施工。钢围堰施工工艺流程如图3所示。

图3 钢围堰施工流程图 *载下**原图
3 钢围堰施工关键技术
3.1钢围堰加工及拼装
根据现场施工条件,钢围堰在工厂分节分单元加工制作,再运至墩位现场拼装。8#主墩钢围堰按设计分4节,每节侧板分8块,制作完成后进行检查、校正、焊接、组装。钻孔桩施工完成后,在平台上拼装龙门吊,龙门吊拼装完成验收后,利用龙门吊拆除钢围堰范围内的钻孔平台及水下割除多余护筒、钢管桩。在钢护筒上焊接双拼45b工字钢作为临时拼装平台。横梁中点处利用双拼45b工字钢作为横梁牛腿,搭设临时拼装平台(如图4所示)。底节钢围堰的拼装在临时拼装平台上完成。

图4 临时拼装平台示意图 *载下**原图
3.2钢围堰提升与下放
钢围堰采用8台350t千斤顶和钢绞线提升、下放,共设置8个吊点。在底节钢围堰拼装合拢后,安装钢围堰提升下放系统(如图5所示)。下放装置均提前在加工厂制作完成由驳船运至临时拼装平台。提升下放系统由下至上依次为下吊点装置、底锚及底锚组件、钢绞线、垫梁A(16mm自制双拼钢板梁,高度为1216mm,宽度300mm)、提升大梁(材料同垫梁A),垫梁与提升大梁安装均有牛腿钢板进行限位固定。底节钢围堰拼装完成后提升10cm后拆除临时工作平台,通过提升下放系统缓慢均匀下放钢围堰,底节钢围堰下放到水面,处于自浮状态后,拆除提升下放装置,浇筑钢围堰刃脚混凝土,继续注水下沉,安装下节围堰。底节钢围堰下放完成并将钢围堰调整好位置后,利用龙门吊接高剩余钢围堰。

图5 8#围堰提升下放系统布置图 *载下**原图
3.3钢围堰吸泥下沉
钢围堰吸泥下沉采用空气吸泥器对覆盖层进行清理,为提高吸泥效果,防止吸泥机头离刃尖太近而引起翻砂,刃脚下泥土清理采用小型弯头吸泥机,整个钢围堰上共布置6套吸泥机,每台吸泥机每小时吸泥40m3。吸泥立面布置如图6所示。钢围堰内面积较大,钢围堰下沉中出土量大,补水量大,必须配备足够的潜污泵、高压水泵和补水泵等机具设备,以缩短钢围堰下沉的周期。吸泥下沉过程中为了避免翻砂,应避免形成刃脚下翻砂通道,并避免在钢围堰壁刃脚底直接吸泥。由于水流的冲刷,吸泥过程中钢围堰上下游范围内会从上游冲刷河床,下游淤积泥砂的现象,因此当刃脚入泥、夹壁灌注一定高度的水体后,可以通过交替不均衡放水或吸泥的办法纠正围堰的偏斜。

图6 吸泥布置图 *载下**原图
3.4钢围堰封底
当钢围堰下沉至设计标高,确认钢围堰终止下沉,钢围堰外抛填堵漏完成后进行灌注水下封底混凝土作业,封底施工工艺如图7所示。

图7 钢围堰封底施工工艺流程图 *载下**原图
钢围堰封底采用垂直导管“减球法”施工。封底混凝土灌注采用导管法横桥向由一端往另一端推进的顺序进行。首盘封底混凝土浇筑时,导管下端提离坑底15~20cm,先将导管上的大料斗装满,料斗拔球同时,两台汽车泵同时向料斗中泵送混凝土完成首盘封底混凝土浇筑。混凝土浇筑过程中导管底口埋深不小于80cm,每个浇筑点浇筑至设计标高后,进行下一个导管灌注,逐段灌注至封底混凝土设计标高,封底混凝土灌注过程中,做好欠灌补灌的措施。在灌注过程中,应控制并要求现场定时绘制混凝土面标高线,低的地方及时补充混凝土。通过混凝土浇注方量和实测浇注高度提升导管及时拆卸导管,并注意协调各导管浇注速度使钢围堰内混凝土保持大致相同的标高。灌注过程中,每小时对首封结束的导管进行补料10min,直到达到设计标高。混凝土浇筑临近结束时,全断面测出混凝土面标高,根据测量结果,对砼面标高偏低的测点附近的导管增加灌注,力求封底顶面平整。
为提高封底混凝土握裹力,对封底混凝土高度范围内,钢护筒外侧,按50cm间距焊接 φ 20mm钢筋环,且当钢围堰下放时在封底混凝土高度范围内,钢围堰内侧,焊接角钢或槽钢,确保钢围堰与封底混凝土之间粘结可靠。
封底混凝土强度达到设计强度后,进行钢围堰隔舱混凝土施工,采用浇筑水下混凝土的方式,对称浇筑隔仓混凝土。施工时利用测绳控制混凝土浇筑高度并及时调整壁仓水位高度。
3.5 钢围堰度洪
钢围堰第一节拼装完成,未下放时第一节钢围堰重约370t,洪水来临后自浮吃水约2.2m,外露5.3m,临时平台标高顶+205.7m,预测最高洪水位+208.0m,反算钢围堰底标高+205.8m。洪水来临时靠导向架及钢围堰自重度洪(如图8所示)。

图8 钢围堰度洪布置图 *载下**原图
钢围堰第一节(7.5m)拼装完成,正在拼装第二节时,临时平台未割除,洪水来临时,钢围堰坐落在临时平台上度洪,靠导向架及钢围堰自重度洪。钢围堰吃水深度见表1。
表1 钢围堰吃水深度表 导出到EXCEL
|
洪水来临时工况分析 |
钢围堰重(t) |
自浮吃水深度约(m) |
洪水来临时外露高度(m) |
最高洪水位(m) |
临时平台顶标高(m) |
反算自浮状态下钢围堰底标高(m) |
备注 |
|
第一节钢围堰拼装完成 |
370 |
2.2 |
208.0 |
205.7 |
此时钢围堰内没有注水,临时平台没拆,钢围堰坐落在临时平台上度洪 |
||
|
第二节第一块弧板完成拼装 |
402.6 |
2.4 |
5.0 |
208.0 |
205.7 |
205.6 |
|
|
第二节第二块弧板完成拼装 |
435.2 |
2.6 |
5.0 |
208.0 |
205.7 |
205.4 |
|
|
第二节第三块弧板完成拼装 |
467.8 |
2.8 |
5.0 |
208.0 |
205.7 |
205.2 |
|
|
第二节第四块弧板完成拼装 |
500.4 |
3.0 |
5.0 |
208.0 |
205.7 |
205.0 |
|
|
第二节第一块直板完成拼装 |
532 |
3.2 |
5.0 |
208.0 |
205.7 |
204.8 |
|
|
第二节第二块直板完成拼装 |
563.6 |
3.4 |
5.0 |
208.0 |
205.7 |
204.6 |
|
|
第二节第三块直板完成拼装 |
595.2 |
3.6 |
5.0 |
208.0 |
205.7 |
204.4 |
|
|
第二节第四块直板完成拼装 |
626.8 |
3.8 |
5.0 |
208.0 |
205.7 |
204.2 |
钢围堰浮态接高第三节时,对迎水面的3根钢护筒利用 φ 1020mm钢管进行连接,并对钢护筒内部灌沙至护筒顶部,用以增加护筒稳定性。洪水来临时,利用导向架度洪。
钢围堰浮态接高第四节时,利用导向架度洪。钢围堰下沉到设计标高后,将导向装置与钢护筒间2cm的缝隙用2cm钢板条塞死,使得钢围堰和钢护筒焊接成一个整体,并利用下放装置吊挂着钢围堰进行度洪。
4 结语
龙溪嘉陵江特大桥桥址位于嘉陵江合川区下游的龙洞沱河段,地质条件复杂,钢围堰制作、运输及沉放施工组织复杂。另外,墩位处嘉陵江流域洪水主要由暴雨形成,洪峰流量变幅大,对钢围堰施工控制参数影响大。综合考虑施工条件、材料用量、安全风险、水流条件等各种因素,龙溪嘉陵江特大桥主桥8#桥墩基础采用双壁钢套箱围堰施工,通过先搭设钢栈桥和钻孔平台进行钻孔桩施工,并同步进行双壁钢套箱围堰的设计与加工,合理利用了工期。钢围堰施工期间,在临时拼装平台进行钢围堰底节拼装,采用千斤顶提升下放系统下放,充分控制了钢围堰的下放精度。设备简单,受力明确,操作方便,下放顺利,安全性高。钢围堰封底采用垂直导管“减球法”施工,先灌注地势较低处,再灌注地势高处;首节拼装完成后于围堰封底处内壁板上焊接角料以增强钢围堰与封底间的可靠粘结。实践证明,该桥8#主墩双壁钢套箱围堰施工工艺可行,安全可靠,操作方便,经济效益高,对同类工程施工具有很好的借鉴。
参考文献
[1] 胡亚峰,陈传勇.鹰潭信江特大桥单壁无底钢围堰施工技术.公路,2013(08):67-69.
[2] 储兵.特大桥深水基础双壁钢围堰拼装及下沉施工技术.交通世界,2018(Z1):146-148.
[3] 邵玉刚,陈志伟,廖亚雄.深水复杂地质条件下基础钢围堰施工技术研究.公路交通科技(应用技术版),2018,14(01):273-275.
[4] 杨永伟,戴桂华,徐阳,王峰.张花高速酉水大桥5号主墩深水双壁钢围堰施工技术.公路工程,2013,38(05):193-198.
[5] 刘道德,吕豪轩.双壁钢套箱围堰在随岳高速公路汉江二桥57~#墩的应用.公路工程,2008(02):131-134.
[6] 胡浩,贺鹏,杨学祥.武穴长江公路大桥钢套箱围堰施工关键技术.世界桥梁,2019,47(05):39-43.
[7] 丁巍,张娟.超大哑铃形首节双壁钢围堰施工技术.中外公路,2019,39(01):105-108.
[8] 王凤喜.双壁钢围堰在深水桥梁基础中的应用.施工技术,2018,47(S1):1231-1234.
[9] 温毅刚.陆水河特大桥主桥墩双壁钢套箱围堰施工技术.中外建筑,2019(08):220-221.
[10] 蒋红振.大型双壁钢围堰吸泥下沉施工技术.交通世界,2017(26):109-110.
[11] 金红岩.武汉青山长江公路大桥钢套箱围堰下沉施工技术.桥梁建设,2018,48(02):7-12.
[12] 韩景磊.超大哑铃型双壁钢套箱围堰吊装及下沉施工技术.工程技术研究,2018(05):80-81.
[13] 刘小勇,范波,许波.特殊条件下双壁钢围堰水下混凝土封底施工方案比选.公路交通技术,2018,34(05):65-68.
[14] 许鑫,王同民.宜昌香溪河大桥4号桥塔墩钢围堰封底技术.桥梁建设,2018,48(02):105-110.
[15] 闫志刚.沪通长江大桥天生港专用航道桥3号主墩钢围堰封底技术.桥梁建设,2015,45(06):89-94.

声明: 我们尊重原创,也注重分享。有部分内容来自互联网,版权归原作者所有,仅供学习参考之用,禁止用于商业用途,如无意中侵犯了哪个媒体、公司、企业或个人等的知识产权,请联系删除,另本头条号推送内容仅代表作者观点,与头条号运营方无关,内容真伪请读者自行鉴别,本头条号不承担任何责任。