相比于花在私立学校或课后辅导机构中的时间,青少年们没有更多的机会去探索他们的兴趣和爱好。包括公立学校在内,有很多地方可以供青少年们参观和驻留,但这些地方的吸引力还远远不够。从幼儿园的孩童到大学生都属于青少年这一概念范围,所以社区青少年活动中心需要满足各个年龄段的需求。

青少年活动中心的目标是提供一个平台,让青少年能够在他们喜爱的地方玩耍,可以随时变换游乐的地点,感受每个场所的不同的空间特征。

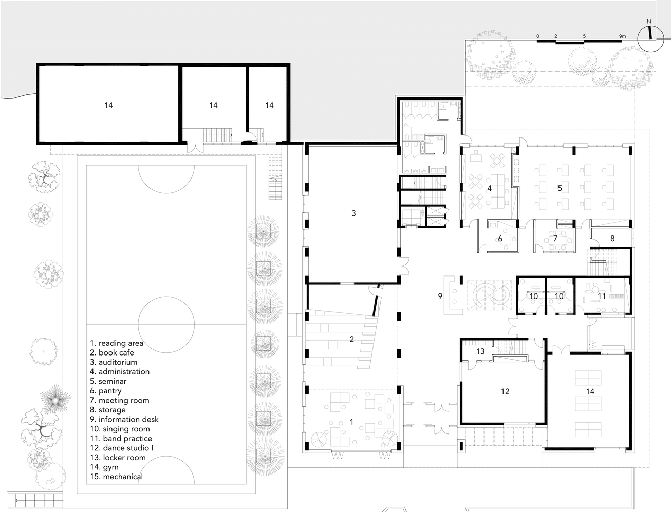
场地被划分为两部分,一部分是停车场和足球场,另一部分则用于建造活动中心。考虑到要组织不同的活动,每个空间都是独一无二的,由类似于谷仓的典型形式演变而来。每个活动空间都相应地进行了层高的调整,以满足不同的活动要求。活动中心位于Homesil公园的北侧,除了面向公园,活动中心也对周围环境开放,在街对面有一个刚刚建成的托儿所。

青少年活动中心不同于以往在垂直方向上进行空间的堆叠,而是在水平方向上横向扩展,建筑仅有两层,二层的面积是一层的一半。每个项目都置于合适的位置,阳光通过中央的天井,撒入室内,照亮周围的房间。



天井下是一个服务台和一个开放的休息室。乐队的排练室,两个歌厅,体育馆和舞蹈室被归类为噪音区,穿过服务台,通过折叠的玻璃门即可到达。行政办公室,即工作区,位于建筑北侧。书店咖啡馆的大楼梯连接了一层和二层,礼堂位于一层。在一层的中央,自然光洒下来,有着变幻的色彩,呈现出一天中最迷人的景象。围绕着中庭,青少年可以进行多种多样的活动。



为了给青少年提供多样的活动体验,活动中心有着多种多样的空间特征,青少年通过不同的感官进行体验。图书咖啡馆和体育馆层高最高,面积最大。


中学生可以在他们喜爱的大楼梯的台阶上读书,旁边的一对母子在小声地聊天,沿着楼梯一边,路过的行人拾级而上。这些都传递着图书咖啡馆轻松宜人的特色。欢呼的呐喊,高低弹跳的乒乓球,年轻球员的有节奏感的脚步声,慵懒的午后阳光撒入场馆,整个体育馆充满着激情。



在走道的尽头,是一面望向户外的窗户,人们的视线被进一步的拉长,阳光也由此照射进来。在这种空间结构中,墙壁只是分割空间的工具,但是人们更愿意共享不同的区域。二楼的“共享墙”由小陈列柜、长椅、窗户和架子建造。除了提供视线交流和盛放手工制品,人们还可以在此坐下来休息。因此,活动室前面的走廊不仅是房间的入口,也成为了一个青少年逗留的地方。








图纸

总平面图

一层平面图

二层平面图

剖面图

-END-