
新伊钦(Nový Jičín)是捷克东部摩拉维亞-西里西亞州下属的一座城市,去年10 月 10 日,该市启动了在 U Stadionu 大街附近的新伊钦足球场新建一座多功能体育馆的建筑竞赛。竞赛的主题是多功能体育馆的建筑设计,体育馆将作为新伊钦体育场的一部分。竞赛的目的是征集满足当前对建筑和运营质量、可持续性和经济性要求的耐久体育建筑设计方案。

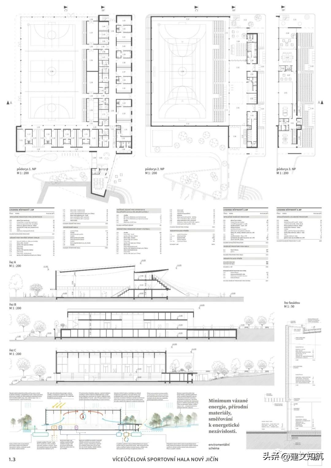
这座多功能体育馆的建设是基于该市对于室内体育场馆的需要,这一点在新伊钦 2018-2025 年体育发展计划编制过程中进行的一项调查得到了证实。因此,建筑设计的关键要求是建造一个平面尺寸至少为40 x 20米的室内运动区——这是典型的手球场尺寸,同时,这种尺寸的空间还可以进一步划分为适应其他运动的需求,如板球、篮球、网球、羽毛球、排球或五人制足球。场馆内还将包含一个可容纳约500名观众的室内看台,以及社交设施、更衣室、餐厅、俱乐部室和其他运动员设施等。
场馆建设的位置将代替现有的足球场和田径体育场看台以及沥青混凝土室外球场。现有的看台由于老化严重将不得不拆除,新的户外看台将结合体育馆进行设计,将可容纳约 500 名观众。
今年5月底,竞赛结果公布,在23份参赛作品中,来自布拉格的建筑工作室 monom works 提出的设计方案赢得了第一名。
竞赛获奖方案
第一名
monom works










以上图片如无特殊标注,版权均为 ©monom works
评委们特别赞赏了该方案在对现有地形的重整之后,保留的空间包容性和完整性。方案利用土坡围合了体育场的比赛场地的区域,土坡顶部的人行道设计以最佳方式连接了整个区域,同时自然地将游客引导至体育馆的主入口。体育馆的内部空间布局简单、逻辑清晰,其中的流线设计也合乎逻辑的。建筑的主体结构采用了木结构,室内的装饰也大量采用了木材。从环境和能源的角度来看,体育馆的屋面采用了太阳能光伏面板与绿化屋面相结合。此外,该设计是唯一解决了建筑维护技术所需的存储空间和设施设计问题的方案。
第二名
PROGRES ARCHITEKTI




以上图片如无特殊标注,版权均为 ©PROGRES ARCHITEKTI
第三名
AOSI + The Büra




以上图片如无特殊标注,版权均为 © AOSI + The Büra
提名
Petr Filip





以上图片如无特殊标注,版权均为 ©Petr Filip
提名
JANREVAJ architects




以上图片如无特殊标注,版权均为 ©JANREVAJ architects
提名
MAJAG




以上图片如无特殊标注,版权均为 ©MAJAG
本竞赛信息及文中涉及的图片均来自网络,原始版权属于竞赛主办方和竞赛提案设计师所有,如有版权问题,请联系删除。
#夏日生活打卡季##灵感建筑##设计##建筑设计##建筑##云游风物之旅#