白色极简
白色极简,已经成为全球众多顶级建筑师喜爱的设计气质,纯净、自然、质朴、艺术,代表建筑师包括有葡萄牙建筑大师西扎及他的徒弟FranSilvestre等等。

Sintra辛特拉是一个靠近葡萄牙里斯本著名的度假小镇,临近辛特拉山脉,以色彩缤纷的别墅和宫殿而闻名,该项目就是位于辛特拉的一个极简别墅。


△建筑与永池的构成
该别墅由葡萄牙本土建筑事务所BICA Arquitectos设计,如同西扎一样,众多葡萄牙极简建筑师都追求建筑形体的平面化,且注重建筑与基地的融合。别墅的正面采用一个不规则的四边形,建筑师希望通过线与面的关系塑造纯粹的极简外观。


△别墅入口
入口采用大尺度的错落秩序地面,自然衔接建筑与山丘。



△别墅入口与坡地的关系
远观,白色的建筑与草地及天空刚好绘成一个平静的画面,白色结构下的大面积玻璃让主体,看起来轻盈自由,仿佛漂浮的盒子。




阳光下的白色极简,仿佛被染上了大自然的肤色,大面积的玻璃实现建筑与环境的柔美融合。





△夜幕下的别墅入口
白色极简的设计,尤其注重照明设计,入口的梯步暗藏的灯带与建筑主体的白色线条照明,让整个建筑实现了艺术的升华。

△室内照明效果图
如何塑造白色极简的高级感,引入自然光线是最好的表达手法,也是最昂贵的艺术,建筑师为了达到最好的设计效果,特意在施工前模拟了阳光的室内效果。




整个设计最大的亮点,可能是别墅的挑空位置与建筑立面的窗户实现光线的交互,灵动的光影随着时间的变化而产生丰富的变换,实现时空的艺术叠加,这也许就是白色极简最大的魅力。





大面积的无框玻璃窗,不仅实现了建筑的轻盈状态,更让整个别墅与基地融为一体,呈现现代极简最扣人心弦的环境美学,艺术在这一瞬间,更贴近我们的生活与心灵。如此奇妙的设计,我们怎能不爱!



△摄影:Fernando Guerra | FG+SG
项目基地
▽

施工现场
▽


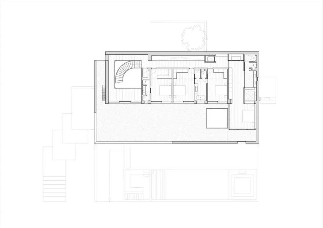
相关图纸
▽









