
深圳,是中国最具时代创新精神的城市,低调、务实、勤奋的风格,被所有人推崇和共识。今时今日,经济总量比肩全球三大粤港澳大湾区。这里的企业、企业家们,已经开始思考如何面对新的未来,以及与更广阔的世界共舞。
本案是深圳某金融企业四层总部之中的私属会所,位于滨河时代大厦TOP顶层,俯瞰深圳滨海大道下沙至香蜜湖段。相较于视野外在硬件,ULD更关注文化内核和企业价值观在设计中的体现。我们试图寻找一种克制与平衡,谦逊但不失姿态,内敛但不失张力。

/ 建筑外景 /
一本《商训》几千年,商道,诚信之道
自古有古训,“欲从商,先为人。”商者,以利为之,而人品不正,则商道不存。春秋战国范蠡的《陶朱公 商训》,是自古以来为人称颂的经商之道,也是延续至今的经商哲学。商道的核心和根本在“诚信”,也是获得长远利益的大智慧。诚信不仅仅涉及到人格道德,还涉及到契约和法律,诚信不仅是价值观,还是方*论法**。

书法家定制《商训》原稿狂草

《陶朱公 商训》原创金属装置
一期一会,相知相惜
设计以“礼遇”铺陈,打造私人尊享的社交仪式。从外部进入空间即开始了对企业文化的内核呈现。项目设计主题“一期一会”,即“一期”,一生;“一会”,相遇知珍惜,必以诚相待。体现的是茶道中的处世哲学与佛教中的“无常”思想,而在西方的哲学里亦有共通之处,哲学家赫拉克利特说:人不能两次踏进同一条河流,人生及其每个瞬间都不能重复。人们要珍惜每次机缘,并为人生中可能仅有的一次相会付出全部心力。
礼文相待
/门/廊
《商训》言:能接纳,礼文相待,交往者众。设计希望进入会所的每一位客户,都能感受到尊贵与诚意。空间功能多,设计以动静相结合的方式进行编排,以满足客户在不同时段的社交礼节。左侧偏重体验互动,包括包房、茶室与行政酒廊;右侧偏重配套休闲,即健身房、雪茄房与VIP休息室。
门廊是企业会所的第一空间。天花顶部用了大量的金属黄铜、石材与金属,传达了企业温厚稳重的人文印象。从电梯间进来,设计希望以场景营造形成与外界印象反差,以过滤掉外部的喧闹与繁杂。东方意味的“天圆地方”通过现代石材的表现,在灯光的渲染下形成了“幽竹山窗下” 的诗意,静谧而平静。


/ 走廊 /
因被外部视线分解,在内留下了一条光线幽暗的长廊。浅色木饰面、大理石、香槟金拉丝不锈钢和镜面不锈钢,诠释的是当代气质与精致。ULD跳脱装饰概念,设计将此作为企业文化输出的机会。在六个龛位设置表达企业精神的独创书法雕塑。内文选取与企业从商内核《陶朱公 商训》,由书法家定制原稿狂草,按断句式定制成独一无二的雕塑系列。文化的延续,是设计的传承。现代的手法完美演绎了企业的至诚印象。
君子相交,山水空明于心,但求惟吾德馨
/茶室/包间
茶室是会所的一大亮点,清幽雅致,是与友茶话的私享地。走廊与茶室相连,内外相连,中间以一扇玻璃相隔,形成对景。进入茶室,需行走一小段枯山水室内小景,白沙漫漫,古松傲然,脚踩石板台阶,行走让人心绪宁静。茶室与景观之间以框景的造景方式与茶室遥相呼应,视野的联汇贯通,宁静致远。


/ 茶室与景观 /
茶室入口设置玄关,设计采用中式传统边柜,集传统书卷、砚台、文房四宝及百家字等陈列展示,以及墙面完整版《陶朱公 商训》黄铜装置的终极强化演绎。一组枯藤装置与天花形成呼应关系,清雅宁静,以茶会友,诠释了从商之道的茶道礼节。



/ 茶室 /
包房的布局不仅满足数十人贵宾的就餐接待,亦同时在休闲浅坐、水吧、联通茶室等功能做了动线的联动设计。延续运用石材、铜和进口胡桃木的材质与肌理以接力空间硬装的设计语言,辅以意大利真皮及比利时羊毛面料,包裹出低奢内敛的高贵品质。旨在韵味与舒适之中,打造宾主开怀畅饮、相聚甚欢的场景体验。



/ 大包房VIP室 /


/ 小包房VIP室 /
阅历,是一杯交心的酒,也是一本读懂的书
/行政酒廊
行政酒廊集商务、阅读、娱乐与休闲为一体的区域。对于高净值人群而言,获得身份认同感与精神归属感的体验互动才是精准化营销。整个空间稳重、大气。顶面用了镜面加深空间体验感,以及根据硬装柜体设置了阅读分享的区域,设计意在打造思想交流与碰撞的理想地。


/ 行政酒廊中庭 /
阅读区展现了企业和企业家精神层面的内涵力量,空洞的装饰是乏味而缺少厚度的。即使是短暂使用的书架,设计师也用心删选,精心择选符合身份与思想的收藏级艺术类、内外版艺术类、金融类、人文社科类四大类别,并与雅昌(深圳)艺术中心合作量身策划定制艺术收藏书籍。 位于中心位置陈列的《洪荒大地》,是当代摄影家王建军的著作,全球限量发行。设计从观赏性提升为收藏性。

/ 红色背景墙 /
在空间中,均围绕红色展开软装细化与设计。常态概念的红,娇艳而热闹,在搭配中难以拿捏。圆弧沙发、地毯与陶罐在选取中是一大难点。沙发大胆选用了亮皮质感的冷调蓝,结合灯光最终呈现了舒适的暖蓝。以及位于陈列架的六个陶罐,出自景德镇纯手工定制,由设计师原创手绘后烧制而成。


商业或者资源的营销往来,需要建立在以文化、爱好等载体上,单纯圈层社交是没有意义的。艺术总监于扬女士对该项目做了解读:“金融商圈,对物质有讲究的看法,其身份之上依靠更多的是人格魅力。一个专注于私人客户的商务会所,诚信的温润表达才是空间设计的根本。”

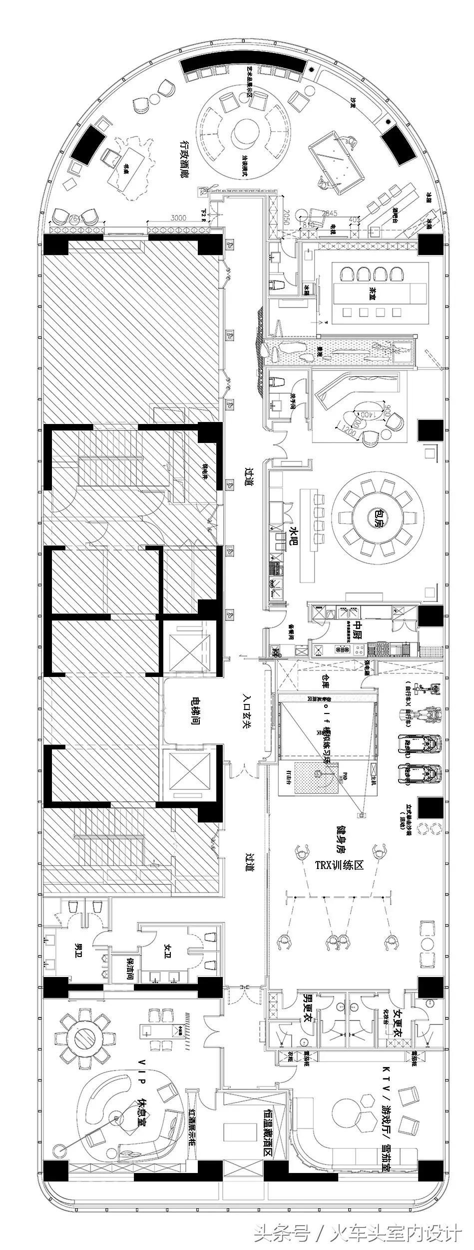
平面布置图
项目信息
项目名称 / 深圳滨河时代大厦四层企业总部之顶层私属会所
项目地址 / 深圳
设计面积 / 826平米
室内设计/ AG香港汇创
软装设计 / ULD家居设计
艺术总监 / 于扬
设计团队 / 徐瑶、龙佳、田雪