这套案例的是一家三口和父母居住,平时常驻人口就是5个。
男主人: 40岁成功民营企业家,茶艺爱好者,对收 藏书画方面颇有爱好。
女主人:38岁花艺师,爱好花艺和手工制作,注重 对孩子艺术方面的培养。
父母(58-75岁):戏剧艺术家,平时喜欢收藏,喝茶, 钟爱中国传统艺术,偶尔来住。
男孩:8岁国际小学在读,喜欢踢足球,收集书籍。
可能是因为从事的职业和家庭氛围的因素,他们对装修风格和一些细节都是提出明确的要求,这个对我们设计来说是很好的帮助的。有明显的现代风格,要融入东方气韵之美和当代艺术之美。功能区是个很大的问题,因为业主几个人都需要,所以我们把原来的书房打造成了一个多功能的满足多人的使用的需求。

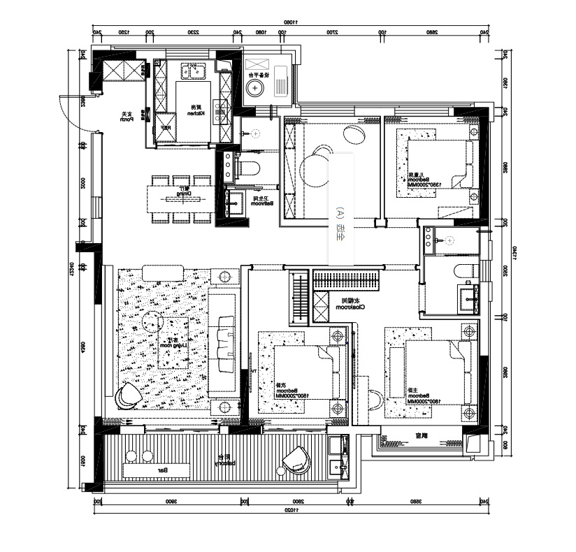
原始户型
缺点:卫生间采光不好,使用面积偏小。

优化后的户型
优化了公区卫生间的布局,将干湿分离的墙体改为玻璃移门。好处就是卫生间得采光更好,使用面积增加。

玄关

进门入户玄关我们做了特别的设计,新颖别致的悬浮柜,下面是做了一个精美的景观,上面是做的储物柜使用。内嵌式与无把手的极简视觉,完美呈现精致的入户空间,让回家有一个轻松、自然、舒适的氛围体验。多尺寸的储物空间,满足了回家以后常规物品的摆放,精简素雅的视觉体系,让回家多了份从容的仪式感。

客厅
客厅全屋前面全屋颜色都是采用了高级的白色,这样不仅仅能提高房间的明亮度,在审美上也不会出现疲劳。客厅采用无主灯设计。无主灯优点: 1,无主灯设计光线均匀,灯光不刺眼,同时又能保持各部分亮度均匀,层次感十足。 2,照明无死角,而且没有主灯的设计会让顶面显得简洁,在视觉上显得更高,独立的光源,照明没有死角。 3,设计自由度高,该设计具有很高的自由度。可以说没有限制,范围可以控制,光线可以更有层次的使用。同时还可以用壁灯、落地灯、台灯、小吊灯等不同的装饰灯具改变室内风格,选择种类繁多的灯具,从而在空间中营造出不同的照明氛围。

沙发是我们一眼就选定的产品,时尚、大气的造型,菱角分明,完美的体现了线条的美感。因为沙发是选择方正的造型,所以在沙发背景墙上的装饰画,我们就选择了圆形的造型,刚好体现了咱们中国文化中天圆地方之意。在装饰画内容的选择上,我们费尽了脑筋。了解到业主一家人非常喜欢去海边度假,所以我选择了大海的蓝色作为基础调性。为了让它不那么突兀,我们在抱枕和一些小装饰品上也先择了不同层次的蓝色,这样白色的空间里,用蓝色做了点缀,提高了整个空间的灵动性。

客厅的另一面,也就是我们的电视背景墙。业主的意思让我们考虑有电视和没电视的两种可能性。所以这边我们选择了大面积的仿大理石岩板作为整面墙的装饰。这样不管有电视还是没电视都很好看。

餐厅
与家中其他地方相比,餐厅应力求空气流通和环境清洁。我们没有放置太多装饰品,餐椅面料也没有采用容易吸收食物异味,不易分散,不利于餐厅环境卫生的棉织物,皮革的面层材料也更加容易打理,再也不怕汤汤水水洒到桌椅上了。

餐桌采用的造型简洁的大理石桌面,轻巧的桌腿支撑起整个餐桌空间,整体时尚大气。灯具的选择也是简洁的长条型造型,金属和亚克力的结合相得益彰又不失设计感。

厨房

厨房是采用的半开放式厨房, 厨房还是独立的空间的,只是没有做门或者玻璃隔断,这样视野更加宽阔。厨房整体采用U型的结构设计,U型厨房的一大优点就是三个分区明确,让烹饪者更加随心便捷。


我们为业主专门找了专业的橱柜公司按照我们的设计进行了定制,各个橱柜收纳空间划分更加合理,增加了各种功能的五金件,可以储存的物品更多更合理。

主卧
卧室有飘窗的一定要把飘窗利用起来,做个垫子,就多出来一个休闲的空间。

主卧我们延续了客餐厅的整体风格,还是以白色作为主要色调,蓝色作为灵动的调味色,让空间不会单调。 为了增加房间的层次感我们在床头背景墙上做了硬包的设计方式,还加上圆形的装饰画,加上方形的床,又组成了天圆地方的吉祥寓意。


衣帽间我们设计成了L型的,L型衣柜就是卧室里的超级收纳,用得好,能抵得上一间普通大小的衣帽间!在转角处定制衣柜,完美利用装修死角,功效远远不止多赚几个平方。 在这里有个不常见的设计,就是化妆台的镜子对着床。这个是业主自己要求的,我们设计师为此与业主反复沟通,并且把风水和使用上的不利都告知了业主,业主对此比较坚持,我们最终也表示了尊重。


老人房
老人房相对主卧颜色选择上会更加素雅,白色为主,深红色作为点缀。床头的背景墙跟主卧采用了一样的设计方式。

老人房我我们设计了开放式的衣柜,主要是老人衣物并不是很多,如果做没有门的衣柜,使用会更加方便。所以结合老人的习惯,我们就做了无门的衣柜。同时因为老人房的衣柜在过道上,开放式的衣柜会使得空间感受更大一些。

老人房的外面可以通过阳台与客厅进行连通,所以客厅也可以很方便的从阳台进入老人房,这样大大的方便了老人对于阳台的使用。阳台我们给老人打造了一个休息晒太阳的区域,这样给老人增加了一个很舒服的活动空间。

儿童房
儿童房的主题是足球,所以卧室好多地方都能看到足球的元素。小孩子的兴趣爱好可能变化很快,所以不建议设计成太固化的设计,尽量的要考虑随着孩子的成长,心理和审美的变化。儿童房也没有设置衣柜,尽量给儿童活动成长留下更多的预留空间。


书房

书房基本上是全家人共同的休闲区,爷孙俩的象棋对弈,男业主的练字喝茶,女主人的手工插画。 所以我称这个房间是多功能房间。墙壁一排悬空书柜增加了收纳能力,下边还做了一排书柜,中间做了一个倒台,这样可以增加功能实用性。


卫生间
这个卫生间是主卧的卫生间,卫生间面积比较小,所以我们把公区卫生间中间那堵墙面给拆除了,取而代之的是玻璃移门,这样就可以卫生间的使用面积更大也更通透,同时也能够保证干湿分离。干湿分离的好处就不用我多说了吧,大家都懂。主卧卫生间因为仅仅是供夫妇两个自己使用,所以并未做干湿分离,整体卫生间的空间感也更大更明亮一些。