此次案例是一个旧房改造,业主王先生是经过朋友介绍来的。
王先生很中意黑白灰的颜色搭配,希望房子不要太过繁杂,故选择了极简风格。
而由于业主也是设计师出身,加上家中有小孩,对各方面的细节非常注重,所以方案也是更改了很多遍,最终才敲定了下来。

案例信息
所在城市:四川成都
楼盘:锦城花园
户型:3室1厅1厨2卫
面积:146m²
风格:现代极简
施工设计:成都米诺家

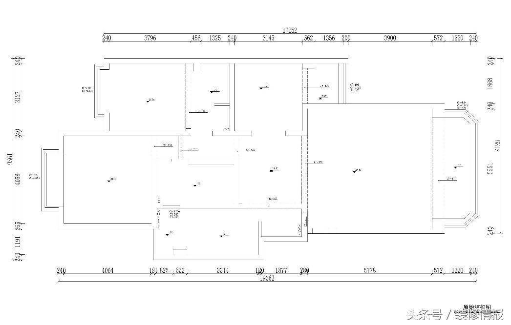
原始户型图
由于限制,入户比较狭小,没有放鞋区。而餐厅的面积浪费比较大,其他区域也存在空间利用率不高等问题。

改造后的平面布局图
方案最大的改动在餐厅区域,将餐厅专门隔了一个储物间,用于放置小孩玩具 (实力奶爸)。
其次将书房双推门改为左侧的单开门,增加房间的私密性,同时将阳台打通,增加使用舒适度。
▼客厅▼
客厅整体的颜色就是黑白灰,除了吸晴的鸭嘴灯外,还增加了射灯和一盏落地灯,简单装饰的同时也照顾到了整个客厅的照明。

橘色的皮质沙发起到点缀整个空间的作用。

▼餐厅▼
餐厅的背景墙与客厅一致,不过由于灯光的缘故,多了一丝暗沉。
壁灯凸显了墙上的刻钟与黑框壁画,大理石餐桌与上方的细框吊灯也很搭。

▼主卧▼
主卧的背景墙为深灰色,用两盏床前灯和两盏壁灯提供照明。
其实卧室的灯光本就不该太过强烈,且灯光颜色也应较柔和。

黑框白底的衣柜超级漂亮,果然选择黑白色不会出错。床尾凳的选择也能提供不少便利,卧室空间较大可尝试。

▼儿童房▼
相较于主卧,儿童房的色调就要明朗得多。蓝白色的墙面,柠檬色的吊灯,及拼接的窗帘和书桌下的足球,都体现出布置的用心。

一体式衣柜以白色为主,书桌上的气球也是很漂亮。相信孩子肯定会喜欢这样的房间。

▼书房▼
书房的布局很简单,黑色的课桌与办公椅,没有过多的装饰。
此时你肯定会想,怎么没有书柜?

由于书房布局很简单,如果墙面统一为白色的话,会显得整个空间很单调。

所以设计师把另一面墙进行了改造,上处做了玻璃柜门,底部做了白色储物柜。
中间空出来的部分就是一个简易书柜。装饰的同时增加了实用价值,很赞!
相对于整体的效果来讲,业主更在意的是材料的环保以及水电插座的布局,因为家里有小孩,而且这些都和日后居住的舒适度和健康有莫大的关系。
编辑留言:
如果你也是成都的业主,想让优秀设计师帮您做户型设计和规划,或者想学习更多的装修知识欢迎加入《装修情报》成都读者会员群。
成都编辑站会为大家提供:
1、审方案、看报价;
2、硬装、软装咨询;
3、推荐优质装修+、建材商家;
4、验房及施工监理服务;
5、在线装修课堂;
6、组织线下团购等。
进群请私信编辑“成都”。
如果你也喜欢这套案例,或者想要做这样的设计,可以点击文末的【了解更多】让编辑为你推荐设计师,为你独特的生活方式打造独特的设计!