Bellavista北部花园餐厅入口处悬挂着上千朵花,带来一场让人眼花缭乱的花卉盛宴,人们迈入店中,仿佛进入了开满鲜花的故乡村庄或旅行途中经过的某座古典小城。

Bellavista北部花园餐厅介绍 | INTRODUCTION TO BELLAVISTA DEL JARDÍN DEL NORTE
业主希望建造一座环境放松有趣的餐厅,让客人可以在家一般的环境中享受餐厅提供的改良经典西班牙菜品。
设计师从“家以外的家”出发,参考西班牙乃至全世界的小村庄中的日常生活和欢乐情调对餐厅进行了室内设计。餐厅的名字意为北部的美丽花园,指的是空间尽端的大花园。这座花园是巴塞罗那市中心的绿洲,餐厅以此命名,仿佛与某座小城有所关联。

金属亭子组成的不同元素引导人们穿过整个空间,最终到达尽端的大花园。这些元素将小城中的欢乐景象以抽象化的手法表现了出来。屋顶装饰着花和灯的街道将游客引向广场,从这里可以远望花园,开放的空间上方为深蓝色的天花和线性的灯具,仿佛烟花绽放的天空,为整个餐厅锦上添花。
最终的设计创造了一个对于许多西班牙人来说极具亲切感的空间,人们来到这里,就像是每年回到家乡过节并享受家庭料理一般,餐厅的每个角落都出人意料地带着熟悉的氛围。


空间布局 | SPACE & DISTRIBUTION
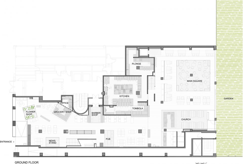
餐厅面积为1000平方米,设计师希望在这里创造一个功能完善且亲密的空间。项目被划分为两层,每层都是一侧临街,另一侧面向花园。一层的空间宽度富有变化,宽敞的入口连接相对狭窄的中间区域,如同将人引向后部大花园的序曲。入口和中间区域的对比让人回想起从村间小路漫步到广场的空间体验,为整体设计概念的一部分。
▽ 一层平面,蜿蜒的小路如同从村间小路漫步到广场的空间体验,Ground Floor, The sinuous path as sort of stroll through the village towards the plaza.

旅程开始于花朵和植物环绕的鲜花村庄;之后人们会进入乡村街道,金属货摊框架和文字标识组成了一间杂货店和报刊亭;再往里走,贩卖祖母的蛋糕、甜点和冰淇淋的蛋糕店映入眼帘;到达就餐区后,人们可以选择坐在理发店或者当地酒吧中,欣赏厨师的厨艺表演。
▽ 花团锦簇的入口空间,Thousands of hanging flowers at the entrance


▽ 穿过“花店”进入内部,Entering the restaurant from the flower shop

▽ 杂货店和报刊亭,The grocery and a newsstand


▽ 理发店,The barbershop



▽ 酒吧,The pub

▽ “彩票摊”,The Tombola

经过上述空间,人们最终到达了广场,设计师需要将这片两层通高的空间塑造地既宏伟又符合人体尺度。中心区域由教堂框架划定,其结构上装饰以紫色的节日旗帜,带来欢快的气氛。周边围绕着被珠帘覆盖的阳台,使空间更为深邃。
We finally arrive at the plaza, where the challenge was to give human scale to this double-height space without losing its majesty. The church borders this central zone and is composed of a structure adorned with festive purple flags. Surrounding the central area is a perimeter of balconies covered with beaded curtains which add depth to the space.
▽ 广场与教堂,The plaza and church

▽ 教堂框架上装饰以紫色的节日旗帜,The church is composed of a structure adorned with festive purple flags.


▽ 被珠帘覆盖的阳台使空间更为深邃, Balconies covered with beaded curtains add depth to the space


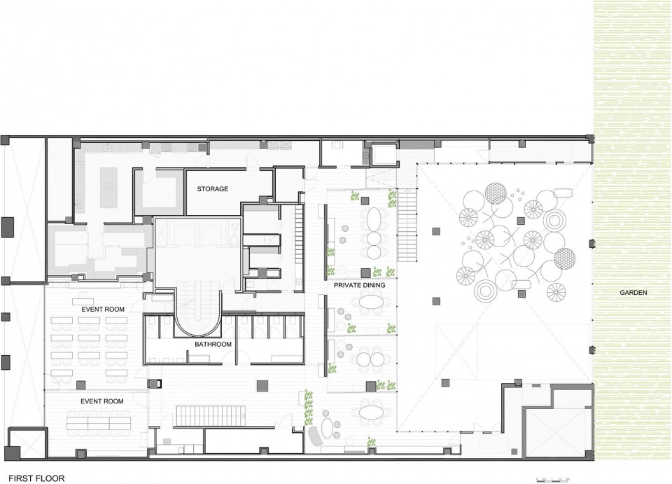
从二层可以看到各个方向的景色,并设有更多私密空间。街上的阳光透过入口处的花茎射入沿街的就餐区,线纹墙纸重复着室外的鲜花主题,同时具有良好的隔音效果,保证环境的舒适。伸缩隔断可以灵活地对空间进行分割。
The second floor has views to both directions and contains more private areas. On one side the event rooms receive the light from the street sifted through the flower stalks of the entrance. Its wallpaper-lined walls reproduce the floral spirit of the exterior while ensuring the acoustic comfort. The space is made flexible by means of retractable dividers that split the space into two.
▽ 阳光透过入口处的花茎射入沿街的就餐区,The event rooms receive the light from the street sifted through the flower stalks



另一侧为保留席区域,四个大小不同的空间由滑动隔断分割,以满足客人的需求。这些隔断由黑色和白色的珠子组成,重现了阳光透过乡村玻璃留下的光影。保留席空间通过开放的阳台和广场相连。
At the other end the reserved seating area is situated, four areas of different sizes are separated by sliding screens adjustable to the guest's needs. These curtain screens are composed of black and white beads recreating the shadows drawn on the curtains of village windows. The reserved spaces are still connected to the plaza thanks to the open balconies.
▽ 黑色和白色的珠子组成隔断,重现了阳光透过乡村玻璃留下的光影,Curtain screens composed of black and white beads recreate the shadows drawn on the curtains of village windows



▽ 卫生间,Restroom


元素 | ELEMENTS
灯光 | LIGHTING
设计师和BMLD灯光设计团队合作完成了室内的照明设计。其概念为配合穿过相间街道到达宏伟开阔广场的室内设计理念,创造一系列灯光装置。一串串灯泡通过拉紧的电缆悬挂在天花下,从入口一直蔓延到广场。广场内,灯光炸裂成“烟花”,奏出宏伟的终章。这些灯光装置由铁结构和LED组成,提炼并模仿烟花的形态设置,它们的颜色和强度可以变化,在不同时段营造不同的就餐氛围。
The lighting is done in collaboration with the BMLD Lighting Design team. The idea was to create a lighting installation that accompanies the concept of a walk through a village and the grand finale in the final open space. Strings of light bulbs are held up by tensioning cables from the ceiling to accompany the guest from the entrance all the way up to the plaza. In the plaza, the grand finale is the explosion of "fireworks". These light structures were created in collaboration with BMLD and are composed of iron structures and LED lights, mimicking an abstract form of fireworks. The light varies in intensity and color and gives the option of creating a separate ambiance for lunch and dinner time.
▽ 灯光炸裂成“烟花”,奏出宏伟的终章,The grand finale is the explosion of "fireworks"

帘 | CURTAINS
珠帘不仅可以用来划分不同区域,还可以加强化广场周边空间的氛围。双色帘子散布在整个空间之中,它们高度不同,形成了一种与西班牙传统建筑中的门窗帘相似的节奏感。
The beaded curtains give a functional element to the different areas while also enhancing the ambiance of the entire space surrounding the plaza. The bicolored curtains are dispersed throughout the space at different heights creating a rhythmic effect similar to the curtains of the doors and windows in Spain.
▽ 双色帘子形成了一种与西班牙传统建筑中的门窗帘相似的节奏感,The bicolored curtains create a rhythmic effect similar to the curtains of the doors and windows in Spain

▽ 二层平面,Second Floor

Location: Calle Enric Granados 86, Barcelona
Client: Iglesias brothers, Messi brothers
Floor Area: 1000 m2
Project Team: Narcís Font, Anna Martínez Salom, Blanca Lora – Tamayo, Mauricio García, Néstor Veloso, Cristòfol Tauler
Photography: Adrià Goula / comunicacio@adriagoula.com
Lighting Design: BMLD Architectural Lighting Design