

精致是一种对生活认真负责
热爱且珍惜的态度
只有真正热爱生活的人
才能把平淡的生活
过得五彩斑斓京东网上商城

即使只有40多平米
不同的人不同的住法
精致的人
处处都流露着对美好的追求京东网上商城

浙江80后女孩kingkingyee
是一档节目的导演
但她更乐意把自己称为“一个做节目的生活家”京东网上商城

十年前
刚刚加入北漂大军的她
下定决心要在北京立足
为了在这座拥挤的城市里过上舒适的生活
拼命工作
漂泊了6年之后
kingkingyee终于有了一个属于自己的安乐窝京东网上商城

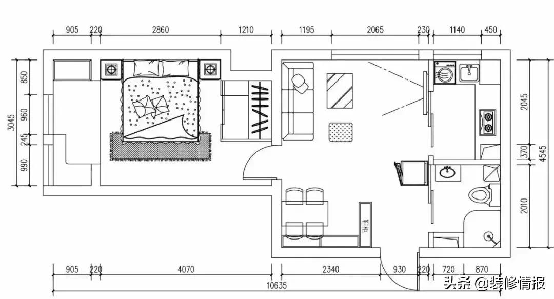
她的小窝很小
面积只有43平米
未装修之前很朴素
普通的一室一厅二手房京东网上商城

而这个北京朝阳区的小房子
却被她改头换面
变成一个精致的公主房
她所向往的生活
便从这里开始了

kingkingyee在装修之前
参考了很多装修样式
最后决定把屋子设计成北欧简约风
高雅中不乏质朴
美与实用并存

房子原本的格局十分常规
房门一开便是客厅
四周毫无遮拦和修饰
门口的鞋子和杂物都会暴露无遗
kingkingyee决定从这里开始动手京东网上商城

一个1.2米*2.5米白色鞋柜
是门口最亮眼的设计
不仅让鞋子们有了自己的家
还把客厅的一部分隔出来当做餐厅
kingkingyee出门常用的包和杂物
井然有序的点缀着鞋柜

鞋柜上方有一个黄酮灯
给这个角落增添了一丝设计感

小小的客厅
却有一面大大的落地窗
阳光照射进来
正好洒在客厅中央
让人无比惬意
这是最吸引kingkingyee的地方

落地窗外的麻雀
在电线杆和树枝上叽喳
伏案在吧台上看窗外白云蓝天
好不惬意

吧台是用装修剩下的木板打造的
几株可爱的绿植
把落地窗内外的风景装点的十分精致
旁边还摆着kingkingyee精心挑选的小物件
还有自己DIY的装饰吊灯
都是自己的专属标志

kingkingyee喜欢旅行
经常买一些艺术品
沙发背后的墙面上
挂满了她从各地带回来的纪念品
复古装饰画、古董干花、铜镜
白色墙面熠熠生辉

各种文艺的挂画下
是一个布艺沙发
kingkingyee偶尔给沙发更换颜色
每一种颜色就是一种心情

4个不同风格的沙发套
让整个客厅随时保持新鲜感
豆沙紫、宝蓝、米白、深灰蓝


抱枕也随着沙发风格
拼凑出多种组合
代表着主人的多样心情
这也是一种自己家的味道

沙发旁就是一个小餐厅
精致的实木餐桌和实木椅
和餐桌上的花瓶相映成趣

与朋友小聚好不热闹
餐具和桌布要细心摆放
随时调节生活的沉闷

这里的每一样物件
都充满着仪式感
看它们的第一眼
就会爱上

3平米的小厨房
是kingkingyee每天停留时间最长的地方
麻雀虽小
五脏俱全

林林总总的各种厨房用具
被恰到好处的安置在厨房的各个角落
十分别致

小烤箱,烤面包机
电水壶,咖啡机,微波炉
一个都不少

厨柜下的空档
还镶嵌了一个滚筒洗衣机
空间利用到最大化


各种厨具和调料纷杂京东网上商城
kingkingyee在摆放位置上下了不少功夫
小小的橱柜
满满当当,整整齐齐
有了一应俱全的厨房
做起美食来更加得心应手京东网上商城



在kingkingyee的卧室里
藏着一个超级MINI的步入式衣帽间
选择一套合适的衣服
开启元气满满的一天

旧式的格局比较呆板
左侧的窗户外连接空调外机
kingkingyee充分利用这一狭小之地
在右侧竖起一堵1.2米宽的墙
加上一扇独立的软门帘
隔出的独立小空间让屋子容光焕发

这个1.2*1.6米的小空间
衣架花费1300块,推拉门不到3000
挡灰布帘也是kingkingyee的爸爸亲手做的

便宜、精致
而且很温馨
带来一种不言而喻的幸福感

卫浴间里的小浴缸
是kingkingyee最满意的地方

设计这个浴缸之前
kingkingyee反复测量卫生间的尺寸
结合最实用的装修顺序
把卫生间整理的井井有条

1米长,0.64米宽的小浴缸
这可能是朝阳区最小的浴缸了
小浴缸和小马桶
卫生间的空间设计达到了极致

地面空间狭小
墙壁的空间帮了大忙
琳琅满目的卫浴用品
都被收纳到了壁柜里
美观且实用

kingkingyee花了五个月时间
把屋子打磨成自己理想的样子
每一个用心的小细节
都能沉淀出时间的味道

一个女人即使不是公主
也应该像一个公主一样精致的活着
与其在星光暗淡的日子里蹉跎
不如带着内心的炙热
去过一种精致的生活
文章素材来源:背包旅行

编辑留言:喜欢软装的读者,可以私信小编V:(ID:zxqba123),回复:软装设计,进入我们的读者群聊聊吧~