左卿
贵州路桥集团有限公司
摘 要: 镇雄至赫章高速公路第三合同段位于赫章县野马川三岔村境内,项目区域地形地貌复杂,发香河在两座隧道间的沟谷穿流而过,桥址处河道宽度约为35m,河两岸边地势较陡。甘家老包隧道出口端地形陡峭,进洞困难;郭家大营盘隧道进口端地形狭窄,地形陡峭且为顺层地质,弃土场容量极小,且弃渣易产生滑移等地质灾害、污染河道水源,为解决甘家老包隧道出口端施工机具材料进场、郭家大营盘隧道进口端弃渣,需修建栈桥上跨发香河形成运输通道。栈桥的使用期限长,使用频率高,对栈桥的结构承载能力要求相对较高。
关键词: 大跨径;贝雷梁;栈桥;加强型;
1 工程概况
随着国家继续加大对公路交通基础设施建设的投入及西部大开发战略的实施,山区高速公路建设方兴未艾,贵州先后建成一座座大跨径桥梁、一座座长隧道,高速公路里程突破1万km,成为了西部地区第一个实现县县通高速的省份。镇雄至赫章高速公路第三合同段位于赫章县野马川三岔村境内,项目区域地形地貌复杂,发香河在两座隧道间的沟谷穿流而过,桥址处河道宽度约为35m,河两岸边地势较陡。甘家老包隧道出口端地形陡峭,进洞困难;郭家大营盘隧道进口端地形狭窄,地形陡峭且为顺层地质,弃土场容量极小,且弃渣易产生滑移等地质灾害、污染河道水源,为解决甘家老包隧道出口端施工机具材料进场、郭家大营盘隧道进口端弃渣,需修建栈桥上跨发香河形成运输通道。栈桥的使用期限长,使用频率高,对栈桥的结构承载能力要求相对较高。
2 栈桥设计
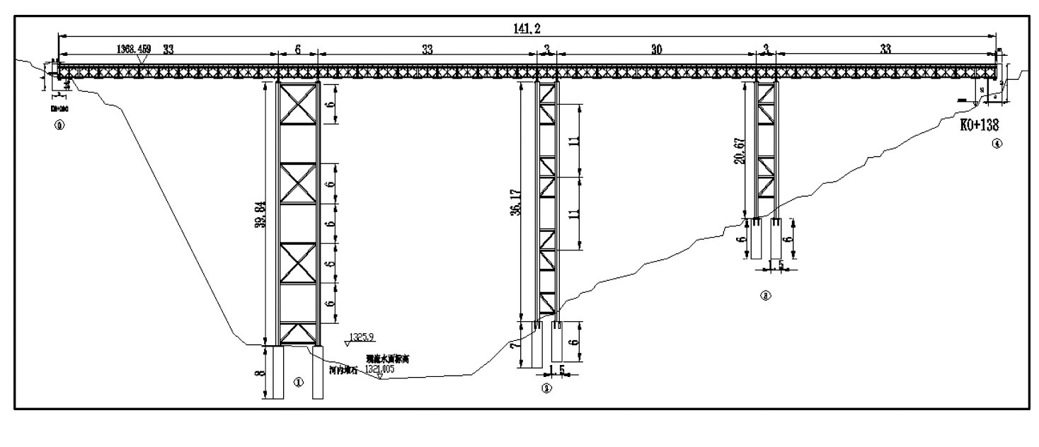
发乡河2#栈桥是镇雄(黔滇界)至赫章高速公路施工总承包第T3合同段2#主便道中的2#栈桥(图1),位于赫章县野马川三岔村境内。2#栈桥为跨越发乡河而设,桥址处河道宽度为35m(涨水期),河两岸边地势陡峭。根据现场踏勘,桥位河床表面为0.5~1m厚的淤积层,下为1~2m厚的砂卵石覆盖层;其次为软质岩,强度为500k Pa,两侧山体覆盖层均不超过1m,其次为软质岩。发乡河是一条季节性河流,无滑坡、崩塌、泥石流、地裂、岩溶塌陷等不良地质作用,无洞穴分布。为满足施工进度、安全生产和环保等方面的需要并充分考虑到雨季的防洪需求,拟采用如下栈桥方案:
(1)道路等级为施工便道,设计使用年限2年,设计车速:5km/h,设计车道:单车道;桥面宽度:桥面行车道净宽(限宽)为3.0m。
(2)栈桥按单车60t通行能力进行验算,桥跨布置为“33+6+33+3+30+3+33”=141m,共4跨贝雷梁组合的连续梁;设计标高为1368.459m。

图1 栈桥桥型布置图 *载下**原图
(3)上部结构:上部结构布置8片单排单层上下加强型贝雷片做主梁,单跨最大长度为33m,贝雷梁之间采用支撑架、平联连接;在贝雷梁上采用I32a工字钢作为横向分配梁,在横向分配梁上纵向铺设[32a槽钢作为桥面。桥面两侧采用I14工字钢设置1.5m高栏杆,纵向穿两排脚手架钢管作为护栏,栏杆涂刷红白相间的油漆。
(4)下部结构(图2):两岸桥台、桥墩基础采用C25混凝土浇筑;1~3号桥墩采用直径630mm×10mm的钢管,每个墩采用4根钢管,通过纵横向联系构成格构式整体结构;竖向每隔一定间距(h=6m)设置一道纵横联;立柱横联采用双拼的C20槽钢,采用活动抱箍抱紧钢管立柱后与槽钢连接,连接点采用贝雷销;钢管顶端采用2×56a工字钢作为主横梁,主横梁上放置贝雷片主纵梁。

图2 栈桥横断面图 *载下**原图
3 栈桥的结构计算仿真分析
3.1 荷载计算
3.1.1 荷载系数
(1)活载分项系数:汽车荷载1.4,风荷载1.1,汽车制动力1.4,人群荷载0.8;
(2)恒载分项系数:自重荷载1.2;
(3)冲击系数:汽车荷载1.4已包括了冲击系数。
3.1.2 恒载组合情况
基本组合:1.20×自重+1.40×汽车荷载+1.1风荷载+1.4汽车制动力+0.8人群荷载
3.1.3 荷载计算
(1)自重荷载:横向分配梁I32a、纵向桥面[32a以及贝雷梁等结构的自重由Midas Civil软件自动计算。
(2)汽车荷载(含冲击力):按照满载材料运输车辆总重为:600k N,均布为2×(75k N+112.5k N+112.5k N),荷载前后轴的距离为:3.8m+1.4m,轮距为1.8m;
车辆偏心距:车辆轮距按1.8计算,贝雷梁总宽为315m,最大允许车辆处于最边上两片贝雷梁之间的中心点,偏心距最大为45cm。
汽车制动荷载:根据《公路桥涵设计通用规范》并结合车辆荷载的布置情况,采用车辆荷载总重的10%作为制动荷载,即制动荷载=60k N;
(3)风荷载的计算:
根据《公路桥涵设计通用规范》关于风荷载的计算规定,其横向风荷载标准值按以下公式计算:

其中K0为设计风速重现期系数,取值1.0;K1为风载阻力系数,查表取值为1.75;K3为地形条件系数,查表取值为1.4;

m2;(结合建筑结构荷载规范等,风速按50年一遇取值)
Awh为横向迎风面结构实际面积;
分别对贝雷梁横杆、竖杆/斜杆、横向分配梁、纵梁、底端横梁、桥墩立柱等分别计算如下:
贝雷梁:设弦杆长1m宽83mm,A=1×0.083=0.083m2,P=1.04×0.083=0.08622kN;
则弦杆的荷载集度=0.08622k N/m=86.22N/m;
竖杆/斜杆=1.04×0.05=0.052k N/m=52N/m;
分配梁32工字钢=1.04×67.12/10000=0.007kN=7N;
纵梁32C=74.1×1.04/10000=0.0077k N/m=7.7N/m;
56工字钢=1.04×135.38/10000=0.014k N=14N;
立柱=0.63×1×1.04/1=0.6552k N/m=655.2N/m;
(4)雪荷载的计算
根据工程实际,当桥面堆积雪后容易打滑,一般此时禁止通行;按照规范取值,雪荷载标准值=0.25k N/m2,与通行时的单车60t荷载相比,雪荷载相对较小,结构是安全的。即使雪天情况需要通行,需要对栈桥桥面进行清扫才能放行,防止刹不住车,并且栈桥桥位处海拔相对较低,历年下雪的情况较少,所以未将雪荷载参与结构受力计算。
(5)人群荷载
人群荷载是可变荷载,按照规范取值为3k N/m2,加载在两侧人行道2根C32槽钢上;荷载集度=0.32×1×3=0.96kN/m。
3.1.4 材料设计强度
根据《公路钢结构桥梁设计规范》规定,主要材料设计强度参数如下:
Q235:抗拉、抗压、抗弯强度设计值为190MPa,抗剪强度设计值为110MPa;
16Mn=Q345:抗拉、抗压、抗弯强度设计值为275MPa,抗剪强度设计值为160MPa;
3.2 全桥结构仿真分析计算
用Midas civil建立模型计算如图3。

图3 栈桥总体模型图 *载下**原图
3.2.1 结构模型建立
在桥梁设计及试验算过程中发现,桥墩处的竖杆轴向应力较大,因此,对竖杆均采用C10槽钢进行外包式补强,详见补强设计构造图。
3.2.2 桥梁结构受力计算
桥梁结构计算采用midas civil软件进行计算,计算时根据车辆在横桥向的位置情况,分为偏心、不偏心两种工况,计算结果取最不利偏心工况。主要构件受力计算结果如表1。
表1 主要构件受力计算结果 *载下**原图

栈桥各结构部位受力均满足规范要求。
3.2.3 全桥位移计算

图4 全桥竖向位移(挠度)图(偏心45cm) *载下**原图
全桥竖向最大位移=38mm<[f]=33000/400=82.5mm,满足要求。
3.2.4 栈桥结构整体稳定性计算
在结构受力过程中弯曲应力、剪切应力、轴向应力、位移等达到最大值等不同工况下计算其稳定性,结果如表2。
表2 栈桥结构整体稳定性计算 *载下**原图

3.2.5 桥墩的局部稳定性计算
把模型中的贝雷梁去掉,以车辆荷载作用下56a工字钢的支点反力为钢管立柱顶端的作用力,单独计算立柱的稳定性;由于本桥1、2号墩立柱最高,故计算1号、2号墩稳定性即可。
(1) 1号墩稳定性计算

图5 1号墩井字形墩柱的整体稳定性临界系数 *载下**原图
屈曲分析第一阶稳定模态最小临界系数=23.6>4,满足要求。
(2) 2号墩稳定性计算
屈曲分析第一阶稳定模态最小临界系数=14>4,满足要求。

图6 2号墩井字形墩柱的整体稳定性临界系数 *载下**原图
综上所述,各种情况下计算的稳定系数均大于4,桥墩、桥梁整体的稳定性均能满足要求。
4 栈桥的施工控制与管理
该栈桥施工工艺流程为:设备及材料进场→施工放样→平整场地和桥台施工→2#、3#墩桩基施工(人工挖孔桩)→1#墩基础施工→墩柱安装→横梁安装→贝雷梁拼装(塔吊吊车安装)→横向分配梁安装→桥面安装→护栏以及附属设施安装。
4.1 挖孔桩施工
(1)挖孔灌注桩施工时,桩位处应设置警示标志、工程标识牌等,孔口应设置锁口,锁口顶面宽0.4m、高0.3m,并高于地表30cm以上,锁口混凝土顶面施工时在相应位置预埋护壁钢筋及孔口围挡地脚螺栓;孔口周边1.0m范围内应进行环形硬化,便于渣土清理及后续钢筋笼、混凝土灌注工作的开展,同时电缆线需用PVC预埋管下穿。
(2)由于桩长较短,基底承载力高,钢筋笼较轻,钢筋笼采用钢筋加工棚内集中加工绑扎焊接成型后,采用随车吊运输至现场,采用25t吊车进行安装。
(3)孔内混凝土采用串筒引导入孔,孔内混凝土采用插入式振捣器振捣,泵管或串筒距离孔底1.5m以内,边灌注边提升,每次灌注高度应控制在1m以内,每灌注0.8m左右振捣1次。
4.2 墩柱施工
每个墩采用4根Φ63钢管(每6m为一节,最后不足6m按一节算),通过纵横向联系构成格构式整体结构,竖向每隔一定间距设置一道横联;立柱横联采用C20槽钢;钢管顶端采用2×56a工字钢作为主横梁,主横梁上放置贝雷片主纵梁。
(1)根据施工图纸采用全站仪将墩柱位置放出,并在桩基和基础的预埋钢板上做好点位标记。
(2)将第一节Φ630钢管用75t吊车或塔吊吊至预埋钢板上面,人工配合机械定位,并将钢管与预埋钢板进行焊接,固定前必须检查钢管柱垂直度,满足要求后固定。第一节钢管柱4根全部安装完成后,及时采用[20a槽钢组合撑按3m一组进行横向、纵向及斜撑连接,纵横向平撑等与墩柱主管连接采用抱箍和销子。
(3)钢管柱之间采用

钢板法兰盘进行连接;钢管柱达到设计要求标高后,柱顶部焊接3cm钢板作为横梁支撑平台,横向安装2排Ι56a工字钢做为横梁。
4.3 贝雷梁安装
(1)临时钢栈桥桥面设计宽度为4.5m,贝雷桁架采用8排,贝雷梁横向间距均为45cm。因本临时钢栈桥单跨跨度大,所以在吊装过程中贝雷梁均在地上一组一组拼装好,然后直接采用75t汽车吊、塔吊吊装到指定位置安装。
(2)吊装前先在墩台预埋钢板上将每排贝雷梁的位置标注准确,吊装作业缓慢匀速进行,需专人指挥。
(3)一跨贝雷梁全部就位准确后,立即进行底面平联的安装,以保证结构的稳定性。平联安装完成后,在进行护横向分配梁吊装。
4.4 横向分配梁、桥面系安装
在贝雷梁顶面安装I32a作为横向分配梁,横向分配梁采用汽车吊吊装,吊装就位后,用U型骑马螺栓固定。
桥面用[32a槽钢铺装,在横向分配梁安装完毕后,开始进行桥面吊装施工。用25T的汽车吊吊装,桥面全部吊装完成后,用焊机将桥面与横向分配梁焊接牢固,连成整体,焊缝厚度满足设计要求。
护栏用I14工字钢焊接在横向分配梁上,护栏高度为1.5m,且纵向穿两排直径48mm的钢管。安装完成后涂刷油漆。
4.5 全桥的检查验收与管理
(1)临时钢栈桥施工完成后,由项目经理部项目经理、总工程师组织项目部工程技术、安全质量、物资设备、工区负责人、现场技术员等对该钢栈桥进行检查验收;桥梁安装完成后,采用符合设计吨位的汽车对桥梁进行静载试验、动载试验,检验桥梁承载能力;
(2)经计算,该桥能满足60t车辆荷载的通行,为防止车辆的跑偏,桥面安装完成后采取措施对车道进行限位;
(3)水泥粒料车满载可能超过设计吨位(60t),若该种车型需要在栈桥上通行,为确保栈桥的安全,需将水泥粒料车内装载的散装水泥在其他拌合站进行部分卸载,再进行过磅称重后确保小于60t再让水泥车通过栈桥,予以确保栈桥的使用安全。
(4)郭家大营盘隧道进口端弃渣的自卸汽车通行栈桥时,需要对汽车的装载做详细规定,在装渣时装平车厢板顶面后进行整车过磅,当整车质量小于60t则以后按装平车厢板进行控制;若大于60t则卸载部分后找平,画出小于60t的荷载线位置,严格按划线位置装渣,确保渣车荷载不超过栈桥设计荷载。
(5)在使用过程中要定期对桥梁的零部件、螺栓等进行检查,对松动的螺栓等要及时拧紧,要在桥梁结构跨中、桥台基础等部位设置观测点,定期对桥梁的变形、位移等进行监测并做好记录;
(6)在两侧桥台设置限速、限单车通行等标志,在桥台两端引道设置必要的错车带,同时在桥两端设置值班人员,监管车辆的放行,确保车辆的正常通行;通行的车辆原则上在引道上转弯校正方向,进入栈桥时是直线进入,减小贝雷梁栈桥抗扭风险。
5 结语
发香河钢栈桥采用上下加强型贝雷梁做主梁,贝雷梁2片为一组,便于采用标准的45支撑片;通过Midas civil有限元软件对该栈桥进行整体建模仿真分析与计算,各杆件计算结果均满足要求,稳定性好。栈桥安装完成经检查验收与试车(试车荷载60t),栈桥的最大跨中难度为35mm,与Midas civil有限元模型的理论计算值基本相当,进一步验证了设计的合理性、可靠性、安全性,栈桥的承载能力符合设计要求。目前,该栈桥已安全运营20个月,定期对栈桥进行了检查与维护,结构受力与变形均满足设计。该栈桥设计所采用的理念、模拟计算方法是安全可行的,对今后类似工程有较好的参考价值。
参考文献
[1] 王书增.新编钢结构数据速查手册.北京:中国电力出版社,2009.
[2] 孙训方,方孝淑,关来泰.材料力学(I).北京:高等教育出版社,2002,8.
[3] JTG/T F50-2011,公路桥涵施工技术规范.
[4] JTG D60-2015,公路桥涵设计通用规范.
[5] JTG D64-2015,公路钢结构桥梁设计规范.

声明: 我们尊重原创,也注重分享。有部分内容来自互联网,版权归原作者所有,仅供学习参考之用,禁止用于商业用途,如无意中侵犯了哪个媒体、公司、企业或个人等的知识产权,请联系删除,另本头条号推送内容仅代表作者观点,与头条号运营方无关,内容真伪请读者自行鉴别,本头条号不承担任何责任。