
[ 梦回宋朝 ]
国史学家汤因比曾无比向往地说:“如果让我选择,我愿意活在中国的宋朝。”宋代被欧美学者称为“东方的文艺复兴”,是中国古典艺术的颠峰,宋代的美学不是让人一味的强大和扩张,而是使其达到平衡。温文儒雅的君子风范、厚积薄发的文化修养、幽雅醇清的艺术气质也体现在居住格调的审美上。
桃花不识东西晋,想如今、也梦邯郸。如今,“宋”已不仅仅是朝代名称,而是演变成一个独特的美学符号,宇一设计运用艺术的手法造景“以大观小”,将宋画、宋瓷、宋绣、宋词融入空间,不拘之于模拟形似,重塑宋朝文化盛宴,营造出空间的文化底蕴,更有独一无二的个性表达。
美学意蕴而非形似
Aesthetic meaning rather than likeness
创宇东望销售中心位于古都邯郸,以宋风为鉴,修美学意蕴而非形似。接待前台以软硬装结合,融入自然山景,随内心和四季流转而曲折流动,抟虚成实,使虚的空间化为实的生命。




→滑动查看更多图
过道的设计借鉴宋词与文字元素的重组,廊道、理水、植树,引景入室,营造自然山水与人文的自由意趣,人与环境的和谐共处、相得益彰。





→滑动查看更多图
书法史上论及宋代书法,素有"苏、黄、米、 蔡"四大书家的说法 。宋代为代表,沙盘区的设计以书法艺术的手法,“以大观小”将文字的形态定格于空间,以宋代“瘦金体”为灵感,纤细有力的线条,疏密自然,精炼洒脱,造价有限的情况下呈现出最佳的体验感。光让肌理涂料表达得更透彻,逻辑调性表达得更深刻,素描关系表达得更完美,于此带来美学上的视觉感受。

同时引入宋瓷摆件“似玉非玉更胜玉”的点缀,朱红与金属交叠,转角处宋画之美蜿蜒引入,将水墨融入空间流动的力量,给空间注入活力。虚无静谧,所有的艺术变得真实可触,洒于空间,基于时空,慢慢沉淀,渐渐呈现。
五感的肌理乐章
The texture of the five senses





→滑动查看更多图
洽谈签约区极具细节品质,红色座椅搭配金属材质,采用真皮,棉麻等高品质的布艺面料,让触觉编成肌理的奏章,提升整个空间的品质感和层次感,精心定制极具品味的配饰融汇在沉稳和谐的空间里,流露出简约沉静的感受。
文化底蕴的生命力
The vitality of cultural deposits
书吧咖啡区以宋代王希孟的千里江山图徐徐展开,宋画之美,美在简单、含蓄、谦卑、轻柔的文艺态度,在困顿中浪漫,在缺憾中赞美,于山川小景、人物花鸟中轻叩生命的价值。




→滑动查看更多图
格栅与画作隔断,流转处,水墨书香,引得一室馨香。朱红椅古琴旁,以东方人居文化为起点,延续现代生活韵律。




→滑动查看更多图
茶文化作为中国文化的标签,承载着中国人处世的哲学以及追求生命情感的精神。茶室以“点茶,挂画,插花,焚香” 宋人的这四般闲事给人一种优雅恬静、岁月静好的动态美感。




→滑动查看更多图
金属玻璃格栅的分割,形成了一种静谧的氛围,空间装置“圆”产生了由内到外,由空间到景观的扩散效果,让其重心和尺度会随着人的动线产生偏移。细节处,座椅外廓以宋绣包边,让艺术美更加深了一层,更具文化内涵。





→滑动查看更多图
对更高的美的追求是每一个灵魂所向往的,东方推崇风雅与韵味,岁月在器物与空间上烙下的痕迹都会让人觉得无比的安心与亲密。以古写今,用现代的手法表达宋代美学,正是宇一设计对本案的空间写照,照进人内心深处对于东方生活的向往,为当代生活带来古韵今用的新意,正是现代人对于东方美学、东方生活的精神回归。




→滑动查看更多图

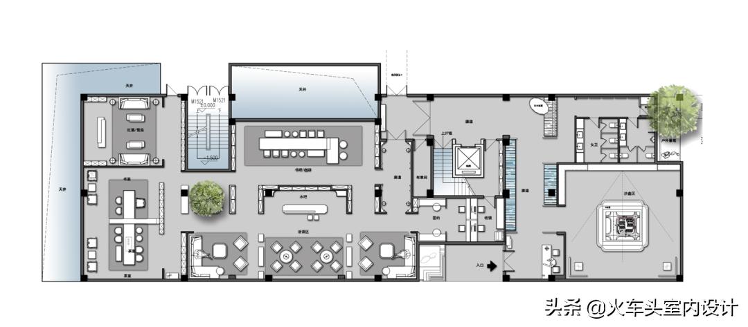
[ 一层平面图 ]

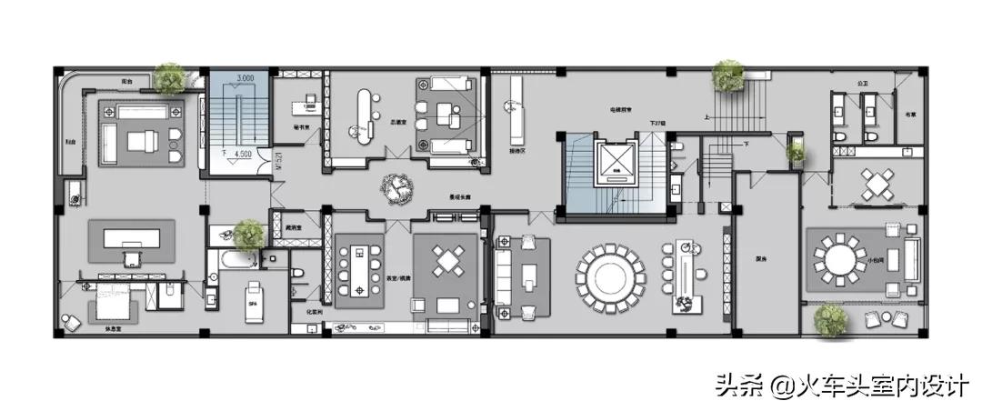
[ 二层平面图 ]
项目名称 | 创宇东望销售中心
项目地址 | 中国 邯郸
设计面积 | 1000㎡
硬装设计 | 宇一设计
设计团队 | 胡凯、谢葛芊、庞美玲
软装设计 | 宇一设计
设计团队 | 朱莎、许君君、曾寒梅
完工时间 | 2021年08月