
聚焦淮安房地产
引领行业风向标

喜讯!
淮安市多个重点项目迎来新进展,涉及学校、医院、酒店、农房改善......
淮安小学将建新校区
淮安小学是淮安市重点名校之一,现施教区范围在和平路以南,天津路以北,圩北路以东,翔宇大道以西区域内。由于施教范围内适龄儿童人数攀升,2019年,淮安小学发布了一则招生说明:如适龄儿童人数超过招生计划预期人数,则按不动产证取得时间的先后顺序录取;一经录满,其余适龄儿童则协调至老坝口小学就读。
在8月29日上午召开的区委常委会(扩大)会议中,区领导在听取了淮安小学新校区建设工作方案的汇报后指出:新建淮安小学分校,既是落实市委市政府部署要求的重要工作,也是满足群众对优质教育资源需求的民生工程,要加强组织领导、加快项目建设、确保工程质量,切实把好事办好、实事办实。由此,淮安小学分校建设工作即提上日程,且其利*意民**义重大。待其建成使用后,施教区内的招生压力可得到有效缓解、实现家门口上学不再是梦。

淮安区再添一所医院
淮安区曾在医疗水平方面占据劣势,然而近年来,这一发展空缺正逐渐被填补。自淮安医院新院火热建设后,东南医院也迎来了新进展。8月28日,淮安区东南医院规划方案批前公示,项目位于关天培路南侧、规划五路东侧,总用地面积17393㎡,总建筑面积26388.62㎡。根据规划,该医院建成后势必会再度提高淮安区医疗服务水平,为淮安区人民提供优质高效的诊疗服务。

城南五星级酒店即将动工
书香府邸酒店,位于淮安市西南侧阳光湖公园内(原伊美酒店),项目面河临湖,周边生态环境优美。酒店总建筑面积46990㎡,总投资约5亿元,拟规划客房252间,餐位1200余座,是一座集住宿、餐饮、会议、休娱功能的综合性五星级文化精品酒店。
作为城南板块的“未来牌面”,书香府邸酒店规划消息放出后,就一直备受关注。近日,有关部门发布了书香府邸酒店改造提升项目EPC工程总承包招标公告。公示信息显示项目设计开工日期为2020年10月20日,施工开工日期为2020年11月19日,意味着书香府邸距离面市更近一步。

西安北路新增加油站
8月31日,淮安西安北路加油站项目批前公示,该项目位于大治路南侧、西安北路东侧,项目用地面积为2678㎡,总建筑面积约1142.4㎡,其中地上计容面积约1142.4㎡。

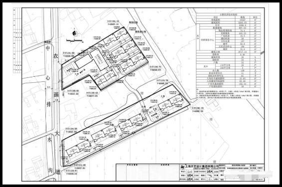
淮安区农房改善计划持续推进
今年初,淮安区在推进农房改善项目上加大马力,全区拟实施农房改善项目16个,总投资约9.6亿元。9月1日,淮安区博里镇农画新村设计方案批前公示,该项目位于博里镇农画新村,新建部分总用地面积10547㎡,总建筑面积为5203.93㎡,容积率为0.49,建筑密度为26%,绿地率为33%。

(来源:淮安小学官方网站、淮安市公众交易资源中心网)
免责声明:淮房天下是面向普通网友发生的身边事线索发布平台,目的是为传递更多信息,淮房天下网友发布爆料比代表本网赞同其观点和对其真实性负责。