室外运动场地设计
为满足现代居民休闲运动的需求,在设计城市公园、街旁绿地等城市公共绿地时往往会涉及到室外运动场地,应要注意以下方面。
1-运动场地的朝向。
中国地区的户外运动场地一般都采用南北向布局。
地球自转和公转是国际体育组织要求运动场地方向的主要依据,以北半球为例,中午12时以前,太阳光从体育场的东面向西面照射;中午12点以后,太阳光从运动场的西面向东面照射,这对于自北向南或自南向北跑动的运动员来说都是“侧光”,从而避免了阳光直射人眼。国内外在修建体育场时,总是将体育场的纵轴线顺着南北向,最大限度地避免太阳光直射和漫反射所引起的晃眼、刺眼等不利因素。
2-场地尺寸。
设计中常用到的室外运动场地有网球场、篮球场、羽毛球场、排球场、足球场、乒乓球场等。一般球类的简易运动场地在平面划分上会有两部分组成:场地区和缓冲区。景观设计时要注意根据实际情况预留运动缓冲区。
篮球场
球场尺寸:长28米,宽15米,球场的丈量是从界线的内沿量起。
缓冲区域:4米(长);2米(宽)

在场地面积受限时也可以设置半场篮球场,尺寸为15米×14米,注意留出缓冲区。
网球场
球场尺寸:长23.77米,宽10.97米
缓冲区域:6.4米(长);3.65米(宽)

羽毛球场
球场尺寸:长13.4米,宽6.1米
缓冲区域:2米(长),2米(宽);并列的球场之间至少有2米的距离。

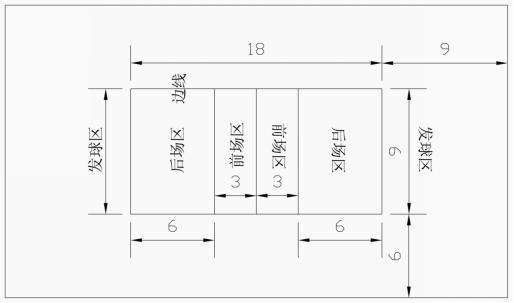
排球场(沙排场)
球场尺寸:长18米,宽9米
缓冲区域:3米(长),3米(宽);国际排联世界性比赛场地边线外的无障碍区至少宽5米,端线外至少宽8米。成年世界锦标赛和奥运会比赛,基无障碍区边线外至少宽6米,端线外至少宽9米。

足球场地
(1)五人制:
球场尺寸:40米X20米
缓冲区域:2米;2米

拓展:室外运动场地面材料的选择
一般采用丙烯酸材料、EPDM塑胶材料、硅PU材料三种。
1、丙烯酸篮球场材料色泽鲜艳,有多种颜色可供选择。适用于各种气候环境,耐紫外线照射,颜色持久不褪。球场施工后正常情况下,寿命在3-8年或者更长,坚实耐用,具体寿命跟基础质量有关。丙烯酸材料做的球场可以在原来面层上面重涂翻新,而且不会出现脱落现象。后期维护保养方便且简单,以压力喷水清洗地面即可使球场保持光洁如新。
2、EPDM塑胶球场,底层由聚氨酯黏合剂按控制比例混合特殊胶粒后,经由专业施工机械控制厚度铺设,具有施工方便,对基础适应能力强,不容易起皮、起泡等优点。
3、硅PU球场能保证外观结构特征恒久稳定不变,耐磨性好,能满足长期高使用频率之需要,坚韧、密实,不易被鞋底或其它硬物刮化。
篮球场、网球场、排球场、羽毛球场、学校操场地面铺设首选硬地丙烯酸球场材料,无毒,环保,耐磨、耐晒,耐紫外线照射,颜色丰富,造价经济,维护保养便利,使用寿命长。