
这款内存采用了低矮的外形设计,从内存金手指到内存顶部导光条最高点只有约3.9cm的高度,不易和高大的风冷散热器出现安装冲突。内存正反两面不仅配备了铝质散热片,还在PCB顶部加入16颗RGB LED与导光条。这款内存的灯效有丰富的可玩性,首先英睿达为内存提供了名为M.O.D. Utility的灯效控制与硬件监控软件,其次这款内存还支持华硕Aura Sync、华擎Polychrome RGB及微星MYSTIC LIGHT等主板的同步发光技术,用户也可使用这些主板厂商的软件对光效进行控制。

▲铂胜RGB DDR4内存可以为用户带来惊艳的灯效。

▲英睿达为内存提供了名为M.O.D. Utility的灯效控制与硬件监控软件。
颗粒方面,通过专业软件检测,英睿达铂胜RGB DDR4 3200 16GB内存套装的每根内存采用单面8颗粒设计,内存颗粒则是美光编号为“C9BJZ”的产品,该颗粒因为超频性能较强,在玩家中拥有较好的口碑。要想让其超频工作在DDR4 3200频率下也非常简单,用户只要在支持英特尔XMP或AMD D.O.C.P技术的主板BIOS里开启内存一键超频功能,即可一键将内存超频到DDR4 3200下使用。在DDR4 3200下内存电压为1.35V,延迟为16-18-18-36-72。

▲英睿达铂胜RGB DDR4 3200内存最高可超频到DDR4 4266使用
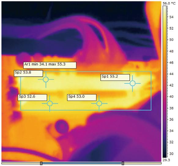
接下来我们搭配英特尔酷睿i9-11900K处理器、ROG MAXIMUS XⅢ HERO主板、GeForce RTX 3090显卡对内存进行了测试。首先从默认状态下的性能表现来看,这款内存发挥出了DDR4 3200的正常性能—AIDA64的最高内存传输带宽突破48000MB/s,《鲁大师》内存性能也达到了137774分,其CINEBENCH R20处理器渲染性能达到6219pts。同时我们测试了英睿达铂胜RGB DDR4 3200 16GB内存套装在DDR4 3200下的工作稳定性。测试中运行了AIDA64内存烤机测试,当运行时间达到半小时后,内存没有出现任何不稳定或蓝屏的现象。不过从FLIR红外热像仪侦测来看,内存散热片的温度稍有一点偏高,散热片表面最高温度为55℃,内存表面整体温度在52℃左右。

▲英睿达铂胜RGB DDR4 3200内存在满载工作半小时后,散热片表面最高温度为55℃。
接下来我们还测试了英睿达铂胜RGB DDR4 3200 16GB内存套装的频率是否有进一步提升的空间。经多次尝试,我们发现在处理器内存控制器频率减半的GEAR 2模式下,当我们将内存延迟提升到19-23-23-43@1T,内存电压增加到1.6V后,这款内存的最高工作频率可提升到DDR4 4266,相对默认频率提升了1000MHz以上,其内存性能有了明显提升。如AIDA64内存读取带宽从DDR4 3200下的48296MB/s提升到62109MB/s,性能增幅达28.6%,而AIDA64内存写入带宽则从DDR4 3200下的47069MB/s提升到61097MB/s,性能增幅更达29.8%。
内存性能的提升也同时带动《鲁大师》6.1021处理器性能与游戏《全面战争:特洛伊》《坦克世界》的成绩获得了同步提升。不过需要注意的是,由于GEAR 2模式下的内存控制器频率减半增加了延迟,因此在CINEBENCH R20、3DMark、Corona 1.3渲染测试中,DDR4 4266下的成绩较DDR4 3200下的成绩不升反降。
如要追求兼得延迟与频率的超频,则可在内存与内存控制器同频工作的GEAR 1模式下进行超频。在此模式下,当我们仍保持16-18-18-36的延迟设置,只是将内存电压增加到1.6V后,内存频率最高可提升到DDR4 3600。从测试成绩来看,虽然GEAR 1模式下的DDR4 3600内存带宽增幅不如DDR4 4266,但内存的访问延迟却得到了一定降低,AIDA64的内存访问延迟可以控制在50ns以内。同时各项测试的成绩也基本获得了同步增长,特别是DDR4 3600下的3DMark Fire Strike、《坦克世界》等测试表现最佳,仅仅是将内存频率提升到DDR4 3600,其在《坦克世界》中的平均帧数就增加了17fps。

总体来看,这款英睿达铂胜RGB DDR4 3200不仅拥有漂亮的灯效,还凭借体质优秀的美光原厂颗粒,在性能上具备较好的表现。其649元的售价也不算太贵,具备一定的性价比,值得那些追求原厂颗粒,希望兼顾性能与灯效的玩家采用。
基本参数
内存容量:8GB×2
内存电压:
DDR4 2666@1.2V
DDR4 3200@1.35V
默认时序:
19-19-19-43@DDR4 2666
20-19-19-43@DDR4 2666
16-18-18-36@DDR4 3200
质保时间:终身保修
参考价格:649元
优点:体型小巧,拥有RGB灯效,内存性能表现较好。
缺点:内存散热片性能一般