
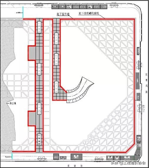
基坑临边及栈桥临边防
地下室施工阶段,为确保临边作业的安全,采用定型化防护网片在基坑四周设置临边防护,临边防护网片高度不得低于1.2m,距基坑边水平距离至少0.5m。夜间应设红灯示警。防护外侧张挂“当心坠落”安全警示标志。

基坑及栈道周边防护范围
图中红色线条表示基坑周边及栈道临边使用网片式防护围栏进行防护的范围。

楼层四周防护
写字楼22 层以下临边采用1.2 米高的网片式定型化防护围栏进行搭设,刷黄黑油漆。22层及以上采用2.5 米高的防护围栏。


后浇带防护
沿后浇带两侧砌筑挡水坎,防护采用九层板覆盖水平封闭。根据挡水坎之间间距锯出相当长度的木枋卡固在挡水坎之间,用铁钉将硬质盖板钉在木枋上,完成硬质防护。盖板上刷红白或黄黑警示漆。

电梯洞口防护
电梯井门洞口安装1.6m 高标准化安全防护门,采用膨胀螺丝固定。防护门底部安装200mm高木质踢脚板,防护门外侧张挂“当心坠落”安全警示标志。
电梯井内竖向防护应每层设置一道水平防护兜网,每隔两层设置一道硬质防护。硬质防护应设为双层,上面一层为钢篦子,下面一层为防火板。

电梯井口安全防护示意

电梯井口安全防护门

电梯井水平防护示意

电梯井水平防护网

电梯井硬质防护层
楼梯临边防护
防护栏杆采用双道护栏形式,下道栏杆离楼梯面高度500mm,上道栏杆离楼梯面高1000mm,钢管表面涂刷黄黑警示色油漆。

施工电梯出入口
施工电梯平台出口处安装1800mm 高立开式金属防护门,安全防护门高1800mm,宽1300mm,骨架为方管焊接制作,开关插销设计在外面一侧,从里面无法开关。


洞口防护

尺寸在1500mm 以下的洞口防护



短边大于等于1.5m
室内外井口防护
临边防护高1200mm, 采用三道栏杆, 第一道栏杆高1200mm,第二道栏杆高600mm,第三道栏杆高200mm。人员离开时,将孔洞盖上钢巴网。


移动作业平台防护
现场低于4m 的施工作业使用移动操作架进行作业,超过4m 的可考虑使用轻型剪刀式升降作业平台。


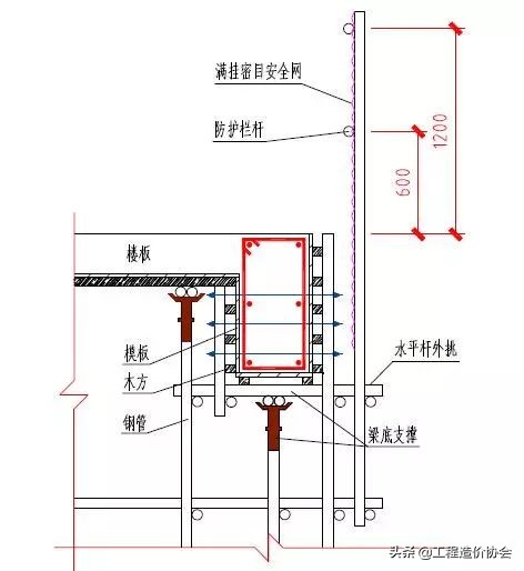
核心筒水平结构施工临边防护
核心筒水平结构施工时临边防护借助梁底支撑架,从支撑架上挑出水平杆,间距1500mm,此水平杆最少需与梁底支撑架两排横杆相连,在洞口边设置立杆,立杆顶面距离板面1300mm,设置两道水平杆,距离板面分别为600mm 及1200mm,满挂绿色阻燃安全兜网,架体随梁底支撑架一同拆除。
