
舞台上演更丰富的活动 © Yong-joon Choi
感谢 Betwin Space Design对gooood的分享
新冠疫情改变了销售模式,很多品牌纷纷从线下转变为线上,传统销售功能的线下商店已不再引起消费者的兴趣。想要振兴线下商店,需要植入更多引人注目的特别之处。Spyder Haven商店位于京畿道南杨州市,是一家顺应新时期需求的特惠店,提供了丰富的体育和文化空间。
▼建筑概览 © Yong-joon Choi

建筑的设计概念为“The Power of Core”。Spyder品牌以“LIMITLESS”为口号,意在表明品牌发展的内在动力就是不断挑战极限。Spyder Haven商店旨在成为社区的活动中心,满足大众的需求。向上伸展的管状结构仿佛蛛网,强调了立面,在视觉上给人留下强烈的品牌印象。建筑自然环保,顺应周边环境,成功塑造了Spyder Haven的品牌形象。商店外的体育场可以举办五人制足球比赛,定制训练课程。因此除购物外,顾客还可以来此参与比赛与课程,通过一系列活动加深对品牌的理解。Spyder Haven吸引着不同需求的人们来此参观。
▼醒目的“蜘蛛网 © Yong-joon Choi

建筑包括两部分,一侧是特惠店,另一侧是多功能的“studio”。用于销售的特惠店卖场内以金属螺栓为主要装饰材料。这些金属螺栓在墙上沿垂直方向紧密排布,空间粗旷的风格给人留下了深刻印象。金属螺栓间整齐地安装着滑道,以满足展示墙灵活使用的需要。展示服装的衣架架构设计独特,赋予空间更鲜明的个性与更强烈的风格。
▼风格独特的卖场空间 © Yong-joon Choi

▼精心设计的服装展架 © Yong-joon Choi

▼可根据展示需要灵活调整展 © Yong-joon Choi

“Studio”的内部空间十分丰富,不仅为Spyder Korea举办的体育联赛提供了场地,还是摄影和拍摄youtube影片的好去处。此外,Studio还可以作为“Spyder Lap”使用。天花板上的桁架结构支持安装舞台照明,操作简单,能让顾客享受到更加缤纷多彩的活动。
▼舞台上演更丰富的活动 © Yong-joon Choi

值得一提的是,在Spyder Haven特惠店内环顾四周,可以看到许多利用工业材料制造的独特设计。这些设计体现出疫情后品牌更加多样化的发展路线。
▼细部,品牌展示 © Yong-joon Choi

▼细部,展墙的金属材质 © Yong-joon Choi

▼夜景 © Yong-joon Choi

项目图纸
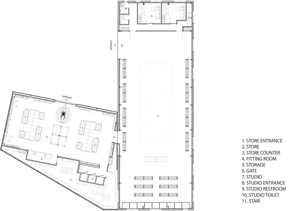
▼平面图 © Betwin Space Design

▼立面图 © Betwin Space Design

Design
Client: Spyder Korea (Global Brandsgroup, Ltd.)
Project Name: Spyder Haven Store
Spatial Design : Betwin Space Design (www.betwin.kr)
OverviewLocation : 1182-35, Sure-ro, Hwado-eup, Namyangju-si, Gyeonggi-do, Republic of Korea
Use : Spyder Outlet Store & Complex Sports Cultural space
Area : 224sqm(67py)
Completion : June 2020
Finishing materials -Floor: Epoxy
-Wall: Stud, CRC Board, Paint
-Ceiling: Paint
Photographer : Yong-joon Choi
