青年时期的蒙克敬仰梵高、迷恋尼采,他不知道后来者有马蒂斯、毕加索同样将他奉若师友。蒙克不像现实主义和印象派画家那样注重直接观察和表现光感,他更重视表达心灵的世界。《呐喊》里那一声剧烈的嘶吼,就是他捕捉自然的心灵之声。

“买一个房子定居在一处,这种生活观念已经发生变化。在年轻人的生活方式里,可能几年就要换一个居所。不太想买房的年轻人,让房地产企业得到一次革新的契机。”
——隽语公寓总经理 李时续



隽语悦己公寓公区改造设计,是社会关怀、行业研究以及对住客心理把握的结果。
大堂里那座负重而行的蜗牛雕塑,昭示的就是对城市独居青年的真实洞察。从熟人社会闯进陌生人社会,996的工作、收缩的交际圈、淡化的亲情纽带,让背井离乡的年轻人渐趋原子化。“蜗牛”不是欲盖弥彰的“我牛”,而是来自真实生活的无声呐喊,一种不得不把全部家当背在身上、踽踽独行的自嘲。

“蜗牛,他是一种动物的同时,更是年轻的两种状态:他像牛一样努力,同时他希望有一个港湾可以让自己蜗居。蜗牛在形象上面一直都是一个孤独的潜行者,但是他每一次停下来都是‘回家’。”
——隽语公寓副总经理 彭峻枫







△接待大堂
中国传统农业社会解体走向工业化,传统大家庭随之瓦解,流动人口增多,慢慢出现单子化家庭,这是不可逆转的时代浪潮。
2022年中国常住人口城镇化率已达65.2%,按2035-2050年中国城镇化水平达到75%-80%来测算,未来还有1.5-2亿人口进城。据世邦魏理仕报告预计,2030年中国集中式长租公寓需求规模将超过1200万套,目前尚有940万套的缺口。








△书吧
隽语悦己公寓为改善城市精英的蜗居环境而生,破题的钥匙有两把:其一优越的位置,其二完善的公共配套。
青年公寓面积大多只有三十方左右,生活其中的人就像一座孤岛。无*功论**能如何强大,收纳如何齐全,都不可能满足生活所需。逃离北上广的声音从未停止,表因是长期居无定所的无望,实质是归属感和社会认同感的欠缺。在此前提下设计公寓不能只讲功能不讲人性,为人和人创造可交往的公共空间至关重要。


“我们对未来长租公寓的理解,不单是解决功能性的需求,更重要的是解决人性化的需求。从熟人社会闯进生人社会,每个人都是一座孤岛。通过设计加强人与人之间的联系,为租客创造能够亲密交流的公共生活,从而滋养出有温度的社区认同感,这是隽语悦己公寓项目的设计价值所在。”
——共生形态创始人、设计总监 彭征
随着一二线城市优质土地日益稀缺,存量物业的转型升级正在成为新的战场。增量时代的地产开发依靠高杠杆和快周转模式得到迅猛发展,而存量时代的公寓租赁不可能像销售商品房一样,借助样板房和造势宣传神速套现。
从长期主义来看,灵活便利的公区设计能带给住客更好的居住体验,保值物业同时提升品牌溢价。正如柯布西耶设计的马赛公寓,因为创造了能够容纳和孵化各种活动的公共空间而成为一个充满生机的长寿建筑。



云山大酒店,四十年前作为打破计划经济框框的神级存在,在广州乃至全国反响炸裂。虽然近年来在国际级酒店的冲击之下光芒日益黯淡,但是闹中取静、见证过广州两代CBD荣光的黄金位置,就是它得天独厚、不可取代的最大优势。
涅槃重生成隽语悦己公寓,关键性的一步,是资方懂得舍却得房率拿出700平方用作公区,并邀请专业的设计团队进行改造。在甲乙方的共同谋划之下,形成了一套可复制的方*论法**:深挖用户原始需求,用需求驱动空间组织。











△娱乐区
《呐喊》第三个版本在2012年拍出1.199亿美元的天价,爱德华·蒙克对此自然不知晓,但是他曾经说过,画画的时候从未想到出售。
他的一生行走在深不见底的悬崖边缘,从一块石头跳到另一块石头,画笔就是支撑他跳跃的拐杖。他的童年也曾因贫困,和家人从一间廉价公寓搬到另一间,他清楚自己不要创作挂在客厅的漂亮图画,他要描绘那些在生存、在感受、在痛苦、在恋爱的活生生的人们。言而总之,被追捧成表现主义先驱从未在他的意料之中。



△台球区






△健身房


△瑜伽室
旧改模式下的青年公寓投入高而收益微薄,资方躬身入局多少带着一丝理想主义情怀。
隽语悦己公寓的名字出自戴尔·*耐基卡**归纳的人生三阶:阅己、悦己、越己。读懂自己是为了接纳自我,接纳自己才能超越自我。
在波澜壮阔又跌宕起伏的城市住房改革进程中,通过空间内部功能的转换,带来能传承的城市空间叙事,提供更多的生活内容供住客选择,同时为逐渐失去活力的老城区带来鲜活的年轻力量,无疑是一种美好的活化模式。倘若行之有效,很可能成为打开存量市场的一声呐喊。
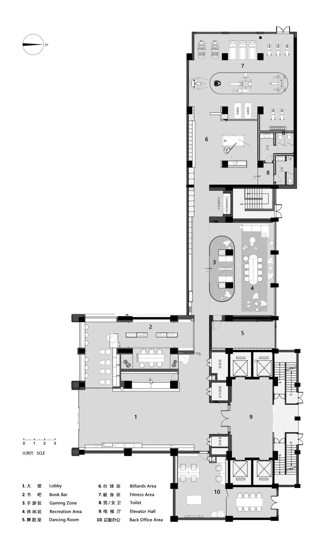
▽
平面图


项目信息
项目名称 | 隽语·悦己公寓
室内设计 | 广州共生形态工程设计有限公司
软装设计 | 广州共生形态工程设计有限公司
设计总监 | 彭征
主案设计 | 曾庆豪、丁淇、杨亚会
项目业主 | 广州康诚企业管理服务有限公司
业主代表 | 彭峻枫、李俊权、陈剑、何林丰
项目地点 | 广东 广州
设计时间 | 2021.12
竣工时间 | 2022.10
设计面积 | 700㎡
项目摄影 | 林灿宇