地址:德国汉堡
概念设计:2001 - 2003年
项目设计:2004 - 2014
项目建设:2006 - 2016

Kaispeicher河畔的易北爱乐音乐厅标志着一个大多数在这个城市中的人都从来没有在意的地方,现在它却成为这座城市人民和来自全球各地的旅游者的社会活动、文化活动和日常活动新的中心。



一个新的文化中心往往会迎合少数特权阶层。为了使新的爱乐乐团成为真正的公共景点,必须不仅提供有吸引力的建筑,而且提供有吸引力的城市设计组合。该建筑群包括爱乐音乐厅、室内乐音乐厅、餐厅、酒吧、俯瞰汉堡和港口的全景露台、公寓、酒店和停车设施。这些不同的用途在同一栋建筑中结合,就像它们在城市中一样。


就像一座城市一样,Kaispeicher和爱乐乐团这两个相互矛盾和重叠的建筑确保了令人兴奋的、多样的空间序列:一方面,Kaispeicher与海港的关系体现了其原始和古老的感觉另一个是爱乐乐团奢华优雅的世界。在这中间,公共和私人空间的地形十分广阔,在性质和规模上都各不相同:Kaispeicher的大露台延伸成一个新的公共广场,与上方的爱乐乐团的内向世界相呼应。



整个建筑群的核心是易北爱乐音乐厅本身。一个突出音乐听众和音乐创作者的空间已经出现,在某种程度上,他们实际上代表了建筑。音乐厅建筑经历了建筑再造,前所未有地强调艺术家和观众之间的亲密关系,几乎就像一个足球场。



文化爱好者的城市建筑
新的爱乐乐团不仅是音乐的场所,它还是一个成熟的住宅和文化综合体。拥有2100个座位的音乐厅和可容纳550名听众的室内音乐厅位于豪华公寓和五星级酒店之间,酒店内设有餐厅、健身中心、会议设施等内置服务设施。Kaispeicher A长期以来一直是战后时期的一座无声纪念碑,偶尔会举办一些附带活动,如今已被改造成一个充满活力的国际音乐爱好者中心,吸引游客和商界。埃尔布爱乐乐团将成为汉堡市的标志性建筑,也将成为全德国的灯塔。它将为蓬勃发展的哈芬城(HafenCity)的街区注入活力,确保它不仅是这个古老的汉萨同盟城市的卫星,而且是一个独立的新城区。


Kaispeicher
Kaispeicher A由Werner Kallmorgen设计,建造于1963年至1966年间,直到上世纪末,一直被用作仓库。最初建造时,它能承受数千袋沉重的可可豆的重量,现在它的坚固结构为新的爱乐乐团提供支持。旧建筑的结构潜力和强度已经被用来承受新建筑的重量。我们对仓库的兴趣不仅在于它尚未开发的结构潜力,还在于它的架构。这座坚固的、近乎超然的建筑为新的爱乐音乐厅提供了令人惊讶的理想地基。它似乎是风景的一部分,但还不是城市的一部分,现在城市终于推进到了这个位置。19世纪的港口仓库的设计与这座城市的历史外观相呼应:它们的窗户、地基、山墙和各种装饰元素都与当时的建筑风格保持一致。从易北河上看去,它们是为了与城市的天际线融为一体,尽管它们是无人居住的仓库,既不需要也不需要阳光、空气和阳光。但Kaispeicher A并非如此:它是一座厚重的砖砌建筑,就像汉堡港的许多其他仓库一样,但其古老的façades是抽象而冷漠的。建筑中50 x 75厘米的规则网格孔不能被称为窗户;它们更多的是结构而不是开放。


新的玻璃建筑
新建筑是在Kaispeicher的形状上被挤压出来的;它的地面规划与老建筑的砖砌块相同,高高耸立。然而,在顶部和底部,新建筑采取了与下面安静、简单的仓库不同的策略:起伏的屋顶从较低的东端上升到其整个高度108米的Kaispitze(半岛的顶端)。从远处就能看到埃尔布菲乐乐是地标性建筑,为汉堡的水平布局增添了全新的垂直布局。广阔的水域和海船的工业规模给这个新的城市带来了更大的空间感。玻璃由部分弯曲的面板组成,其中一些被雕刻开,将坐落在旧建筑之上的新建筑变成了一个巨大的彩虹水晶,它的外观不断变化,因为它捕捉到天空、水和城市的反射。上层建筑的底部也具有富有表现力的动感。沿着它的边缘,可以从广场通过拱顶形状的开口看到天空,创造出易北河和汉堡市中心的壮观的戏剧景观。再往内,深垂直开口在广场和不同楼层的门厅之间提供了不断变化的视觉关系。




入口和广场
Kaispeicher建筑群的主要入口位于东边。一条特别长的自动扶梯通向广场;它形成了一个轻微的曲线,从一端到另一端都看不到它的完整。这本身就是一种空间体验;它直接穿过整个Kaispeicher,穿过一个带阳台的大全景窗户,可以看到海港的景色,然后继续前行到广场。后者坐落在Kaispeicher的顶部和新建筑的下面,就像新旧建筑之间的巨大枢纽。这是一个新的公共空间,提供独特的全景。餐厅、酒吧、售票处和酒店大堂都位于这里,还有通往新爱乐乐团门厅的通道。







易北爱乐音乐厅
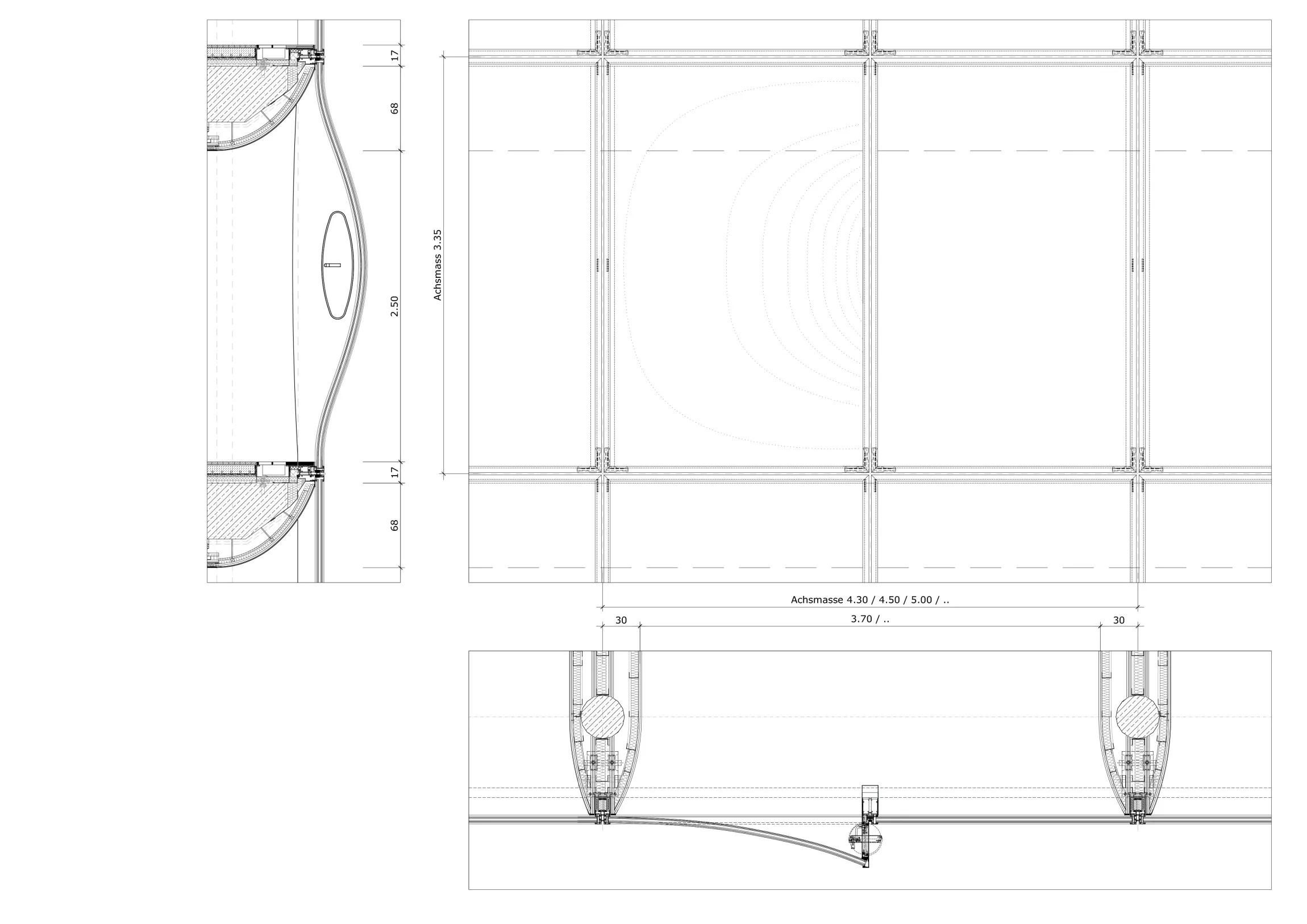
爱乐乐团将成为一个什么样的空间?在建筑中考虑了哪些声学和建筑因素?与东京、洛杉矶或柏林的传统建筑相比,这个大厅中的传统建筑产生了共鸣。这是一个21世纪的项目,在以前是无法想象的。保留的是爱乐乐团的基本理念,它是一个管弦乐队和指挥家位于观众中间的空间,可以说是这样:这里的建筑和层次的安排都是从音乐、表演者和观众的听觉和视觉感知的逻辑中得到线索的。但这种逻辑导致了另一个结论。层状结构更加广泛,层状结构、墙壁和天花板构成了一个整体空间。人,即观众和音乐家的结合体,决定了空间;空间似乎只有人组成。在这方面,它类似于我们近年来开发的足球场的类型,其目标是让观众和球员之间形成互动式的接近。我们还研究了古老的戏剧形式,比如莎士比亚的《环球》,目的是开发垂直的空间。大厅复杂的几何结构将有机的流动与锐利的近乎静态的形状结合在一起。走路、站着、坐着、观看、被人看见、聆听。音乐厅里人们的所有活动和需求都在空间结构中得到明确表达。这个空间几乎像一个帐篷一样垂直向上,为2100人提供了空间,可以聚集在一起享受制作和聆听音乐的乐趣。高耸的外形的大厅定义了整个建筑的静态结构。











过程
原有建筑建于1875年,这里现在已被列入文化遗产名录。在第二次世界大战期间,结构遭到破坏,1963年被Werner Kallmorgen设计的功能性仓库所取代。




易北爱乐音乐厅参考了汉堡老城区著名的教堂尖顶。


理想的用途-酒店和音乐厅-从两个独立的建筑发展成一个连贯的结构。







通往音乐厅的道路是通过Kaispeicher长长的弯曲扶梯,这是一个“前奏”,在中间的平台上,游客可以看到易北河的壮丽景色。






Kaispeicher的屋顶形成了一个新的广场,雕塑般的音乐厅从广场向上延伸,勾勒出城市和码头的景色。





客户指定主礼堂应该提供传统的鞋盒音乐厅的替代方案,汉堡已经在Laeiszhalle拥有这种音乐厅。










阳台向前投射到空间中,使观众和音乐家更紧密地联系在一起。为每个地点单独打磨的面板,在大厅中排列着声学外壳,这是对宏伟历史音乐厅灰泥装饰的当代翻译,给易北爱乐音乐厅带来节日气氛。




建筑师将易北爱乐音乐厅设计为玻璃体下的砖基座,与水和天空相呼应。





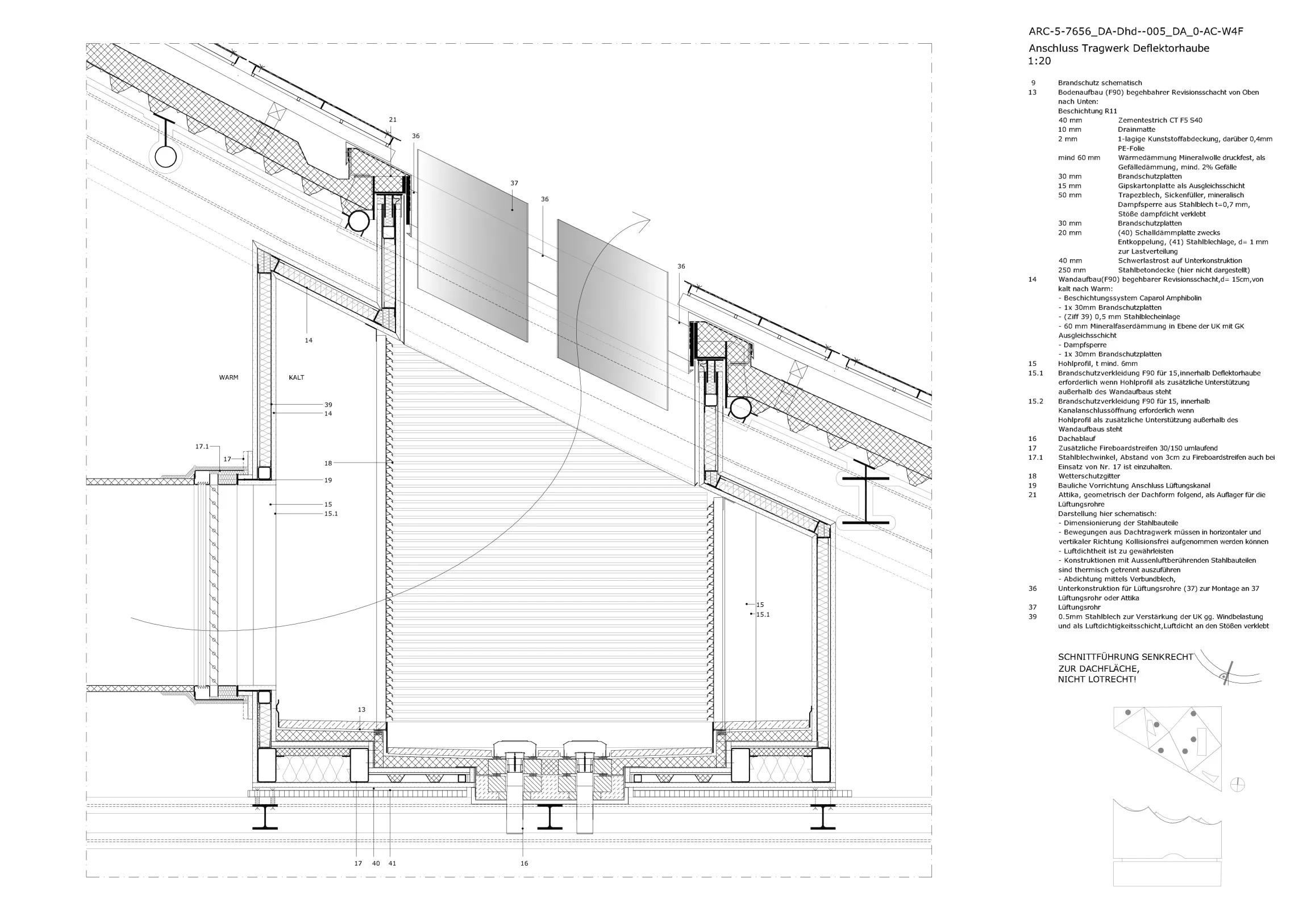
立面的表面处理强调玻璃作为一种材料。建筑师首次尝试了多面立面,设计了起伏的玻璃表皮。生物形态的凉廊开口和容纳小通风窗的浅凸起,将运动带入带有无数点的镀膜玻璃板的矩形网格中。






屋顶像帐篷一样的形状,被设计成第五个立面,部分也可以从下面看到:两种大小的“亮片”铺设在隔热层和薄膜上,最佳地覆盖凹表面和通风等基础设施元素。




易北爱乐音乐厅的建造:被拆除的Kaispeicher的地基正在加固,以支撑这座20万吨的新建筑。











穿过完工的建筑:从外面进入,向上进入易北爱乐音乐厅的管风琴主厅。