今天,喵大突然收到读者爆料:50号地块(江悦名庭)后,三湘印象名邸即将入市,认筹金333万,资金证明:首套580万,二套1160万,开盘均价10.2万,暂无认筹具体时间。

而随后,喵大也向相关人员询问,该消息是否真实,得到的答复是:周一上班,确认后和我说
不过话说回来,不管消息是否真实,目前前滩华唐名邸均价确实是10.2w,且目前卖的2房只剩3套,关于该项目最新情况,可复习文章最新爆料!均价10.2w,前滩华唐名邸2房只剩3套!

再次提醒大家,江悦名庭于10月31日摇号开盘,房源数460套,目前认筹990组+,我们群里有不少小伙伴参加了认筹,喵大等着大家的好消息!
应该说上海的新房项目几乎我们都写过,在这里附上江悦名庭我们写过的一些文章,江悦名庭实地勘测户型、数据测量、是否有售楼处、是否靠近变电站...
不过前滩也是真的沉得住气,无论你们多急,它依旧我行我素,用喵大读者的话说就是:如果不看你的文,根本不知道前滩还有这么多信息。

那么今天就带大家来看看传说中9月已过会,今天又传出认筹消息的前滩“九宫格”之一的三湘印象名邸,这个项目问的人也很多。
该项目位于前滩九宫格36-01号地块,沿着前滩大道而建,前方是无遮挡的绿地公园,应该算是众多项目中景观最好的。

效果图
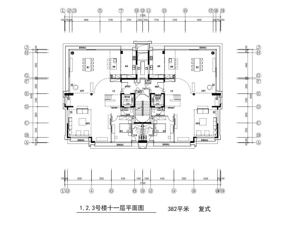
项目由7栋小高层组成,以大户型为主,两梯两户,前滩大道的三栋(1、2、3)为大平层户型,晓会路两栋(5、4)为复式户型,剩下两栋(6、7)近晓会路桐晚路的是小户型。
1、2、3号楼为:370㎡顶复4房(6套)
1、2、3号楼为:215㎡3+1房(60套)
4、5号楼为:170㎡复式4房(24套)
4、5号楼为:170㎡复式3房(24套)
6号楼为:90㎡2房(44套)
7号楼为:公共租赁房(26套)

该项目以大平层和复式为主,面积段178㎡、210㎡、230㎡、250㎡、382㎡,有355个车位,实地去看过目前没有售楼处。
工期方面,三湘印象名邸早已竣工,目前社区楼栋都是实景,我们之前也实地去看过,项目位于晓会路和芋秋路路口。

项目已经实景呈现,门口有安保人员,但目前售楼处还未开放。



进门直接进地下车库,人车分流设计。

小区绿化比较有层次,相对于前滩其他项目,算是比较有社区概念的小区。


外立面大量采用玻璃窗,采光不错。



外立面图片
预计推出房源184套,以下为户型图












最后附上读者的实拍图





更多上海新盘信息
我们也会全程跟踪
对新盘感兴趣的小伙伴
欢迎扫码加入我们房产讨论群 (wx:)
一起来聊聊吧~