龙岗新生社区有一个巨无霸旧改,占地46万平,建筑面积约278万平,再多一点都要三百万了!这个大旧改就是低山村旧改项目,这里旁边就是新生地铁站,开发商是大名鼎鼎的宝能集团 指标信息:项目户型:暂未出合同方案:直接与开发商签约开发商: 宝能集团 申报主体:深圳市新生股份合作公司 项目名称: 新生社区低山村城市更新单元 项目位置:深圳市园山街道惠盐路西侧项目进度: 签约收楼中 交房日期:获得开工许可证后36个月内过渡租金:25元/平





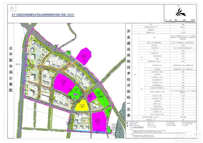
项目位置 低山村旧改项目位于龙岗街道新生社区,龙岗主干高龙岗大道、龙坪路与低山南路围合处,距离3号线地铁东延线和地铁21号线的新生站约200米距离,该项目紧挨双地铁交汇处,可直达南山、福田、宝安等地。

项目内容:
项目更新定位方向较为丰富,包含二类居住用地、商业、新型产业及普通工业用地功能。
①拟更新方向为二类居住、商业、新型产业和普通工业用地功能。②拟拆除重建用地范围内在落实法定图则规划155987.5平方米公共利益用地的基础上,新增一所占地不少于2.44公顷的54班九年一贯制学校,按城总规要求落实5823平方米公共设施用地,共落实不低于186210.5平方米公共利益用地。

按照公布的资料显示,低山村城市更新项目位于龙岗街道新生社区,城市主干道龙岗大道、龙坪路与低山南路围合处。拟拆除重建用地面积高达462574.1㎡,更新方向较为丰富。若以旧改项目容积率一般为6来计算,该更新项目计容总建筑面积或将达到约278万㎡,接近300万㎡。
不难发现,该项目落成后将形成以生态居住区、商务办公区、创新产业带以及公共配套区为主的“四区、三轴、多核”的全新结构,预计总建面将步入超百万级别。而这一旧改动向,与此前龙岗区编制的《深圳东进:龙岗打造东部中心蓝皮书》中意在“凭借教育、创新产业等综合服务功能,打造出大湾区战略腹地”的目标可谓是不谋而合。
低山村城市更新项目的推进,会加速人流、物流、信息流以及财富流等在此的聚集,片区的土地价值将被抬高。鉴于此,近距低山村城市更新项目,且距未来地铁3号线延长线与21号线交汇点“新生站”约400米的君胜·熙珑山,可谓是踩准了价值蝶变的节点,也将备受资本人士瞩目

更多详情请咨询:13043490688谭生(微信同号)
