
●●定额说明●●
一、本章定额包括四节内容(按砌筑材料):
砌粘土砖、砌石、砌轻质砖和砌块及轻质墙板等内容。
按砌筑部位分:砌基础(柱);砌墙;其他砌筑:如台阶,砖栏杆、砖地沟、石砌护坡等。
二、砌砖、砌石、砌块
(一)砌筑砂浆的强度等级、砂浆的种类,设计与定额不同时可换算,消耗量不变。
(二)定额中砖规格是按240mm×115mm×53mm标准砖编制的,空心砖、多孔砖、砌块规格按常用规格编制的,轻质墙板选用常用材质和板型编制的。
设计采用非标准砖、非常用规格砌筑材料,与定额不同时可以换算,但每定额单位消耗量不变。轻质墙板的材质、板型设计等,与定额不同时可以换算,但定额消耗量不变。
各种轻质砖综合以下种类的砖:
1、实心轻质砖包括蒸压灰砂砖、蒸压粉煤灰砖、煤渣砖、煤矸石砖、页岩烧结砖、黄河淤泥烧结砖等。
2、多孔砖包括粉煤灰多孔砖、烧结黄河淤泥多孔砖等。
3、空心砖包括蒸压灰砂空心砖、粉煤灰空心砖、页岩空心砖、混凝土空心砖等。
(三) 砌砖:
1、砖砌体均包括原浆勾缝用工,加浆勾缝时,按相应项目另行计算。
2、粘土砖砌体计算厚度,按下表计算:
3、女儿墙按外墙计算,砖垛、附墙烟囱、三皮砖以上的腰线和挑檐等体积,按其外形尺寸并入墙身体积计算。不扣除每个横截面积在0.1m2以下的孔洞所占体积,但孔洞内的抹灰工程量亦不增加。
4、零星项目系指小便池槽、蹲台、花台、隔热板下砖墩、石墙砖立边和虎头砖等。
5、2砖以上砖挡土墙执行砖基础项目,2砖以内执行砖墙相应项。
6、设计砖砌体中的拉结钢筋,按相应章节另行计算。
7、砌筑弧形墙时,人工乘以1.1、材料乘以1.03系数。
(四) 砌石:
1、定额中石材按其材料加工程度,分为毛石、整毛石和方整石。使用时应根据石料名称、规格分别套用。
2、方整石柱、墙中石材按400mm(长)×220mm(高)×200mm(厚)规格考虑,设计不同时,可以换算。块料和砂浆的总体积不变。
3、毛石护坡高度超过4m时,定额人工乘以1.15的系数。
4、砌筑弧形基础、墙时,按相应定额项目人工乘以系数1.1。
5、整砌毛石墙(有背里的)项目中,毛石整砌厚度为200mm;方整石墙(有背里的)项目中,方整石整砌厚度为220mm,定额均已考虑了拉结石和错缝搭砌。
(五) 砌块:
l、小型空心砌块墙定额选用190系列(砌块宽b=190mm),若设计选用其他系列时,可以换算。
2、砌块墙中用于固定门窗或吊柜、窗帘盒、暖气片等配件所需的灌注混凝土或预埋构件,按相应章节另行计算。
三、轻质墙板
(一) 轻质墙板,适用于框架、框剪结构中的内外墙或隔墙,定额按不同材质和墙体厚度分别列项。
(二) 轻质条板墙,不论空心条板或实心条板,均按厂家提供墙板半成品(包括板内预埋件,配套吊挂件、U形卡等),现场安装编制。
(三) 轻质条板墙中与门窗连接的钢筋码和钢板(预埋件),定额已综合考虑,但钢柱门框、铝门框、木门框及其固定件(或连接件)按有关章节相应项目另行计算。
(四) 钢丝网架水泥夹心板厚是指钢丝网架厚度,不包括抹灰厚度。括号内尺寸为保温芯材厚度。
(五) 各种轻质墙板综合内容如下:
1、GRC轻质多孔板适用于圆孔板、方孔板,其材质适用于水泥多孔板、珍珠岩多孔板、陶粒多孔板等。
2、挤压成型混凝土多孔板即AC板,适用于普通混凝土多孔板和粉煤灰混凝土多孔条板、陶粒混凝土多孔条板、炉渣与膨胀珍珠岩多孔条板等。
3、石膏空心条板适用于石膏珍珠岩空心条板、石膏硅酸盐空心条板等。
4、GRC复合夹心板适用于水泥珍珠岩夹心板、岩棉夹心板等。
●●工程量计算规则●●
一、砌筑界线划分
(一)基础与墙身以设计室内地坪为界,设计室内地坪以下为基础,以上为墙身。有地下室者,以地下室室内地坪为界,以下为基础,以上为墙身。
(二)围墙以设计室外地坪为界,室外地坪以下为基础以上为墙身。
(三)室内柱以设计室内地坪为界,以下为柱基础,以上为柱。室外柱以设计室外地坪为界,以下为柱基础,以上为柱。
(四)挡土墙与基础的划分以挡土墙设计地坪标高低的一侧为界,以下为基础,以上为墙身。
(五) 墙体高度、长度
1、外墙高度:
1)斜(坡)屋面:
a.无檐口顶棚者(即无屋架无顶棚)算至屋面板底;
b)有屋架,有顶棚者,其高度算至屋架下弦底另加200mm;

c)有屋架,无顶棚者,其高度算至屋架下弦底另加300mm;

2) 平屋面:
外墙高度算至钢筋混凝土板顶。山墙高度按其平均高度计算。女儿墙高度自外墙顶面算至混凝土压顶底。外墙长度按设计外墙中心线长度计算。

2、内墙高度
位于屋架下弦者,其高度算至屋架底;无屋架者算至顶棚底另加100mm;有钢筋混凝土楼板隔层者,算至楼板底。内墙长度按设计墙间净长线计算。

3、框架间墙高度
内外墙自框架梁顶面算至上一层框架梁底面;有地下室者,自基础底板(或基础梁)顶面算至上一层框架梁底。

4、框架间墙长度按设计框架柱间净长线计算。
二、砌筑工程量计算
(一)基础:各种基础均以立方米计算。
1、条形基础
a) 外墙按设计外墙中心线长度、内墙按设计内墙净长度乘以设计断面计算。
b)基础大放脚T形接头处的重叠部分以及嵌入基础的钢筋、铁件、管道、基础防潮层、单个面积在0.3m2以内的孔洞所占体积不予扣除,但靠墙暖气沟的挑檐亦不增加,附墙垛基础宽出部分体积并入基础工程量内。
条形基础=L×基础断面积
L——外墙长为中心线长(m);内墙为内墙净长。
砖基础=(基础深+大放脚折加高度)×基础宽×基础长-嵌入基础的构件体积
大放脚折加高度=大放脚折加面积÷墙厚
垛基体积=垛基正身体积+放脚部分体积
或垛厚×基础断面积
2、独立基础按设计图示尺寸计算。


[例1] 试求如图所示砌筑砖基础的工程量。

图1(a) 基础平面图

解:
S断面积= (0.24×1.50+0.0625×5×0.126×4-0.24×0.24)=0.46m2
L中=(9+3.6×5)×2+0.24×3=54.72m
L内=9-0.24=8.76m
砖基础工程量=0.46×(54.72+8.76)=29.19m3
砖基础套3-1-1
定额基价=1389.81元/10m3
(二) 墙
1、外墙、内墙、框架间墙(轻质墙板、漏空花格及隔断板除外)按其高度乘以长度乘以设计厚度以立方米计算。框架外表贴砖部分并入框架间砌体工程量内计算。
墙体工程量=(L×H-门窗洞口面积)×h-Σ构件体积
L—外墙长为中心线长,内墙为内墙净长;框架间墙为柱间净长(m)。h—墙厚(m)
2、轻质墙板按设计图示尺寸以平方米计算。
3、计算墙体时:
应扣除:门窗洞口、过人洞、空圈;嵌入墙身的钢筋混凝土柱、梁(包括过梁、圈梁、挑梁)、砖平旋、砖过梁、暖气包壁龛及内墙板头的体积;
不扣除:梁头、外墙板头、檩头、垫木、木楞头、沿椽木、木砖、门窗走头、墙内的加固钢筋、木筋、铁件、钢管及每个面积在0.3m2以内的孔洞等所占体积;
不增加:突出墙面的窗台虎头砖、压顶线、山墙泛水、烟囱根、门窗套及三皮砖以内的腰线和挑檐等体积亦不增加。墙垛、三皮砖以上的腰线和挑檐等体积,并入墙身体积内计算。
4、附墙烟囱(包括附墙通风道、垃圾道,混凝土烟风道除外),按其外形体积并入所依附的墙体积内计算。计算时不扣除每一孔洞横截面在0.1m2以内所占的体积,但孔洞内抹灰工程量亦不增加。混凝土烟、风道按设计混凝土砌块体积,以立方米计算。

附墙烟筒工程量=B×A×H
H——附墙烟筒设计高度。
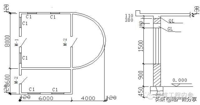
[例2] 某传达室,如图所示,砖墙体用M2.5混合砂浆砌筑,M1为1000mm×2400mm,M2为900mm×2400mm,C1为1500mm×1500mm,门窗上部均设过梁,断面为240mm×180mm,长度按门窗洞口宽度每边增加250mm;外墙均设圈梁(内墙不设),断面为240mm×240mm,计算墙体工程量,确定定额项目。

解:
①外墙工程量=[(6.00+3.60+6.00+3.60+8.00)×(0.90+1.50+0.18+0.38)-1.50×1.50×6-1.00×2.40-0.90×2.4]×0.24-0.24×0.18×2.00×6-0.24×0.18×1.50-0.24×0.18×1.4=[80.51-13.5-2.4-2.16]×0.24-0.52-0.06-0.04=14.37m3
内墙工程量=[(6.0-0.24+8.0-0.24)×(0.9+1.5+0.18+0.38+0.11)-0.9×2.4]×0.24-0.24×0.18×1.40=[41.51-2.16]×0.24-0.06=9.46m3
半圆弧外墙工程量=4.00×3.14×(0.90+1.50+0.18+0.38)×0.24=8.92m3
墙体工程量合计=14.37+9.46+8.92=32.75m3
240mm混水砖墙(M2.5混合砂浆) 套3-1-14
定额基价=1455.78元/10m3
②半圆弧墙工程量=8.92m3
弧形砖墙另加工料 套3-1-17
定额基价=50.24元/10m3
5、砖平旋、平砌砖过梁按图示尺寸以立方米计算。如设计无规定时,砖平旋按门窗洞口宽度两端共加100mm乘以高度(洞口宽小于1500mm时,高度按240mm;大于1500mm时,高度按365mm)乘以设计厚度计算。平砌砖过梁按门窗洞口宽度两端共加500mm,高度按440mm计算。

砖平碹计算公式:
V=(L+0.1m)×0.24×b (L≤ 1.5m)
V=(L+0.1m)×0.365×b (L > 1.5m)
平砌砖过梁计算公式:
V=(L+0.5m)×0.44×b ( b——墙体厚度)
6、漏空花格墙按设计空花部分外形面积(空花部分不予扣除)以平方米计算。混凝土漏空花格按半成品考虑。
(三) 其他砌筑
1、砖台阶按设计图示尺寸以立方米计算。
2、砖砌栏板按设计图示尺寸扣除混凝土压顶、柱所占的面积,以平方米计算。
3、预制水磨石隔断板、窗台板,按设计图示尺寸以平方米计算。
4、砖砌地沟不分沟底、沟壁按设计图示尺寸以立方米计算:
5、石砌护坡按设计图示尺寸以立方米计算。
6、乱毛石表面处理,按所处理的乱石表面积或延长米,以平方米或延长米计算。
7、变压式排气道按其断面尺寸套用相应项目,以延长米计算工程量(楼层交接处的混凝土垫块及垫块安装灌缝已综合在子目中,不单独计算)。
8、厕所蹲台、小便池槽、水槽腿、花台、砖墩、毛石墙的门窗砖立边和窗台虎头砖、锅台等定额未列的零星项目,按设计图示尺寸以立方米计算,套用零星砌体项目。
[例3] 如图 所示,某工程用M2.5混合砂浆砌筑乱毛石护坡,长度200m,求其工程量。

解:
乱毛石护坡:0.3×4.6×200=276.00m3
套定额:3-2-4
注意:毛石护坡高度超过4m时,套定额时人工乘以系数1.15。
毛石基础:0.4×0.6×200=48.00 m3
套定额:3-2-1
[例4] 如图所示,某挡土墙工程用M2.5混合砂浆砌筑毛石,长度200m,求其工程量。
解:
1、毛石挡土墙:(0.5+1.2)×3÷2×200=510.00m3
套定额:3-2-3
2、毛石基础:0.4×2.2×200=176.00m3
套定额:3-2-1
注意:挡土墙与基础的划分,以较低一侧的设计地坪为界,以下为基础,以上为墙身。