今天的这个案例,是个 真上下loft+大平层 集合!看完真就是梦中情房。
房子是夫妻二人于07年北漂时买的,户型方正、挑高也有5米2,是正规的loft上下两层,使用面积共计150㎡,是同小区里得房率很高的一个户型。

这次翻新装修, 对于这个三口之家来说,是一个新的开始。
翻新之前 ,房子里要共住5口人:公婆、11岁的女儿、还有工作狂的夫妻俩;
翻新之后 ,这150㎡将以满足一家三口的需求为主,公婆的问题也不用担心,他们早早就在同小区购置了另外一套房给父母。
“小家有隐私、大家有照顾。” 屋主说,这是她和丈夫两人在疫情这几年来最大的改变——把精力从事业转回家庭, 不要再错过父母老去、女儿的成长。

屋主诉求:
· 女屋主好客开朗,希望房子能开放,偶尔也能办个小party;
· 丈夫喜静、是个社恐,但唯独爱茶;
· 女儿正值五年级,除了正常的学习,最喜画画、练琴;
共同的诉求是,他们都希望 大家的空间能彼此独立,不被过多打扰 。
剧透亮点区域 :
门厅转角、loft楼梯、大师家具
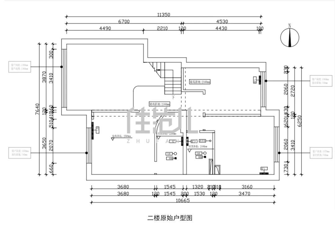
改造前


房子挑高5.2m,本就方正,设计也没有对结构大动干戈, 只在局部对空间重新进行了规划 ,改造后最爽的就是 三人三卫 ,实现了 小户型都渴望的“卫生间自由”。
(果然,房子大就是好啊~)
也解决了夫妻二人彼此独立办公的诉求。
改造后


拆改施工重点:
· 翻新之前拆掉原有墙面老化的腻子、地砖和吊顶、 楼梯结构,重新定制
· 扩大原有 一楼卫生间 的面积,在封闭的墙体内实现干湿分离
· 二楼 改变主卫门的位置;台盆外置,实现公卫区域的三分离
· 二楼用玻璃门将公共区域的定制柜与小次卧分隔开来, 小次卧化身多功能厅 ,可做学习室、收纳间和客卧
项目情况:
建筑面积:173㎡(使用面积150㎡)
户型: 三室两厅三卫一厨
位置:北京朝阳
使用:住范儿4.0系列套餐
设计师:张琪
费用: 130w(所有费用,住范儿承担部分设计+硬装施工服务共花费37w、其余为其他平台花费)
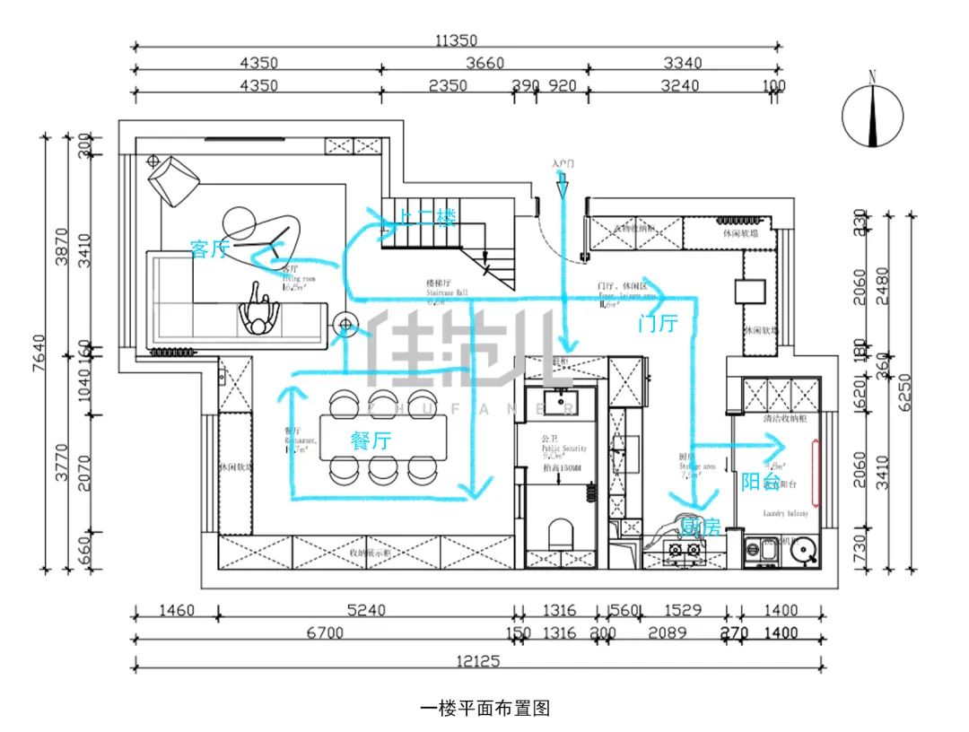
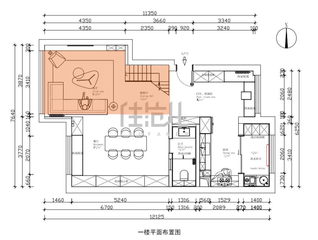
一楼

一楼 整体来说, 是开放区域 ,容纳了超大的门厅玄关、厨房、家政区,以承重墙为界限,中心有个封闭的公共卫生间,外面是以岛台为中心的餐厅、客厅。
因为空间面积足够大, 餐厅和客厅占了一楼面积的三分之二 ,不夸张的说,同时容纳15人左右的小型party完全不在话下,保证统统有座。

除了客厅外,一楼其他区域全做了 无主灯设计 ,搭配以白和深色定制门板的定制柜,整体看起来很简约,用屋主朋友的话说, 看起来有点酒店风 。

灯位定点图
下面我们 拆解下一楼空间 ,请各位看官跟着我的图走~
01
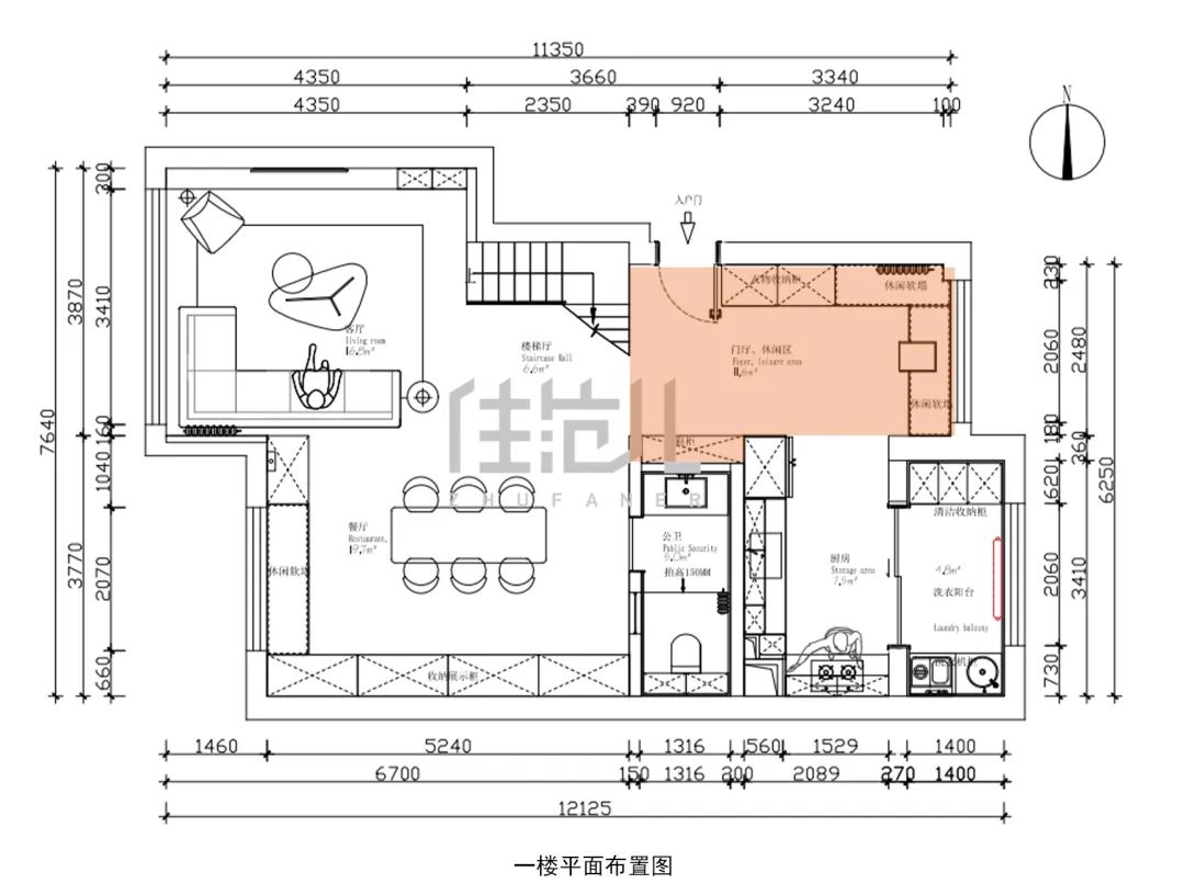
带卡座的转角门厅,真够大!

推门进来,就是与卫生间一墙之隔的 定制柜 ,吊柜+预留15cm高的地柜组合,中间镂空用来放进门随手的物品。

定制柜的对面,是 转角的卡座区 ,这里暗藏玄机,依次排开是出门常穿的长衣区、短衣区、换鞋区。

长衣区的定制柜里,有一个 可拉伸的穿衣镜 。出门时,镜子拉出来可照到全身,面容衣冠,皆在其中,不用时,镜子收缩在衣柜里不占外部空间用起来很方便。

长衣区的下方+卡座下方里,是全家的鞋子收纳区 。
长衣柜下方预留15cm,常穿的鞋子、拖鞋都可以直接隐藏在下方,同时容纳7双没问题。 全家不常穿的鞋子,每人两格子 ,都被屋主藏在了卡座下的柜子里,满满当当。
这个设计完美地解决了一家人洁癖的习惯,同时预留出了超大的转角落座区, 进门、出门都很有仪式感, 也算是家里一个隐藏的晒太阳区,冬天暖气开足,在这看书也没啥问题。

卡座区域, 可轻松容纳4人同时坐下,一家三口出门同时换鞋都没问题。
卡座上方,是 中央空调的出风口 ,空调机器被放在隔壁家务区的上方,做了石膏板吊顶。

从餐厅望向玄关门厅
02
挨着阳台的厨房,做饭、清理各得其所

穿过玄关门厅继续 往前走,是 厨房和家政区 ,两区域用 吊轨的推拉门隔开 。

按这个面积来说, 厨房 面积不算大, 一共7.5㎡ ,但对于仍处于初级做饭的妈妈来讲,绝对够操作了。
"L"型的转角厨房里 ,两组吊柜+地柜的组合完美收纳下所有厨具,坦白来说,还没装满。
转角处,和 墙面 使用一样的灰色的 哑光瓷砖 ,砌墙后包住隐藏的下水道排水管,在转角的柜子里,专门预留了检修口。
Tips: 瓷砖砌墙包管是一种相对来说较贵的方式,但整体更美观,平替的方法也可以采用仿瓷砖材质的PVC包管,同样防油防污,耐清洗,我自己家就用的这个~

吊柜和玄关、厨房的定制柜 是一个厂家定制的,是全屋花费最大一项,光厨房这4㎡,就花花去了 3w多rmb 。
为了搭配全屋整体的简约风,厨房的台面选用了进口的 黑色岩板 , 不锈钢材质的顶吸油烟机 是厨房唯一的亮色材质。
目前一家三口单独开火的时候还不多,吃饭时还和原来一样,去隔壁楼的父母家。

L型柜体的转角处,嵌入式的 法式四开门大冰箱 。
冰箱是卡萨帝最新款的,大约有400多L,分区明显,很实用,唯一小尴尬的就是,因为 冰箱厚度超过了60cm,突出一块 ,不是很好看。这也是很多人家里遇到的问题。
Tips:
冰箱的定制柜进要提前与厂家商量,能深不浅,想要冰箱不凸出,进深至少应控制在65-70cm之间。即使碰到市面的超薄款冰箱,进深也应预留在61-65cm之间。(包含了插座的深度)

L型吊柜对面 ,隔着一个吊轨玻璃推拉门,就是 生活阳台。
这里现在是 单独的家政区 ,厨房的热水器、洗烘一体机、还有一些拖把等清扫物品都放在这里。

家政区上方 以石膏板吊顶, 隐藏了中央空调的一拖五机器 , 检修口 同时也预留在这里。

03
洄游动线的开放式餐厅

回到进门的位置,往右手边走,就是 开放式的客餐厅。
餐厅其实是个 西厨空间 , 以岛台为中心,形成一个洄游动线, 很开放。现在屋主陪着女儿学习烘焙、练习厨艺都在这里。

岛台 是西厨里的标配,好处我们之前单独有一篇文章讲,大家感兴趣可以回头搜一搜。
屋主家这个岛台用起来很爽,岛台正面、侧面是大理石的, 长2m,宽1.3m,可轻松容纳六人就餐。

从玄关望向岛台
岛台 对外的一侧,是条纹的装饰面, 对内的一侧下方,有巨大的容纳空间, 厨房烘焙的食物、西厨的一些刀具等,都放在这下面,转身背后就是蒸烤箱,很方便。

这个岛台真的是个宝!无意间还给了我一个惊喜~
正上方这个花瓶旁边的 插座 , 自带充电功能,且是个升降式插座, 代替原有的地插后,这个插座边煮边吃火锅、手机充电,用时升起来,不用降下去也不影响台面的整洁美观。

岛台周围沿两边墙体做了 通顶的定制柜,足足有23㎡。

屋主说,此前一家五口住在一起时,东西超多,收纳空间总是不够,现在人虽然少了,但 东西总是越住越多,她索性提前把这点考虑进去。
定制柜门是黑玻与实木饰面间隔来做的,都是一门到底, 不常用的藏在木饰面柜门里, 常用的 黑玻透明区域用来展示一些此前收藏的藏品、藏酒,在 内置灯光的氛围 营造下,很有格调。

岛台最边上靠窗边的地方,和玄关门厅一样,做了卡座。
卡座旁边,为了方便备用,也提前预留了两个插座。

一楼自带公卫

餐厅旁边,也就是与进门定制柜一墙之隔的 封闭区域 ,是改造后 的 一楼公共卫生间 。

这个公卫是个 暗卫 ,全屋的承重墙体、以及楼道里隐藏的暖气管,都在这里。为了增加采光,设计师借用 双层长虹玻璃窗,实现小暗卫的翻身,但并不影响隐私。
Tips: 单层长虹玻璃隐 私性欠佳, 不建议直接使用在卫生间这种隐私的区域。
这个窗户其实是双向效果,虽为暗卫采光而做,但对于餐厅这个整体开放的空间而言, 从视觉和心理上也增加了空间通透性, 比一整面大白墙要好多了。

这个公卫是个 狭长的长方形,一共5㎡ 。
与定制柜一墙之隔的是专门定制的洗手池,镜子是网购的,转身的背后是 马桶区 ,为了排水顺畅,马桶所在的 这块地面抬高了1.5cm 。
墙排式马桶的水箱提前嵌入在墙体内,墙体的上方预留卫生间收纳空间,放纸巾和常用的清洁物品。

04
挑高5.2m的大客厅,超有范儿


餐厅往前直走,就是 挑高5.2m的大客厅 了。

屋主说同小区的很多家庭都封了这个层高,多出一间房,但她唯独喜欢这个大视野,就没有封掉, 现在看来是最不后悔的决定。
层高这点在她看来,也是大平层很大的一个优势,虽然没有别墅那么高,但 属于“刚刚好” 。

5.2m的层高,确实给设计预留了很大空间。
通常来说没有一盏吊灯是镇不住场的, 鉴于房间整体是简约的酒店风,设计师参照比例,搭配了一款 Flos的经典极简吊灯WireLine 。

这个吊顶是意大利灯具顶奢品牌FLOS近年来的经典之作, 主要元素是由LED灯管和橡胶带组成 ,可单独出现,也可组合调节出现,原款橡胶带有多种颜色可选,可根据喜好调节长度,搭配层高,在高低悬挂间,致敬环保。

从二楼望向客厅 全景
客厅延续了餐厅简约的风格 ,仍以灰白和深木饰面的定制柜为主色调。
悬浮式的电视背景墙 可开可和,内嵌灯带以内氛围,电视背景墙的上方,设计师不建议放东西,更简约,但谁家有个宝贝女儿爱画画,不会骄傲呢~

电视背景墙上方就成了女儿的画作展示区 ,这样的情况二楼也有,我倒觉得挺温馨~

客厅受户型限制,虽与餐厅相连,并不四四方方, 这个转角倒自然成了客厅隐私的一处。
客厅还是传统的布局,沙发、茶几、电视墙一个不少,但屋主喜欢这样聚合的氛围,朋友、家人三两相聚,一起做一件事,本就很幸福。

长3m的转角沙发靠墙而放,可以同时容纳4人 ,配上粉色的单人沙发,加上餐厅空间,可不能举办party了!

茶几是大理石的组合台面,存储、质感兼备,很简约。

拍摄到下午3点多时,阳光通过 百叶窗 刚好照进来,很柔和~

从楼梯转角看向客厅
05
单独定制的楼梯
来,准备上楼!
楼梯 除了能上楼, 从审美上来说自带视觉引导性 ,比如我们拍照,都需要异形的线条作为分隔线,楼梯在家里其实也承担了这个作用。

为了与全屋的风格统一,屋主重新定制了这个 纯钢化的转角楼梯,结构是钢,扶手部分特别搭配了黑玻作为保护墙 。

台阶每一个间隔20cm一步, 阶梯台面采用和定制柜一样的木饰面, 全屋风格很统一。
为了方面起夜或者万一晚上下楼梯不便,楼梯上方的吊顶里嵌入了2个无主灯,能照明整个楼梯。

楼梯转角处
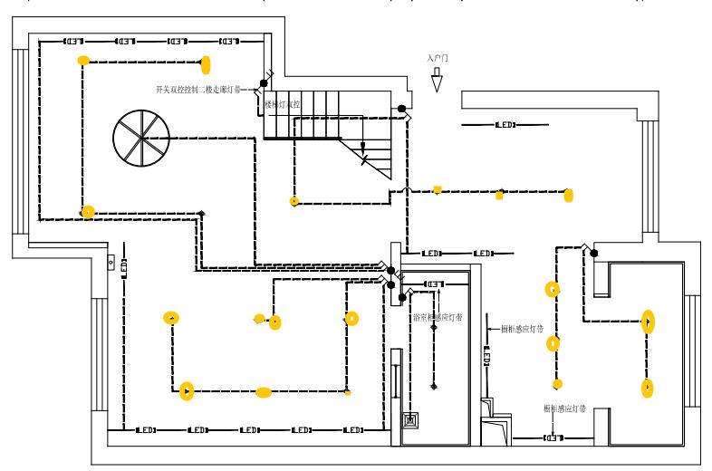
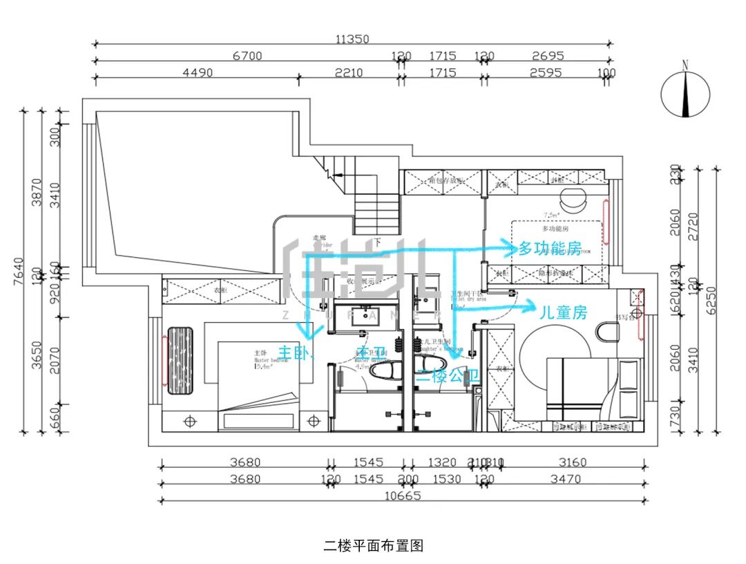
二楼

二楼 相对一楼来说,是个 私密的空间 ,更像是 一家三口的秘密居地 ,主要有多功能房、儿童房、主卫附带着两个卫生间。
上图的动线也很清楚(蓝色),主卫归主卧,外置的卫生间离儿童房更近,对女儿更方便。
除了这些私密区域,是 与楼梯连接的走廊 。

走廊通铺 鱼骨拼的地板 ,一上来映入眼帘的便是一副兼具收纳功能的展示区,桌上放着的是屋主从非洲带回的 瓷砖马赛克拼贴画。
画中的是一副骏马头,栩栩如生。这幅画对 同属马像的夫妻二人 来说也颇具纪念意义。
定制桌面下方特地预留出30cm的高度允许扫地机器人通过,不留卫生死角。

06
书房?收纳间?客卧? 一屋多用!

公共区域转角尽头 ,与多功能房齐平的地方,设计师特地 定制了一组通顶柜。
这组柜子按照规划,是 家里的公用区域 ,可以放一些杂物,也预留一部分空间为卫生间的纸巾做收纳。不过现有的情况下,柜子里都是屋主先生的衣物。
她家先生也是个精致人儿,洁癖十足!先生专属的长衣区、短衣区、衬衫区一个不落,与多功能房一门之隔的衣柜里,也有三分之一是他的衣服。
追求美和精致的人,不分男女!

定制柜旁边通过一扇门,是长虹玻璃门隔开的 多功能房 。
多功能房沿墙两边,一边是 长约2.5m的写字台 ,另一边是兼具收纳和 多功能床的隐藏式的定制柜区域 。

现阶段内,因为北京疫情,多功能房主要以夫妻二人办公、看书、学习为主,女儿偶尔也会从隔壁儿童房跑过来。
谈及对女儿的教育问题, 她说自己和先生态度完全相反,她很佛,更希望以朋友的方式陪女儿成长,潜移默化地带娃,兴趣随她。先生觉得还是得鸡娃,在学习、练琴上一丝不苟,是个实打实的严父。

多功能房是二楼视野最好的地方, 窗户打开,楼宇层次叠落,最远处能望到soho城。

多功能房拍摄视角
07
粉粉嫩嫩的公主房 自带独卫

多功能房的隔壁就是11岁女儿的卧室,门口,是二楼的公卫。
女儿的卧室大约10㎡,通刷了粉色墙, 这是全屋唯一一处大面积彩色的运用。

靠窗户最近的地方, 学习桌和床头柜并排, 采光好、太阳直射对孩子长身体都有好处。
窗边的留白处,设计师用竖排的书架与书桌相连,组成学习区,上面够不到的地方,放手工品,下面放常看的书。

转角靠墙这里,设计师用一个 半圆拱和扁圆拱的内嵌书架,来隐藏管道。
链接L墙, 用隔板做书架,装下上百本书不成问题, 旁边就是孩子的衣物收纳区,满满当当,空间是一点没浪费!

通顶柜的上方是空调做 石膏板吊顶,暗藏空调出风口。

二楼公卫
儿童房出来,就是淋浴区、马桶区、台盆外置的三分离卫生间。
卫生间和楼下公卫一样,是个长方形的 ,为了遮挡凌乱的台盆空间, 半面的长虹玻璃门 在此充当隔断的作用。
洗手池区域做法也很常见, 墙面通铺的六边形的马赛克瓷砖 做背景墙比较少见,现场看时效果还不错,但密集恐惧症患者还是慎用。

往里走分别是马桶区、淋浴区。
为了保证美观,她家的卫生间吊顶选择了防水石膏板吊顶。
入住1年了,目前看起来没啥问题。

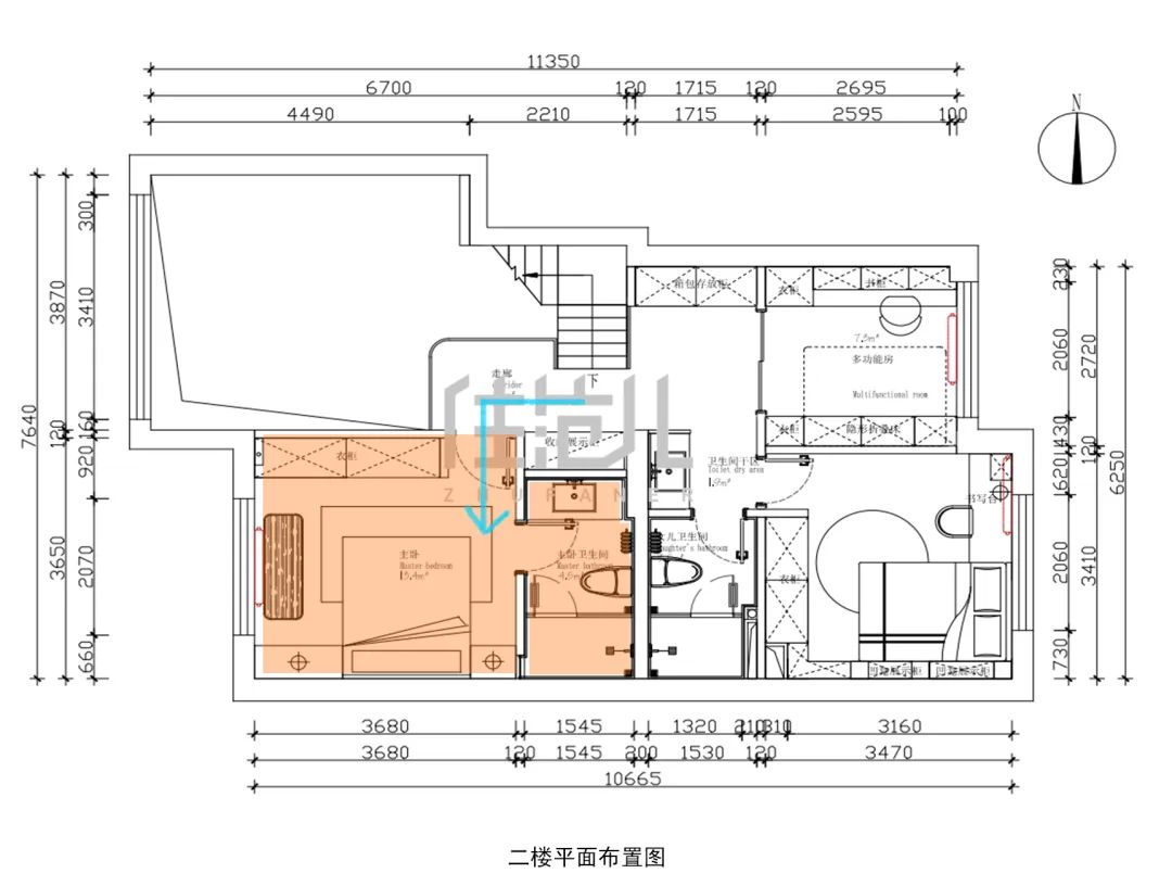
08
夫妻两的主卧 + 主卫

主卧+主卫空间 占了二楼的三分之一。
主卧延续全屋简约的风格, 并没有做过多设计的痕迹 ,左侧床头柜,右侧化妆台是特别定制的。


唯独这款极简的 床头灯造型 ,深的我心!

主卧没有选择传统的定制柜做法,用了 “砌墙衣柜” 。
Tips:
越来越多人发现,这种做法比定制衣柜还简单, 预算有限就不做柜门了,直接用拉帘即可,预算足够时,可做一门到顶的柜子 。
她家为了与整体风格统一,选择了深色的定制柜门。

靠门打开的那面大白墙上, 暗藏了一个门,推开就是主卫 。


进入依次看到的洗手池,马桶区,淋浴区。
屋主的化妆品不少,于是 定制了一套镜柜 ,中间用来化妆,两边开放格放常用的护肤品,化妆品,不用常打开中间部分。
巨大的收纳也解放了洗手池台面空间 ,可以一直干净整洁,抽屉用来放储藏的手纸,清洁物品。

因管道没法改变,主卫的马桶区,淋浴区都换了方向,与一墙之隔的公卫共用管道。
内部装饰并无特别,我们就不做说明了。

这样算下来,屋主家 人均一间卫生间,真正实现了卫生间自由。
小户型的我羡慕不已啊,不说了,搞钱换房去!
好了这就是今天的案例了,相比以往,这个户型面积确实比以往都大,但也给我们提供了一个不同的空间思路,评论区告诉我 如果你预算充足,你会考虑入手大平层还是loft?
别忘记 “点赞” 哦~