方案解析
业主需求:
这是一个学区旧房改造项目,屋主是一对白领夫妻,家里三口居住,有一个2岁的小宝贝,需要有个儿童房,双方父母偶尔会过来照顾小孩。改造重点在客餐厅、厨房,将其打造成核心功能区,加强互动性和交流。屋主人喜欢烹饪,平时有时间,就会给小朋友烹饪一些美食,打造成开放式厨房+西厨设计,希望把中西厨进行融合,厨房操作空间能够得到扩大。喜欢自然元素,中意于简洁的现代原木风格。把原本封闭的空间打开来,还原成一个开阔敞亮,又自由开放的空间。

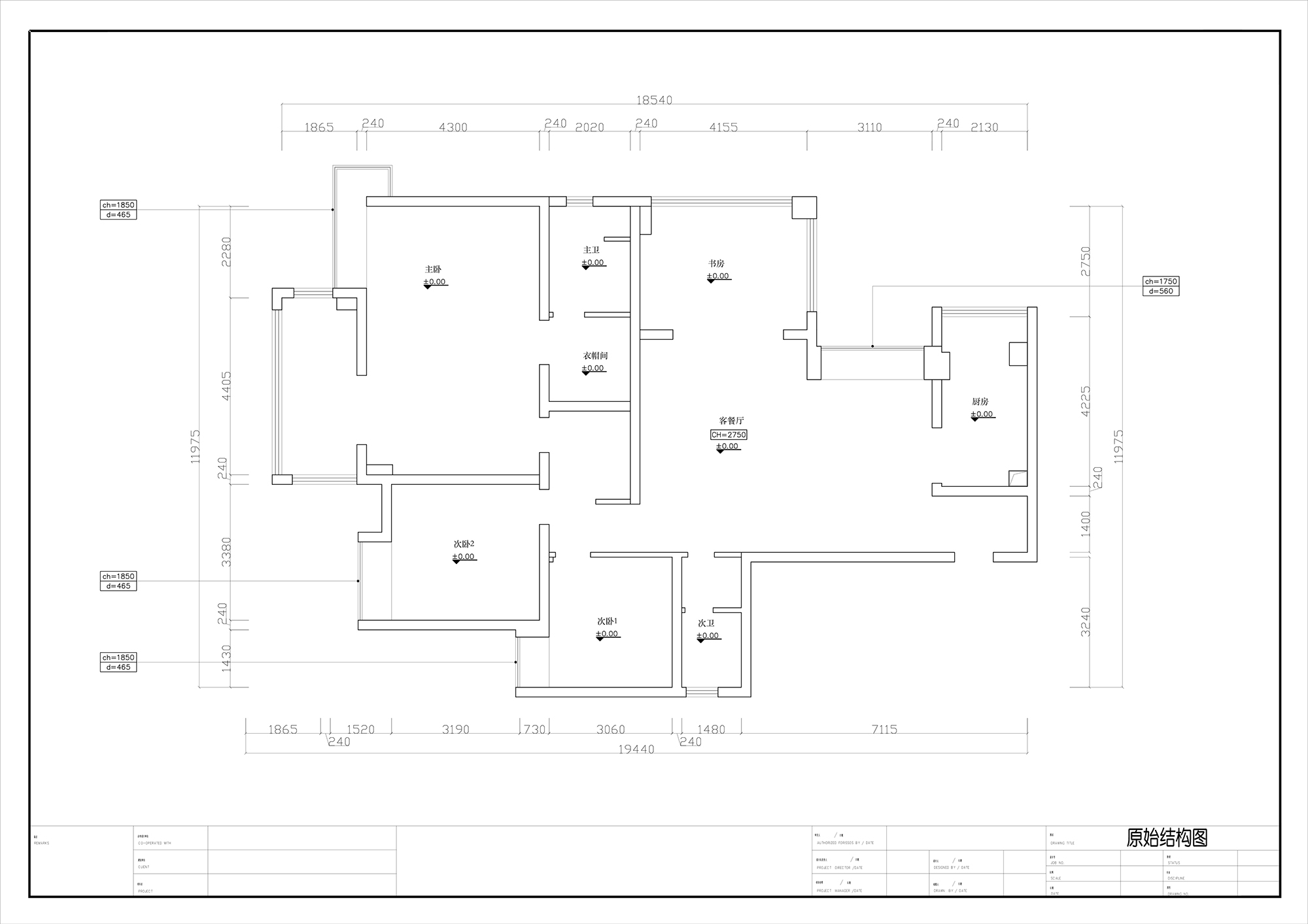
改造前:
① 厨房面积比较小,空间比较闭塞,操作空间不足,使用上不方便。
② 主卧空间面积比较大,空间利用比较浪费,需要一个儿童房,满足不了三口之家和老人过来带小孩的居住需求。
③ 对功能分区不太满意,书房占用空间过多。
④ 客卫卫生间是两分分离,空间利用率不高。
① 因为有小朋友,东西杂物多收纳需求大,收纳空间十分不足。
② 生活阳台空间比较小。

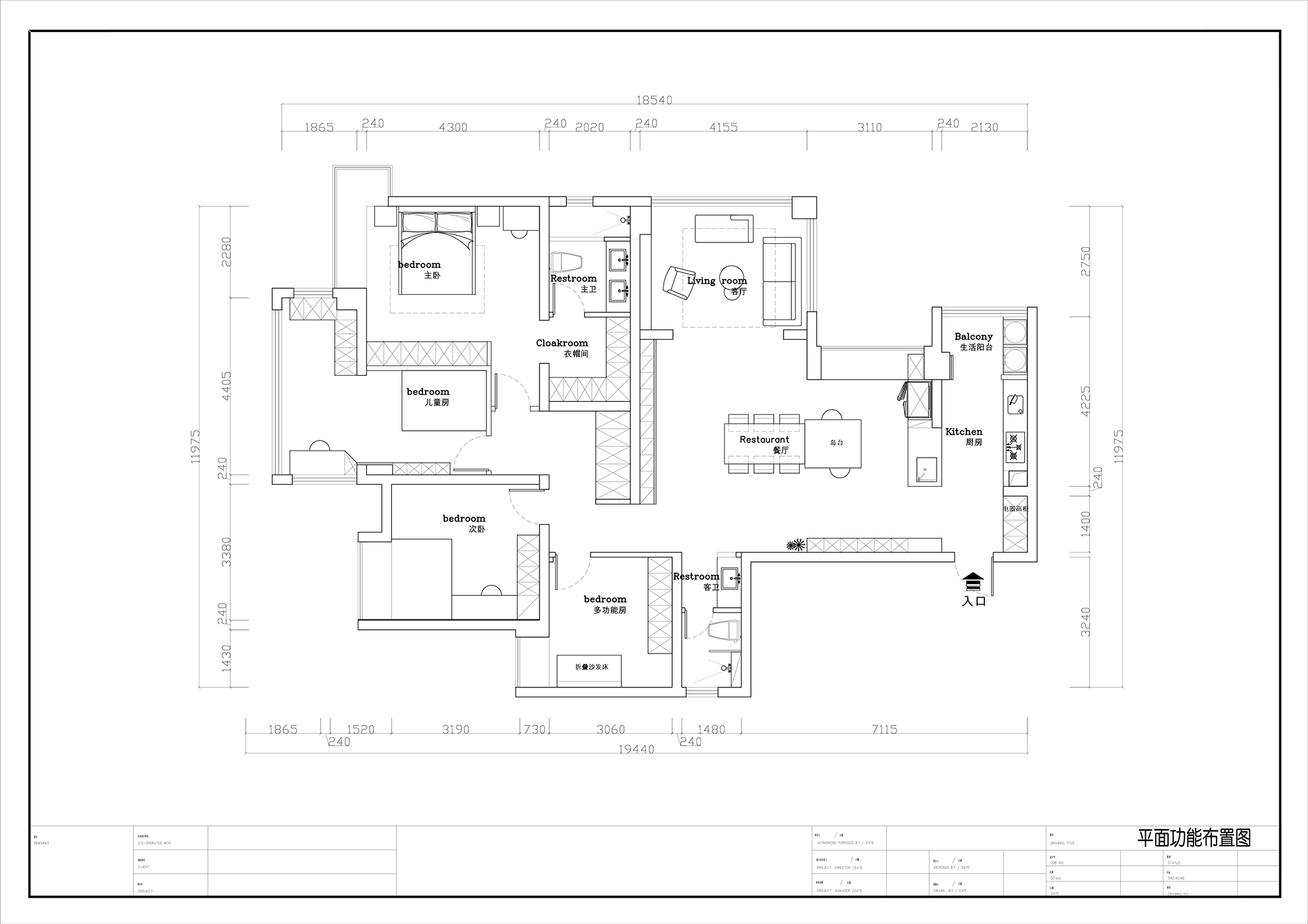
改造后:
① 拆除厨房和餐厅之间的墙体,做成集中西厨为一体的开放空间,厨房二字型布局,餐厅做岛台,作为西厨的备餐区,扩大餐厅和厨房使用空间,提高空间利用率。
② 利用厨房的一部分区域,增加一个小的生活阳台,作为洗衣区。
③ 把原本的主卧空间一分为二,隔出一个儿童房和一个主卧,来保留4室的功能分区,以满足三代同住的需求。
④ 将书房门拆除,和客餐厅LDK一体化设计,做成一个小的影音室。
⑤ 独立出洗手台,将洗手台、马桶,淋浴区三分离设计,提高卫生间的舒适度。做了壁龛,提高卫生间墙面的利用率。
⑥ 生活阳台往厨房空间移动,扩大了生活阳台使用空间。
效果对比

客厅
原本的客厅,布局比较封闭,视野不够开阔,所以改造重点在客餐厅。拆除厨房墙体,拆掉书房的推拉门框,打造成了客餐厨一体,LDK一体式布局,加强互动性和乐趣,构建一个功能性超强的家庭核心区。

采用了原木、大白墙、岩板、无主灯等元素,营造空间的通透感,简约中显露出大宅气质~

客厅原本的电视墙做了3650x350mm大书柜,半开放式吊柜+岩板材质地台,让空间层次性更强。一边收纳书籍,一边做旅行纪念品展示区,空间整洁不凌乱。安装了中央空调,舒适度会更好。缩短了家居动线,视野开阔,空间感超强。


将原本的书房改造成休闲阳台,安装了投影仪,打造成一家人的私人影院,阳光随着百叶帘倾泻下来,拨动着光与影跳动的旋律,一边追剧,一边享受阳光,生活超美!!

购买了宜家的儿童学习桌,铺上可爱垫子,孩子可以在这里学习和娱乐,是一个超有爱的亲子乐园啊!
餐厅
客餐厅作为一个功能核心区,既是一家人的就餐区,一家人的私人影院,也是一家人的开放式书房。

餐厅是一家人用餐的地方,配备岛台+实木长桌,岛台可以做为西厨备菜区,可以供一家人用餐、学习、工作。

餐厅和厨房之间安装了岛台,承载西厨功能,作为厨房和餐厅之间的过渡区使用,增加操作空间的同时,下面柜子也起到很好的收纳作用。

餐厅和厨房之间做了嵌入式的冰箱,让空间保持整齐。选用了西门子BCD-502W白色的双开门冰箱,造型简约,和空间白色柜体和原木风格更搭;这款冰箱机身超薄,不会占用太多对空间,很适合和柜体结合做嵌入式设计。

这款冰箱除了颜值在线,功能也很强大。冰箱内部温度波动小,瀑布风设计,冷气下沉,温度均匀散布,让新鲜食材保鲜持续时间长,冰箱容量大,冰箱内部502L储物空间,可以备下一周对食材,很适合白领家庭不经常买菜,食材储存时间长的需求;冰箱内部储藏隔断分区明确,可以把生食和熟食分区储藏,更加卫生健康;这款冰箱静音效果很好,可以放在餐厅旁边,不会有噪音问题。4月20号京东冰洗节直降近千元,原价5799,现价4999,白领家庭可以直接入手。
西门子对开门冰箱
¥5869
购买
厨房
改造前:厨房空间很小,屋主要生活阳*独台**立出来,去掉生活阳台空间,厨房空间面积只有6㎡,可以做操作台的空间面积不到3m。

改造后: 厨房和玄关之间拆除2m的隔墙,把入户和厨房连为一个整体,从入户到厨房做嵌入式整体收纳柜,收纳柜一部分做为玄关收纳,另一侧做为厨房收纳,拉通设计,视觉是统一整体,实际是做了分区。厨房收纳柜做了嵌入式的烤箱。

厨房和生活阳台做了隔墙,做了长虹玻璃门,不影响厨房的采光,生活阳台晾晒衣服从厨房看过去也不会凌乱。厨房门一侧的拆除1m宽的墙体,在这个区域做冰箱嵌入式的柜体+一个岛台,双开门冰箱就可以在这个区域做嵌入式的设计。岛台做为备菜区和洗菜区使用,岛台下面可以放洗碗机,让厨房操作空间扩大了30%。 厨房的搭配,用了原木柜体面板和岩板台面,台面轻薄简洁,和厨房墙面保持统一,整体美观大气。从功能和设计上烟机和灶具我给屋主推荐了方太,方太烟机灶具是黑色的镜面机身,和白色的岩板台面颜色材质上有一个对比,视觉上更美观。

为了满足屋主需求,厨房只有做开放式设计。厨房做开放式,最大的问题就是油烟问题,一定要考虑在前面。这个厨房选用了方太大吸力抽油烟机,解决了油烟问题。
主卧

主卧是屋主休息的房间,用石膏板对吊顶进行错层处理,做成双眼皮吊顶,这样不积灰显得空间宽敞,使用拼色窗帘,看着不单调。

床头安装了护墙板,保护墙面的同时,丰富卧室背景墙的设计层次感,美化空间。安装木地板,冬暖夏凉。床头两边都安装了插座,房间整体简单干净。
儿童房

儿童房有一个大大的落地窗,采光很好,留出足够的活动区域,方便小朋友玩耍。儿童房墙面用了蓝色做了上下封层,规划出小朋友的休闲区,安装了上下铺,方便大人照顾小朋友,给小朋友提前规划出书桌,方便后期小朋友学习使用。

生活阳台

生活阳台空间比较小,屋主需要把生活阳台扩大一些,可以放下洗衣机,把生活阳空间往厨房空间移动,扩大使用空间,安装了长虹玻璃门,把生活阳*独台**立开。
为了节约空间,我给屋主推荐了西门子10公斤滚筒洗烘一体洗衣机,把洗衣和烘干功能结合到一起,不会占用太多的空间,白色的机身和柜体颜色搭配很统一。这款洗烘一体机洗衣容量大,一次可以洗10kg的衣物;这款洗烘一体机有100%除螨功能,60度循环风可以除味护衣;这款洗烘一体机还有热风杀菌,除病毒的功能,可以杀死99.9%的病菌;如果家里过敏肌肤人群,也可以选择这款洗烘一体机,它有祛除过敏源的功能;机子带自清洁系统,防止筒内滋生细菌;智能洗烘功能,根据不同材质衣物选择不同洗涤模式,更省心,很适合都市白领使用。4月20号京东冰洗节直降近千元,原价5299,现价4799,白领家庭可以直降入手。
西门子10公斤洗烘一体机
¥4599
购买
卫生间
卫生间进行干湿分离,将洗手*独台**立出来,把干区墙体打了一半,只留半墙,视觉上扩大了干区的空间。台下盆、镜柜、浴室柜悬空有利于空间干净清爽。


安装了台下盆,后期清洗不藏污纳垢,靠近客餐厅,平时清洗水果时也会很方便。安装了智能马桶,相较于普通马桶有洁身按摩,便圈加热,杀菌功能等功能,舒适性更好。用黑框玻璃门将淋浴区和马桶干湿分区,提高使用效率。
在墙面上做了壁龛,用于卫生间的收纳,实用性与美观性兼得。顶部安装了一个功率大性能好的排气扇,这样每次洗澡后卫生间潮气散得快。 主卧的卫生间未进行改动,没有拍摄。
以上洗烘套装和超薄冰箱是之前业主反馈比较好的。4月20日是京东冰箱洗衣机闪耀狂欢日,力度超级大,有需求的正好可以去京东看看,现在下单有冰箱洗衣机成套购买立享9折、以旧换新至高抵扣1500元等超多立减福利,想买洗烘套装的朋友手快还可以领大额券,更有白条至高24期免息服务。累计核算一下,可以说是入手最优时期了。
闪耀狂欢趴