速度与激情10阿迪达斯 (阿迪达斯speedmotion配置)

Adidas阿迪达斯,德国著名运动用品品牌,也是世界十大体育运动品牌,创立于1949年。本案是其位于智利首都圣地亚哥的办公室,由Oarquitectos团队设计。

阿迪达斯adidasspeed,速度与激情10阿迪达斯

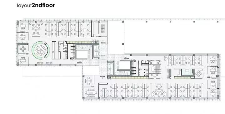
“创新”是阿迪达斯的哲学观,也是本案的设计出发点。设计团队面临的挑战是如何让四个楼层紧密相连,同时又各具特色。通过设计手法和空间布局是解决这个难题的关键。

阿迪达斯adidasspeed,速度与激情10阿迪达斯

开放与协作组建成空间布局的灵动节奏。“创新”通过各种开放与封闭相结合的协作空间来表现,以灵动多元的方式让交流与协作随时随地。为了与其健康的生活理念相契合,特地在这处办公空间规划了健身房,以及为所有员工提供健康食品的大型自助餐厅。

阿迪达斯adidasspeed,速度与激情10阿迪达斯

阿迪达斯adidasspeed,速度与激情10阿迪达斯

阿迪达斯adidasspeed,速度与激情10阿迪达斯

阿迪达斯adidasspeed,速度与激情10阿迪达斯

速度是整个空间的设计灵感。阿迪达斯是国际足联官方用球指定赞助商,因此足球的元素广泛应用于室内表现中。每间会议室都有各自的设计主题,如足球、户外和女性等。

阿迪达斯adidasspeed,速度与激情10阿迪达斯

阿迪达斯adidasspeed,速度与激情10阿迪达斯

阿迪达斯adidasspeed,速度与激情10阿迪达斯

阿迪达斯adidasspeed,速度与激情10阿迪达斯

“中心城市”是另一个独特的概念元素,体现在接待区的设计中。整个城市地图以树的形式雕刻于白色可丽耐接待台中,以及顶部图形冲孔金属板的设计。

阿迪达斯adidasspeed,速度与激情10阿迪达斯

一处以足球为灵感的会议区,圆弧形的长凳犹如体育场长长的阶梯座位,可以满足众多人员共同参与,而无需额外添加座椅。顶面造型同样呼应足球的元素,而专门定制设计。

阿迪达斯adidasspeed,速度与激情10阿迪达斯

在CEO管理层办公区还有一个接待区,这里同时也是阿迪达斯为世界杯足球赛以及其它重要锦标赛官方用球的荣耀展示区。速度、协作、凝练的线条、新的生活方式、LEED金色认证、以及阿迪达斯的黑白蓝标识色,共同构筑了本案独特的空间气质。

阿迪达斯adidasspeed,速度与激情10阿迪达斯

阿迪达斯adidasspeed,速度与激情10阿迪达斯

阿迪达斯adidasspeed,速度与激情10阿迪达斯

阿迪达斯adidasspeed,速度与激情10阿迪达斯

阿迪达斯adidasspeed,速度与激情10阿迪达斯

阿迪达斯adidasspeed,速度与激情10阿迪达斯