
疫情当前,谈疫色变,人人自危,引人深思。是人类破坏了自然?还是自然在报复人类??
守护自然,守卫我们共同的家园是每个社会人不可推脱的职责。
本项目将自然元素引入到室内空间中,提醒人们在享受她的同时更要珍惜和珍爱。
现代都市的水乡气韵-售楼部
| 奢侈 |
对每个人来说,意义都不一样
它是一种体验、一种欣赏、一种感受、一种源于内心深处的水乡情怀。
姑胥府售楼部:—个集体验、欣赏、感受和情怀于一身的现代空间。

▼体验 Experience

都市— 是由人、建筑、环境共同组成。
City-is composed of people, architecture and environment.

设计需从自然与人文中取材,但并不是单纯的实现,而是要与当代结合、创造、而后升华。本案将提取人物、环境、和建筑元素,将其抽象化,融入空间中,打造具有现代韵味的水乡空间。
Design is drawn from nature and humanities, but it is not a simple realization, but a combination with the contemporary, purification, creation, and sublimation.This case will extract characters, environment, and architectural elements, abstract them and integrate them into the space to create a water and rural space with modern charm.

▲地理位置分析∕Geographical analysis
项目位于苏州桐泾公园附近,水乡之中,环境优美。从中提取船的元素,将其简化,用于外立面,纵横线条,简笔勾勒,切入主题,引人入胜。
The project is located near Suzhou Tongyu Park, in a beautiful water town. Extract the elements of the ship from it, simplify it and use it on the facade to create a modern building with water features, which is fascinating.
▼欣赏appreciate



半透明白色钢板犹如船体,隔而不断,玻璃立面波光粼粼,加上灯光倾洒,水雾缭绕,犹如大船杨帆启航,勇往直前。形成城市中一道靓丽的风景线。
The semi-transparent white steel plate is like the hull of a ship. The glass façade above is shimmering, coupled with the pouring of light and the mist, it is like Yang Fan sailing forward, bravely moving forward. Form a beautiful landscape in the city.

▼

▼

▼

▲销控台 吊灯
▼

进入销控台,将船的元素引入室内,以吊灯的形式存在,勾勒出气韵生动的线条,漂浮在空中,来自湖水,随风飘动,增添了空间的灵性,作为艺术的客体,传达着当代的精神。
Entering the sales console, the elements of the boat are introduced into the room, and they exist in the form of chandeliers, which outline the vivid lines of charm, float in the air, come from the lake, float with the wind, increase the spirituality of the space, and convey the contemporary as an object of art the spirit of.

▲空间吊灯


售楼部沙盘区,描绘了一个得天独厚的水乡意境。大大的落地窗将室外景色拉入室内,沉入式沙盘区增加空间的层次感和趣味性。沙盘区和洽谈区高低错落的圆环吊灯,犹如湖水的水晕,展示着自然的灵动。悬挑式沙盘,犹如船只浮在水中,漂浮荡漾。
The sales department's sandbox district depicts a unique artistic conception of water village. Large floor-to-ceiling windows draw outdoor views into the interior, and sunken sand panels increase the level and fun of the space. The ring chandeliers staggered in the sand plate area and the negotiation area are like the water halo of the lake, showing the natural agility. A cantilevered sand table floats like a boat floating in the water.






书吧区的城市剪影装饰画将建筑引入室内,下沉式的区域拉开了空间的层次,沙发造型犹如石头露出水面,小马摆件为空间增添趣味和情趣。
The decorative drawing of the city silhouette in the book bar area introduces the building into the interior. The sunken area opens up the level of the space. The shape of the sofa is like a stone exposed from the water. The pony decoration adds interest and interest to the space.


水吧区展示了现代都市的时尚韵味,绿色花艺和石头雕塑贯穿这空间的自然气息。
The water bar area shows the modern charm of the modern city. Green floral art and stone sculptures run through the natural atmosphere of the space.
▼情怀feelings



▼来自水乡的那块石 The stone from the water village




作为休息和洽谈空间,水吧和VIP室在细节处彰显品质,流露出舒适的生活气息。城市剪影装饰画呼应公共区域建筑主题,透过窗纱,阳光洒入室内,窗外景色映入眼帘,再次将人物、环境、建筑融为一体,抒写都市气韵。
As a space for rest and enjoyment, the water bar and VIP room show the quality in the details, exuding a comfortable living atmosphere. The decorative sketch of the city echoes the architectural theme of the public area. Through the window screen, the sun shines into the interior, and the scenery outside the window catches the eye. Once again, the characters, the environment, and the building are integrated to express the urban charm.




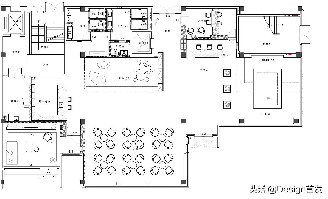
▼ 平面图


135样板间 /味蕾魅惑
工作忙忙碌碌,我们渴望惬意和优雅的生活,生活人来人往,我们追求自由和轻松的个人空间。一杯香糯的红酒、一份美味的餐点,我们都想给自己最好的生活。
Busy work,We long for a comfortable and elegant life,People coming and going,We pursue free and easy personal space.A nice dress, a delicious meal,We all want to give ourselves the best life.

一位品酒师的家,像打开的梅尔诺酒。香醇,细腻,独特、享受。
A taster's house, like an open Merno. Mellow, delicate, unique and enjoyable.




味蕾的记忆,滴落的红酒,犹如水中泛起的涟漪,飘落在各个角落.芳香四溢,魅力无穷.阳光、力量、健康,活力.展现着主人积极向上的生活状态。
Memory of taste buds,Dripping red wine.Like a halo in the air.As an embellishment, it floats in every corner.AromaticEndless charmSunshine, strength, health, vitalityDemonstrates the positive living status of the owner.



干红的体验,破解为纵横交错的印记,存储在最温柔的空间,一本杂志、一首音乐、一缕阳光.忘记忧愁与烦恼.享受散漫舒适的放松状态。
Dry Red Experience,Cracked into crisscross marks,Store in the softest space.Enjoy,A magazine, a music, a ray of sunshine.Forget sorrow and trouble.Enjoy a relaxed and comfortable state of relaxationr.



▼ 平面图


95样板间 /摄影之梦
镜头下的世界 The world under the camera

流逝的时间,随着快门的开启,被定格下来,此刻成为了永恒、不可复制的——荒木经惟。
Solidification time,With the shutter open.Time is frozen,The record as "now and now" is non-repeatable.Becomes eternal-Araki Jingwei.


未来可能发生的和已经存在的,都指向一个始终。足音在记忆中回响,沿着我们不曾走过的那条甬道,通往我们从未打开的那扇门。
What may have happened in the past and what has happened,All point to one always.Footsteps echo in memory,Along the path we never walked through,To the door we never opened.



门的背后,摄影主题的装饰画记录着主人旅行中的点滴,那片水,那只鹤,那抹风景和那个建筑。人物雕塑穿梭其中,讲述着人与社会的互动关系.门厅的小场景展示着主人的生活气息。
Behind the doorThe decorative paintings on the subject of photography capture the bits and pieces of the owner ’s journey, That piece of water, that crane, that landscape and that building.Character sculptures shuttle among them, telling the interactive relationship between people and society. A small scene in the foyer shows the owner's life.



繁华都市中,承载着爱与希望。在家的最深处隐藏着执着的理想与丈步天涯的激情。
In the prosperous city, carrying love and hope. The deepest place in the home hides the persistent ideal and the passion of the world.




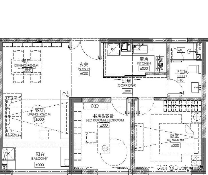
▼ 平面图


120样板间 /织彩人生
美感,是生活破译出来的DNA密码 ;
密码里,包含了我们的潜意识信息.那种对手工艺术的天赋,执着和热爱。

一位手工艺人之家,艺术,情趣,匠心,独特。
A clothing artist's home, art, fun, ingenuity, unique.




将空间打开,让梦伴随着暖阳,照射在每一个角落.映射出璀璨的精致生活,也映射出斑斓的设计灵感,符合人体线条的座椅.柔软造型的沙发,手工雕刻的线条装饰画.裁剪的小手.无不展示着生活者的匠心和精致。
Open the space, let the dream accompany the warm sun, shine in every corner.Mapping the bright and exquisite life Also reflects colorful design inspiration Human body seat Soft-shaped sofa,Hand carved line decorative painting Cropped little hand All show the ingenuity and refinement of life.






执梦于生活之上,将生活融入梦想的点滴.沉浸于专属的时间、空间。折纸、裁剪、手工编织.娱乐还是创作.静思冥想,温暖时光。
Dreaming on life, integrating life into dreams Immerse yourself in time and space, origami, cut, and hand-knit.Is entertainment or creationMeditation, warm time.


▼ 平面图


|项目名称| 永威·苏州·姑胥府
|项目地点| 苏州市姑苏区解放东路福星路交叉口
|硬装设计| 李玮珉&壹舍设计
|软装设计| 上海励时
|团队人员| 任杰、毛亚楠、唐真、刘旭、张丽、古志君
|竣工时间| 2020.1
|摄 影| 如初商业摄影 张琳 耿旭姗
| Project name | Yongwei · suzhou · gushufu
| Project location | intersection of fuxing road, jiefang east road, gusu district, suzhou city
| Hard outfit design | Li weimin& A house design
| Soft outfit design | Shanghai LISHI excited
| Team members | Ren jie, MAO yanan,Tang zhen, Liu xu, Zhang li, Gu zhijun
| Completion time | 2020.1
| Photography | as before commercial photography Zhang lin、Geng xu shan
主创设计师

▲任杰
·设计师简介:
励时设计 公司合伙人&设计总监
中国建筑学会CIID专业委员会副秘书长
中国建筑学会室内设计分会会员
室内建筑设计师
高级室内软装设计师


励时设计(国际)机构成立于2001年,在国内设分支机构:装饰设计事业部:上海励时设计、杭州励时设计、河南励时设计、迪拜励时设计办事处。
公司全国拥有专业化设计团队180余人,业务类型已涵盖规划建筑、室内装饰、艺术陈列。
面向客群:商业地产、金融办公、酒店餐饮、成品房研发部、艺术陈列六大类客群;我们秉承“彼此尊重、坦诚沟通、团队合作”的价值观,坚持“为社会提供高质量高品质高品味设计作品”的公司使命,从而实现“成为促进行业进步的一流设计企业”的企业愿景。
近期热文▼
首发|城市几何//SEOUL IV「Design首发193期」
首发|深色内饰的概念·建筑可视化「Design首发192期」
首发|宁静·挪威「Design首发191期」
首发|从现代到解决空间问题的深色设计「Design首发190期」
Design首发
“分享国际顶尖设计艺术文化,首发全球设计之美”