通用汽车在美国的电池工厂 (lordstown布局)

在通用汽车宣布要花200亿美元打造全电动汽车产品系列的第二天,通用在Lordstown举办了一个小型的交流会,主要对电池工厂的林林总总做了一些说明,这里有涉及到电池工厂的布局的内容,我们可以来看看。相信以后很多的车企都会花重点介绍自己的电芯产线,就和介绍自己的发动机产线一样,这也算是一个不可逆转的趋势。

通用汽车在美国的电池工厂,lordstown布局

图1 通用和LG Chem合资电池工厂

01 Lordstown的电池工厂

通用汽车要联合LG化学投资23亿美元,打造一个产能达30GWh的动力电池制造工厂。Lordstown工厂离伊利湖并不远,湖对岸就是底特律,这个工厂预计在2020年Q1春天就开始动工,这次的平移主要是等着俄亥俄州环境保护和其他机构的许可,工厂建设周期为2年,2022完工在2023年开始批量性的生产。 这个170万平方英尺(31个足球场大)工厂需要1100名工人

备注:通用的Lordstown工厂已经卖给了Lordstown Motors

通用汽车在美国的电池工厂,lordstown布局

图2 Lordstown的区位优势,和通用的Warren技术中心很近

Lordstown工厂生产出来的电芯,运送到Hamtramck工厂,然后生产纯电动悍马、凯迪拉克SUV等车型提供动力电池。

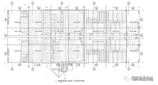
02 电芯工厂的布局图

这里分成三个部分,极片制造、组装和化成,简要的把之前电池工厂布局图里面的存储、配料和混合部分、涂布、辊压和分切;冲片、组装1(叠片和极耳焊接)和组装2(封装和注液),最后是化成、抽气封边进行储存入库。

通用汽车在美国的电池工厂,lordstown布局

图3 工厂的整体布局

这里细节的,倒是没有画出来,只有下面的整个工厂布局,分成100、200、300、400和500几个主要的工艺环节,里面30GWh分成若干条线,按照这个布局图,估计是10GWh(一期)、20GWh(二期)这里来弄的。其实后续只生产一种规格的电芯,整个起量的过程应该是非常快的,目前来看软包往后的发展自由度还是在尺寸上进行优化,容易在若干种有限的规格上腾挪转移。

通用汽车在美国的电池工厂,lordstown布局

图4 A Look Inside the New Plant

按照这个工厂的现有布局,这里产出来的都是电芯,而通用汽车则是把之前在在Brownstown 的电池模组和Pack工厂予以改造,以适应最新的第三代电动汽车平台的电池需求。这个工厂从之前的风冷HEV模组和Pack线,Volt Gen1线和Gen2线,现在得全部切换成基于BEV3的模组组装线和Pack组装线。不管是在投资和设备上,这里的变化差异真的比较大。备注:由于平台化程度较高,这里直接分发模组再发运,估计也是可能的

通用汽车在美国的电池工厂,lordstown布局

图5 Brownstown Battery Assembly Plant

以后车企在深入电芯生产以后,在原料采购、上游谈判培养工艺人才方面都会有深入的讲解机会。像宝马的考虑在上游布局,与中国企业赣锋锂业深化现有商业合作,签订电池关键材料锂的长期供应合同,并直接进行锂、钴原材料的购买,为自己的电池供应商直供原材料。采购层面深入电芯供应链源头,保证原材料产地透明化,确保原材料的开采和加工符合所有环境标准。未来,钴、锂等原材料将从澳大利亚与摩洛哥等地的矿厂直接采购。再走一步想一想,和SDI在欧洲投一条线,就齐活了。

小结:现在头部的几个企业、丰田、大众、通用和特斯拉,都开始或者已经进入大规模的电芯生产的行当,这必然也是个趋势从模组线和Pack线这样的自动化过程转入前端的电芯生产环节。