上海目前已经形成东临港、西虹桥的两翼格局!今年以来,大虹桥多个热盘推出,一房难求。而作为上海未来产业之城的临港,却沉寂了很久。最近,临港新片区内逐渐有了新动作,多个住宅项目启动,预计今年底会有一波供应。



今年在临港科技城拿下两幅宅地的大名城,项目近日正式公示。去年在蓝湾夺地的电建,其项目【泷悦蓝湾】即将入市。上半年在临港摘得2幅地块的万达,2个住宅项目案名也于近日重磅公布。
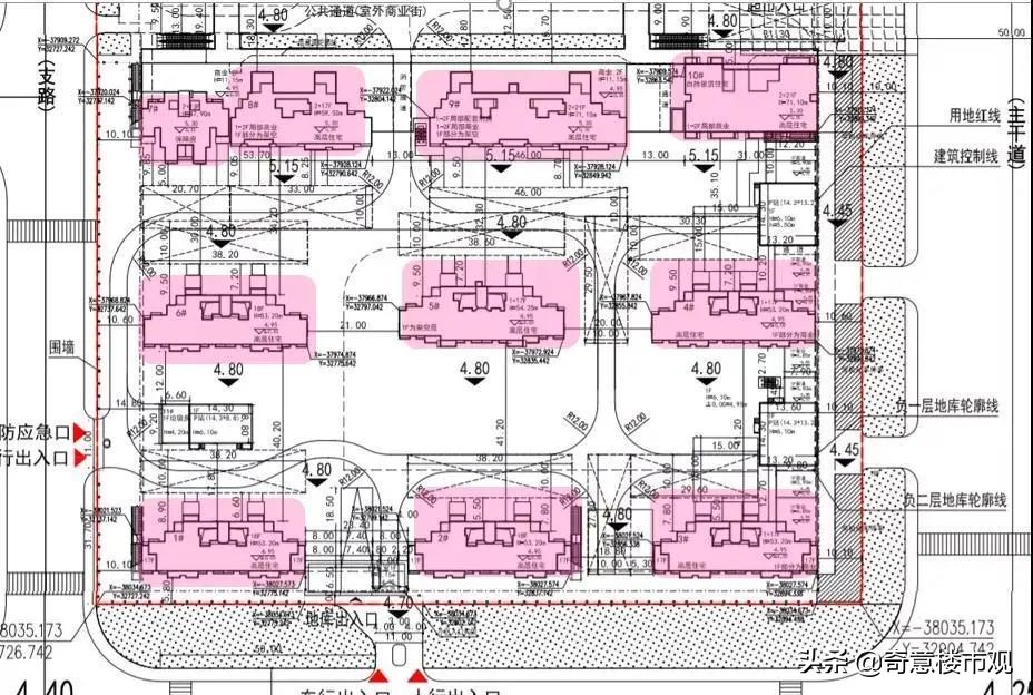
大名城临港项目规划出炉,科技城内首迎住宅!
近日,临港管委会官网公示了103区域临港科技城B02-02地块项目、临港科技城D06-01地块项目规划设计方案。
临港科技城D06-01、B02-02地块是大名城于6月12日竞得的2两块住宅用地,成交价分别为6.91、4.35亿元,分别溢价35.2%、16.0%,楼面单价分别为14389.59、12796.95元/平方米。
临港科技城B02-02地块项目
临港科技城B02-02地块占地面积3.2万平方米,地上建筑面积达4.94万平方米,容积率1.5,成交楼板价为14389.59元/平方米。

该地块将建设8栋8-12层住宅楼,其中1#楼周围设计有配套用房,8#楼含部分保障房。左低右高的小高层设计,其中2#、5#、7#、9#层高8F,1#、3#、6#、8#为12F。
临港科技城D06-01地块项目
根据设计方案,临港科技城D06-01地块占地面积2.83万方,地上建筑面积达3.5万平方米,容积率1.2,成交楼板价为12796.95元/平方米。将建设9栋8层住宅楼,其中8#楼含部分保障房,9#楼周围设计有配套用房。
D06-01地块的密度比B02-02地块低,为1.2的密度,但是大名城将建设8F的小高层。

D06-01地块位置佳,位于103国际协同创新区内,东北侧为临港科技城“先租后售”公租房,西北侧为国际学校!距离东侧的顶科社区仅咫尺之遥。
两块住宅用地附近是顶尖科学社区,其首块商业用地已经成功出让,将建设120米地标性商业和文化大厦,用于世界顶尖科学家论坛永久会址,配套有丰富的商业形态,满足周边社区餐饮、生活服务商业业态布局 。

▲120米新地标:顶科论坛永久会址效果图
蓝湾板块纯新盘,电建珑悦蓝湾年内入市!
2019年11月29日,中国电建地产集团有限公司以底价72644万元竞得临港奉贤园区二期04FX-0002单元B1401地块,楼面价8330元/㎡。地块东至正旭路西侧绿化带,南至雪柳路,西至人民塘北侧绿化带,北至石槐路,出让面积54505.4㎡,容积率1.6,建筑面积87208.64㎡。
蓝湾先行区将推出全新的产品——珑悦蓝湾。开发商电建地产隶属于中国电力建设集团有限公司(简称中国电建),是大型央企和世界五百强企业。

目前,电建地产·泷悦蓝湾即将推出建面约89-115㎡瞰景小高层,120㎡-165㎡别墅,预计下半年入市。


交通出行:S3沪奉高速(已开工),快速接洽张江价值高;G228公路(上海浙江省界至南芦公路段)(建设中),将打通向西动脉,加速长三角城市一体化;沪通铁路平安站(规划中)速达上海东站联结浦东机场;向西连通上海南站。

生活配套:咫尺约6万方蓝湾天地商业综合体(预计2020年9月开业),目前已签约SFC上影影城、法国雅高美爵星级酒店、美格菲健身会所、大润发FA-Store生鲜超市等众多品牌商家云集。紧邻约16000亩海湾国家森林公园及约3.3公里滨海岸线,优享城市绿化空间区域内配置有FIFA认证的国际足球青训基地,皮划艇运动俱乐部等国际配套

临港双子星重磅首秀,案名公布为城市赋能!
今年上半年,万达集团在临港拿下2幅地块,其中一幅是位于101单元的临港NHC10101单元06-01地块,地块靠近16号线临港大道站约800米,临港核心区域的一幅纯宅地。当时万达以12.39亿元,53.12%的今年最高溢价率摘得,楼面地价17636.9元/㎡。目前该地块项目案名公布——万达钻石湾。

万达钻石湾效果图
而另一幅商住地块是位于泥城,临港重装备产业区H23-01地块(临港万达广场),万达以8.1亿元摘得,成交楼面地价5689元/㎡,溢价率10.47%。是继泥城宝龙之后,临港泥城又一大型商业项目。

在8月底,该片地块就挂出设计方案,总建面约22.1万方,打造高端住宅、商业MALL、金街商业等,万众期待的临港万达广场终于来了。


万达未来城效果图
根据设计方案,泥城H23-01地块商住项目将建设万达广场的商业主体建筑,东西宽约105米,南北长约164米,主体高度为4层21米,局部高达24米。万达广场主体商业建筑西侧为公交枢纽、公共设施配套及部分商业。南侧为住宅项目,将建设10栋18-23层的高层住宅,限高达71米,总户数912套。目前住宅项目的案名已重磅公布——万达未来城。

图源网络

图源网络

泥城区域内也聚集了大量品牌开发商,已经形成了一定规模的居住大区,算上这个万达小区也只有9个商品房小区未来人口导入,对于商业的需求量会非常大,当前的缺口也很大,因此,宝龙和万达的商业配套,会大幅提振区域内住宅的去化。
据悉,该住宅项目最晚将于2020年底开工,3年内竣工!万达速度与临港速度的双重加成,临港万达广场或将于2022年初开门营业!

由于临港万达距离临港中央活动区有一定距离,因此,该地块规划了中运量公交T1线公交站,北侧长空路布置有轻轨站!临港主城区范围内,规划局域线网络形成6条线,其中T1线全长21.75km,起点是地铁16号线滴水湖站,终点为鸿音广场, 串联起书院、主城区、芦潮港、泥城、四团火车站全都串联起来,泥城的公交枢纽点恰好是临港万达的所在地。
【奇意君说】
一年前,临港新片区正式揭牌,接踵而至的各种利好消息和规划,让临港勾勒出宏伟蓝图。临港正在打造世界一流的海滨城市,政策上的扶持,地块出让加速,交通枢纽建设助力,高新产业落地,充分展现了临港的速度,让人们看到了上海的未来。临港的发展,仍在继续。