
葡萄牙国家足球队总部
Portuguese Football National Team Headquarters / Risco
来自建筑事务所的描述:该项目是葡萄牙足球队新总部,名为“足球城”。业主希望能够把多个功能集中于一座建筑之中,即总部、后勤中心和新足球技术中心集为一体,让17支国家足球队能够在这里进行训练。该项目位于葡萄牙国家体育馆以西的谢摩尔国家运动中心,占地面积约7公顷,周围环绕着城市主要道路。场地南北向约370米,东西向约220米,其外部边缘有着约20米的高差,这无疑增加了项目的设计难度。
Text description provided by the architects. The new premises for the Portuguese Football Federation, called Cidade do Futebol (Football City), result from a decision to join all of the institution’s activities in a single facility, namely, its headquarters, logistics centre and the new football technical centre, aimed to accommodate the seventeen national team’s training camps and work. The Cidade do Futebol is located in the Jamor National Sports Complex, west of the National Stadium, on a plot measuring approximately 7 hectares, surrounded by primary access roads to the city of Lisbon. The land measures approximately 370m long (extending north / south) and 220m wide (extending east /west) and there is a substantial gradient between the outermost edges (about 20m), which complicated the placement of the playing fields.


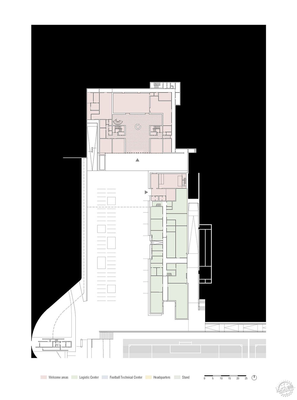
葡萄牙足球联盟就该项目进行了招标工作,设计范围包括3个足球场和1个训练场,同时还包括3个独立建筑的设计,即国家足球队总部、足球技术中心和物流中心,这些建筑均由一座通向中心小屋的四层建筑连接起来。相比起分散的四座建筑体量,建筑师提供了紧凑布局的设计方案,这样能够同时解决建筑的功能组织、入口设置以及室内外空间衔接等问题。另外,建筑师就不同的功能空间进行了区分,重点构思了葡萄牙国家足球队总部的设计工作。
The tender launched by the Portuguese Football Federation foresaw the construction of three football pitches and a goalkeeping training field, and also included the construction of three independent buildings – headquarters, football technical centre and logistics centre – connected by a fourth building referred to as the Central Hub. Rather than proposing four autonomous buildings, we designed a compact solution that enabled us to resolve, simultaneously, the organisation of the program, the different accesses and the segregation of outdoor spaces. Furthermore, our proposal distinguishes the various parts of the complex, giving precedence to the Portuguese Football Federation’s headquarters.



这种紧凑的空间布局避免了分散的建筑立面,同时减少交通空间的数量,也减少了电力机械设施的布置,降低了建筑复杂性和建造成本,使室外空间更加开放,增添了建筑的亲和力,也更好地表达了其标志特征。建筑平面呈T型,体量上由两个方形空间组成,第一个是靠近入口的公共区域,位于下部空间,第二个体量则位于基地的北部边缘,与主要训练场的标高齐平,主要供足球队成员和工作人员使用。从视觉空间上来说,底层和上部空间的对比也让这座建筑显得格外突出。
This solution, which we describe as “compact” due to having less facades, less corridors, less electrical and mechanical equipment, made it possible to reduce the complex’s construction and operating costs, freeing up more outdoor space, maximising the building’s proximity and expressing the institution’s representative character. The building’s footprint is T-shaped, set out in two “squares”: the first is public and close to the entrance, in the lower part (60.00); the second, for work, is located at the unit’s northern edge, level with the main training field (64.00), and reserved for players and staff. Visually, the building stands out due to the contrast between the lower floors (0 & 1) and the upper floors (2 & 3).






较低的楼层看上去像是铺地石材的延伸,而上部空间则显得较为传统,建筑师运用了玻璃和陶瓷面板,并与混凝土元素相结合。在项目中有两个重要的设计元素,一个是工作场所的设计,在这里,运动员、技术人员、合作方以及管理者们需要进行大量的准备工作,另外,还需要设计一个辅助空间,让记者、粉丝和VIP成员们能够在这个特定区域与国家球队队员进行有效的互动。
The lower floors were conceived as an extension of the stone walls that terrace the land, while the upper floors were designed in a more conventional manner, using glass and ceramic panels interspersed with horizontal elements in exposed concrete. Two key elements were kept in mind when developing the project: to design a workplace where players, technical personnel, collaborators and managers can prepare their demanding missions intensely; to organise a facility where journalists, fans and VIPs can engage with the national teams and players in specific locations and only when the national team manager and technical staff see fit.





















建筑设计:Risco
地点:葡萄牙
设计团队:Jorge Estriga, João Almeida, Carlos Cruz, Tomás Salgado, Luís Torgal, Cristina Picoto, Pedro Barreto, Telmo Antunes, Inês Costa, Inês Fonseca, Joana Lacerda, Nádia Paulino, Inês Reis, Ricardo Mesquita, Sara Santos
面积:12400.0 m2
项目时间:2016年
摄影:Fernando Guerra | FG+SG, Daniel Malhão
制造商:Altro, Bega, Geberit, Grohe, Kone, Schüco, XAL, CLIMAR, Sanitana, Samsung, FN – HOTELARIA, Figueras, CIN
通信与环境设计:P-06 – Nuno Gusmão, Mário Videira
景观设计:NPK - Leonor Cheis, José Lousan
客户:Federação Portuguesa de Futebol
Architects: Risco
Location: 1495 Algés, Linda-a-Velha e Cruz Quebrada-Dafundo, Portugal
Design Team: Jorge Estriga, João Almeida, Carlos Cruz, Tomás Salgado, Luís Torgal, Cristina Picoto, Pedro Barreto, Telmo Antunes, Inês Costa, Inês Fonseca, Joana Lacerda, Nádia Paulino, Inês Reis, Ricardo Mesquita, Sara Santos
Area: 12400.0 m2
Project Year: 2016
PhotographsvFernando Guerra | FG+SG, Daniel Malhão
Manufacturers: Altro, Bega, Geberit, Grohe, Kone, Schüco, XAL, CLIMAR, Sanitana, Samsung, FN – HOTELARIA, Figueras, CIN
Communication and Environmental Design
P-06 – Nuno Gusmão, Mário Videira
Landscape Design: NPK - Leonor Cheis, José Lousan
Client: Federação Portuguesa de Futebol
由专筑网李韧,杨帆编译
【专筑网版权与免责声明】:本网站注明“来源:专筑网”的所有内容版权属专筑网所有,如需转载,请注明出处